aigene Опубліковано: 18 березня 2013 Поділитись Опубліковано: 18 березня 2013 Всем доброго времени суток! Предлагаю обсудить эскиз планировки дома на 2эт. со встр.гаражем и большой террасой над ним. Семья 2 взр. и дочка (13 лет), в перспективе возможен переезд родителей. Участок квадратный 12 соток. Заезд с юга. Планировал сам, надеюсь после вашей критики и советов более четко поработать с архитектором и/или конструктором. Посилання на коментар Поділитися на інших сайтах More sharing options...
aigene Опубліковано: 18 березня 2013 Автор Поділитись Опубліковано: 18 березня 2013 Размещаю также предварительную планировку участка (все может меняться, но хотелки есть хотелки). Сам участок практически ровный - снижение с северо-востока на юго-запад, как на глаз небольшое (около метра: есть желание сделать террасу). Пока еще ни геологии/геодезии/топографии не делали. Планируем строится без цокольного этажа, холодный чердак, простая двускатка (или четырех), газобетон, отделка пока в раздумьях Посилання на коментар Поділитися на інших сайтах More sharing options...
Александр2008_111 Опубліковано: 18 березня 2013 Поділитись Опубліковано: 18 березня 2013 - Зробіть стіни в реальному масштабі і розставте (приблизно) меблі, це дасть краще сприйняття; - Слід визначитись із перекриттям, від цього залежать несівні стіни; - Проставте внутрішні розміри; - С/У навпроти їдальні? Посилання на коментар Поділитися на інших сайтах More sharing options...
seyvalter Опубліковано: 18 березня 2013 Поділитись Опубліковано: 18 березня 2013 Всем доброго времени суток! Предлагаю обсудить эскиз планировки дома на 2эт. со встр.гаражем и большой террасой над ним. Семья 2 взр. и дочка (13 лет), в перспективе возможен переезд родителей. Участок квадратный 12 соток. Заезд с юга. Планировал сам, надеюсь после вашей критики и советов более четко поработать с архитектором и/или конструктором. Погано, геть погано. Ви не ображайтесь - та вам на ТРЬОХ ЛЮДЕЙ реально треба будинок 17 * 9,5? Спробуйте у якості бази пошкати щось готове у того ж муратора абощо. Або викладіть список приміщень які вам потрібні на кожному поверсі - може щось подібне підберемо. Та креслити самостійно я б більше не намагався - це НЕ ВАШЕ, і мова не про те що негарно абощо - а про те що ви не розумієте в плануванні і зонуванні фактично нічого. І санвузол навпроти їдальні це лише один з прикладів. Мені особисто кинулось в очі розбазарювання площі (у вас коридори більші за спальні - перша ознака поганого планування). Таке питання - у вас бюджет на будівництво обмежений якоюсь певною суммою чи ні? Бо зараз я не помічаю навіть спроби десь зекономити. А Якщо бюджет будівництва вас не турбує в приципі - то всеріно можна придумати краще і компактніше. Посилання на коментар Поділитися на інших сайтах More sharing options...
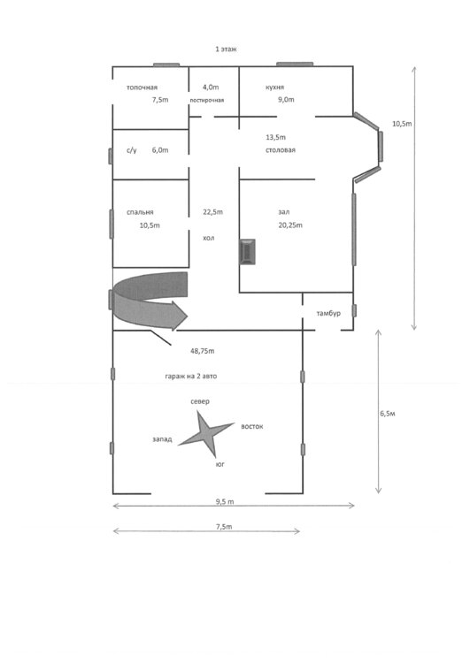
aigene Опубліковано: 21 березня 2013 Автор Поділитись Опубліковано: 21 березня 2013 Ну во первых без гаража дом 10,5 * 9,5 Выкладываю список помещений Тамбур минимум 3м Кухня достаточно 10м Гостинная - хочу с эркером и при отсутствии стены с залом достаточно 2,5 м в ширину и 4 м в длину - итого 10+эркер Каминный зал минимум 20м С/у обязательно ванна а не душевая, можно раздельный минимум 5м Постирочная минимум 3м Топочная на 2 котла + накопитель , незнаю сколько минимум, думаю 5м Гостевая спальня минимум 8м Лесница 7,5 м Итого без хола и коридоров 74м Обязательно вход из гаража в дом, можно в тамбур или в топочную Посилання на коментар Поділитися на інших сайтах More sharing options...
seyvalter Опубліковано: 21 березня 2013 Поділитись Опубліковано: 21 березня 2013 напишіть в мені на почту - скину глянути один проект, його можна використати як базу - бо по опису в принципі схожий. Може поможе. seyvalter@yandex.ru Посилання на коментар Поділитися на інших сайтах More sharing options...
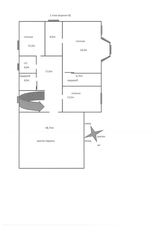
aigene Опубліковано: 21 березня 2013 Автор Поділитись Опубліковано: 21 березня 2013 2 этаж Спальня родителей. Хотим большую, чтобы не задевать углы, женский уголок и т. П. Минимум 25м Гардеробная родителей минимум 6м С/у родителей минимум 7м Вход в с/у и гардробную из спальни Спальня дочери + гардероб минимум 20 м С/у с душкабинкой минимум 4м Спальня для будущих внуков или гостей минимум 8 м Гардероб минимум 4 м Лестница 7, 5м Итого без хола и коридоров 82м Посилання на коментар Поділитися на інших сайтах More sharing options...
seyvalter Опубліковано: 21 березня 2013 Поділитись Опубліковано: 21 березня 2013 + приблокований гараж рахується у площу будинку. А гараж на дві машини.... Ризикуєте не вкластись у 250 квадратів і платити податок. Заради цікавості - ви орієнтуєтесь скільки потягне будівництво такого будиночка - чи це просто велика і світла мрія? Посилання на коментар Поділитися на інших сайтах More sharing options...
aigene Опубліковано: 21 березня 2013 Автор Поділитись Опубліковано: 21 березня 2013 Схема участка сверху. Требования к помещениям - вид с гостинной, зала, спальни родителей и террасы над гаражем на баню, беседку и бассейн Ну и в эти помещения + спальню дочери желательно попадания света с юга По поводу бюджета- понимаю что будет не дешево, но просто маленький уютный дом не хотим По поводу на 3 человек Когда нибудь нужно будет забрать родителей. Будет приезжать дочь в гости с будущим мужем и детьми. Будут приезжать гости и устраивать их на раскладушках в кухне или на коридоре даже на одну ночь (сейчас у нас на квартире такое бывает, а там уже будет не город) не хочется. Я начертил план довольно приблизительно, длятого чтобы посоветоваться, проектов пересмотрели много. Буду очень рад ссылкам на проекты, отвечающие моим требованиям или реальным советам в перепланировке. Кстати стены по реальным размерам переделал, с/у поменял местами с постирочной, мебель приблизительно расставил. К сожалению доступа к файлу временно нет. Прошу всех принять участие в обсуждении Добавлено через 5 минут + приблокований гараж рахується у площу будинку. А гараж на дві машини.... Ризикуєте не вкластись у 250 квадратів і платити податок. Заради цікавості - ви орієнтуєтесь скільки потягне будівництво такого будиночка - чи це просто велика і світла мрія? Может я невнимательно читал законодательство - за базу налогообложения берется жилая площадь. Да это мечта, но она будет осуществлена. По стоимости конкректно не считал, т.к. еще и нет плана, но приблизительно думаю в корбку сумею вложться в 50 уе Посилання на коментар Поділитися на інших сайтах More sharing options...
seyvalter Опубліковано: 21 березня 2013 Поділитись Опубліковано: 21 березня 2013 Ок. якщо захочете - напишете на почту - скину два будинка для роздумів. І третій - для контрасту. Добавлено через 10 минут якщо орієнтуватись на заг.площу приблизно 200-250 кв. то ваша розрахункова вартість квадратного метру виходить 200-250 у.є. /квадрат площі. Орієнтовну вартість КОРОБКИ я б рахував від 350 у.є. /квадрат - і то - це по скромному (цифра не з потолка - нормивна вартість готового квадрату площі - 600-800 у.є. - я взяв з розрахунку що коробка це приблизно половина витрат). Ви недобираєте практично 30% по фінансах. Зрозумійте правильно - я не аби побалакати - мав пару випадків коли люди замовляли великий гарний будинок - а через якийсь час верталися у шоковому стані і замовляли просту мансардочку вполовину менших розмірів.... Реально шкода людей стає. Посилання на коментар Поділитися на інших сайтах More sharing options...
aigene Опубліковано: 21 березня 2013 Автор Поділитись Опубліковано: 21 березня 2013 Наверное само понятие коробки у многиз разное Я имел в виду фундамент, стены, крыша ну и канализация под фундаментом Крыша только над домом, а над террасой легкая крыше на металлоконструкции Не уложусь в полтинник? Посилання на коментар Поділитися на інших сайтах More sharing options...
Рекомендовані повідомлення
Створіть акаунт або увійдіть у нього для коментування
Ви маєте бути користувачем, щоб залишити коментар
Створити акаунт
Зареєструйтеся для отримання акаунта. Це просто!
Зареєструвати акаунтУвійти
Вже зареєстровані? Увійдіть тут.
Увійти зараз