MNIPO Опубліковано: 11 вересня 2014 Поділитись Опубліковано: 11 вересня 2014 я надземные части свай ничем не обрабатывал, а вот что бы не было "капелярного подсоса" из свай в ростверк, проложил кусочки битумной черепицы (имелись остатки) и обычный рубероид в 4 или 6 слоев (не помню). Добавлено через 3 минуты и опалубку с внутренней стороны обейте рубероидом - легче разбирать и ровнее (красивше) ростверк выйдет 1 Посилання на коментар Поділитися на інших сайтах More sharing options...
miv-174 Опубліковано: 12 вересня 2014 Автор Поділитись Опубліковано: 12 вересня 2014 я надземные части свай ничем не обрабатывал, а вот что бы не было "капелярного подсоса" из свай в ростверк, проложил кусочки битумной черепицы (имелись остатки) и обычный рубероид в 4 или 6 слоев (не помню). Добавлено через 3 минуты и опалубку с внутренней стороны обейте рубероидом - легче разбирать и ровнее (красивше) ростверк выйдет Спасибо поддержали мои мысли в голове, точно также все и хочу сделать пленка 200 мк + руберойд с внешней стороны ростверка, а на сваи планировал рубероид в два слоя, но теперь положу 4 минимум. Посилання на коментар Поділитися на інших сайтах More sharing options...
miv-174 Опубліковано: 22 вересня 2014 Автор Поділитись Опубліковано: 22 вересня 2014 небольшой отчет Посилання на коментар Поділитися на інших сайтах More sharing options...
miv-174 Опубліковано: 3 жовтня 2014 Автор Поділитись Опубліковано: 3 жовтня 2014 фотоотчет ююююююююююю Посилання на коментар Поділитися на інших сайтах More sharing options...
miv-174 Опубліковано: 3 жовтня 2014 Автор Поділитись Опубліковано: 3 жовтня 2014 фотоотчет юююююююююююю Посилання на коментар Поділитися на інших сайтах More sharing options...
Игореха Опубліковано: 3 жовтня 2014 Поділитись Опубліковано: 3 жовтня 2014 Эх.. зря, конечно, опалубку изнутри обернули. Хотя, все зависит от финишной отделки. Но если будет утепление цоколя, то наверное утепилитель будет клеиться (в том числе) на цоколь. После пленки/рубероида, бетон бутет до безобразия гладким. Как бы не пришлось потом диском поверхность шершавить Посилання на коментар Поділитися на інших сайтах More sharing options...
miv-174 Опубліковано: 3 жовтня 2014 Автор Поділитись Опубліковано: 3 жовтня 2014 Эх.. зря, конечно, опалубку изнутри обернули. Хотя, все зависит от финишной отделки. Но если будет утепление цоколя, то наверное утепилитель будет клеиться (в том числе) на цоколь. После пленки/рубероида, бетон бутет до безобразия гладким. Как бы не пришлось потом диском поверхность шершавить утеплитель скорее всего бедет ПСБ-25. Но пленку я делаю не для гладкости а для того чтоб опалубку потом проще оторвать было, я еще с этим делом не сталкивался , подскажите есть ли таковая проблема с отрывом опалубки после битонирования без пленки? А так да нехотелось бы потом со шкуркой лазить, но отсюда опять вопрос - а для для чего ее шершавить, вернее разве нельзя на одни грибки утеплитель зафиксировать? отсюда размышляю, что утеплитель через года может просто сорвать вес фасад с грибков....!? Тогда да... буду убирать пленку...хорошо что еще только 4 метра сделал, а рубероид переверну шершавой, каменистой стороной к бетону(рубероид все таки хочу оставить для сглаживания неровностей доски или тоже на.ер он нужен все равно утеплитель все закроет, проблема пошла после высказывания Денза ростверк у вас выйдет некрасивым, судя по опалубке... лучше взять у кого-то фанеру ламинированную, так что сам пишу сам отвечаю))).... единственный вопрос как будет расцепляться древесина от ротстверка? С другой стороны( опять свой ответ))) ) что я деревяшки не раздербаню потом))). Добавлено через 2 минуты может оставить пленку под ротстверком и везде изнутри, не делать со стороны фасада, что б мастика (какая нить гидроизолязия) потом ровней легла и слой тоньше, и мастики помоему глядкая лучше в адгезии!? Посилання на коментар Поділитися на інших сайтах More sharing options...
Игореха Опубліковано: 3 жовтня 2014 Поділитись Опубліковано: 3 жовтня 2014 подскажите есть ли таковая проблема с отрывом опалубки после битонирования без пленки? Никаких, вообще. Топориком дощечку поддел, она и отлетела Добавлено через 2 минуты на.ер он нужен Правильная цитата ))) Если рубероид с посыпкой, то потом его точно трудно оторвать от бетона будет Добавлено через 2 минуты (какая нить гидроизолязия) потом ровней легла и слой тоньше, и мастики помоему глядкая лучше в адгезии!? Сомневаюсь в необходимосит сего мероприятия - гидроизолировать ростверк по кругу. От чего его изолировать-то? Сверху сделаете отсечную ГИ - там она более логична. А по бокам и снизу нет необходимости. 1 Посилання на коментар Поділитися на інших сайтах More sharing options...
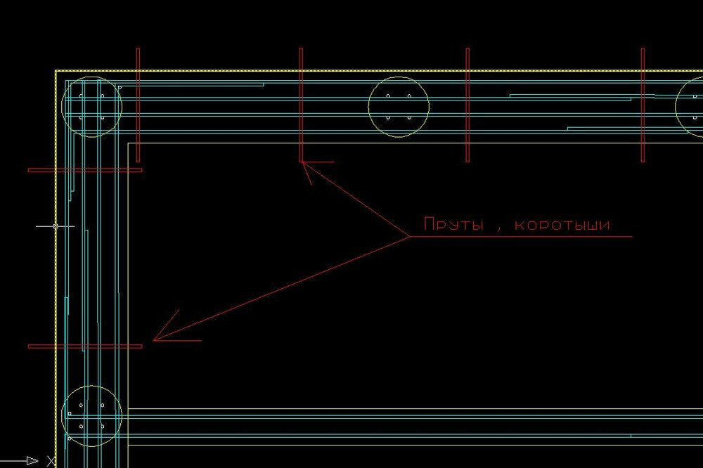
miv-174 Опубліковано: 3 жовтня 2014 Автор Поділитись Опубліковано: 3 жовтня 2014 в выходные буду укладывать арматуру, Игореха выскажи пожалуйста свою критику в мою вязку, буду ложить 8 прутов d10, 4 внизу 4 в верху. но без использования вспомогательной арматуры(хомутиков), думаю через 60-80 см просверлить дырки в опалубке и просунуть пруды(коротыши арматуры , корорых как раз в достаточном количестве завалялось) а на них и увязать 4 прута с отступом от низа ротстверка 5 см и от боков 4 см. А потом пруты срезать болгаркой, или даже оставить их и в дальнейшем на них насадить утеплитель!? Посилання на коментар Поділитися на інших сайтах More sharing options...
Игореха Опубліковано: 3 жовтня 2014 Поділитись Опубліковано: 3 жовтня 2014 в выходные буду укладывать арматуру, Игореха выскажи пожалуйста свою критику в мою вязку, буду ложить 8 прутов d10, 4 внизу 4 в верху. но без использования вспомогательной арматуры(хомутиков), думаю через 60-80 см просверлить дырки в опалубке и просунуть пруды(коротыши арматуры , корорых как раз в достаточном количестве завалялось) а на них и увязать 4 прута с отступом от низа ротстверка 5 см и от боков 4 см. А потом пруты срезать болгаркой, или даже оставить их и в дальнейшем на них насадить утеплитель!? Ну как бы.. я конечно этот ростверк не считал на предмет армирования (количества/сечения), но поперечная арматура необходима в любой балке. И она тоже рассчитывается. Хотя при таких масштабах можно и классическими 200..400мм ограничится. Поперечная арматура - распределительная. Больша всего вовлечена в работу на приопорных участках (там и поперечное армирование гуще), и "помогает" железобетонной балке работать на срез. По поводу шпилек в качестве анкеров для утеплителя... тоже сомнительное удовольствие, но возможное. Тут 2 момента. Сталь в утеплителе - мостик холода. Но их общее количество (площадь поперечного сечения) - ничтожно малы по сравнению с площадью утепления. Если говорить об утеплении применительно к цоколю-ростверку, то можно поступить и таким образом, как вы хотите. Но для себя, если бы я выбрал именно такую схему утепления, делал бы на более теплых грибках. Ну и испробованная технология утепления ДО монолита (вкладывание плит утеплителя в опалубку вместе с грибками, с последующей укладкой бетона) уже давно известна. Можно было сделать 2в1 без последующего утепления и бурения цоколя. Сейчас уже проблематично - опалубку не просто будет расширить с внешней стороны на толщину утеплителя. 1 Посилання на коментар Поділитися на інших сайтах More sharing options...
miv-174 Опубліковано: 3 жовтня 2014 Автор Поділитись Опубліковано: 3 жовтня 2014 Если говорить об утеплении применительно к цоколю-ростверку, то можно поступить и таким образом, как вы хотите. Но для себя, если бы я выбрал именно такую схему утепления, делал бы на более теплых грибках. Ну и испробованная технология утепления ДО монолита (вкладывание плит утеплителя в опалубку вместе с грибками, с последующей укладкой бетона) уже давно известна. Можно было сделать 2в1 без последующего утепления и бурения цоколя. Сейчас уже проблематично - опалубку не просто будет расширить с внешней стороны на толщину утеплителя. ... согласен(( уже поздно. а по расчету на пролет между свай в 1,28 метра приходит распределенная нагрузка 3800 кг метр(130 тонн вес дома , периметр 35 метров ротстверка), так там по расчету вообще 4 прута d3 пойдет!?, если считать как балку, но там и подвиги от почвы + еще куча всего, а вертикальную ну наверное я с вами соглашусь надо будет все равно навязать, спасибо! Посилання на коментар Поділитися на інших сайтах More sharing options...
miv-174 Опубліковано: 6 жовтня 2014 Автор Поділитись Опубліковано: 6 жовтня 2014 фотоотчет ююююююююююююю 1 Посилання на коментар Поділитися на інших сайтах More sharing options...
miv-174 Опубліковано: 13 жовтня 2014 Автор Поділитись Опубліковано: 13 жовтня 2014 (змінено) Продолжаю вязать арматуру, поперечную арматуру вяжу с шагом 450 из 6 и частично 8 гладкой вязальной проволоки, не уверен можно ее использовать или нет(марка металла, гладкая поверхность). Вяжу вот таким самодельным крючком оч быстро получается. Ну как бы.. я конечно этот ростверк не считал на предмет армирования (количества/сечения), но поперечная арматура необходима в любой балке. И она тоже рассчитывается. Хотя при таких масштабах можно и классическими 200..400мм ограничится. Поперечная арматура - распределительная. Больша всего вовлечена в работу на приопорных участках (там и поперечное армирование гуще), и "помогает" железобетонной балке работать на срез. Игореха подскажите пожалуйста, очень важно для меня ваше мнение в правильности моей вязки в балках пола, пересчитывать сечение арматуры не хочется вас занимать, но если есть время ))), и у меня уверенность будет. По расчету два прута D10 и как их надо зафиксировать перед заливкой? Так же поперечная арматура наверно нужна, а для того что бы поперечную увязать я так понимаю надо пустить третий прут в верху треугольника на обвязку!? у меня есть d8 AIII, планирую ее и пустить, Вот и вопросы правильно ли так будет? Если вам понадобятся мои данные: масса расчетная 930 кг(вместе с балкой, + 400 кг полезная нагрузка) на метр погонный балки. пролет 3,5 м , жесткое защемление, 20 - 25 мм защитный слой. Или же просто оставить эти два прута d10 на ляпках раствора(зафиксировать растояние защитного слоя и все?)? Змінено 13 жовтня 2014 користувачем miv-174 Посилання на коментар Поділитися на інших сайтах More sharing options...
miv-174 Опубліковано: 13 жовтня 2014 Автор Поділитись Опубліковано: 13 жовтня 2014 Или может так как на рисунке? Я просто не понимаю как расчитывать поперечную арматуру, вот рабочую я научился расчитывать . вот может такой вариант с последующей зацепкой к сетке плиты , выводить эти прутки и вдоль 8 проложить? Посилання на коментар Поділитися на інших сайтах More sharing options...
Игореха Опубліковано: 13 жовтня 2014 Поділитись Опубліковано: 13 жовтня 2014 Игореха подскажите пожалуйста, Давайте конкретезируем и упростим задачу Текста много, несколько сумбурно, хотя вроде и данные все есть. Вам надо рассчитать балку, на сколько я понял? Дайте сбор нагрузок на м.п. без учета собственного веса балки. Какой бетон планируется использовать, марка? Если балка таки защимленная, то верхняя арматура нужна, если вы хотите "правильно использовать" защимление. Посилання на коментар Поділитися на інших сайтах More sharing options...
miv-174 Опубліковано: 13 жовтня 2014 Автор Поділитись Опубліковано: 13 жовтня 2014 Дайте сбор нагрузок на м.п. без учета собственного веса балки. Какой бетон планируется использовать, марка? Бетон М200 - М220, Плита 250кг+ППС3,2кг+ТП210кг+400кгполезная нагрузка=865кг на м.п. одной балки. Добавлено через 14 минут Вам надо рассчитать балку, на сколько я понял? я расчет изучал с инета , что да как подробно везде изучал , как мог))), расчитал ... насчитал два прута d8, ну и так понял что два прута мне необходимо уложить внизу с соблюдением защ слоя 20 мм для работы балки на прогиб, но вот из ваших слов понял что при жест. защ. балки действуют еще и нагрузки в верху балки.... что с этим делать поделитесь...?)))) Посилання на коментар Поділитися на інших сайтах More sharing options...
djordj Опубліковано: 13 жовтня 2014 Поділитись Опубліковано: 13 жовтня 2014 утеплитель скорее всего бедет ПСБ-25. Но пленку я делаю не для гладкости а для того чтоб опалубку потом проще оторвать было, я еще с этим делом не сталкивался , подскажите есть ли таковая проблема с отрывом опалубки после битонирования без пленки? А так да нехотелось бы потом со шкуркой лазить, но отсюда опять вопрос - а для для чего ее шершавить, вернее разве нельзя на одни грибки утеплитель зафиксировать? отсюда размышляю, что утеплитель через года может просто сорвать вес фасад с грибков....!? Тогда да... буду убирать пленку...хорошо что еще только 4 метра сделал, а рубероид переверну шершавой, каменистой стороной к бетону(рубероид все таки хочу оставить для сглаживания неровностей доски или тоже на.ер он нужен все равно утеплитель все закроет, проблема пошла после высказывания Денза , так что сам пишу сам отвечаю))).... единственный вопрос как будет расцепляться древесина от ротстверка? С другой стороны( опять свой ответ))) ) что я деревяшки не раздербаню потом))). Добавлено через 2 минуты может оставить пленку под ротстверком и везде изнутри, не делать со стороны фасада, что б мастика (какая нить гидроизолязия) потом ровней легла и слой тоньше, и мастики помоему глядкая лучше в адгезии!? Напугали Вас с пленкой. У меня так залит цоколь. Эффекта стекла(гладкости) нет, ЭППС прилепился. А пленку мы использовали для многоразовости использования древесины(ушла на пол чердака!) и для сохранения бетонного молочка в недрах цоколя. И еще, все, что обмазано гидроизоляцией и не "дырявится" дюбелями для утеплителя (информация есть в техкартах). 1 Посилання на коментар Поділитися на інших сайтах More sharing options...
miv-174 Опубліковано: 13 жовтня 2014 Автор Поділитись Опубліковано: 13 жовтня 2014 для многоразовости использования древесины(ушла на пол чердака!) у меня там во сновном коротыши не длинее 2-х метров, чердака не будет))), но теперь и так куда нибудь сгодятся))), Тем более желание возиться с пленкой не было;), а вот потери наверно неизбежны бетонного молочка из-зи отсутствия пленки, пеной старался запенить все до миллиметра. 1 Посилання на коментар Поділитися на інших сайтах More sharing options...
miv-174 Опубліковано: 21 листопада 2014 Автор Поділитись Опубліковано: 21 листопада 2014 обновлю чуток темку внутренней планировкой, может кто чего покритикует 1 Посилання на коментар Поділитися на інших сайтах More sharing options...
Игореха Опубліковано: 21 листопада 2014 Поділитись Опубліковано: 21 листопада 2014 (змінено) Ну что тут можно сказать.. При беглом просмотре - очень все удачно, комфортно и душевно Единственное, я бы топочную и СУ местами поменял, но тогда с дымоходом придется немного покрутиться. А в целом - даже очень отлично. ПС Для Челябинска, не помешал бы тамбурок при входе ;) ППС А можете в виде поэтажных планов привести с размерами? Змінено 21 листопада 2014 користувачем Игореха 1 Посилання на коментар Поділитися на інших сайтах More sharing options...
Oleg8510 Опубліковано: 21 листопада 2014 Поділитись Опубліковано: 21 листопада 2014 обновлю чуток темку внутренней планировкой, может кто чего покритикует Не забудьте предусмотреть- когда будете делать разводку канальи место под батарею отопления в С/У. Посилання на коментар Поділитися на інших сайтах More sharing options...
djordj Опубліковано: 22 листопада 2014 Поділитись Опубліковано: 22 листопада 2014 обновлю чуток темку внутренней планировкой, может кто чего покритикует Я покритикую предостерегу. Выделите кусочек места под с/у на втором этаже. Топочная - если котел будет твердотопливный, то желательно организовать вход с улицы, если газовый, то также необходим вход с улицы, если ничего не поменялось в СНИПах РФ. И приплюсуюсь к Игорехе в вопросе тамбура, он же сени, или может лучше веранда? Посилання на коментар Поділитися на інших сайтах More sharing options...
miv-174 Опубліковано: 23 листопада 2014 Автор Поділитись Опубліковано: 23 листопада 2014 бы топочную и СУ местами поменял, но тогда с дымоходом придется немного покрутиться. Вот меня тоже смутил этот вопрос про дымоход, там получается все вент. каналы( с кухни, с туалета идут в топочную, а если поменять местами, то придется городить доп. шахты(короба) в туалете или потолок опускать, чего конечно не хотелось. Добавлено через 1 минуту ППС А можете в виде поэтажных планов привести с размерами? в понедельник размещю Добавлено через 9 минут Не забудьте предусмотреть- когда будете делать разводку канальи место под батарею отопления в С/У. батарею отопления не будет, будет теплый пол и полотенцесушитель. Добавлено через 7 минут Вот и у меня технологии ТИСЭ появились: фундамент террасы. да Denz видел твою террасу, мне понравилась. Добавлено через 3 минуты Выделите кусочек места под с/у на втором этаже. Я пожертвовал этим кусочком и решил обустроить там в дальнейшем что то типо рабочего места, кабинета, лестница удобная, да и дом не так уж велик, чтоб размещать два С/У, но как всегда соглашусь, т.к. не очень удобно кода ты уже готовишься ко сну, а гости например еще сидят в гостинной, разве что из за этого Добавлено через 8 минут Топочная - если котел будет твердотопливный, то желательно организовать вход с улицы, если газовый, то также необходим вход с улицы, если ничего не поменялось в СНИПах РФ. снипы снипами, а по факту у многих газовые котлы стоят на кухне или в тамбуре. я конечно еще уточню у знакомого почему газовики ни чего не потребовали(он установил в этом году и как раз рассказывал мне про то что приходили и газовики и пожарники)! Добавлено через 16 минут Вернее, обязательно. Почему обязательно? снипы явно не требуют обязательно, заходить с дровами и тащить мусор-да вроде тоже проблем не вижу . Посилання на коментар Поділитися на інших сайтах More sharing options...
miv-174 Опубліковано: 24 листопада 2014 Автор Поділитись Опубліковано: 24 листопада 2014 ППС А можете в виде поэтажных планов привести с размерами? поэтажные планы с размерами 1 Посилання на коментар Поділитися на інших сайтах More sharing options...
miv-174 Опубліковано: 24 листопада 2014 Автор Поділитись Опубліковано: 24 листопада 2014 Тамбурок за пределами дома, т.е. пристрой не хотелось бы делать, потому что не хочу портить прекрасный фасад дома с террасой(мое мнение ), терраса примерно такая. Вот хочу свес крыши опиреть на две сваи ТИСЕ, как раз по нагрузкам просчитал , примерно одинакого получается с несущей способностью свай под домом, но так как залиты они будут в разное время(усадка и т.д.), хочу предусмотреть регулировочные болты, как делают в домах из сруба, как вам такая архитектурная идея !? Посилання на коментар Поділитися на інших сайтах More sharing options...
Рекомендовані повідомлення
Створіть акаунт або увійдіть у нього для коментування
Ви маєте бути користувачем, щоб залишити коментар
Створити акаунт
Зареєструйтеся для отримання акаунта. Це просто!
Зареєструвати акаунтУвійти
Вже зареєстровані? Увійдіть тут.
Увійти зараз