aidback Опубліковано: 1 квітня 2013 Поділитись Опубліковано: 1 квітня 2013 Скоро буду делать штукатурку, вот план 2эт, хочу сразу же запланировать кондиционер для всего этажа, где его лучше разместить, 2эт-мансарда, что посоветуете установить и где!? Какое питание подводить и как заложить трубки(для фреона)? Может есть решение одна сплит система на весь этаж, с регулировкой из комнат, где-то больше, где-то меньше!? Солнечная сторона там где две спальни с одинаковыми окнами))) Заранее спасибо. Посилання на коментар Поділитися на інших сайтах More sharing options...
Zurbagan Опубліковано: 1 квітня 2013 Поділитись Опубліковано: 1 квітня 2013 хочу сразу же запланировать кондиционер для всего этажа Если это не канальный - забудьте такую мысль. В каждую комнату по внутрянке. А вот поставить один наружный блок - это можно, если есть такая необходимость. Высота потолков сколько? Опускать будете? Посилання на коментар Поділитися на інших сайтах More sharing options...
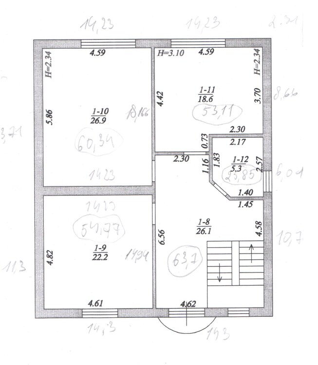
aidback Опубліковано: 1 квітня 2013 Автор Поділитись Опубліковано: 1 квітня 2013 Если это не канальный - забудьте такую мысль. В каждую комнату по внутрянке. А вот поставить один наружный блок - это можно, если есть такая необходимость. Высота потолков сколько? Опускать будете? Там на чертеже написано) Н=3.14 по центру, а со стороны скатов 2.34. Ну канальник тоже вариант, мощность, или модель можно? Посилання на коментар Поділитися на інших сайтах More sharing options...
REYDER Опубліковано: 1 квітня 2013 Поділитись Опубліковано: 1 квітня 2013 aidback, скажите бюджет в который планируете вписаться. А то канальник это дело не из бюджетных. Да и мансарда... скаты, в пироге кровли, или гипсом играться... возможности то такие есть? Сева, прав, по настенному кондиционеру в комнаты и свести все на один наружный блок. Если премиум то МЕ подешевле Фуджитсу (но тоже премиум) если сильно дешевле то мультик китайский. Начал ставить Лессар - понравились, могу порекомендовать. 1 Посилання на коментар Поділитися на інших сайтах More sharing options...
dneprstab Опубліковано: 1 квітня 2013 Поділитись Опубліковано: 1 квітня 2013 Лессар - понравились Какие компрессоры стоят в 7-12 ? Посилання на коментар Поділитися на інших сайтах More sharing options...
REYDER Опубліковано: 1 квітня 2013 Поділитись Опубліковано: 1 квітня 2013 Какие компрессоры стоят в 7-12 ? тошиба, по факту не скажу, еще не ломались и не менял, в среду - четверг скажу будут сервисы и установки попрошу монтажников поковырять и глянуть. 1 Посилання на коментар Поділитися на інших сайтах More sharing options...
Dist_Rict Опубліковано: 2 квітня 2013 Поділитись Опубліковано: 2 квітня 2013 Канальный кондиционер, не вариант, из-за невозможности отдельно регулировать температуру в каждой комнате, если поставить регуляторы расходов, то при перекрытии хотя бы одной комнате, система расбалансируется, и не понятно какие расходы будут в остальных помещениях, поставьте отдельные сплит системы для каждой комнаты и будет Вам счастье, мульти-сплит получается всегда дороже независимо какого производителя Вы выберете. 1 Посилання на коментар Поділитися на інших сайтах More sharing options...
aidback Опубліковано: 2 квітня 2013 Автор Поділитись Опубліковано: 2 квітня 2013 aidback, скажите бюджет в который планируете вписаться. А то канальник это дело не из бюджетных. Да и мансарда... скаты, в пироге кровли, или гипсом играться... возможности то такие есть? Сева, прав, по настенному кондиционеру в комнаты и свести все на один наружный блок. Если премиум то МЕ подешевле Фуджитсу (но тоже премиум) если сильно дешевле то мультик китайский. Начал ставить Лессар - понравились, могу порекомендовать. скаты есть но минимальные и по ним не пройти, бюджет самый маленький, денег просто постоянно не хватает. Канальник наверное самый нормальный вариант, может есть самый бюджетный и надежный вариант? Посилання на коментар Поділитися на інших сайтах More sharing options...
REYDER Опубліковано: 2 квітня 2013 Поділитись Опубліковано: 2 квітня 2013 может есть самый бюджетный и надежный вариант? отдельные кондиционеры на каждую комнату (китайцы) и у хорошего монтажника, что бы "попой" отвечал за них )) а он уже и посоветует вам то с чем работает и на что может дать хорошую гарантию. 1 Посилання на коментар Поділитися на інших сайтах More sharing options...
Dist_Rict Опубліковано: 2 квітня 2013 Поділитись Опубліковано: 2 квітня 2013 Навскидку если кондиционировать Весь этаж канальником, вам необходимо около 10 кВт по холоду, стоимость качественного китая около 2200-2500 дол, только за оборудование, плюс монтаж и расходники где то 1000 дол минимум, а если отдельно сплитами, то стоимость их будет 350-400 дол за шт плюс монтаж по 135 дол, если 4 комнаты, то получается 2040 дол за весь комплекс, а за канальник получается минимум 3200 дол и невозможность регулировать температуру в каждом помещении, и очень шумная работа машины мощьностью 10 кВт, так что выбор за Вами. 1 Посилання на коментар Поділитися на інших сайтах More sharing options...
Zurbagan Опубліковано: 2 квітня 2013 Поділитись Опубліковано: 2 квітня 2013 Плюс ко всему, один канальник на несколько помещений - это нарушение санитарных норм. Ну и если он выйдет из строя, то весь дом останется без кондиционирования. Посилання на коментар Поділитися на інших сайтах More sharing options...
REYDER Опубліковано: 2 квітня 2013 Поділитись Опубліковано: 2 квітня 2013 один канальник на несколько помещений - это нарушение санитарных норм. опа... чет новое. Поделись где уже вычитал. Посилання на коментар Поділитися на інших сайтах More sharing options...
Zurbagan Опубліковано: 2 квітня 2013 Поділитись Опубліковано: 2 квітня 2013 опа... чет новое. Поделись где уже вычитал. В пятницу ;) Да сам подумай - если в доме один человек заболел, как ты его изолируешь в отдельной комнате? Посилання на коментар Поділитися на інших сайтах More sharing options...
REYDER Опубліковано: 2 квітня 2013 Поділитись Опубліковано: 2 квітня 2013 В пятницу ;) Да сам подумай - если в доме один человек заболел, как ты его изолируешь в отдельной комнате? Марлевой повязкой. Посилання на коментар Поділитися на інших сайтах More sharing options...
Рекомендовані повідомлення
Створіть акаунт або увійдіть у нього для коментування
Ви маєте бути користувачем, щоб залишити коментар
Створити акаунт
Зареєструйтеся для отримання акаунта. Це просто!
Зареєструвати акаунтУвійти
Вже зареєстровані? Увійдіть тут.
Увійти зараз