Перейти до публікації
Пошук в
  • Додатково...
Шукати результати, які містять...
Шукати результати в...

Поправте в схемі каналізації

Madcat

Рекомендовані повідомлення

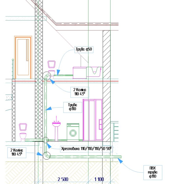
На розрізі показано розведення каналізації по поверхам. На першому душова, пральна машина та умивальник на трубі 50 плюс за стінкою унітаз на 110 трубі. На другому поверсі - унітаз на 110 та ванна на 50.

Підскажіть будь-ласка чи все вірно.

Що цікавить:

1. Чи варто робити вентиляцію з виходом на дах чи для двоповерхового будинку немає потреби?

2. Можливо на першому поверсі варто переробити хрестовину 110/110/110/50-90 на трійник 110/110/110, а відведення з умивальника, душу та пралки вивести вниз під душовою прямо в виходящу трубу? Чи не буде таким чином більше вузлів ( а значить і потенційних проблем) закопано у грунт?

3. По поверхах вхід в стояк можна робити під 90 градусів (як перший поверх) чи варто робити з переходами по 45 градусів, як другий? Який варіант правильний?

 

Примітка:

- про ухили я знаю, на рисунку не вказував для спрощення

- про ревізію на рівні 1 м від рівня підлоги я читав, не вказував для спрощення

Наперед дякую за відповіді!

444249422_A3cut.thumb.jpg.73e6ded1a80d7aa8173b5183ffbe181e.jpg

Посилання на коментар
Поділитися на інших сайтах

Що цікавить:

1.По правилам потрібно робити фанову трубу, на практиці для 2 поверхів не треба. Якщо септик з аєробними бактеріями, то треба.

2.Треба хрестовина хоча б 67 град.

3. Не залежно від поверхів ставте 2 по 45.

  • Лайк 1
Посилання на коментар
Поділитися на інших сайтах

Створіть акаунт або увійдіть у нього для коментування

Ви маєте бути користувачем, щоб залишити коментар

Створити акаунт

Зареєструйтеся для отримання акаунта. Це просто!

Зареєструвати акаунт

Увійти

Вже зареєстровані? Увійдіть тут.

Увійти зараз
×
×
  • Створити...