juco Опубліковано: 5 червня 2013 Поділитись Опубліковано: 5 червня 2013 Доброго всем времени суток. Строится дом и уже закуплена топка Jotul 530. Уже установлен дымоход Shiedel Isokern диаметром 200. Планирую установить топку и сделать кирпичный кожух вокруг неё. Но пока что ещё есть вопросы, прошу подсказать мне. Топка будет стоять в гостиной "спиной" к внутренней кирпичной стене, отапливать ей планируется саму гостиную (прим. 40 кв. м), также я планирую сделать воздуховоды в 2 спальни на втором этаже. В одну спальню канал без горизонтального участка, во вторую - гор. участок примерно 1 метр. По другую сторону стены - лестница на 2-й этаж, я также думаю сделать отверстие с решёткой в кирпичной стене, чтобы тёплый воздух шёл наверх в пространство над лестницей - и поднимался на второй этаж в коридор (откуда, предположительно, он будет затянут вентиляцией в санузел). Я выложу планы и фото, чтобы было понятнее. Вопросы же у меня вот какие возникли: на фото каминных топок я нередко встречал топки, "закутанные" сверху в дополнительный кожух из стального листа, из которого уже выходят теплоизолированные "рукава" для разводки тёплого воздуха. Обязательно ли делать такой стальной кожух, или достаточно сделать кирпичный короб вокруг топки, а тёплый воздух пускать просто через дыры в перекрытии? Какая, по мнению уважаемых строимдомовцев, может быть разница в эффективности подачи тёплого воздуха со стальным кожухом и без него? Кто как делал у себя? Ещё один важный момент - в салоне, где я брал топку, меня больше всего стращали, что топка может перегреться - и "моменто море", везти её тогда в металлолом . Но без стального кожуха она ведь должна лучше охлаждаться? Другой вопрос - если делать без стального кожуха, а просто кирпичный кожух - во всех темах про топки и кожухи обсуждается теплоизоляция этого самого кожуха - минватой или суперизольными плитами. Для чего делается такая изоляция? Для уменьшения теплоинерционности системы? Для увеличения эффективности подачи воздуха наверх? Есть ли риск, что голый кирпич на расстоянии 5 см от топки треснет от нагрева / перепадов температур? Опять же, я так понимаю, что с точки зрения вероятного перегрева отсутствие теплоизоляции только улучшает охлаждение топки. Посилання на коментар Поділитися на інших сайтах More sharing options...
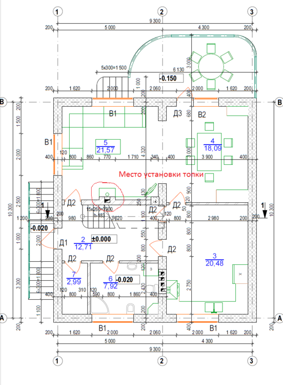
juco Опубліковано: 5 червня 2013 Автор Поділитись Опубліковано: 5 червня 2013 Расположение топки: Выход тёплого воздуха на 2-м этаже: Посилання на коментар Поділитися на інших сайтах More sharing options...
spirtik Опубліковано: 5 червня 2013 Поділитись Опубліковано: 5 червня 2013 Насчет обшивать дистрибьютор или нет, зависит от того, куда больше тепла нужно направить. Если на первом этаже маленькая комната для уменьшения перегрева первого этажа обшиваем дистрибьютор и больше тепла направится вверх на второй этаж. А у Вас, я думаю, основная проблема будет в перегреве плиты перекрытия. Нужно будет все равно делать декомпресионную камеру для отсекания тепла. Поймите Вы теплом будете нагревать всю плиту перекрытия! У меня другая проблема: как правильно сделать выход воздуховодов которые идут под потолком второго этажа если облицовка будет тоже из кирпича. 1 Посилання на коментар Поділитися на інших сайтах More sharing options...
juco Опубліковано: 6 червня 2013 Автор Поділитись Опубліковано: 6 червня 2013 Ну, я не знаю, куда больше тепла направлять. Наверное, и туда, и туда, но гостиная, где камин, не имеет шансов перегреться ибо справа от топки сразу проём (в котором не будет двери) - и за ним сразу лестница наверх (по идее, тёплый воздух весь улетит через проём в коридор второго этажа). А насколько вредно для плиты перекрытия быть перегретой тёплым воздухом от топки? Она может треснуть/покрошиться?. Если проблема только в потерях тепла, то это не потери - я думаю, теплопроводность щедро армированного железобетона достаточно высока, и поскольку топка расположена не с краю дома - то пусть себе плита греется (и греет спальни, что находятся на этой самой плите над топкой). Да, и если и вправду нужно избежать нагрева перекрытия, то так ли необходимо делать декомпрессионную камеру, по обывательской логике проще прикрепить к этой самой плите теплоизоляцию из "Суперизола" или что там в таких случаях ставится? Посилання на коментар Поділитися на інших сайтах More sharing options...
spirtik Опубліковано: 6 червня 2013 Поділитись Опубліковано: 6 червня 2013 А насколько вредно для плиты перекрытия быть перегретой тёплым воздухом от топки? Вот по этому вопросу я не скажу, но почему-то стены защищают фольгированой ватой? И в инструкции по установке к топке тоже защита стены есть. Я думаю для бетона перепад температур тоже не по феншую. 1 Посилання на коментар Поділитися на інших сайтах More sharing options...
juco Опубліковано: 6 червня 2013 Автор Поділитись Опубліковано: 6 червня 2013 Ну вот кусок из Йотуловской инструкции. Там только требуют защищать горючие стены. Зазор между топкой и негорючей стеной может быть от 15 мм и больше. Или я что-то не так читаю? Подправьте если что Посилання на коментар Поділитися на інших сайтах More sharing options...
juco Опубліковано: 7 червня 2013 Автор Поділитись Опубліковано: 7 червня 2013 Ну вот, Мишу затравили - теперь некому и на элементарный вопрос ответить Спецы, вы где? Посилання на коментар Поділитися на інших сайтах More sharing options...
avtovas Опубліковано: 13 червня 2013 Поділитись Опубліковано: 13 червня 2013 Я не розумію як ви хочете 9 квт топкою опалити будинок у 200 м2 розводити повітря до кохної кімнати у вашаму випадку не потрібно,. заведіть дві утеплені труби на другий поверх у дві кімнати і дві залишіть на першому поверсі. Дистрибютор ізолювати потрібно із всіх сторін, для чого гріти вам стіни? 1 Посилання на коментар Поділитися на інших сайтах More sharing options...
juco Опубліковано: 13 червня 2013 Автор Поділитись Опубліковано: 13 червня 2013 Дякую, що звернули увагу на мій топік. На цьому форумі вже неодноразово обговорювалося, що в загальному випадку отоплювати дім топкою - нереально, хіба що прийняти на роботу кочегара. Але - тут є деякі ньюанси. Поперше, я живу в Ужгороді, і клімат тут набагато м'якший, ніж у Київі або Стрию. Справжньої зими в нас буває десь місяць-два і то не кожен рік. Погодьтеся, коли за вікном +5, то зробити в добре утепленому домі +18 (саме така температура комфортна для мене і моєї сім'ї) не важко навіть і топкою. До того ж, площа будинку 160 квадратів (якщо не рахувати підвал), а отоплювати планується лиш вітальню і дві невеликі спальні. Тому я и планую "гріти стіни" - я хочу мати велику теплоінерційність системи, раз чи два у день добре протопив - і будинок теплий. Якось так... Може, знайдете помилку у моїх міркуваннях. Тому я і шукаю відповідь на питання - чи буде руйнуватися цегляна стіна від сусідства з топкою? Посилання на коментар Поділитися на інших сайтах More sharing options...
Viks Опубліковано: 13 червня 2013 Поділитись Опубліковано: 13 червня 2013 Тому я і шукаю відповідь на питання - чи буде руйнуватися цегляна стіна від сусідства з топкою? Робіть портал із шамотної... www.stroimdom.com.ua/forum/showthread.php?t=93659&highlight=%EF%EE%E4%F1%EA%E0%E6%E8%F2%E5+%F7%E8%F1%F2%EE%E2%EE%E9+%EE%F2%E4%E5%EB%EA%E5+%EA%E0%EC%E8%ED%E0&page=4 1 Посилання на коментар Поділитися на інших сайтах More sharing options...
juco Опубліковано: 13 червня 2013 Автор Поділитись Опубліковано: 13 червня 2013 Ну а если не из шамотного, а из обычного - будет разрушаться или нет? Вот вопрос, на который никто не может внятно ответить. Посилання на коментар Поділитися на інших сайтах More sharing options...
Viks Опубліковано: 13 червня 2013 Поділитись Опубліковано: 13 червня 2013 Ну а если не из шамотного, а из обычного - будет разрушаться или нет? Вот вопрос, на который никто не может внятно ответить. Растояние от топки до портала - 4-10см - темп. 120-150гр Я думаю не будет - полнотелый так точно 1 Посилання на коментар Поділитися на інших сайтах More sharing options...
juco Опубліковано: 14 червня 2013 Автор Поділитись Опубліковано: 14 червня 2013 Ну, короче, сделаю так - и посмотрим, что будет. В крайнем случае, кожух - не фундамент, не крыша и не дымоход, если что можно развалить и новый сделать. Спасибо всем, кто высказал мнение! Посилання на коментар Поділитися на інших сайтах More sharing options...
Ігор.Д Опубліковано: 15 червня 2013 Поділитись Опубліковано: 15 червня 2013 Добрый вечер. Я облицовываю топки красным рядовым кирпичом. 1 Посилання на коментар Поділитися на інших сайтах More sharing options...
Ігор.Д Опубліковано: 15 червня 2013 Поділитись Опубліковано: 15 червня 2013 утеплять нужно только стены которые идут на улицу. 1 Посилання на коментар Поділитися на інших сайтах More sharing options...
avtovas Опубліковано: 19 червня 2013 Поділитись Опубліковано: 19 червня 2013 Тому я и планую "гріти стіни" - я хочу мати велику теплоінерційність системи, раз чи два у день добре протопив - і будинок теплий. Якось так... Може, знайдете помилку у моїх міркуваннях. Тому я і шукаю відповідь на питання - чи буде руйнуватися цегляна стіна від сусідства з топкою? в такому випадку ви не зможете нормально відрегулювати температуру в кімнатах, і не знати як поведе себе щикатурка на стінах після високих температур, а затрати на ізоляцію із загальним кошторисом каміна практично мізерні Посилання на коментар Поділитися на інших сайтах More sharing options...
Viks Опубліковано: 20 червня 2013 Поділитись Опубліковано: 20 червня 2013 в такому випадку ви не зможете нормально відрегулювати температуру в кімнатах, і не знати як поведе себе щикатурка на стінах після високих температур, а затрати на ізоляцію із загальним кошторисом каміна практично мізерні Як до мене - то найкраща регулювання горінням - це частота закидання палива в топку Можна закидати дрова кожні 15хв при максимально відкритій подачі А можна ту ж саму кількість раз в 30-45хв при тій же макс. подачі Якщо отоплювати будинок - 2-3 поліна кожні 15-20хв (ну або 4-6 кожні 30-45хв) Якщо для душі - 2-3 поліна раз в 30-45хв І стекло буде відносно чисте... ТС хоче єфект теплої груби - протопив з вечора і до ранку портал теплий Не думаю що стіна буде руйнуватися чи штукатурка з іншого боку - але звичайно краще відбити тепло за топкою чи ізолятором чи хоча б металевим екраном 1 Посилання на коментар Поділитися на інших сайтах More sharing options...
avtovas Опубліковано: 20 червня 2013 Поділитись Опубліковано: 20 червня 2013 ТС хоче єфект теплої груби - протопив з вечора і до ранку портал теплий Не думаю що стіна буде руйнуватися чи штукатурка з іншого боку - але звичайно краще відбити тепло за топкою чи ізолятором чи хоча б металевим екраном[/quote Я про те що коли ТС буде гріти стіну на першому поверсі то буде жаркувато а на другому буде мало тепла і буде прохолодно коли буде ізольований дистрибютор решітками легше буде відрегулювати температуру в кімнатах 1 Посилання на коментар Поділитися на інших сайтах More sharing options...
Viks Опубліковано: 20 червня 2013 Поділитись Опубліковано: 20 червня 2013 Я про те що коли ТС буде гріти стіну на першому поверсі то буде жаркувато а на другому буде мало тепла і буде прохолодно коли буде ізольований дистрибютор решітками легше буде відрегулювати температуру в кімнатах він планує 3 рукави і зал Так, звичайно що треба ізолювати або дистрибютор або кожух Решітки з регулюванням - згоден 100% При інтенсивній протопці теплоємкий портал акумулює тепло довго і віддає його довше Через 2 години коли портал прогрівся - топка працюватиме на дистрибютор 25-30% тепла піде через скло 15-20 - через портал а остальне в дистрибютор 1 Посилання на коментар Поділитися на інших сайтах More sharing options...
juco Опубліковано: 21 червня 2013 Автор Поділитись Опубліковано: 21 червня 2013 Штукатурки там не будет нигде, кирпичная стена под расшивку. Насчёт копеечной цены теплоизоляции - не согласен, минвату вот ругают все - мол, со временем как ни старайся а будут попадать волокна в воздух. А если обшивать весь кирпичный кожух высотой почти 3 метра суперизолом, то это не совсем уже копейки получатся. Я думаю остановиться на "полумере" - сделать внутри такой себе суперизольный "пояс" на уровне топки, чтобы защитить от перегрева тот кирпич, что находится на расстоянии 10 см от топки. Дом планируется для постоянного проживания, поэтому теплоинерционность важна - я не хочу жить возле топки, что-то подбрасывая каждые 10-15 мин. >>Я про те що коли ТС буде гріти стіну на першому поверсі то буде жаркувато а на другому буде мало тепла і буде прохолодно коли буде ізольований дистрибютор решітками легше буде відрегулювати температуру в кімнатах Спасибо, это ценная информация. Все говорят "надо делать так", но никто не объясняет, почему и что будет если сделаешь не так. Теперь для меня прояснилось немного. Да, такой ньюанс - я пока что не заказывал никакой дистрибютор и в комплекте с 530-й он не поставляется. Верно ли, что без дистрибютора подача горячего воздуха в комнаты второго этажа не будет нормально работать? Посилання на коментар Поділитися на інших сайтах More sharing options...
Viks Опубліковано: 21 червня 2013 Поділитись Опубліковано: 21 червня 2013 Можно поставить дистрибютер поверх топки А можно всю закрыть конвекционным экраном по бокам и сверху дистрибютером Если закрыть всю - тогда не нагреете теплоемкий портал - можно конечно и в четверть кирпича сделать - но все-равно не факт что нагреется Может правильно за топкой сделать конв.экран а по-бокам не закрывать и кожух не утеплять... Как оно будет работать - никто толком не скажет - отзывов по теплоемким порталам нет практически 1 Посилання на коментар Поділитися на інших сайтах More sharing options...
avtovas Опубліковано: 22 червня 2013 Поділитись Опубліковано: 22 червня 2013 Viks, а якщо ТС зробити так як ви зробили, низ теплоакумулюючий із шамоту а верх дистрибютор із вати. Труби вставити у получений дистрибютор і розвести по кімнатах і нетрібно шукати заводського. А також не старатись заводити труби в кожну кімнату а вибрати таке розміщення топки щоб на першому поверсі гріти зал а на другому дві кімнати максимум, бо набільше тої топки не стане. 1 Посилання на коментар Поділитися на інших сайтах More sharing options...
Viks Опубліковано: 23 червня 2013 Поділитись Опубліковано: 23 червня 2013 Я йому вже показував фото www.stroimdom.com.ua/forum/showpost.php?p=2297237&postcount=10 Думаю в 2-3 кімнати можна розвести від дистрибютора... з регуляцією Добавлено через 3 минуты Я думаю остановиться на "полумере" - сделать внутри такой себе суперизольный "пояс" на уровне топки, чтобы защитить от перегрева тот кирпич, что находится на расстоянии 10 см от топки. Дом планируется для постоянного проживания, поэтому теплоинерционность важна - я не хочу жить возле топки, что-то подбрасывая каждые 10-15 мин. На растоянии 10см кирпич не перегреете - он может и не прогреться Захотите отопить дом одной топкой - придется бегать каждые 20мин - тепло дают дрова - не портал, топка или футеровка 1 Посилання на коментар Поділитися на інших сайтах More sharing options...
ОИК-4 Опубліковано: 24 червня 2013 Поділитись Опубліковано: 24 червня 2013 Изоляция ставится сзади,сбоку, не позволяя воздуху нагревать стены, а лицевую часть изолировать? Зачем тогда городить теплоемкость? Дальше 10 см облицовку в 6,5 см не надо отодвигать. 1 Посилання на коментар Поділитися на інших сайтах More sharing options...
juco Опубліковано: 24 червня 2013 Автор Поділитись Опубліковано: 24 червня 2013 Viks, а якщо ТС зробити так як ви зробили, низ теплоакумулюючий із шамоту а верх дистрибютор із вати. Труби вставити у получений дистрибютор і розвести по кімнатах і нетрібно шукати заводського. А також не старатись заводити труби в кожну кімнату а вибрати таке розміщення топки щоб на першому поверсі гріти зал а на другому дві кімнати максимум, бо набільше тої топки не стане. Да, размещение топки так и выбрано - над ней сразу 2 спальни, которые и будут топиться. Только зал и 2 спальни сверху. Посилання на коментар Поділитися на інших сайтах More sharing options...
Рекомендовані повідомлення
Створіть акаунт або увійдіть у нього для коментування
Ви маєте бути користувачем, щоб залишити коментар
Створити акаунт
Зареєструйтеся для отримання акаунта. Це просто!
Зареєструвати акаунтУвійти
Вже зареєстровані? Увійдіть тут.
Увійти зараз