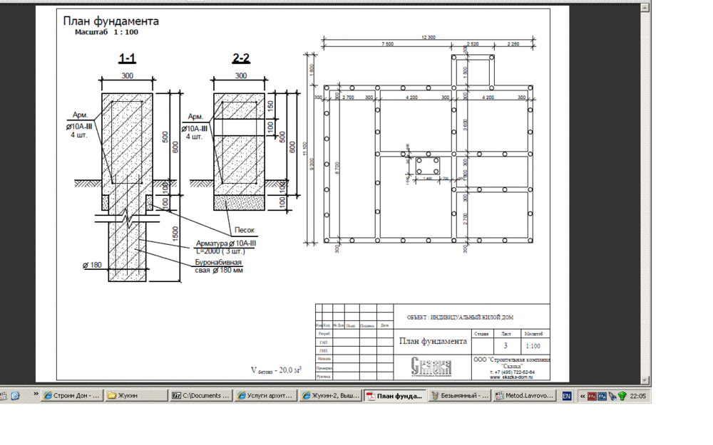
July1 Опубліковано: 11 червня 2013 Поділитись Опубліковано: 11 червня 2013 Нужен подрядчик для строительства ленточного монолитного фундамента под дом из оцилиндрованного бревна. Размеры: 12 м Х 10,8 м. Участок - в с. Жукин (Вышгородский р-н), 42 км от Киева. Ссылка (ссылка устарела) План фундамента прилагается. Старт работ - с июля. Предложения по комплексу работ и стоимости (работа + материалы) прошу отправлять в личку. Посилання на коментар Поділитися на інших сайтах More sharing options...
July1 Опубліковано: 12 червня 2013 Автор Поділитись Опубліковано: 12 червня 2013 Правильная ссылка на Google maps: maps.google.com/maps/ms?msid=206903320957402950769.0004b93807e5ebddf0446&msa=0&ie=UTF8&t=h&z=16&vpsrc=0 Посилання на коментар Поділитися на інших сайтах More sharing options...
Деревянщик Опубліковано: 12 червня 2013 Поділитись Опубліковано: 12 червня 2013 Вообще-то, глубина залегания фундамента зависит от свойств грунтов и глубины промерзания. Для России глубина залегания в 1,5 м. - нормально. Киевской области глубина промерзания примерно 1м. А учитывая то, что в Жукине грунтовые воды примерно на этой глубине, делать сваю глубиной 1,5 метра у Вас не получится, так как пока будете копать яма водой наполнится. Это к тому, что если бы у Вас был нормальный проект, а не российский, то только на фундаменте можно было бы сэкономить 500 баксов (при стоимости проекта фундамента в 500гр). Стоимость за 1м3 всех работ с материалами примерно 2900 гр/м3. В жукине подобный фундамент делали: 1 Посилання на коментар Поділитися на інших сайтах More sharing options...
July1 Опубліковано: 12 червня 2013 Автор Поділитись Опубліковано: 12 червня 2013 Стоимость за 1м3 всех работ с материалами примерно 2900 гр/м3. В жукине подобный фундамент делали: А общую стоимость озвучте пож, исходя из вашего предложения. Посилання на коментар Поділитися на інших сайтах More sharing options...
Рекомендовані повідомлення
Створіть акаунт або увійдіть у нього для коментування
Ви маєте бути користувачем, щоб залишити коментар
Створити акаунт
Зареєструйтеся для отримання акаунта. Це просто!
Зареєструвати акаунтУвійти
Вже зареєстровані? Увійдіть тут.
Увійти зараз