Шаргаев Опубліковано: 7 липня 2013 Поділитись Опубліковано: 7 липня 2013 Уважаемые форумчане! Помогите,пожалуйста, провильно оценить частный дом в г. Киев, Голосеевский район, улица (тупиковая) Цимбалов переулок Метро «Демеевская» 10 минут. Дом 3 этажа. На первом этаже ( полуцокольный т.к.существует уклон) расположены два телых гаража и подсобное помещение площадью 19,8 и 29,4 м. кв. Второй этаж - коридор 11,5 м. кв., туалет 0,8 мю кв., ванная комната 4,4 м. кв., гостинная 18,6 м. кв., кухня 14,7 м. кв. Третий этаж - коридор 4,7 м. кв., спольня 13,7 м. кв., спальня 21,9 м. кв. Входная группа - Крытая поликарбонатом веранда 29,4 м. кв. стены кирпичные, перекрытия монолитные бетонные; фасад утеплен системой SCANROC; крыша металлочерепица RUUKKI; металлопластиковые окна двухкамерные DECEUNINCK; ворота и решетки на окнах- художественная ковка. Участок земли 1,14 сотки (под домом ). Документы нового образца. Заранее благодарен. Посилання на коментар Поділитися на інших сайтах More sharing options...
NK01 Опубліковано: 8 липня 2013 Поділитись Опубліковано: 8 липня 2013 так вы хотя бы напишите от чего вы отталкиваетесь сами. Кто-то напишет 1 грн , а кто-то мульон! 1 Посилання на коментар Поділитися на інших сайтах More sharing options...
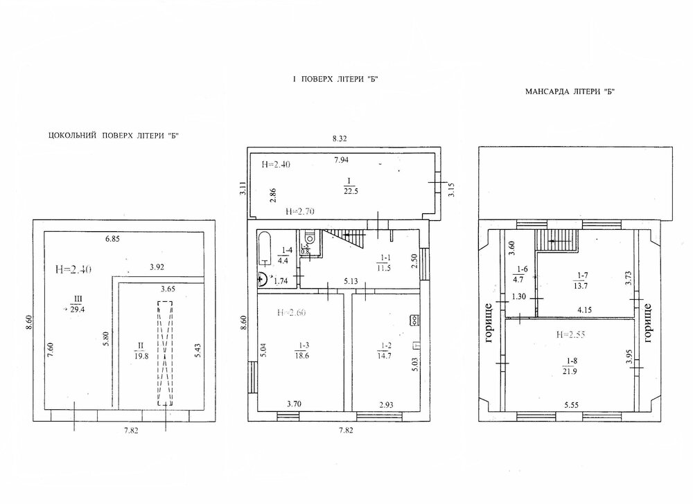
Шаргаев Опубліковано: 9 липня 2013 Автор Поділитись Опубліковано: 9 липня 2013 так вы хотя бы напишите от чего вы отталкиваетесь сами. Кто-то напишет 1 грн , а кто-то мульон! Т.к. замли проктически нет, отталкиваюсь от цен вторичного рынка на 3-х комнатные квартиры плюс наличие двух теплых и сухих гаражей в цикольном этаже (см. паэтажный план). Вопрос в том какие на сегодняшний день эти цены с учетом месторасположения. Как найти именно цены фактических продаж, а не "хотелок". Посилання на коментар Поділитися на інших сайтах More sharing options...
Soyka Опубліковано: 9 липня 2013 Поділитись Опубліковано: 9 липня 2013 А как у Вас зимой подъезд к дому? Посилання на коментар Поділитися на інших сайтах More sharing options...
vale3 Опубліковано: 9 липня 2013 Поділитись Опубліковано: 9 липня 2013 Думаю 200-250 тысяч долларов не меньше Посилання на коментар Поділитися на інших сайтах More sharing options...
Ольга В Опубліковано: 9 липня 2013 Поділитись Опубліковано: 9 липня 2013 Я цен не знаю - можно я про дом скажу? Фасады - кошмар, планировка - жуть, отделка - тройка с минусом. А вы этот дом хотите продать хотите или купить? Посилання на коментар Поділитися на інших сайтах More sharing options...
Шаргаев Опубліковано: 9 липня 2013 Автор Поділитись Опубліковано: 9 липня 2013 Улица ровная, асфальтированная, тупиковая, участок неклонный вверх от дороги, вьезд в гараж также по прямой. Если Вас не затруднит, уточните , пожалуйста, как скалькулирована сумма 200 - 250 тысяч. Заранее благодарен. Дом построен своими руками нашей семьей. Удобный, теплый, аккуратный и добротный. В нем и живем. Думаем о продаже в связи с переездом в другой регион. Посилання на коментар Поділитися на інших сайтах More sharing options...
vbteam Опубліковано: 9 липня 2013 Поділитись Опубліковано: 9 липня 2013 А вы этот дом хотите продать хотите или купить? с этого и надо начинать))) цифра будет отличаться... Посилання на коментар Поділитися на інших сайтах More sharing options...
Ольга В Опубліковано: 9 липня 2013 Поділитись Опубліковано: 9 липня 2013 ...В нем и живем. Думаем о продаже в связи с переездом в другой регион. Выставьте за 300000 уе и продолжайте жить. Снижайте потихоньку - 500-1000 уе в неделю. Правильная цена вас сама найдёт. Посилання на коментар Поділитися на інших сайтах More sharing options...
Татьяна5 Опубліковано: 10 липня 2013 Поділитись Опубліковано: 10 липня 2013 Ольга сделала правильный коммент по внутрянке. У кого есть 200К вряд ли будет покупать такой ремонт, у кого есть 250К не будет покупать такой участок (ИМХО). Покупатель будет оч специфичен, возможно, бизнес у него - СТО и тогда у дома появляются плюсы. ИМХО, хоть и дом, хоть и в Киеве, но малоликвиден, искать своего покупателя, а вот кто он и сколько у него денег - интересный вопрос Добавлено через 1 минуту отталкиваюсь от цен вторичного рынка на 3-х поддержу, аналог 3-х комнатной квартиры 1 Посилання на коментар Поділитися на інших сайтах More sharing options...
Шаргаев Опубліковано: 10 липня 2013 Автор Поділитись Опубліковано: 10 липня 2013 По некоторым параметрам 3-х комнатная квартира, но очевидны и плюсы частного дома: отсутствие соседей за стенами, два теплых гаража и хоз. помещение в цокольном этаже тишина, деревья, цветы, помыть машину (слив в канализацию)... Поставить 300000 и снижать еженедельно по 1000 - вариант. Но может занять очень много времени. Посилання на коментар Поділитися на інших сайтах More sharing options...
вторик Опубліковано: 10 липня 2013 Поділитись Опубліковано: 10 липня 2013 я думаю 80 нескребу больше нет. дом понравился 100-150 точно дал бы. смотреть надо. а если б ему сотку-две земли. то и триста. Посилання на коментар Поділитися на інших сайтах More sharing options...
Ольга В Опубліковано: 10 липня 2013 Поділитись Опубліковано: 10 липня 2013 Поставить 300000 и снижать еженедельно по 1000 - вариант. Но может занять очень много времени. А вы куда-то торопитесь? Так это хуже всего в продаже домов. И откуда вы знаете сколько такая схема займет времени? Посилання на коментар Поділитися на інших сайтах More sharing options...
Шаргаев Опубліковано: 11 липня 2013 Автор Поділитись Опубліковано: 11 липня 2013 А вы куда-то торопитесь? Так это хуже всего в продаже домов. И откуда вы знаете сколько такая схема займет времени? Опыта в этих вопросах нет, потому и одни предположения. А, вообще хотел бы продавать не более 6 месяцев. Посилання на коментар Поділитися на інших сайтах More sharing options...
Ольга В Опубліковано: 11 липня 2013 Поділитись Опубліковано: 11 липня 2013 1- найдите знакомого риэлтора с рекомендациями 2- сами поставьте в рекламу за 300000 и снижайте по 2000 в неделю. Посмотрите будут ли вообще звонки и просмотры. Посилання на коментар Поділитися на інших сайтах More sharing options...
Шаргаев Опубліковано: 13 липня 2013 Автор Поділитись Опубліковано: 13 липня 2013 1- найдите знакомого риэлтора с рекомендациями 2- сами поставьте в рекламу за 300000 и снижайте по 2000 в неделю. Посмотрите будут ли вообще звонки и просмотры. Именно так и планирую. Единственный вопрос - стартовая цена. Желательно чтобы она была близкой к рыночной и сразу не отпугнула покупателей. Можно ли где либо узнать цены реальных продаж домов по районам г. Киева. Буду весьма благодарен. Посилання на коментар Поділитися на інших сайтах More sharing options...
alexmusic Опубліковано: 10 січня 2014 Поділитись Опубліковано: 10 січня 2014 Виктор, как успехи в продаже дома? сколько люди готовы платить? Посилання на коментар Поділитися на інших сайтах More sharing options...
tompson Опубліковано: 10 січня 2014 Поділитись Опубліковано: 10 січня 2014 на сколько я знаю сотка стоит 30к уе, откуда там 200к за дом? Посилання на коментар Поділитися на інших сайтах More sharing options...
Исаев Опубліковано: 10 січня 2014 Поділитись Опубліковано: 10 січня 2014 автор-добавьте высоту потолков поэтажно.....здается мне там 2,2-2,3 метра))) Посилання на коментар Поділитися на інших сайтах More sharing options...
Avraam Опубліковано: 14 січня 2014 Поділитись Опубліковано: 14 січня 2014 добрый день..... реально с чего можете стартовать по цене - это максимум с 200 тыс у.е., у меня в этом районе продаётся дом на 10 сотках с фруктовыми деревьями, ягодами. до метро близко и по квадратуре больше и отдельно стоящий гараж и цена выше а интерес по покупке не очень.... в таком состоянии - можете начинать с 200 но на мой взгляд это максимум и то под вопросом...... Посилання на коментар Поділитися на інших сайтах More sharing options...
Шаргаев Опубліковано: 14 січня 2014 Автор Поділитись Опубліковано: 14 січня 2014 Всем добрый день. Высота потолков первого этажа - 2,65, второго - 2,60 м. Дом выставлен на продажу на KVARDO, стартовая цена 180 000 у.е. торг. Ежемесячно планирую снижение. Виктор. Посилання на коментар Поділитися на інших сайтах More sharing options...
LOS8800 Опубліковано: 6 січня 2015 Поділитись Опубліковано: 6 січня 2015 Всем добрый день. Высота потолков первого этажа - 2,65, второго - 2,60 м. Дом выставлен на продажу на KVARDO, стартовая цена 180 000 у.е. торг. Ежемесячно планирую снижение. Виктор. Доброго здоровья, продажа дома актуальна? Посилання на коментар Поділитися на інших сайтах More sharing options...
Specu Опубліковано: 9 січня 2015 Поділитись Опубліковано: 9 січня 2015 По некоторым параметрам 3-х комнатная квартира, но очевидны и плюсы частного дома: отсутствие соседей за стенами, два теплых гаража и хоз. помещение в цокольном этаже тишина, деревья, цветы, помыть машину (слив в канализацию)... Поставить 300000 и снижать еженедельно по 1000 - вариант. Но может занять очень много времени. Именно так, по некоторым параметрам это 3-к квартира. Но далеко не по всем. Квартира более безопасна, ее можно закрыть и уехать, не беспокоясь. В доме всегда должен кто-то присутствовать. Отсутствие соседей? 2-й этаж на перекрестке и 3-5 метров до соседей и лающих собак - это отсутствие? Квартира на 5-10этаже тише, да и воздух не хуже, если в том же районе. Хоз. помещения это бесспорно хорошо, но цена? имхо гараж можно оценить не более 200-300 долл за метр, отсюда и проводить оценку. Помыть машину... Вы серьезно думаете что люди, покупающие недвигу моют машины сами, а не за 50 грн??? Ваш объект имеет все минусы дома, при этом не имея плюсов квартиры... Нужно искать к-то увлеченного чудака... Посилання на коментар Поділитися на інших сайтах More sharing options...
Шаргаев Опубліковано: 10 січня 2015 Автор Поділитись Опубліковано: 10 січня 2015 Именно так, по некоторым параметрам это 3-к квартира. Но далеко не по всем. Квартира более безопасна, ее можно закрыть и уехать, не беспокоясь. В доме всегда должен кто-то присутствовать. Отсутствие соседей? 2-й этаж на перекрестке и 3-5 метров до соседей и лающих собак - это отсутствие? Квартира на 5-10этаже тише, да и воздух не хуже, если в том же районе. Хоз. помещения это бесспорно хорошо, но цена? имхо гараж можно оценить не более 200-300 долл за метр, отсюда и проводить оценку. Помыть машину... Вы серьезно думаете что люди, покупающие недвигу моют машины сами, а не за 50 грн??? Ваш объект имеет все минусы дома, при этом не имея плюсов квартиры... Нужно искать к-то увлеченного чудака... Дом предпоследний в тупиковой улочке, утром с8.00 до 9.00 выезжают 3 автомобиля, в конце дня возвращаются. Два рубежа охраны: на вьезде в переулок круглосуточно охранник, видеокамеры, все знает в лицо. Непосредственно у дома освещение, видеокамеры. Шума, гама и лающих собак нет. На цокольном этаже гаражи и хоз. помещение, сухие, температура зимой при -15 не ниже +5. Вьезды с небольшим подьемом для стока воды. Все городские коммуникации. Дом утеплен 100 мм. мин. вата + навесной фасад СКАНРОК. Обьем потребления газа за год до 2500 м. куб, т.е. 1 тариф. В общем за год коммунальные ниже чет 3-х комнатной того же метража. Оценка на сеголня: гаражи по 300, жилая по1000. Итого 108 000 долл. А, вообще нужно смотреть. Минусы конечно есть, но не те конорые указаны выше. Нужно самому чистить снег у дома, осенью уборка листьев и плодов, подрезка деревьев. Посилання на коментар Поділитися на інших сайтах More sharing options...
Рекомендовані повідомлення
Створіть акаунт або увійдіть у нього для коментування
Ви маєте бути користувачем, щоб залишити коментар
Створити акаунт
Зареєструйтеся для отримання акаунта. Це просто!
Зареєструвати акаунтУвійти
Вже зареєстровані? Увійдіть тут.
Увійти зараз