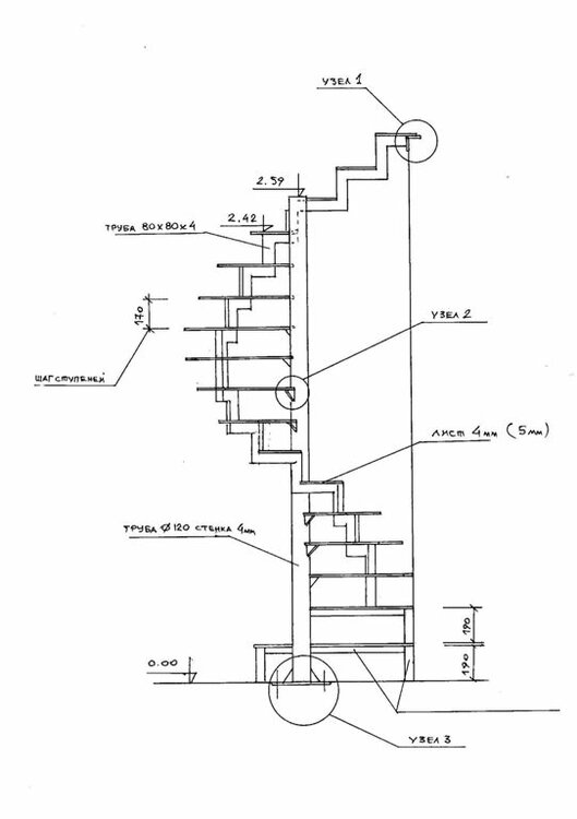
LM Опубліковано: 12 липня 2013 Поділитись Опубліковано: 12 липня 2013 Фантазия дизайнера требует примерно вот такую лестницу :D: Итальянская ARKE - arke.uaprom.net/p3414142-lestnitsa-vintovaya-arke.html вполне подходит, кроме одного параметра - цены: 25 тыщ гривеников, ИМХО, за подобное - это многовато будет. Вопрос в следующем: кто-нибудь из лесТников может изготовить подобное, если да - то цена вопроса. Материал ступенек - бук или сосна. Монтаж возможен и моими работниками, т.е. возможно получение (если не в Киеве) в виде конструктора (собственно, как таже ARKE). Посилання на коментар Поділитися на інших сайтах More sharing options...
kvvant Опубліковано: 13 липня 2013 Поділитись Опубліковано: 13 липня 2013 это полированная нержавейка ? плиз , если не составит труда и не будет тайной, при условии , что вы найдете дешевле , огласите сумму за которую вам её готовы сделать . а по финишу отзывы о качестве. Посилання на коментар Поділитися на інших сайтах More sharing options...
rul.32 Опубліковано: 13 липня 2013 Поділитись Опубліковано: 13 липня 2013 Фантазия дизайнера требует примерно вот такую лестницу :D: Итальянская ARKE - arke.uaprom.net/p3414142-lestnitsa-vintovaya-arke.html вполне подходит, кроме одного параметра - цены: 25 тыщ гривеников, ИМХО, за подобное - это многовато будет. Вопрос в следующем: кто-нибудь из лесТников может изготовить подобное, если да - то цена вопроса. Материал ступенек - бук или сосна. Монтаж возможен и моими работниками, т.е. возможно получение (если не в Киеве) в виде конструктора (собственно, как таже ARKE). В такой лестнице разница между сосной и дубом будет мизерная 2000-2500 гр.Частник скорей всего не возьмется за такие деньги.Нужно налаженное производство и соответствующее оборудование.Имхо для нержавейки вполне нормальная стоимость(к сожалению качество,кроме полировки, не рассмотреть) Посилання на коментар Поділитися на інших сайтах More sharing options...
LM Опубліковано: 13 липня 2013 Автор Поділитись Опубліковано: 13 липня 2013 это полированная нержавейка ? плиз , если не составит труда и не будет тайной, при условии , что вы найдете дешевле , огласите сумму за которую вам её готовы сделать . а по финишу отзывы о качестве. Я честно даже не подумал, что акцент получится на нержавейке. Уточню: нержавейка или покраска - это не принципиально, принципиальна конструкция и размеры. Качественная покраска на сегодня проблемы не составляет. Кстати, по ссылке на ARKE - обычная покраска Посилання на коментар Поділитися на інших сайтах More sharing options...
shodyveletyk Опубліковано: 13 липня 2013 Поділитись Опубліковано: 13 липня 2013 Я честно даже не подумал, что акцент получится на нержавейке. Уточню: нержавейка или покраска - это не принципиально, принципиальна конструкция и размеры. Качественная покраска на сегодня проблемы не составляет. Кстати, по ссылке на ARKE - обычная покраскаПокраска обычная - но сам материал идет наржавейка. Покраска в лестницах Arke идет в трех цветах - белый , серый и черный. А дерево - бук светлый или темный (похож на Венге). Посилання на коментар Поділитися на інших сайтах More sharing options...
Рекомендовані повідомлення
Створіть акаунт або увійдіть у нього для коментування
Ви маєте бути користувачем, щоб залишити коментар
Створити акаунт
Зареєструйтеся для отримання акаунта. Це просто!
Зареєструвати акаунтУвійти
Вже зареєстровані? Увійдіть тут.
Увійти зараз