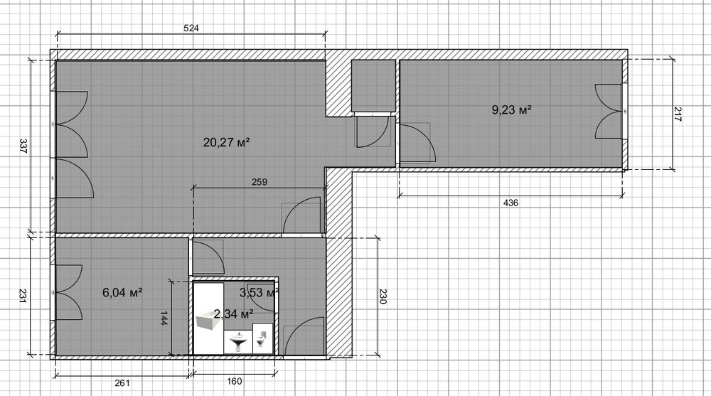
SSilent Опубліковано: 13 липня 2013 Поділитись Опубліковано: 13 липня 2013 Приветствую, Продаю свою двухкомнатную квартиру в Киеве, в Голосеевском р-не, проспект Науки 39, местность называется Саперная слободка. Ближайшее метро Демеевская(по кратчайшему маршруту 1800м). Квартира находится на первом этаже(высота от окон со стороны парадного около 2м), сам дом имеет четыре этажа, так называемой переходной серии(потолки 2,7м, толстые стены, но прощади квартир как в хрущевках) Общая площадь 43,7м, кухня 6м, комнаты 10м и 20м. Квартира двухсторонняя, окна кухни и комнаты 20м выходят во двор, окна комнаты 10м выходят на проспект Науки. Все окна качественный металопластик(двухкамерный стеклопакет, профиль Salamander), от проспекта при закрытых окнах шума практически не слышно. На всех окнах стоят решетки + на входе бронедверь. В квартире стоит газ.колонка Junkers(2006г.), трубы горячей/холодной воды+канализация - пластик. Стоят счетчики газа/горячей холодной воды и електроенергии, есть городской телефон и тв/интернет. Возможна продажа с мебелью/техникой(современная плита беко и стиралка индезит, двухспальная кровать с матрасом, диван а также ГДРовские шкафы и тумбочки в качестве бонуса ). Квартира своя, покупалась более 7лет назад, с документами все в порядке, один собственник, нет опекунского... Возле дома без проблемм/бесплатно можно припарковать машину, большой спокойный двор. В целом состояние жилое, поначалу жить можно... План с размерами прилагается. Квартира освобождается 11 августа. Для старта цена 65000у.е. П.С. рассматриваю вариант с мелким ремонтом перед продажей(переклейка обоев, замена столярки и сантехники), как думаете, стоит ли делать? Посилання на коментар Поділитися на інших сайтах More sharing options...
Андрей1978 Опубліковано: 14 липня 2013 Поділитись Опубліковано: 14 липня 2013 Приветствую, Продаю свою двухкомнатную квартиру в Киеве ... Приобрели аналогичную квартиру в марте 2013 в Святошинском р-не, 700 м - м.Житомирская, 1200м - м.Святошин с 2-мя погребами в жилом состоянии за 54 у.е. Хотя стартовая была тоже 65 у.е. 2 Посилання на коментар Поділитися на інших сайтах More sharing options...
SSilent Опубліковано: 14 липня 2013 Автор Поділитись Опубліковано: 14 липня 2013 Хорошая цена для такой близости к метро и правого берега... Я перед выставлением цены прозвонил с десяток объявлений и сформировал запрос в несколько агенств на похожую квартиру(2-3км от м.Демеевская) За цену до 65000 только однушки... 1 Посилання на коментар Поділитися на інших сайтах More sharing options...
Specu Опубліковано: 14 липня 2013 Поділитись Опубліковано: 14 липня 2013 Хорошая цена для такой близости к метро и правого берега... (2-3км от м.Демеевская) За цену до 65000 только однушки... Как много открытий чудных вам предстоит сделать, если конечно квартиру нужно реально продать... 2 Посилання на коментар Поділитися на інших сайтах More sharing options...
Монстр общения Опубліковано: 15 липня 2013 Поділитись Опубліковано: 15 липня 2013 П.С. рассматриваю вариант с мелким ремонтом перед продажей(переклейка обоев, замена столярки и сантехники), как думаете, стоит ли делать?Не стоит. Лучше сделать скидку покупателю на такой ремонт. 1 Посилання на коментар Поділитися на інших сайтах More sharing options...
SSilent Опубліковано: 15 липня 2013 Автор Поділитись Опубліковано: 15 липня 2013 Если б ремонт пришлось делать по полной стоимости материалов и работ вопрос даже б не стоял, но я смогу его выполнить своими силами и имею возможность покупки многих материалов со скидкой около 25-30% от Эпицентровских цен, соответственно на ремонт стоимостью 4000у.е. я потрачу около 2000+половину отпуска Посилання на коментар Поділитися на інших сайтах More sharing options...
Монстр общения Опубліковано: 15 липня 2013 Поділитись Опубліковано: 15 липня 2013 я потрачу около 2000+половину отпуска Вот только вряд ли покупатель оценит Ваш ремонт даже в половину от потраченного. Всегда будут придумывать разные аргументы, что бы не оплачивать Ваш ремонт. Типа, такой ремонт мне не нужен, я буду все равно делать себе супер-пупер мега ремонт, а Ваш ремонт демонтировать в любом случае. Или скажут, что свежий ремонт сделали, что бы скрыть дефекты в квартире. Типа, трещины на стенах и т. д. Дом у Вас все-таки далеко не новый. Лучше найти покупателя, взять задаток и под него уже сделать ремонт, если кому-то из покупателей нужен будет сделанный Вами ремонт. 1 Посилання на коментар Поділитися на інших сайтах More sharing options...
Рекомендовані повідомлення
Створіть акаунт або увійдіть у нього для коментування
Ви маєте бути користувачем, щоб залишити коментар
Створити акаунт
Зареєструйтеся для отримання акаунта. Це просто!
Зареєструвати акаунтУвійти
Вже зареєстровані? Увійдіть тут.
Увійти зараз