Прохожий Опубліковано: 14 липня 2013 Поділитись Опубліковано: 14 липня 2013 Господа стекольщики! Нужна Ваша консультация по выбору стекла. Хочу застеклить крышу террасы.Есть металлокаркас с размерами ячейки 1000х1500 из профильной трубы 80х40. Какое стекло выбрать для остекления? 6... 8...10... сырец... каленку... сырец с пленкой бронировочной??? Я понимаю что лучший вариант это каленка триплексованая в 20 мм, (и танки нам не страшны) но вот по деньгам. Стекло будет вклеиваться по всем четырем сторонам. Стеклопакеты и фасадный алюминий ставить не вижу смысла, так как терраса не теплая. Буду признателен за ориентировку по ценам на различные варианты. Посилання на коментар Поділитися на інших сайтах More sharing options...
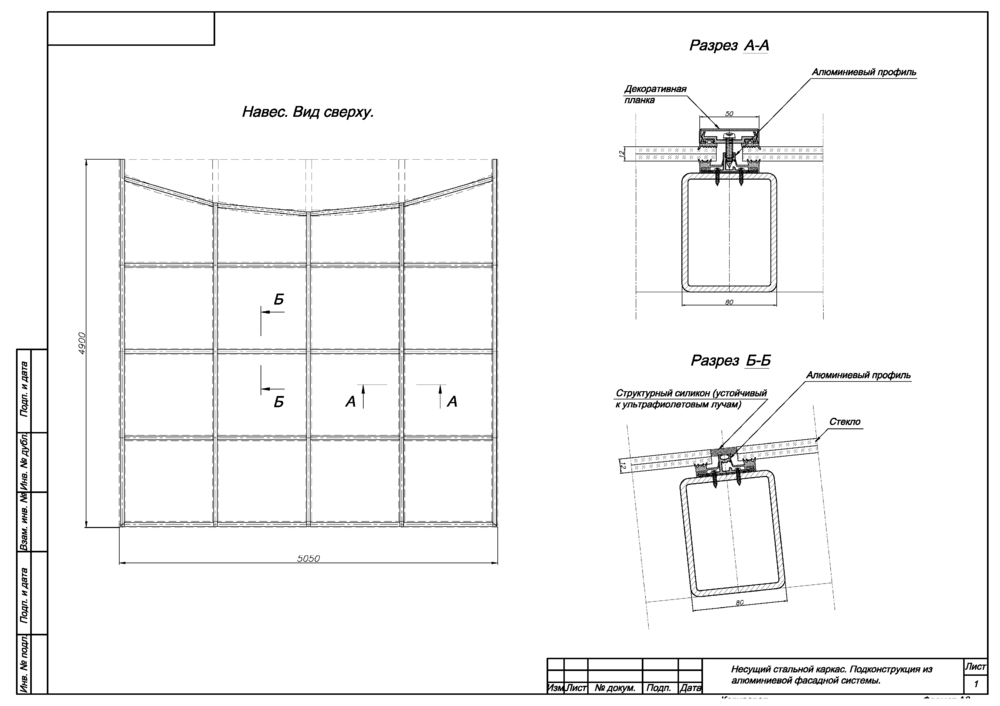
Ruslan R Опубліковано: 14 липня 2013 Поділитись Опубліковано: 14 липня 2013 Бюджетный вариант это стекло 6мм, закаленное (для размеров 1000х1500мм будет достаточно). Пленку клеить не рекомендую, можно во время транспортировки или монтажа поцарапать и она будет постоянно под воздействием внешней среды, может долго не продержаться. Или используйте триплекс из закаленных стекол, но будет очень дорого. Вклеивать ни чего не надо. Есть системное решение из фасадной системы (нулевой профиль стойки и рилеля, только металлокаркас должен быть в идеале). Смотрите ниже фото и узлы навеса. Кстати сбросьте размеры металлокаркаса, проверю конструкцию на жесткость. Посилання на коментар Поділитися на інших сайтах More sharing options...
Прохожий Опубліковано: 14 липня 2013 Автор Поділитись Опубліковано: 14 липня 2013 Спасибо за ответ. Только как видно из Вашего чертежа у Вас триплекс 12 мм. Ставить алюминий не хочется. (одна из причин - торчащие прижимки). Стекло каленка 6 мм на 1,5 квадрата??? Не мало? Ну и по цене стекла проконсультируйте. Посилання на коментар Поділитися на інших сайтах More sharing options...
Ruslan R Опубліковано: 14 липня 2013 Поділитись Опубліковано: 14 липня 2013 Только как видно из Вашего чертежа у Вас триплекс 12 мм. Да на том навесе триплекс 12мм, из 2-х закаленных 6мм стекол. Я по нему сам ходил (при моем весе 100кг), а монтажник даже прыгал на нем, я не рискнул прыгать. Но дорогой он очень. Ставить алюминий не хочется. (одна из причин - торчащие прижимки). Прижимки только по стойкам (стропилам). Их функция прижимать стекло. Стекло жестко не фиксируется, оно между резиновыми уплотнениями. Да стекло можно приклеить (есть специальный клей, могу даже найти и сказать как он точно называется), так делают например при стекляных полах, где используется подконструкция у которой практически нет ни каких деформаций (проемы в ж/б плитах, к которым крепится стальной уголок, труба, далее крепится алюминиевая полоса и к ней уже приклеивается стекло). Но в случае с навесом, который будет будет деформироваться (прогиб будет) от снеговой нагрузки, и стекло будет к нему жестко приклеено... Не знаю не знаю, что может со стеклом тогда произойти... Стекло каленка 6 мм на 1,5 квадрата??? Не мало? Достаточно. Могу расчет на прочность от снеговой нагрузки предоставить, если не верите. Посилання на коментар Поділитися на інших сайтах More sharing options...
Прохожий Опубліковано: 15 липня 2013 Автор Поділитись Опубліковано: 15 липня 2013 Прижимки только по стойкам (стропилам). Их функция прижимать стекло. Стекло жестко не фиксируется, оно между резиновыми уплотнениями. А по ригелям только силикон??? Будет же течь... Да стекло можно приклеить (есть специальный клей, могу даже найти и сказать как он точно называется), так делают например при стекляных полах, где используется подконструкция у которой практически нет ни каких деформаций (проемы в ж/б плитах, к которым крепится стальной уголок, труба, далее крепится алюминиевая полоса и к ней уже приклеивается стекло). Но в случае с навесом, который будет будет деформироваться (прогиб будет) от снеговой нагрузки, и стекло будет к нему жестко приклеено... Не знаю не знаю, что может со стеклом тогда произойти... Стекло в любом случае клеится через разделитель, который даст "играть" системе при температурных расширениях материалов. Так что прижимки или вклейка - не суть важно. А по поводу клея, так это обычный клей для вклеивания автомобильных стекол. Посилання на коментар Поділитися на інших сайтах More sharing options...
Ruslan R Опубліковано: 15 липня 2013 Поділитись Опубліковано: 15 липня 2013 А по ригелям только силикон??? Будет же течь... Там используется не обычный силикон. Там используется структурный герметик устойчивый к УФ, используется на структурных фасадах (может видели витражи без наружных прижимных планок). При застывании он становится как резина и у него отличная адгезия со стеклом, металлом. Вообщем течь не будет, это я гарантирую. Стекло в любом случае клеится через разделитель, который даст "играть" системе при температурных расширениях материалов. Так что прижимки или вклейка - не суть важно. А по поводу клея, так это обычный клей для вклеивания автомобильных стекол. Да нет это не обычный клей должен быть (я просто не в курсе что там за клей для автомобильных стекол). Это клей который при застывании становится твердым, т.е. стает одним целым между металлом и стеклом. Если он будет эластичный то стекла может вырвать ветром снизу. P.S. Что есть "разделитель"? Посилання на коментар Поділитися на інших сайтах More sharing options...
Прохожий Опубліковано: 15 липня 2013 Автор Поділитись Опубліковано: 15 липня 2013 При застывании он становится как резина и у него отличная адгезия со стеклом, металлом. Вообщем течь не будет, это я гарантирую. Это клей который при застывании становится твердым, т.е. стает одним целым между металлом и стеклом. Если он будет эластичный то стекла может вырвать ветром снизу. Не вполне понял... Вы противоречите сами себе. Посилання на коментар Поділитися на інших сайтах More sharing options...
Ruslan R Опубліковано: 15 липня 2013 Поділитись Опубліковано: 15 липня 2013 Не вполне понял... Вы противоречите сами себе. Я говорю о двух совершенно разных герметиках. Один который эластичный как резина (его например от стекла можно ножиком срезать), а второй который твердеет (от стекла уже ни чем не срежете). Посилання на коментар Поділитися на інших сайтах More sharing options...
star_a Опубліковано: 16 липня 2013 Поділитись Опубліковано: 16 липня 2013 Согласен на кровлю ставить калёнку. Можно облагородить алюминием. Если речь о бюджетном исполнении поликарбонат не подойдёт? Посилання на коментар Поділитися на інших сайтах More sharing options...
Ruslan R Опубліковано: 16 липня 2013 Поділитись Опубліковано: 16 липня 2013 Если речь о бюджетном исполнении поликарбонат не подойдёт? А кто вам сказал что при ячейке 1000х1500мм из поликарбоната будет дешевле? При таких размерах ячейки, нужен сотовый поликарбонат минимум 25 мм толщины (см. ниже график, график для плоской кровли, не путать с арочной), а по стоимости он равнозначен закаленному стеклу 6мм. Только еще прибавить отходы поликарбоната с листа и того еще и дороже получится Посилання на коментар Поділитися на інших сайтах More sharing options...
Raiv Опубліковано: 16 липня 2013 Поділитись Опубліковано: 16 липня 2013 Я говорю о двух совершенно разных герметиках. Один который эластичный как резина (его например от стекла можно ножиком срезать), а второй который твердеет (от стекла уже ни чем не срежете). Руслан! При всём уважении к "коллегам по цеху" не морочте людям голову....нет никаких "эластичных" и "неэластичных". Есть бутил и есть Sika клеющий герметик для стекла. И не нужно интриг и тайн, занимаетесь проектированием, занимайтесь....это чисто монтажное дело. Прохожий! Берёте калёнку, берёте Siku, вклеиваете стекло, сверху по-контуру им же, или бутилом. Я бы вырезал прокладки из паронита или монтажных подставок, или надел уплотнитель, что бы стекло не "село" на металл, а на герметик. Посилання на коментар Поділитися на інших сайтах More sharing options...
mgerbut Опубліковано: 16 липня 2013 Поділитись Опубліковано: 16 липня 2013 Руслан! не морочте людям голову....нет никаких "эластичных" и "неэластичных". гыы. не поверите, но вступлюсь за Руслана: есть герметики/клеи: 1. бутиловые 2. силиконовые 3. эбоксидные применяются каждый в своем месте. ошибка только в том, что диагноз пытаются поставить по фотокарточке. Посилання на коментар Поділитися на інших сайтах More sharing options...
Ruslan R Опубліковано: 16 липня 2013 Поділитись Опубліковано: 16 липня 2013 Есть бутил и есть Sika клеющий герметик для стекла. Я про Sika и говорил. У Sika более 10-ти разновидностей герметиков. Я имел ввиду Sikasil WS-605S (предназначен для герметизации швов) и Sikasil SG-20 (предназначен для приклеивания стекла к металлу). Прохожий! Берёте калёнку, берёте Siku, вклеиваете стекло, сверху по-контуру им же, или бутилом. Я бы вырезал прокладки из паронита или монтажных подставок, или надел уплотнитель, что бы стекло не "село" на металл, а на герметик. Не предлагайте "кустарщину". P.S. Предложил же нормальное системное решение (см. пост №2), с возможностью замены стекла без каких либо проблем. Не нравятся прижимки? Ну тогда крепите стекла на спайдерах, если конечно стоимость потяните (объект уже таким бюджетным не будет). Посилання на коментар Поділитися на інших сайтах More sharing options...
Raiv Опубліковано: 16 липня 2013 Поділитись Опубліковано: 16 липня 2013 Ага. Напишите Прохожему сколько стоит один спайдер и отверстие по него в стекле. Я то понимаю, что вы всё по книжечкам, а человек вон, сварил из профильной трубы и не считает это кустарщиной. Посилання на коментар Поділитися на інших сайтах More sharing options...
Прохожий Опубліковано: 16 липня 2013 Автор Поділитись Опубліковано: 16 липня 2013 ГОСПОДА!!!!!! К чему ссоры? Я изначально не хочу делать стекло "под замену". Я хочу раз сделать и забыть лет на 20-25 (ну не заберу я его с собой в могилу для замен). По этому и задал вопрос. Ставить "нулевку" и сверху хлопушки - не хочу. Грязь по ригельным прижимкам не вдохновляет. Ставить поликарбонат (тем более сотовый) тем более не хочу. Чтобы при вклейке стекло не ложилось на металл, на сколько я понимаю, есть различного рода прокладки. Вот и думаю что смогу сделать расстояние от стекла до металла не 1 мм а 5 и заполнить его той же сикой... Неужели если стекло, то сразу и алюминиевая система? Посилання на коментар Поділитися на інших сайтах More sharing options...
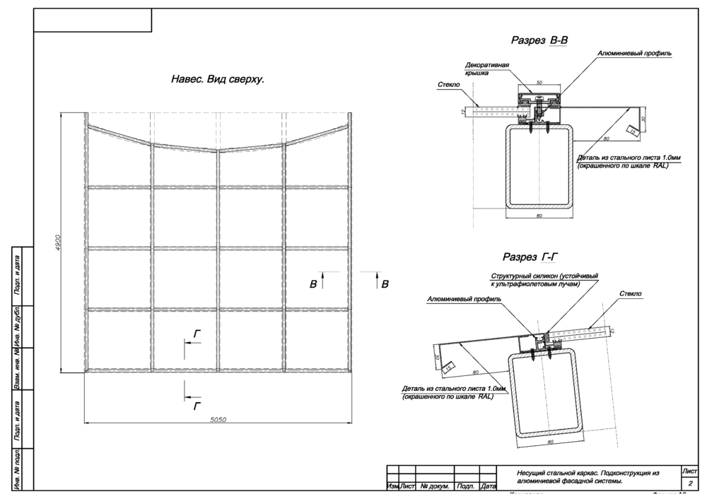
Ruslan R Опубліковано: 16 липня 2013 Поділитись Опубліковано: 16 липня 2013 Ставить "нулевку" и сверху хлопушки - не хочу. Грязь по ригельным прижимкам не вдохновляет. Так в том то и дело что ригельных прижимок нет (разрезы внимательно смотрели?), только стоечные. Горизонтальные стыки стекол загерметизированы структурным герметиком заподлицо с наружной плоскостью стекла. Посилання на коментар Поділитися на інших сайтах More sharing options...
Прохожий Опубліковано: 16 липня 2013 Автор Поділитись Опубліковано: 16 липня 2013 Так в том то и дело что ригельных прижимок нет (разрезы внимательно смотрели?), только стоечные. Горизонтальные стыки стекол загерметизированы структурным герметиком заподлицо с наружной плоскостью стекла. А что в таком случае мешает точно так же как горизонтальные стыки выполнить и вертикальные?????? Ну и хваленая ремонтопригодность такой конструкции тут же улетучивается вместе с герметизацией горизонтальных стыков... На сколько я понял, тут дело в том, что использование нулевого профиля было просто необходимо для объяснения клиенту почему же так дорого получается.... Посилання на коментар Поділитися на інших сайтах More sharing options...
Ruslan R Опубліковано: 16 липня 2013 Поділитись Опубліковано: 16 липня 2013 А что в таком случае мешает точно так же как горизонтальные стыки выполнить и вертикальные?????? А крепеж стекол как будет происходить? Да и не доверяю я этим клеям, считаю что механическое крепление должно быть обязательное. Ну и хваленая ремонтопригодность такой конструкции тут же улетучивается вместе с герметизацией горизонтальных стыков... В смысле? Я ж говорил, что герметик на горизонтальных стыках используется такой что можно легко ножиком разрезать (это не клей). На сколько я понял, тут дело в том, что использование нулевого профиля было просто необходимо для объяснения клиенту почему же так дорого получается.... Если честно то гемора в монтаже (с приклеиванием стекол) будет на порядок больше чем с использованием нулевых профилей. И не так дорого они стоят (разница в стоимости монтажа этим компенсировалась бы, если конечно вам не Равшаны будут монтировать :D). И еще есть один нюанс. Есть такое понятие как "структурные створки", там также стекло приклеивается к алюминиевой створке. Так вот это могут делать компании с нужной лицензией. И одно дело это клеить в стерильном помещении (и то как выше писал что не доверяю клеям), а другое дело это клеить на улице в пыли и грязи (образно выразился). P.S. Вы хоть к ржавой сталюке не приклеивайте. Прикрутите алюминиевую полосу к стальной трубе и уже к ней клейте стекло. Посилання на коментар Поділитися на інших сайтах More sharing options...
amelnyk Опубліковано: 1 квітня 2016 Поділитись Опубліковано: 1 квітня 2016 Планирую сделать перголу/террасу со стеклянной крышей. Ориентировочные размеры и вид на картинках. Сама пергола - деревянная, сверху думалось положить немного тонированное стекло, пустив тонкий профиль вдоль брусьев для стыка листов. На рисунке брусья идут через метр, это я навскидку себе так придумал, чтоб делать листы шириной в один или два метра (меньше стыков). Уклон у перголы, если и будет то самый минимальный. Пример, что нашел в нете www.4sync.com/photo/xhU5CuQl/krjsha410j7.html www.4sync.com/photo/VDacdDCv/krjsha416j7.html Основной вопрос, какой толщины должно быть стекло достаточное для выдерживания снеговых нагрузок(судя по всему триплекс с каленными стеклами?). Ходить по нему как то не планировал, если и ходить то по брусьям. Я видел, что вы на похожую конструкцию ставили триплекс из двух каленных стекол по 6мм. Правда не знаю из расчета каких нагрузок такое стекло нужно. Хотелось бы от вас получить советы/смету по стекольной части, из расчета, что деревянная конструкция уже будет сделана. Посилання на коментар Поділитися на інших сайтах More sharing options...
Ruslan R Опубліковано: 1 квітня 2016 Поділитись Опубліковано: 1 квітня 2016 Сама пергола - деревянная, сверху думалось положить немного тонированное стекло, пустив тонкий профиль вдоль брусьев для стыка листов. Если несущий каркас хотите из дерева, то это обязательно должен быть клеенный брус. Обычный брус поведет и потрещат все стекла. На рисунке брусья идут через метр, это я навскидку себе так придумал, чтоб делать листы шириной в один или два метра (меньше стыков). Уклон у перголы, если и будет то самый минимальный. Основной вопрос, какой толщины должно быть стекло достаточное для выдерживания снеговых нагрузок(судя по всему триплекс с каленными стеклами?). Ходить по нему как то не планировал, если и ходить то по брусьям. Желательно чтобы площадь одного стекла не превышала 2м.кв., если будет больше тогда нужно использовать стекло толщиной более 6мм. Я видел, что вы на похожую конструкцию ставили триплекс из двух каленных стекол по 6мм. Правда не знаю из расчета каких нагрузок такое стекло нужно. Это было требование архитектора. Там достаточно было бы и 6мм стекла закаленного, но ходить по нему уже было бы опасно. И в случае разбития стекло 6мм закаленное посыпится вниз, что не устраивало заказчика. P.S. На этом объекте в самом доме было много стеклянных полов (использовали триплекс 30мм - из трех 10мм стекол), так что этот навес для заказчика обошелся в копейки по сравнению со стеклянными полами. Хотелось бы от вас получить советы/смету по стекольной части, из расчета, что деревянная конструкция уже будет сделана. Ответил в личку. 1 Посилання на коментар Поділитися на інших сайтах More sharing options...
amelnyk Опубліковано: 8 квітня 2016 Поділитись Опубліковано: 8 квітня 2016 Спасибо за ответ Желательно чтобы площадь одного стекла не превышала 2м.кв., если будет больше тогда нужно использовать стекло толщиной более 6мм. я правильно понял, 6мм до 2м.кв. рекомендуется в случае, если стекло закреплено только по периметру? Тоесть, могу ли я сделать 4м.кв, и посредине пусть балку опоры, формально разделив область на две по 2 метра. Посилання на коментар Поділитися на інших сайтах More sharing options...
Рекомендовані повідомлення
Створіть акаунт або увійдіть у нього для коментування
Ви маєте бути користувачем, щоб залишити коментар
Створити акаунт
Зареєструйтеся для отримання акаунта. Це просто!
Зареєструвати акаунтУвійти
Вже зареєстровані? Увійдіть тут.
Увійти зараз