Safrane Опубліковано: 29 липня 2018 Поділитись Опубліковано: 29 липня 2018 А есть ли Проэкт типа z63 Посилання на коментар Поділитися на інших сайтах More sharing options...
MAESTRO DNEPR Опубліковано: 2 серпня 2018 Поділитись Опубліковано: 2 серпня 2018 заинтересовал проект Кипрус-3 ...а мы его модернизировали: Посилання на коментар Поділитися на інших сайтах More sharing options...
Igor Kasajn Опубліковано: 3 серпня 2018 Поділитись Опубліковано: 3 серпня 2018 это очень много информации, могу скинуть в личку по любому проекту. есть вот такая картинка. Подскажите, у Вас случайно нет такого проета? возможно сможете подсказать, где можно найти. заранее спасибо. Посилання на коментар Поділитися на інших сайтах More sharing options...
Kitayfon Опубліковано: 6 серпня 2018 Поділитись Опубліковано: 6 серпня 2018 Интересует проект 2-х этажного дома. Хотелось бы второй свет. Площадь приблизительно 200 кв.м. Посилання на коментар Поділитися на інших сайтах More sharing options...
Виталий_Буча Опубліковано: 7 серпня 2018 Автор Поділитись Опубліковано: 7 серпня 2018 Двухэтажный дом, общей площадью 226 кв.м.1-й этаж_1533276797.pdf2-й этаж_1533276797.pdf Посилання на коментар Поділитися на інших сайтах More sharing options...
K.Vadim Опубліковано: 10 серпня 2018 Поділитись Опубліковано: 10 серпня 2018 Могу предложить Z 69 Интересует проект дома Z 69. Посилання на коментар Поділитися на інших сайтах More sharing options...
Виталий_Буча Опубліковано: 20 серпня 2018 Автор Поділитись Опубліковано: 20 серпня 2018 Двухэтажный дом, полный комплект документации Посилання на коментар Поділитися на інших сайтах More sharing options...
Виталий_Буча Опубліковано: 20 серпня 2018 Автор Поділитись Опубліковано: 20 серпня 2018 Одноэтажный дом, полный комплект документации Посилання на коментар Поділитися на інших сайтах More sharing options...
RSV Опубліковано: 20 серпня 2018 Поділитись Опубліковано: 20 серпня 2018 Одноэтажный дом, полный комплект документации метраж, размеры? Посилання на коментар Поділитися на інших сайтах More sharing options...
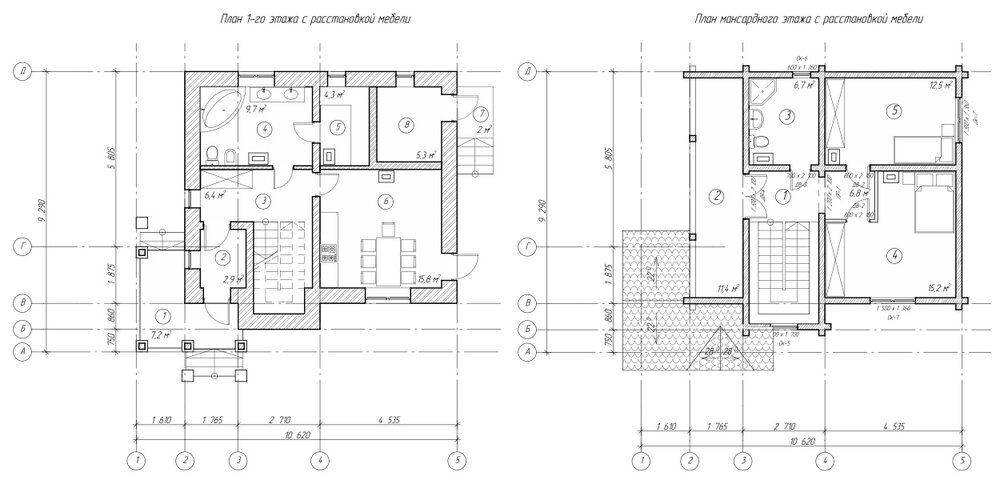
Виталий_Буча Опубліковано: 20 серпня 2018 Автор Поділитись Опубліковано: 20 серпня 2018 Дом с мансардой, полный комплект документации Посилання на коментар Поділитися на інших сайтах More sharing options...
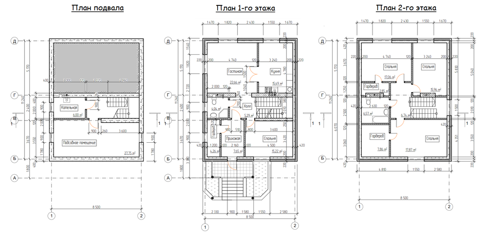
Виталий_Буча Опубліковано: 20 серпня 2018 Автор Поділитись Опубліковано: 20 серпня 2018 метраж, размеры? 14,1 х 23,1м 1 Посилання на коментар Поділитися на інших сайтах More sharing options...
Виталий_Буча Опубліковано: 20 серпня 2018 Автор Поділитись Опубліковано: 20 серпня 2018 Проект с мансардой Ц331 Посилання на коментар Поділитися на інших сайтах More sharing options...
Виталий_Буча Опубліковано: 20 серпня 2018 Автор Поділитись Опубліковано: 20 серпня 2018 Ц341 Жилой дом-баня Посилання на коментар Поділитися на інших сайтах More sharing options...
Виталий_Буча Опубліковано: 20 серпня 2018 Автор Поділитись Опубліковано: 20 серпня 2018 Ц352 Полный комплект документации Посилання на коментар Поділитися на інших сайтах More sharing options...
Виталий_Буча Опубліковано: 20 серпня 2018 Автор Поділитись Опубліковано: 20 серпня 2018 Ц363 Дом с мансадрой Посилання на коментар Поділитися на інших сайтах More sharing options...
Виталий_Буча Опубліковано: 20 серпня 2018 Автор Поділитись Опубліковано: 20 серпня 2018 Есть много индивидуальных проектов, сброшу по запросу или на вайбер Посилання на коментар Поділитися на інших сайтах More sharing options...
Виталий_Буча Опубліковано: 21 серпня 2018 Автор Поділитись Опубліковано: 21 серпня 2018 Дом с мансардой Ц149 Полный комплект документации Посилання на коментар Поділитися на інших сайтах More sharing options...
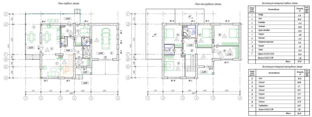
Виталий_Буча Опубліковано: 21 серпня 2018 Автор Поділитись Опубліковано: 21 серпня 2018 Дом с мансардой Ц377, общая площадь 243 кв.м. Полный комплект документации. Посилання на коментар Поділитися на інших сайтах More sharing options...
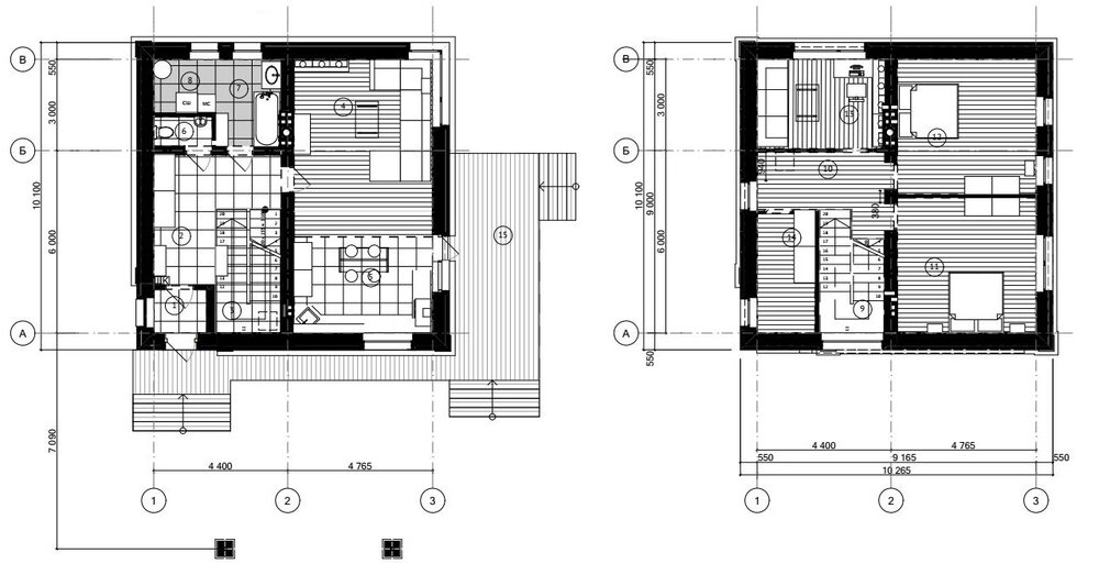
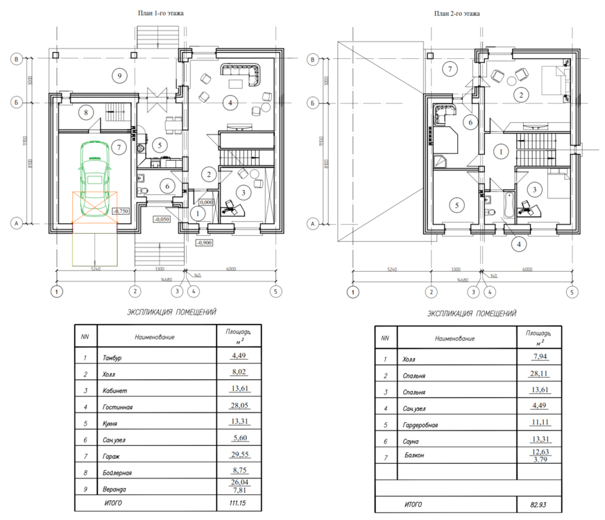
Виталий_Буча Опубліковано: 21 серпня 2018 Автор Поділитись Опубліковано: 21 серпня 2018 Двухэтажный дом Ц380, общая площадь 137 кв.м. Полный комплект проектной документации. Посилання на коментар Поділитися на інших сайтах More sharing options...
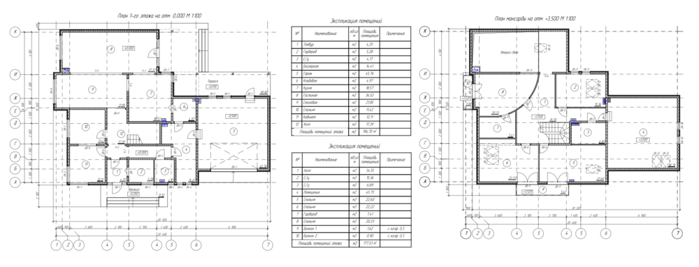
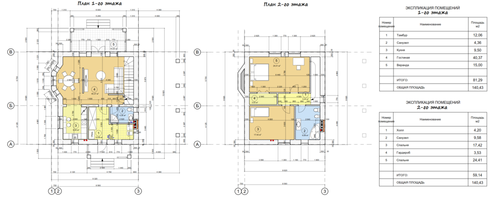
Виталий_Буча Опубліковано: 21 серпня 2018 Автор Поділитись Опубліковано: 21 серпня 2018 Двухэтажный дом Ц402, общая площадь 177 кв.м. Полный комплект документаци Посилання на коментар Поділитися на інших сайтах More sharing options...
Виталий_Буча Опубліковано: 21 серпня 2018 Автор Поділитись Опубліковано: 21 серпня 2018 Двухэтажный дом Ц406, общая площадь 183 кв.м. Полный комплект проектной документации. Посилання на коментар Поділитися на інших сайтах More sharing options...
Виталий_Буча Опубліковано: 21 серпня 2018 Автор Поділитись Опубліковано: 21 серпня 2018 Двухэтажный дом Z24, полный комплект проектной документации 1 Посилання на коментар Поділитися на інших сайтах More sharing options...
Виталий_Буча Опубліковано: 21 серпня 2018 Автор Поділитись Опубліковано: 21 серпня 2018 Дом с мансардой Z70, полный комплект документации! Посилання на коментар Поділитися на інших сайтах More sharing options...
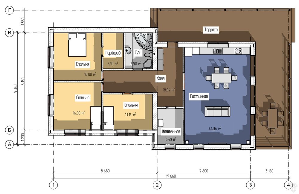
Виталий_Буча Опубліковано: 21 серпня 2018 Автор Поділитись Опубліковано: 21 серпня 2018 Одноэтажный дом с террасой Ц336, общая площадь 125 кв.м. Посилання на коментар Поділитися на інших сайтах More sharing options...
Виталий_Буча Опубліковано: 21 серпня 2018 Автор Поділитись Опубліковано: 21 серпня 2018 Двухэтажный дом ц357 с полным комплектом проектной документации - 2000 грн. Посилання на коментар Поділитися на інших сайтах More sharing options...
Рекомендовані повідомлення
Створіть акаунт або увійдіть у нього для коментування
Ви маєте бути користувачем, щоб залишити коментар
Створити акаунт
Зареєструйтеся для отримання акаунта. Це просто!
Зареєструвати акаунтУвійти
Вже зареєстровані? Увійдіть тут.
Увійти зараз