Виталий_Буча Опубліковано: 22 серпня 2018 Автор Поділитись Опубліковано: 22 серпня 2018 Двухэтажный дом с подвалом Ц413. Общая площадь 168 кв.м. Посилання на коментар Поділитися на інших сайтах More sharing options...
Виталий_Буча Опубліковано: 22 серпня 2018 Автор Поділитись Опубліковано: 22 серпня 2018 Ц413 Общая площадь 168 кв.м. Посилання на коментар Поділитися на інших сайтах More sharing options...
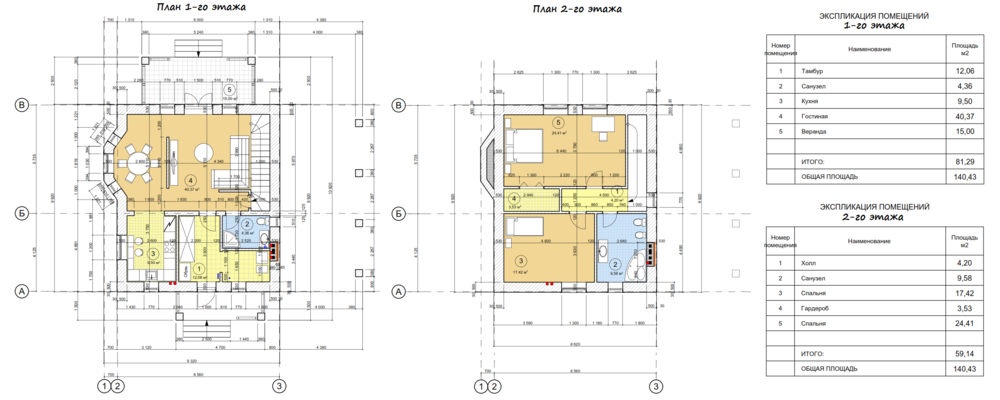
Виталий_Буча Опубліковано: 22 серпня 2018 Автор Поділитись Опубліковано: 22 серпня 2018 Дом с мансардой Ц408 Общая площадь 155 кв.м. Полный комплект документации с расчетами материалов. Посилання на коментар Поділитися на інших сайтах More sharing options...
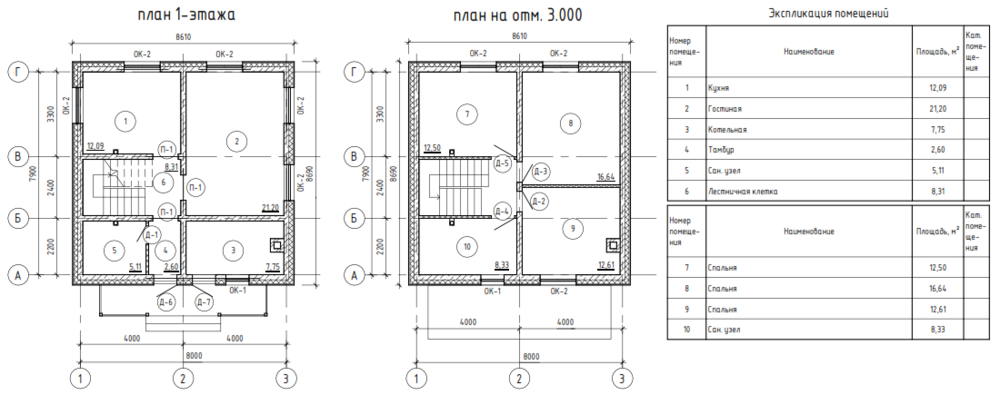
Виталий_Буча Опубліковано: 22 серпня 2018 Автор Поділитись Опубліковано: 22 серпня 2018 Небольшой дом с мансардой Ц363, общая площадь 140 кв.м. Посилання на коментар Поділитися на інших сайтах More sharing options...
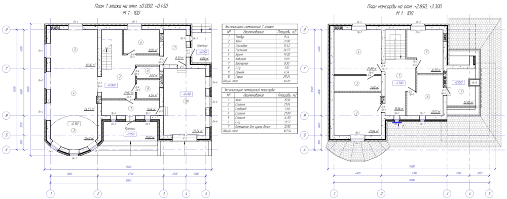
Виталий_Буча Опубліковано: 28 серпня 2018 Автор Поділитись Опубліковано: 28 серпня 2018 Проект дома с мансардой Ц387, общая площадь 250 кв.м. Посилання на коментар Поділитися на інших сайтах More sharing options...
Виталий_Буча Опубліковано: 4 вересня 2018 Автор Поділитись Опубліковано: 4 вересня 2018 Дом с мансардой ц331 Посилання на коментар Поділитися на інших сайтах More sharing options...
info_dim Опубліковано: 19 вересня 2018 Поділитись Опубліковано: 19 вересня 2018 Двухэтажный М117 Интересует этот проэкт. Посилання на коментар Поділитися на інших сайтах More sharing options...
DmitriyBerk Опубліковано: 26 вересня 2018 Поділитись Опубліковано: 26 вересня 2018 Добрый день. а проект "ласточка 113" проэкт есть akvilonpro.ua/ru/docs/proektu-domov/100-150-m2/proekt-kotedzha-lastochka-113-m2.html ? спасибо Посилання на коментар Поділитися на інших сайтах More sharing options...
Виталий_Буча Опубліковано: 27 вересня 2018 Автор Поділитись Опубліковано: 27 вересня 2018 Добрый день. а проект "ласточка 113" проэкт есть akvilonpro.ua/ru/docs/proektu-domov/100-150-m2/proekt-kotedzha-lastochka-113-m2.html ? Именно такого нет, но можем подобрать что-то похожее по размерам и планировке Посилання на коментар Поділитися на інших сайтах More sharing options...
Safrane Опубліковано: 27 вересня 2018 Поділитись Опубліковано: 27 вересня 2018 Скажите сколько стоит Проэкт z24 Посилання на коментар Поділитися на інших сайтах More sharing options...
Safrane Опубліковано: 28 вересня 2018 Поділитись Опубліковано: 28 вересня 2018 Двухэтажный дом Z24, полный комплект проектной документации Сколько стоит и что в проекте? Посилання на коментар Поділитися на інших сайтах More sharing options...
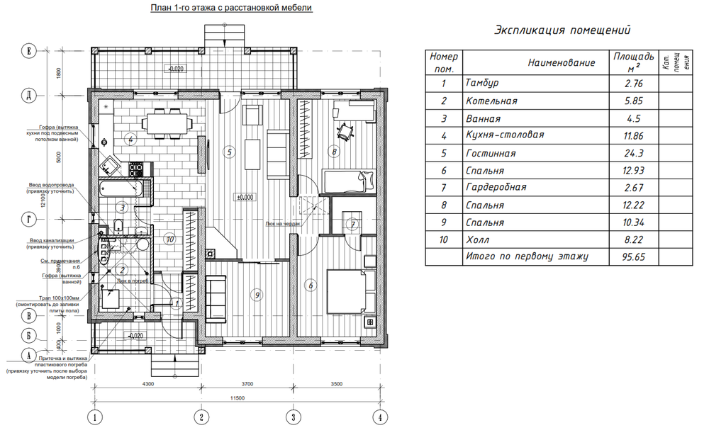
Виталий_Буча Опубліковано: 17 жовтня 2018 Автор Поділитись Опубліковано: 17 жовтня 2018 Одноэтажный дом Ц403, общая площадь 96 кв.м. Посилання на коментар Поділитися на інших сайтах More sharing options...
Виталий_Буча Опубліковано: 17 жовтня 2018 Автор Поділитись Опубліковано: 17 жовтня 2018 Дом с мансардой Ц398, с односкатной крышей, общая площадь 125 кв.м. Посилання на коментар Поділитися на інших сайтах More sharing options...
Виталий_Буча Опубліковано: 17 жовтня 2018 Автор Поділитись Опубліковано: 17 жовтня 2018 Одноэтажный каркасный дом Ц375, общая площадь 142 кв.м.. Полный комплект документации. Посилання на коментар Поділитися на інших сайтах More sharing options...
Виталий_Буча Опубліковано: 17 жовтня 2018 Автор Поділитись Опубліковано: 17 жовтня 2018 Сколько стоит и что в проекте? Проект состоит с архитектурного и строительного разделов, без инженерных коммуникаций, 30 страний формата А3 - 1500 ГРН. Посилання на коментар Поділитися на інших сайтах More sharing options...
Виталий_Буча Опубліковано: 23 жовтня 2018 Автор Поділитись Опубліковано: 23 жовтня 2018 Полный комплект проектной документации - 2000 грн. Посилання на коментар Поділитися на інших сайтах More sharing options...
Виталий_Буча Опубліковано: 25 жовтня 2018 Автор Поділитись Опубліковано: 25 жовтня 2018 Одноэтажный дом Ц172, общая площадь 79,4 кв.м Посилання на коментар Поділитися на інших сайтах More sharing options...
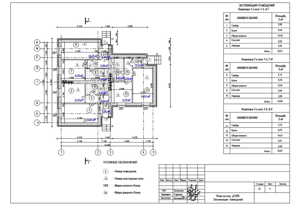
Виталий_Буча Опубліковано: 26 жовтня 2018 Автор Поділитись Опубліковано: 26 жовтня 2018 Дом на 2 семьи Ц206, общая площадь 198,5 кв.м. Полный комплект документации. Посилання на коментар Поділитися на інших сайтах More sharing options...
Виталий_Буча Опубліковано: 26 жовтня 2018 Автор Поділитись Опубліковано: 26 жовтня 2018 Трехквартирный дом для пансионатов, баз отдыха, гостинниц Ц269, общая площадь 100,9 кв.м., жилая площадь квартиры 40 кв.м. Посилання на коментар Поділитися на інших сайтах More sharing options...
Виталий_Буча Опубліковано: 29 жовтня 2018 Автор Поділитись Опубліковано: 29 жовтня 2018 Небольшая дача Ц379 Посилання на коментар Поділитися на інших сайтах More sharing options...
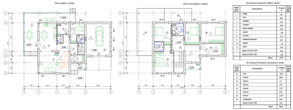
Виталий_Буча Опубліковано: 29 жовтня 2018 Автор Поділитись Опубліковано: 29 жовтня 2018 Двухэтажный дом Ц414, общая площадь 253 кв.м. Полный комплект документации (Архитектурный раздел, конструктивный раздел, инженерные коммуникации) Посилання на коментар Поділитися на інших сайтах More sharing options...
Toxin Опубліковано: 29 жовтня 2018 Поділитись Опубліковано: 29 жовтня 2018 Двухэтажный дом Ц402, общая площадь 177 кв.м. Полный комплект документаци Интересно где вы взяли этот проект??? Посилання на коментар Поділитися на інших сайтах More sharing options...
ZIZU Опубліковано: 7 листопада 2018 Поділитись Опубліковано: 7 листопада 2018 понравился проэкт Z177. Есть, что нибудь подобное ? Посилання на коментар Поділитися на інших сайтах More sharing options...
maxno Опубліковано: 17 листопада 2018 Поділитись Опубліковано: 17 листопада 2018 Добрый день, хотел бы преобрести проект одноэтажного дома 50-80 км с террасой , понравился z16 , но может ещё что-то посоветуете.хочу использовать как дачу, чтобы не дорого обошёлся 0981151515 Посилання на коментар Поділитися на інших сайтах More sharing options...
Виталий_Буча Опубліковано: 19 листопада 2018 Автор Поділитись Опубліковано: 19 листопада 2018 Добрый день, хотел бы преобрести проект одноэтажного дома 50-80 км с террасой , понравился z16 , но может ещё что-то посоветуете.хочу использовать как дачу, чтобы не дорого обошёлся 0981151515 Добрый день! Есть такой проект, варианты небольших домов отправил Вам в личку. Посилання на коментар Поділитися на інших сайтах More sharing options...
Рекомендовані повідомлення
Створіть акаунт або увійдіть у нього для коментування
Ви маєте бути користувачем, щоб залишити коментар
Створити акаунт
Зареєструйтеся для отримання акаунта. Це просто!
Зареєструвати акаунтУвійти
Вже зареєстровані? Увійдіть тут.
Увійти зараз