Перейти до публікації
Пошук в
  • Додатково...
Шукати результати, які містять...
Шукати результати в...

Помогите с выбором

xsuzanna

Рекомендовані повідомлення

Добрый день уважаемые форумчане!!!

 

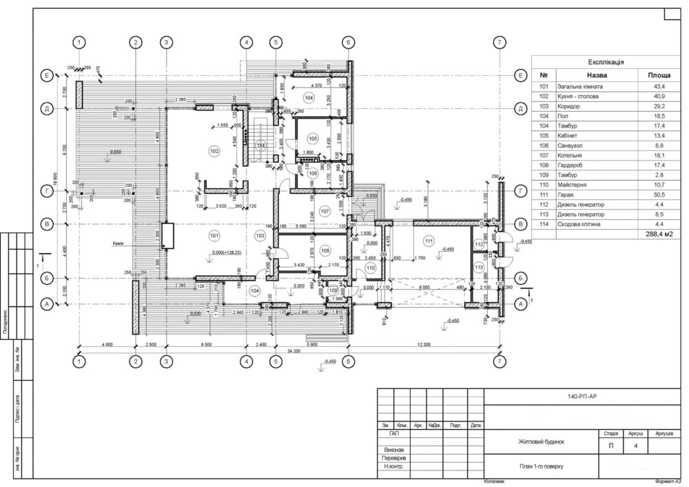
Помогите пожалуйста подобрать скорее всего закрытую топку (после прочтения бесконечных споров сторонников открытых и закрытых каминов, все таки последние, лично для меня подчеркну, - вели дискуссию более аргументированно) для воплощения в жизнь фантазий нашего архитектора и дизайнера. Фантазии прикрепляю. Заранее благодарю.

 

P.S. Понимаю, что мой выбор с размерами по ширине 2300 будет очень ограничен. Тогда посоветуйте что делать???

 

P.S. Также понимаю, что стоимость воплощения этих фантазий будет соответствующая.

1595180796__Page_05.thumb.jpg.da0c0692c290df969360e2b4bfe4e4ae.jpg

33.thumb.jpg.66dd5bab22214ceb6f29d4a8b8ea094b.jpg

676671221_3.jpg.c0d04712d66a361d7772e128bd3c69cf.jpg

1829409765_44.jpg.e7468c63c5f57863cd81ffb2cac0d725.jpg

1382949370_55.jpg.98881d1d2be8e7766bde8b3322766d6e.jpg

1196390314_66.jpg.9386a27dc16317ca183dcb5766a07cef.jpg

Змінено користувачем xsuzanna
Посилання на коментар
Поділитися на інших сайтах

Добрый день уважаемые форумчане!!!

 

Помогите пожалуйста подобрать скорее всего закрытую топку (после прочтения бесконечных споров сторонников открытых и закрытых каминов, все таки последние, лично для меня подчеркну, - вели дискуссию более аргументированно) для воплощения в жизнь фантазий нашего архитектора и дизайнера. Фантазии прикрепляю. Заранее благодарю.

 

P.S. Понимаю, что мой выбор с размерами по ширине 2300 будет очень ограничен. Тогда посоветуйте что делать???

 

P.S. Также понимаю, что стоимость воплощения этих фантазий будет соответствующая.

 

Очень долго, что-то подбирать через форум. Вы бы обратились в салон, чтобы можно было предложить Вам варианты максимально приближенные к фантазиям Вашего дизайнера. Пока что, это больше напоминает изображение биокамина!!! Schmid делает топки по спецразмерам, но для просчета стоимости, надо сначала обсудить детали и понять, что же Вам все-таки по душе и насколько камин для Вас сугубо эстетическая вещь??? Просто в таких размерах (как у Вас в проекте) топки совсем не функциональны (не смотря на высокую стоимость), т.е. после обговаривания дизайна и пожеланий можно понять предлагать Вам спецразмер или сойтись на максимально доступном стандарте и обыграть его за счет дизайна.

  • Лайк 1
Посилання на коментар
Поділитися на інших сайтах

Очень долго, что-то подбирать через форум. Вы бы обратились в салон, чтобы можно было предложить Вам варианты максимально приближенные к фантазиям Вашего дизайнера. Пока что, это больше напоминает изображение биокамина!!! Schmid делает топки по спецразмерам, но для просчета стоимости, надо сначала обсудить детали и понять, что же Вам все-таки по душе и насколько камин для Вас сугубо эстетическая вещь??? Просто в таких размерах (как у Вас в проекте) топки совсем не функциональны (не смотря на высокую стоимость), т.е. после обговаривания дизайна и пожеланий можно понять предлагать Вам спецразмер или сойтись на максимально доступном стандарте и обыграть его за счет дизайна.

 

Спасибо за ответ! Обязательно обращусь в Ваш салон на следующей неделе, но т.к. сейчас нахожусь не в Киеве, попробую написать здесь еще несколько вопросов, чтобы облегчить свой выбор в дальнейшем.

По порядку - камин для нас сугубо эстетическая вещь, речь идет только о получении удовольствия от созерцания горящих дров и не о чем другом... отапливаться им никто не собирается. Единственное всегда хотелось созерцать открытый огонь, но как я уже писала Выше - начитавшись всех За и Против открытых каминов пришла к Выводу, что лучше прикрыть все это дело стеклом. Но подскажите пожалуйста, правильно ли я понимаю, что закрытый камин можно будет топить и с открытым стеклом???

 

Сегодня полазила по интернету и нашла несколько моделей которые подходят по размерам, теперь бы еще разобраться, что они из себя представляют...

Если идти по пути приближения к максимальным, но стандартным размерам:

1. Piazetta MA 265 SL

2. BRUNNER Architektur 53/166

3. Axis AX F 1600

4. Spartherm Prestige Varia B-150h

 

А вот несколько вариантов, без жертв по размерам:

1. Focus Neofocus 1800 (Но он открытый)

2. Focus Gigafocus 1900 или 1700

3. Schmid под заказ :)))

Посилання на коментар
Поділитися на інших сайтах

Спасибо за ответ! Обязательно обращусь в Ваш салон на следующей неделе, но т.к. сейчас нахожусь не в Киеве, попробую написать здесь еще несколько вопросов, чтобы облегчить свой выбор в дальнейшем.

По порядку - камин для нас сугубо эстетическая вещь, речь идет только о получении удовольствия от созерцания горящих дров и не о чем другом... отапливаться им никто не собирается. Единственное всегда хотелось созерцать открытый огонь, но как я уже писала Выше - начитавшись всех За и Против открытых каминов пришла к Выводу, что лучше прикрыть все это дело стеклом. Но подскажите пожалуйста, правильно ли я понимаю, что закрытый камин можно будет топить и с открытым стеклом???

 

Сегодня полазила по интернету и нашла несколько моделей которые подходят по размерам, теперь бы еще разобраться, что они из себя представляют...

Если идти по пути приближения к максимальным, но стандартным размерам:

1. Piazetta MA 265 SL

2. BRUNNER Architektur 53/166

3. Axis AX F 1600

4. Spartherm Prestige Varia B-150h

 

А вот несколько вариантов, без жертв по размерам:

1. Focus Neofocus 1800 (Но он открытый)

2. Focus Gigafocus 1900 или 1700

3. Schmid под заказ :)))

 

У Вас по картинкам, кроме последней камин изображен с трехсторонней топкой, а указанные выше с прямым стеклом. Правильно ли я понял, что подобрать Вам надо с прямым стеклом, но максимальную по размерам??? Напишите в личку Ваш адрес электронной почты и мы пришлем Вам предложение с описанием преимуществ и недостатков каждой модели.

Piazzetta в перечисленном списке "лишняя", почему можно почитать на форуме или посмотреть ее в салоне и все станет ясно.

  • Лайк 1
Посилання на коментар
Поділитися на інших сайтах

 

Сегодня полазила по интернету и нашла несколько моделей которые подходят по размерам, теперь бы еще разобраться, что они из себя представляют...

Если идти по пути приближения к максимальным, но стандартным размерам:

1. Piazetta MA 265 SL

2. BRUNNER Architektur 53/166

3. Axis AX F 1600

4. Spartherm Prestige Varia B-150h

 

А вот несколько вариантов, без жертв по размерам:

1. Focus Neofocus 1800 (Но он открытый)

2. Focus Gigafocus 1900 или 1700

3. Schmid под заказ :)))

 

Не согласен с использованием «широкоформатной топки» из данного списка, (Piazetta совсем не из данного списка) принципиально:

  1. Вы не эксплуатировали камины с такой шириной. А «подводный камень» в том, что при эксплуатации топки шириной более метра вы не сможете поддерживать высокую температуру во всей топке. Что приведет к тому, что центральная часть стекла будет чистой, а стекло по углам и внутренняя часть топки – черными (этот негатив присутствует у всех больших топок, тем более топок, сделанных «под размер»). Даже вемикулитовые свойства стенок у топок Шмид не спасут от копоти. И еще – средние размеры поленьев 40-45 см, а теперь представьте, как в 150 см топку укладываете три костра. Топить метровыми дровами точно не пожелаете:).
  2. Если установить такую топку (любую из списка), то короб будет иметь глубину более 60 см – очень некрасиво! (глубокая «колонна» между окон)
  3. Дизайнер сделал визуализацию под …. газовый камин или имитацию – биокамин, где большая ширина зоны горения. Но если Вы желаете именно дровяной камин, то рассмотрел бы другие топки.

Не рассматривал бы ни одну из перечисленных топок для этого проекта.

 

На мой взгляд, более интересно бы смотрелись топки с трехсторонним стеклом. Некоторые проекты с такими топками – на фотографиях. Плюс стенки возле боковых граней топки – черного цвета создадут эффект максимально приближенный к визуализации. Отличие только в том, что участок где будут сгорать дрова – не более 90 см (если больше - опять же получите негативную эстетическую составляющую от черного стекла).

 

Мой список: Austroflamm 71x51 S3 (если будете эксплуатировать топку в закрытом режиме и технически подходит дымоход ф180-200 мм), можно еще немцев (Spartherm, Scmid но у них не цельное стекло).

Еще можно посмотреть на «Французов» (Atra, Axis, Totem, ..) – если пожелаете эксплуатировать иногда с поднятым стеклом (очень непродолжительно), но технически – дымоход уже от 250 мм.

 

Под данный проект я бы рассматривал трехсторонние топки с шириной не более 90 см.

secondColumn.jpg.526aa4042905329c308189ca9e99e704.jpg

954906416_ARTE-3RL-60hinterio.jpg.ee1931def038a4afd1cea4e44eb7732d.jpg

kal-fire_0310_02.thumb.jpg.726ae66525ca214774707cdcef04948e.jpg

heat_pure_65.jpg.4d0280e2e5cafc687a6c64a6b8c82b8f.jpg

  • Лайк 1
Посилання на коментар
Поділитися на інших сайтах

[*]Вы не эксплуатировали камины с такой шириной. А «подводный камень» в том, что при эксплуатации топки шириной более метра вы не сможете поддерживать высокую температуру во всей топке. Что приведет к тому, что центральная часть стекла будет чистой, а стекло по углам и внутренняя часть топки – черными (этот негатив присутствует у всех больших топок, тем более топок, сделанных «под размер»). Даже вемикулитовые свойства стенок у топок Шмид не спасут от копоти. И еще – средние размеры поленьев 40-45 см, а теперь представьте, как в 150 см топку укладываете три костра. Топить метровыми дровами точно не пожелаете:).

 

Вы абсолютно правы - опыта эксплуатации камина с такой шириной у нас нет. Большое спасибо, что заранее предупредили о подводных камнях со стеклом. Если не уменьшать ширину топки и не рассматривать газовый камин - может ли быть решением этой проблемы покупка открытого камина - Neofocus 1800. И какие минусы будут в этом случае :)))

 

[*]Если установить такую топку (любую из списка), то короб будет иметь глубину более 60 см – очень некрасиво! (глубокая «колонна» между окон)

 

Мы делали визуализацию и 60 см. смотрелось в принципе нормально, т.к. эта "колонна" частично была вынесена из помещения.

 

Не рассматривал бы ни одну из перечисленных топок для этого проекта.

 

На мой взгляд, более интересно бы смотрелись топки с трехсторонним стеклом. Некоторые проекты с такими топками – на фотографиях. Плюс стенки возле боковых граней топки – черного цвета создадут эффект максимально приближенный к визуализации. Отличие только в том, что участок где будут сгорать дрова – не более 90 см (если больше - опять же получите негативную эстетическую составляющую от черного стекла).

 

Трехсторонняя топка - конечно очень красивый вариант, но т.к. ширину колонны уменьшить уже не получится (конструктивно) придется тогда наверное рассмотреть варианты с уменьшением ширины топки, и свободным местом с одной стороны например под дрова или тоже самое но двух сторонняя топка. Попрошу в понедельник дизайнера чтобы он выдал картинку с таким вариантом...

 

Еще можно посмотреть на «Французов» (Atra, Axis, Totem, ..) – если пожелаете эксплуатировать иногда с поднятым стеклом (очень непродолжительно), но технически – дымоход уже от 250 мм.

 

А можете подсказать почему можно эксплуатировать очень непродолжительно???

 

Добавлено через 9 минут

У Вас по картинкам, кроме последней камин изображен с трехсторонней топкой, а указанные выше с прямым стеклом. Правильно ли я понял, что подобрать Вам надо с прямым стеклом, но максимальную по размерам???

 

Я думаю, что топка с трехсторонним стеклом таких размеров - физически не возможна. А теперь после комментариев kammeo - начинаю сомневаться в правильности выбора и топки с прямым стеклом такого размера...

 

Адрес электронной почты написала Вам в личку, спасибо большое за участие.

Посилання на коментар
Поділитися на інших сайтах

может ли быть решением этой проблемы покупка открытого камина - Neofocus 1800. И какие минусы будут в этом случае :)))

Увы, но практики эксплуатации данной модели нет, так что подсказать не смогу.

 

Мы делали визуализацию и 60 см. смотрелось в принципе нормально, т.к. эта "колонна" частично была вынесена из помещения.

За счет глубины топки плоскость короба над камином будет от плоскости стены «выезжать» в зал более чем на 60 см. «Выехать» на улицу у Вас не получится – для камина, расположенного возле наружной стены, необходима хорошая термоизоляция. Еще один нюанс – конфигурация и размещение дымохода.

 

Трехсторонняя топка - конечно очень красивый вариант, но т.к. ширину колонны уменьшить уже не получится (конструктивно) придется тогда наверное рассмотреть варианты с уменьшением ширины топки, и свободным местом с одной стороны например под дрова или тоже самое но двух сторонняя топка. Попрошу в понедельник дизайнера чтобы он выдал картинку с таким вариантом...

Как по мне, все-таки трехсторонняя предпочтительнее.

 

А можете подсказать почему можно эксплуатировать очень непродолжительно???

По поводу эксплуатации камина в открытом режиме можете прочитать два мнения:

www.stroimdom.com.ua/forum/showpost.php?p=2339257&postcount=434

www.stroimdom.com.ua/forum/showpost.php?p=2340844&postcount=436

  • Лайк 1
Посилання на коментар
Поділитися на інших сайтах

Увы, но практики эксплуатации данной модели нет, так что подсказать не смогу.

 

Это открытый камин с заводской комплектацией откидной и съёмной сетчатой дверцей.

А можете еще ткнуть носом в Ваше мнение по поводу открытых каминов, думаю это уже наверняка обсуждалось тут... или в мнение которое Вам близко. Заранее благодарю!

Посилання на коментар
Поділитися на інших сайтах

Я думаю, что топка с трехсторонним стеклом таких размеров - физически не возможна. А теперь после комментариев kammeo - начинаю сомневаться в правильности выбора и топки с прямым стеклом такого размера...

 

Адрес электронной почты написала Вам в личку, спасибо большое за участие.

 

В понедельник буду на работе и отправим Вам варианты (адрес получил).

Что касается топок, то есть и трехсторонние,только с перегородками (см фото).

Принципиально скажу, что:

1) однозначно я бы не смотрел в сторону открытых топок, темболее таких размеров...не хочу обьяснять почему, так как начнется новая волна ругани между двумя лагерями, но при встрече аргументировать свою точку зрения могу :)

2) согласен с Валерой kammeо касательно топок больших размеров, а потому изначально спрашивал какие цели ставите перед камином, не возможно от таких топок получить качественное горение, чистое стекло и т.д.

65.jpg.9c4e5ee55fca42338d68274810e84701.jpg

98.jpg.73b480c947279c485c9af4d58af39c20.jpg

Посилання на коментар
Поділитися на інших сайтах

Добрый день уважаемые форумчане!!!

 

Помогите пожалуйста подобрать скорее всего закрытую топку (после прочтения бесконечных споров сторонников открытых и закрытых каминов, все таки последние, лично для меня подчеркну, - вели дискуссию более аргументированно) для воплощения в жизнь фантазий нашего архитектора и дизайнера. Фантазии прикрепляю. Заранее благодарю.

 

P.S. Понимаю, что мой выбор с размерами по ширине 2300 будет очень ограничен. Тогда посоветуйте что делать???

 

P.S. Также понимаю, что стоимость воплощения этих фантазий будет соответствующая.

 

Spartherm делает любые размеры. Но если огромные то футеруют вермикулитом чтоб облегчить массу.

Посилання на коментар
Поділитися на інших сайтах

Створіть акаунт або увійдіть у нього для коментування

Ви маєте бути користувачем, щоб залишити коментар

Створити акаунт

Зареєструйтеся для отримання акаунта. Це просто!

Зареєструвати акаунт

Увійти

Вже зареєстровані? Увійдіть тут.

Увійти зараз
×
×
  • Створити...