Перейти до публікації
Пошук в
  • Додатково...
Шукати результати, які містять...
Шукати результати в...

Каркасно-щитовые, панельные дома

faraon

Рекомендовані повідомлення

Добавить в УШП еще 100-150 мм ЭППС и почти "пассивным" можно называть. :)

я изначально рассматривал такой вариант, но потом отказался, потому что в моём проекте будет предусмотрен водяной тёплый пол и там будет ещё 50мм ЭППС....

 

он и так почти "пассивный дом" получается)))))))), хотя мне больше нравиться формулировка "дом с высокими нормами энергосбережения", но то такэ...ИМХО

Посилання на коментар
Поділитися на інших сайтах

Стоимость фундамента УШП

 

включает ВЕСЬ материал:

  • Дренажное основание (песок, щебень)
  • ПСБ-платформу (ПСБ-35)
  • ВЕСЬ комплект крепежа и гидроизоляции
  • Арматуру
  • бетон

ВСЮ работу и расходы (транспортные, накладные....)

 

***расчёты приведены на 10.03.2015г

УШП-11.03.2015.xls

1348191988_-.thumb.jpg.418d860d732dc56eb03f73e0b95e120f.jpg

472389538_.thumb.jpg.d6031ec90fba22c782d63d0a6533f4a9.jpg

Посилання на коментар
Поділитися на інших сайтах

Комплектация предложения:

 

Фундамент – свайный (столбчатый)

Общая площадь проекта – 24 кв.м, террасы – 12 кв.м.

Отделка:

• Терраса - дерево

• Пол – дерево (доска пола)

• Внутренних стен – дерево (имитация под брус)

• Потолок – дерево (вагонка)

• Фасад – дерево (имитация под брус)

Утепление – целлюлозный утеплитель Юнизол:

• Пол – 200мм

• Наружные стены – 150мм

• Внутренние перегородки – 100мм

• Потолок – 200мм

Кровля – битумная черепица ТехноНИКОЛЬ (Шинглас)

Окна – металлопластик

Двери: Входная – металл, Внутренние – дерево (массив)

Электросети: Провод ВВГ, Щитовая с дифавтоматами, Фурнитура (розетки, выключатель, светильники)

Вентиляция: Кухня, Санузел

 

 

Цена предложения 9000,0 у.е.** (1 у.е. = 21,00 грн)

01.thumb.jpg.0d21cacf46bec2d9c8df1fa8af5f7abc.jpg

02.thumb.jpg.9c9ce93a607b0d23d8f7d766f138801b.jpg

03.thumb.jpg.0189b5c93a62653c9cd36a450613d1c4.jpg

04.thumb.jpg.91fdea7064ba433934268e889203b2a0.jpg

Посилання на коментар
Поділитися на інших сайтах

  • 2 тижні потому...

Комплектация предложения:

 

Фундамент – УШП (утеплённая «шведская плита») с увеличенной защитой фундаментной плиты по торцевой части.

 

Наружные стены с увеличенной толщиной утепления (целлюлозный утеплитель Юнизол, толщиной 250мм) и дополнительной теплоизоляцией по фасаду (ПСБ-С, толщиной 100мм) – сопротивление теплопередачи ограждающей конструкции R=7.98м2•°С/Вт

 

Внутренние перегородки с увеличенной толщиной утепления (целлюлозный утеплитель Юнизол, толщиной 150мм)

 

Платформы перекрытия с увеличенной толщиной теплоизоляции (целлюлозный утеплитель Юнизол, толщиной 400мм)

 

Кровля – угол наклона кровли 24°, покрытие: битумная черепица, подшивка: соффит-панели

 

Окна – 5-и камерный профиль, 2-х камерный стеклопакет с функцией энергосбережения + солнцезащита (Silverstar Selekt)

 

Наружные двери – входная: с двойной герметизацией и теплозащитой + доп.дверь изнутри (м/п), террасная: металлопластик с функцией энергосбережения (Silverstar ENplus)

 

Фасад – 100% готов - декоративная штукатурка + деревянные элементы декора

 

Внутренняя поверхность под отделку – гипсокартон в 2 слоя без шпаклёвочных работ

 

Электросети – проложены и сведены в электрощитовую

 

Система вентиляции – полная система вентканалов с выводом в техническую комнату

 

Система канализации – полностью разведена и выведена за пятно фундамента

 

Терраса и входная группа – 100% готова, отделка: лиственница

 

 

Цена предложения 30000,0$

 

больше информации: grfaraon.wix.com/derevokarkas#!-/cj1x

01.thumb.jpg.e721d46c4211737e3421ef13937f2d99.jpg

02.thumb.jpg.288986f238082a45dee6733f9f0745bb.jpg

03.thumb.jpg.0cc0ca01130f6c0849b245278038e72d.jpg

04.thumb.jpg.1ba6e10e7d61c8016ff5d0d924c85de8.jpg

план .pdf

Змінено користувачем faraon
Посилання на коментар
Поділитися на інших сайтах

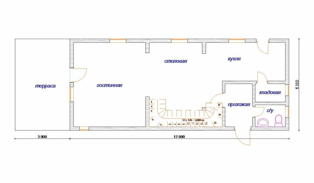
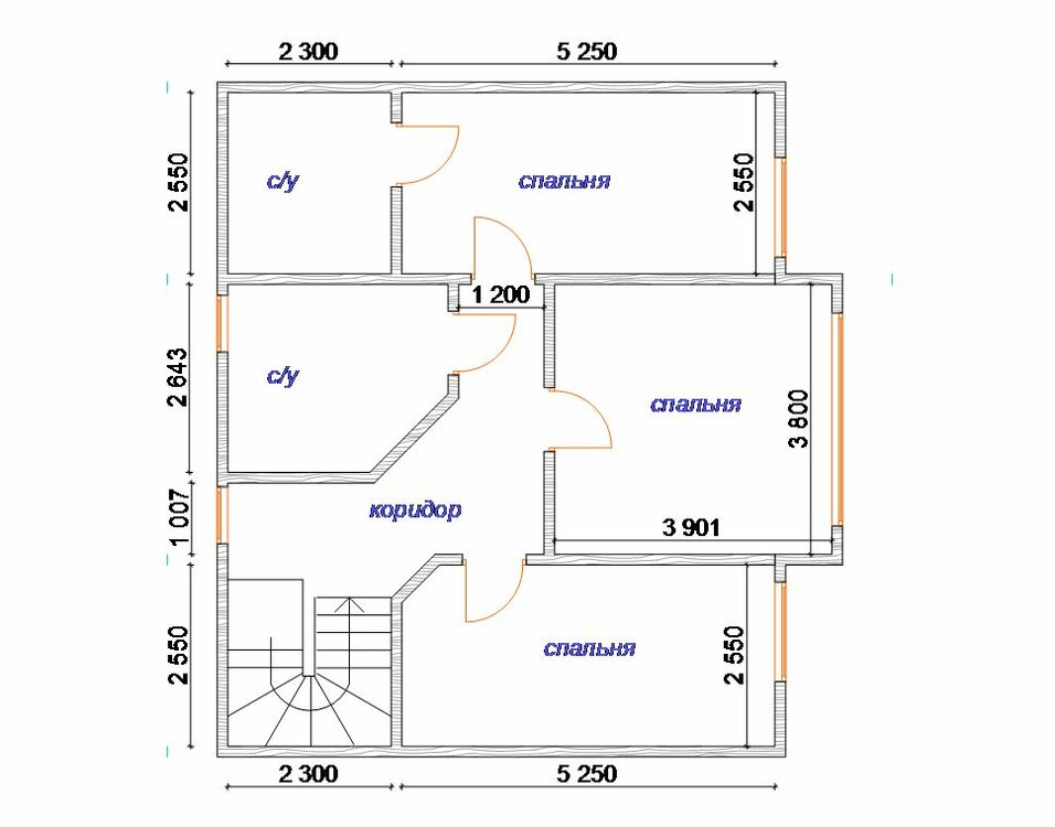
Комплектация предложения:

 

Фундамент – УШП (утеплённая "шведская плита")

Общая площадь проекта – 98 кв.м, террасы – 21 кв.м., балкона - 21 кв.м.

Отделка:

• Терраса, балкон - дерево

• Пол – 1 этаж: кафель, 2 этаж: дерево (доска пола)

• Внутренних стен и потолка – дерево (вагонка)

• Фасад – дерево (имитация под брус)

Утепление – целлюлозный утеплитель Юнизол:

• Наружные стены – 150мм

• Внутренние перегородки – 100мм

• Потолок – 300мм

• Наклонные стенки мансарды – 200мм

Кровля – битумная черепица ТехноНИКОЛЬ (Шинглас)

Окна – металлопластик

Двери: Входная – металл, Внутренние – дерево (массив), Террасная и балконная - металлопластик

Электросети: Провод ВВГ, Щитовая с дифавтоматами, Фурнитура (розетки, выключатель, светильники)

Вентиляция: Кухня, Санузел

 

 

Цена предложения 28000,0 у.е. (1 у.е. = 24,00 грн)

04.thumb.jpg.054ebdedcd7bd53c95cc0e1088eaad3b.jpg

02.thumb.jpg.f470c7061f57c8abe2a3a65b9ae96bc1.jpg

01.thumb.jpg.9d034d223993d7ff80124f8aa96a640c.jpg

03.thumb.jpg.f1345debe23205b887e1ce57f8f55f4c.jpg

план 1 эт.pdf

план 2 эт.pdf

разрез.pdf

Посилання на коментар
Поділитися на інших сайтах

Комплектация предложения:

 

Фундамент – УШП (утеплённая "шведская плита")

Общая площадь проекта – 98 кв.м,

Отделка:

• Внутренних стен и потолка – ГКЛ (в 2 слоя без шпаклёвки)

• Фасад – декоративная штукатурка (на вентилируемой основе)

Утепление – целлюлозный утеплитель Юнизол:

• Наружные стены – 150мм

• Внутренние перегородки – 100мм

• Потолок – 300мм

• Наклонные стенки мансарды – 200мм

Кровля – битумная черепица ТехноНИКОЛЬ (Шинглас)

Окна – металлопластик

Двери: Входная – металл, Террасная - металлопластик

Электросети: Провод ВВГ, Щитовая с дифавтоматами,

Вентиляция: Кухня, Санузел

 

 

Цена предложения 22000,0 у.е. (1 у.е. = 24,00 грн)

01.thumb.jpg.1ea6dba8ba9f404982f286421e0e1060.jpg

02.thumb.jpg.723c62b1edcd74d0fe8e466b1582847a.jpg

03.thumb.jpg.d5c2e96a58698f910ead6e93e8705f01.jpg

04.thumb.jpg.c9d629e21aecfe8a45870cc9a9c8e640.jpg

126233255_1.thumb.jpg.b51892f5d2a66162e8806f027bf1be81.jpg

118301118_2.thumb.jpg.820afed5760fdcde4780aea5e93e7647.jpg

733308761_.thumb.jpg.35c041e90de7d30b5ff464731b5205d9.jpg

Посилання на коментар
Поділитися на інших сайтах

  • 2 тижні потому...

Комплектация предложения:

 

Фундамент – УШП (утеплённая "шведская плита")

Общая площадь проекта – 120 кв.м,

Отделка:

• Внутренних стен и потолка – ГКЛ (в 2 слоя без шпаклёвки)

• Фасад – декоративная штукатурка (на вентилируемой основе)

Утепление – целлюлозный утеплитель Юнизол:

• Наружные стены – 150мм

• Внутренние перегородки – 150мм

• Потолок – 300мм

• Наклонные стенки мансарды – 250мм

Кровля – битумная черепица ТехноНИКОЛЬ (Шинглас)

Окна – металлопластик

Двери: Входная – металл, Террасная, балконная - металлопластик

Электросети: Провод ВВГ, Щитовая с дифавтоматами,

Вентиляция: Кухня, Санузел

 

Цена предложения 27000,0 у.е. (1 у.е. = 24,00 грн)

01.thumb.jpg.36d591ad6ee71cd5279d69e436efc71f.jpg

02.thumb.jpg.6990d26e9730ca6d8d771a73f49d5034.jpg

03.thumb.jpg.ecffd3ca4c76244afffea5b7d8143dc0.jpg

05.thumb.jpg.c9f9b8a1a1c8783f3a3744a956ae2ac8.jpg

468899621_1.thumb.jpg.dde4a9a9e77778d06a939557778f0108.jpg

450551346_2.thumb.jpg.8e16b6e136d6715aff1fa8a83b6094d6.jpg

662935828_.thumb.jpg.3a343c0ad5a8832f0446e4518c47ae98.jpg

Посилання на коментар
Поділитися на інших сайтах

  • 1 місяць потому...

Комплектация предложения:

 

Фундамент – УШП (утеплённая "шведская плита")

Общая площадь проекта – 2040 кв.м,

Отделка:

• Внутренних стен и потолка – ГКЛ (в 2 слоя без шпаклёвки)

• Фасад – декоративная штукатурка (на не вентилируемой основе)

Утепление – целлюлозный утеплитель Юнизол:

• Наружные стены – 200мм + фасад ПСБ-100мм

• Внутренние перегородки – 150мм

• Потолок – 300мм

• Наклонные стенки мансарды – 300мм

Кровля – битумная черепица ТехноНИКОЛЬ (Шинглас)

Окна – металлопластик

Двери: Входная, террасная, балконная - металлопластик

Электросети: Провод ВВГ, Щитовая с дифавтоматами,

Вентиляция: Кухня, Санузел

 

Цена предложения 50000,0 у.е. (1 у.е. = 22,00 грн)

01.thumb.jpg.19689802a09b72af9cb8a6885b7f50cf.jpg

02.thumb.jpg.effb3811725457654b2af9e47fbbc200.jpg

03.thumb.jpg.07409587b3f399cd56bebabb8409667e.jpg

04.thumb.jpg.faca95d9f54a005065f86f036919a73a.jpg

05.thumb.jpg.6f9ebeb05461dae2c740793b64ed5d52.jpg

06.thumb.jpg.da4133f561b9d306e760bcc4ea438e26.jpg

план 1.pdf

план 2.pdf

разрез.pdf

Посилання на коментар
Поділитися на інших сайтах

Комплектация предложения:

 

Фундамент – УШП (утеплённая "шведская плита")

Общая площадь проекта – 200 кв.м,

Отделка:

• Внутренних стен и потолка – ГКЛ (в 2 слоя без шпаклёвки)

• Фасад – декоративная штукатурка (на не вентилируемой основе)

Утепление – целлюлозный утеплитель Юнизол:

• Наружные стены – 150мм + фасад ПСБ-100мм

• Внутренние перегородки – 150мм

• Потолок – 300мм

• Наклонные стенки мансарды – 250мм

Кровля – битумная черепица ТехноНИКОЛЬ (Шинглас)

Окна – энергоэффективные, металлопластик

Двери: Входная, террасная, балконная - энергоэфективные, металлопластик

Электросети: Провод ВВГ, Щитовая с дифавтоматами,

Вентиляция: Кухня, Санузел

 

Цена предложения 50000,0 у.е. (1 у.е. = 22,00 грн)

01.thumb.jpg.2d2e4dabad35d7f8e3a7688f546e78f0.jpg

02.thumb.jpg.df9f2d79be9dc09ad8e845e3d0c4ba14.jpg

04.thumb.jpg.8b1817d64ee0b2b2ecd53f16b9ca069d.jpg

05.thumb.jpg.25c3a7434c83006cc988f731bb606d87.jpg

06.thumb.jpg.06f3949dd196bdf75eaccc16eaa3810a.jpg

07.thumb.jpg.e14cdde65ee9d5c6f8c5591a3573d1af.jpg

375595418_1.thumb.jpg.538766184974e1567c006fe680e6f352.jpg

276885102_2.thumb.jpg.17786f4640b9cf1ad386261d467fc209.jpg

Посилання на коментар
Поділитися на інших сайтах

  • 2 місяці потому...

За основу был взят проект z47 (серия проектов z500)

Комплектация предложения:

 

Фундамент – УШП (утеплённая "шведская плита")

Общая площадь проекта – 156 кв.м,

Отделка:

• Внутренних стен и потолка – ГКЛ (в 2 слоя без шпаклёвки)

• Фасад – декоративная штукатурка + дерево

Утепление – целлюлозный утеплитель Юнизол:

• Наружные стены – 150мм

• Внутренние перегородки – 100-150мм

• Потолок – 250мм

• Наклонные стенки мансарды – 200мм

Кровля – битумная черепица ТехноНИКОЛЬ (Шинглас)

Окна – энергоэффективные, металлопластик

Двери: Входная - металлическая, террасная - энергоэфективные, металлопластик

Электросети: Провод ВВГ, Щитовая с дифавтоматами,

Вентиляция: Кухня, Санузел

 

Цена предложения 37000,0 у.е. (1 у.е. = 22,00 грн)

05.thumb.jpg.ce330e643a7e3444e6a273af92bddaad.jpg

06.thumb.jpg.acbd853a6f4792cd08e77902a555af38.jpg

01.thumb.jpg.dcc126f9df30947952046ba072f54044.jpg

02.thumb.jpg.25fa18970859eb9f46aa682a04dc12a9.jpg

03.thumb.jpg.366ddb1c1b7938a77de739a90a25dc8a.jpg

04.thumb.jpg.a18615d3e03b8a7f317a30b497934fec.jpg

1023743195_1.thumb.jpg.0478a5d5fd47debbf9680c7a56ecf602.jpg

1794864752_2.thumb.jpg.2959298104901dd98cd5fe6461f2d0c5.jpg

1691788611_.thumb.jpg.3d397999fe9365fbf44c29b445db5163.jpg

Посилання на коментар
Поділитися на інших сайтах

  • 2 місяці потому...
  • 4 місяці потому...

проект под кодовым названием "Квартирный вольер"

 

контрольная сборка - доставка - установка - испытания домочадцами))))))

02.thumb.jpg.969f223cfd6f5acb39101a5e7871bba3.jpg

05.thumb.jpg.7845024235f7693e8f5c19218847f0bd.jpg

7f5e05ae7eb6c75a75bdd8301a1343affc237405bda3b0a23296daac93121a1c.thumb.jpg.7940e9fe4e50dc96960273827d934a32.jpg

08.thumb.jpg.5a7b6721e0b3383e68f27f186d92b601.jpg

09.thumb.jpg.9bdf22c4c00a0130203ceda6260da0b6.jpg

10.thumb.jpg.6531886b79606221136009791455f07c.jpg

Посилання на коментар
Поділитися на інших сайтах

тамбур в "квест-комнату" - тамбур с секретом

 

испытания изделия - изделие в комнате - идут тесты.....

12485928_1736424123246172_2479680052296237365_o.thumb.jpg.b7807a7ae87a3cd8725375e01d799023.jpg

12489364_1736424149912836_7508539242792284733_o.thumb.jpg.3989d244fe5478f8ebaf87719e8df0f3.jpg

12525212_1736424206579497_2262108429734676868_o.thumb.jpg.e2ff480267f7923abdc2e3458f1f7143.jpg

12764419_1114261091958895_9164424590035584366_o.thumb.jpg.a3a624c329fa00a562c5564c242c9470.jpg

12768291_1114296545288683_1121549347120975762_o.thumb.jpg.79ba50be1a4cd7ee9c1fb58eb72bad24.jpg

12771583_1114296531955351_5145633412980480701_o.thumb.jpg.57299d4ebb66a38c29b6610285303551.jpg

12771751_1114296538622017_4063055954276076513_o.thumb.jpg.cf7e680622473a09c7782352bd1e03b1.jpg

12779188_1114261098625561_599119036719131620_o.thumb.jpg.90aa981bbd753ecc709e9c4791211096.jpg

12783653_1114261085292229_2334551185941755802_o.thumb.jpg.449ec4899c32c4fab6239f791e8ef74f.jpg

Посилання на коментар
Поділитися на інших сайтах

  • 2 місяці потому...

Проект "Спартак-2"

Общий бюджет проекта: 40 000,0 у.е. (дом+сауна+терраса+инженерия+камин)

Общее время строительства - 2,5 мес.

 

изначально проект был такой: grfaraon.wix.com/derevokarkas#!----------116-2/uz07i, но в процессе был увеличен по габаритам до 8,0 х 8,7м, что увеличило общую комнату на 1-ом этаже и добавило ещё одну спальню на втором

IMG_20160430_173324.thumb.jpg.40f39beb9bd1ac5fd0c4a58ebb29ec13.jpg

IMG_20160430_173340.thumb.jpg.5e3176722cc26c648f2699fe5c902769.jpg

IMG_20160430_173404.thumb.jpg.44773acb5758daa858a04589d69d6377.jpg

IMG_20160504_113130.thumb.jpg.ac719d2ac450d8afebc77e6231af42f7.jpg

IMG_20160504_113101.thumb.jpg.b590daba8bbcccae0226119fdf73637f.jpg

IMG_20160504_112818.thumb.jpg.d9791ba55838308ad206f7bf324b3e61.jpg

IMG_20160504_112907.thumb.jpg.faf2bcc4327dc0a8d93f35a9aadc5157.jpg

IMG_20160504_112842.thumb.jpg.2017e11dbc06619d5811877157834830.jpg

IMG_20160430_181534.thumb.jpg.83e5949f8be8eca569f5af802e8db327.jpg

IMG_20160504_113114.thumb.jpg.9690e085182f21a5a19889db32f9e2c2.jpg

Посилання на коментар
Поділитися на інших сайтах

  • 3 тижні потому...

Детский игровой комплекс

г.Запорожье

(ещё в процессе покраски...ждем погоды)

04.jpg.74b6bf4c6b4642f82efd64c15fb50f6a.jpg

01.thumb.jpg.825e69d5691496efb963e6d112d2896d.jpg

02.thumb.jpg.7002a9660113964855e465f2f374b5d7.jpg

03.thumb.jpg.cf054609b0f9505f2c54743d6a0182e9.jpg

Посилання на коментар
Поділитися на інших сайтах

  • 1 рік потому...
Добрій день! Есть вопрос по строительству каркасного дома - как с Вами можно связаться? Мой телефон (097)6571878 Володя
Посилання на коментар
Поділитися на інших сайтах

  • 6 місяців потому...
  • 1 рік потому...

Уважаемые профессионалы! Очень нужно авторитетное мнение по технологии устройства стен.

 

При строительстве нашего каркасного домика с утеплением базальтовой ватой строители в части дома, а именно, в зонах кухни, сан.узла и части спальни на внешней стене вместо пароизоляции использовали ветробарьер (как я думаю, так как он и снаружи дома) и еще какой то похожий на ветробарьер черный материал.

Говорят, что главное, чтобы крыша была в пароизоляции, так как весь пар поднимается вверх, а для стен так (без пароизоляции) даже лучше, так как стены будут дышать да и используемый материал дороже пароизоляции, а в сан узле еще и влагостойкий гипсокартон сверху будет.

Можно ли доверять мнению наших стротелей или необходимо настаивать на полной укладке пароизоляции?

По информации из интернета по правилам использования одного и другого материала я понимаю, что технология нарушена и внутри на стенах тоже нужна пароизоляция. Но муж склонен верить опыту строителей, а не информации из интернета(((

Очень, очень, очень нужно ваше аргументированное мнение, чтобы успокилась я или иметь везкие доводы переубедить мужа и строителей сделать так как требуется по технологии и не угробить дом еще до его постройки!

Заранее искренне благодарю за ваше внимание и советы!

photo_2020-09-04_16-53-11.thumb.jpg.249152b527517f993c2a206feb0354b8.jpg

photo_2020-09-04_16-53-04.thumb.jpg.45c930f5e8b7bf71b21f74560111f183.jpg

photo_2020-09-04_16-53-00.thumb.jpg.7333b119fad067fdd12046994ee2c8d8.jpg

photo_2020-09-04_16-52-55.thumb.jpg.f9c2405584e6d1d672495eff95e89b60.jpg

Посилання на коментар
Поділитися на інших сайтах

Поздравляю, очень вовремя. Зато денег на "неадекватно дорогих строителях", вороватых прорабах и жадных архитекторах сэкономили

 

 

За такое внимание тоже блогодарю!

Не все могут себе позволить "неадекватно дорогих строителей"! Мы обратились в фирму со среднестатистической ценой и выбрали дом из их стандартных проектов. Директор, он же прораб казался вполне адекватным и грамотным, теперь уже недели три мы его не видим, материала нет, половину людей с нашего объекта перевели на другой, но как за ранее можно знать и о конкретной бригаде и о технологиях строительства, когда никогда с этим не сталкивался и друзей таких нет(

Критиковать лекго, а по делу?

Посилання на коментар
Поділитися на інших сайтах

Гість
Відповісти в темі...

×   Вставлено в вигляді відформатованого тексту.   Відновити форматування

  Дозволено не більше 75 емодзі.

×   Ваше посилання було автоматично вбудоване.   Відобразити як посилання

×   Ваш попередній контент був відновлений.   Очистити редактор

×   Ви не можете вставити зображення безпосередньо. Завантажте або вставте зображення за посиланням.

×
×
  • Створити...