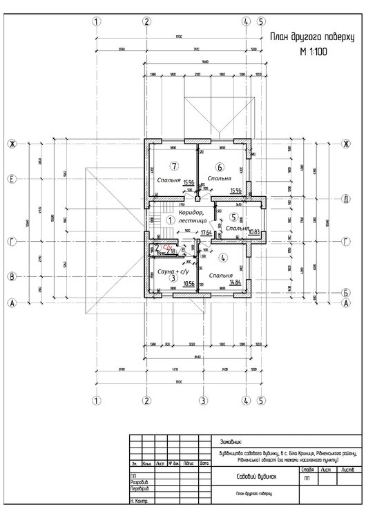
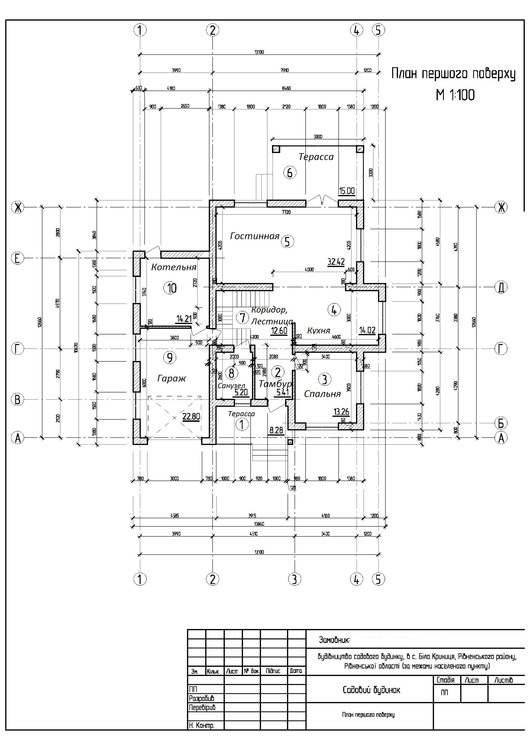
shodyveletyk Опубліковано: 4 серпня 2013 Поділитись Опубліковано: 4 серпня 2013 (змінено) Уважаемые владельцы и специалисты по закрытым топкам ! Топка JOTUL I570 будет установлена на первом этаже в гостинной , площадью 32 м.кв., вверх идет разводка , 5 или 6 канала на 4 спальни по 10-16 м.кв., коридор . На первом этаже я думаю вывести 2-3 канала с подачей воздуха на кухню и спальню . Нужно ли будет ставить вентиляторы . И подскажите как нужно будет вести воздуховоды с зала от камина по потолку если у меня будет идти ригель длиной 4,6м. Может зарание оставить какие то короба . Планы этажей прикрепил. Фото места под камин также . Подскажите как все правильно сделать на этом этапе стройки . В конце недели будут лить ригель. Спасибо всем откликнувшимся. Змінено 4 серпня 2013 користувачем shodyveletyk Посилання на коментар Поділитися на інших сайтах More sharing options...
shodyveletyk Опубліковано: 9 серпня 2013 Автор Поділитись Опубліковано: 9 серпня 2013 Фото со стройки на даний момент. Подскажите оставлять ли в ригеля короба под воздуховод или нет. Как правильно все сделать. Спасибо Посилання на коментар Поділитися на інших сайтах More sharing options...
spirtik Опубліковано: 12 серпня 2013 Поділитись Опубліковано: 12 серпня 2013 А у Вас уже есть план размещения воздуховодов? Посилання на коментар Поділитися на інших сайтах More sharing options...
shodyveletyk Опубліковано: 12 серпня 2013 Автор Поділитись Опубліковано: 12 серпня 2013 А у Вас уже есть план размещения воздуховодов? Нет плана нету. Посилання на коментар Поділитися на інших сайтах More sharing options...
spirtik Опубліковано: 12 серпня 2013 Поділитись Опубліковано: 12 серпня 2013 Так сначала с этим определитесь. А потом уже и сами увидите где что оставить для разводки, иначе все в пустую. Посилання на коментар Поділитися на інших сайтах More sharing options...
shodyveletyk Опубліковано: 12 серпня 2013 Автор Поділитись Опубліковано: 12 серпня 2013 Так сначала с этим определитесь. А потом уже и сами увидите где что оставить для разводки, иначе все в пустую. Где будут каналы я знаю. Так как построен уже первый этаж. Просто я не знаю как мне вести разводку от камина. В етом и есть нюанс. Посилання на коментар Поділитися на інших сайтах More sharing options...
Андрей1106 Опубліковано: 13 серпня 2013 Поділитись Опубліковано: 13 серпня 2013 Где будут каналы я знаю. Так как построен уже первый этаж. Просто я не знаю как мне вести разводку от камина. В етом и есть нюанс. Неужели трудно в старых темах покопаться? Зачем знающим людям писать по второму кругу? Посилання на коментар Поділитися на інших сайтах More sharing options...
shodyveletyk Опубліковано: 13 серпня 2013 Автор Поділитись Опубліковано: 13 серпня 2013 Неужели трудно в старых темах покопаться? Зачем знающим людям писать по второму кругу?Ткните тогда пожалуйста в какой теме искать. По поиску ничего для себя не нашел. Спасибо за понимание. Посилання на коментар Поділитися на інших сайтах More sharing options...
Playmaker Опубліковано: 14 серпня 2013 Поділитись Опубліковано: 14 серпня 2013 Где будут каналы я знаю. Так как построен уже первый этаж. Значит разводка каналов на первый этаж есть. Примерка по крайней мере. Посилання на коментар Поділитися на інших сайтах More sharing options...
shodyveletyk Опубліковано: 14 серпня 2013 Автор Поділитись Опубліковано: 14 серпня 2013 Значит разводка каналов на первый этаж есть. Примерка по крайней мере. Просто не хотелось бы опускать потолок на 20 см ниже, а возможно сделать гдето коробом или вдоль стен. В етом и нужен совет. Спасибо. Я понимаю так , а специалисты в етом деле могут сказать как правильно все ето сделать. Посилання на коментар Поділитися на інших сайтах More sharing options...
Рекомендовані повідомлення
Створіть акаунт або увійдіть у нього для коментування
Ви маєте бути користувачем, щоб залишити коментар
Створити акаунт
Зареєструйтеся для отримання акаунта. Це просто!
Зареєструвати акаунтУвійти
Вже зареєстровані? Увійдіть тут.
Увійти зараз