Зигзаг Удачи Опубліковано: 23 серпня 2013 Поділитись Опубліковано: 23 серпня 2013 В связи с оказавшимися ограничениями на форму и размер круглых пластиковых окон, хочу уточнить один вопрос. Не будет ли каких проблем при изготовлении или монтаже небольших окон неправильной формы, как у меня в приложении? На все окна (и эти в том числе) планирую профиль типа Рехау Евро 70 с пакетом 4-10-4-10Ar-4i. Посилання на коментар Поділитися на інших сайтах More sharing options...
ko&ko Опубліковано: 23 серпня 2013 Поділитись Опубліковано: 23 серпня 2013 Здесь не важно с какого профиля. Важно то, что боковые треугольные окна будут очень сложные в изготовлении. Угол 10грд!!! Не каждое производство возьмется за такую работу. По возможности подымите высоту угловых окон. Если нет, готовьтесь потратить денег. Центральное окно- никаких проблем в изготовлении нет. 1 Посилання на коментар Поділитися на інших сайтах More sharing options...
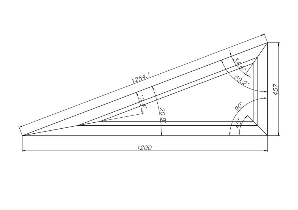
Алік Опубліковано: 23 серпня 2013 Поділитись Опубліковано: 23 серпня 2013 Длина стыка в вершине острого угла 354 мм, у нас максимально допустимая - 270 мм. 1 Посилання на коментар Поділитися на інших сайтах More sharing options...
Зигзаг Удачи Опубліковано: 23 серпня 2013 Автор Поділитись Опубліковано: 23 серпня 2013 Здесь не важно с какого профиля. Важно то, что боковые треугольные окна будут очень сложные в изготовлении. Угол 10грд!!! Не каждое производство возьмется за такую работу. По возможности подымите высоту угловых окон. Если нет, готовьтесь потратить денег. Центральное окно- никаких проблем в изготовлении нет. Уточню: Там угол 20 градусов. Остальное понятно. Но по дизайну экстерьера хотелось бы именно такие... Добавлено через 2 минуты Длина стыка в вершине острого угла 354 мм, у нас максимально допустимая - 270 мм. Какие могут быть варианты решения этого вопроса? Дерево? Другой профиль? Посилання на коментар Поділитися на інших сайтах More sharing options...
Алік Опубліковано: 23 серпня 2013 Поділитись Опубліковано: 23 серпня 2013 Тут не так от профиля зависит, как от сварочника - размера его рабочей поверхности. В ПВХ, если не изменять размеры, только кулибинство поможет. С деревом, думаю, таких проблем нет. Посилання на коментар Поділитися на інших сайтах More sharing options...
Зигзаг Удачи Опубліковано: 23 серпня 2013 Автор Поділитись Опубліковано: 23 серпня 2013 Тут не так от профиля зависит, как от сварочника - размера его рабочей поверхности. В ПВХ, если не изменять размеры, только кулибинство поможет. С деревом, думаю, таких проблем нет. А со стеклопакетом проблем острых углов нет? Посилання на коментар Поділитися на інших сайтах More sharing options...
Алік Опубліковано: 23 серпня 2013 Поділитись Опубліковано: 23 серпня 2013 С пакетом проще, угол всё-равно прячется в раму. 1 Посилання на коментар Поділитися на інших сайтах More sharing options...
ko&ko Опубліковано: 23 серпня 2013 Поділитись Опубліковано: 23 серпня 2013 Уточню: Там угол 20 градусов. Добавлено через 2 минуты Какие могут быть варианты решения этого вопроса? Дерево? Другой профиль? Уточню, там 10грд. Изготовить возможно, для меня вообще никаких проблем. Хоть 3-к, хоть 5-к, хоть 6-к. Посилання на коментар Поділитися на інших сайтах More sharing options...
Алік Опубліковано: 23 серпня 2013 Поділитись Опубліковано: 23 серпня 2013 С обрезанием "лишних" 84 мм или без? Посилання на коментар Поділитися на інших сайтах More sharing options...
ko&ko Опубліковано: 23 серпня 2013 Поділитись Опубліковано: 23 серпня 2013 Тезка, не знаю, что там и кто обрезает. Да и зачем заказчику производственные нюансы? Выполнить подобную конструкцию, возможно! Во нашел похожее из недавних работ. (см.фото ниже) Посилання на коментар Поділитися на інших сайтах More sharing options...
Алік Опубліковано: 23 серпня 2013 Поділитись Опубліковано: 23 серпня 2013 Ещё и со створкой - молодцы! Посилання на коментар Поділитися на інших сайтах More sharing options...
Зигзаг Удачи Опубліковано: 25 серпня 2013 Автор Поділитись Опубліковано: 25 серпня 2013 Уточню, там 10грд. Странно. Может у нас какие-то разные градусы? Посилання на коментар Поділитися на інших сайтах More sharing options...
Яло Опубліковано: 25 серпня 2013 Поділитись Опубліковано: 25 серпня 2013 Странно. Может у нас какие-то разные градусы? Все-равно мало. Ко-ко это сможет сделать, но у большинства есть ограничение- 28 градусов для глухаря. 1 Посилання на коментар Поділитися на інших сайтах More sharing options...
Ruslan R Опубліковано: 25 серпня 2013 Поділитись Опубліковано: 25 серпня 2013 10 градусов - это угол порезки профиля (см. ниже вложение). 2 Посилання на коментар Поділитися на інших сайтах More sharing options...
Яло Опубліковано: 25 серпня 2013 Поділитись Опубліковано: 25 серпня 2013 Какие могут быть варианты решения этого вопроса? Заменить треугольное окно на трапецию, с меньшей стороной не менее 270мм. (можно, конечно, и 200мм, но опять таки- ручная сборка и бла-бла-бла...) Посилання на коментар Поділитися на інших сайтах More sharing options...
Зигзаг Удачи Опубліковано: 25 серпня 2013 Автор Поділитись Опубліковано: 25 серпня 2013 Заменить треугольное окно на трапецию, с меньшей стороной не менее 270мм. (можно, конечно, и 200мм, но опять таки- ручная сборка и бла-бла-бла...) Сегодня был на стройке - проемы под эти окна уже готовы. Придется что-то ваять именно в этих размерах Посилання на коментар Поділитися на інших сайтах More sharing options...
ko&ko Опубліковано: 25 серпня 2013 Поділитись Опубліковано: 25 серпня 2013 Сегодня был на стройке - проемы под эти окна уже готовы. Придется что-то ваять именно в этих размерах В Киеве, без проблем, данную конструкцию может выполнить Газда. 1 Посилання на коментар Поділитися на інших сайтах More sharing options...
Яло Опубліковано: 25 серпня 2013 Поділитись Опубліковано: 25 серпня 2013 Сегодня был на стройке - проемы под эти окна уже готовы. И возможности увеличить высоту (опустить их ниже) нету?трапеция.xls Посилання на коментар Поділитися на інших сайтах More sharing options...
Зигзаг Удачи Опубліковано: 3 вересня 2013 Автор Поділитись Опубліковано: 3 вересня 2013 И возможности увеличить высоту (опустить их ниже) нету? Нет, изменить не получилось. Вот такие вот они вышли, эти проемы... Посилання на коментар Поділитися на інших сайтах More sharing options...
Рекомендовані повідомлення
Створіть акаунт або увійдіть у нього для коментування
Ви маєте бути користувачем, щоб залишити коментар
Створити акаунт
Зареєструйтеся для отримання акаунта. Це просто!
Зареєструвати акаунтУвійти
Вже зареєстровані? Увійдіть тут.
Увійти зараз