Перейти до публікації
Пошук в
  • Додатково...
Шукати результати, які містять...
Шукати результати в...

Help! Помогите с планом дома и размещением гаража!

sergeiksv

Рекомендовані повідомлення

Всем привет!

На существующем проблемном участке (проблема с формой фасада и заездом тяжелой и длинной техники) собираюсь строить дом!

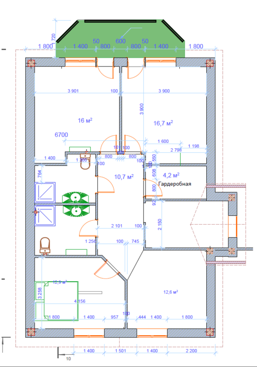
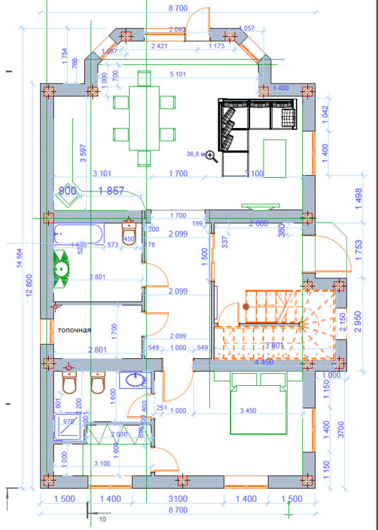
План дома - как для узкого участка аргументирован не снесенной летней кухней (в которой рабочие жить будут) и ограничением архитектуры (в этом районе только реконструкция старого дома). Дом 1но этажный с мансардой. Перекрытие монолитное ж/б. Фундамент монолитный ленточный.

Теперь по советам!

1- Советы и критика по планировке!

 

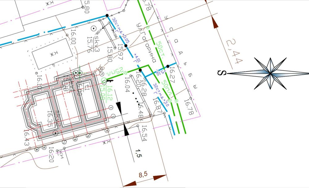
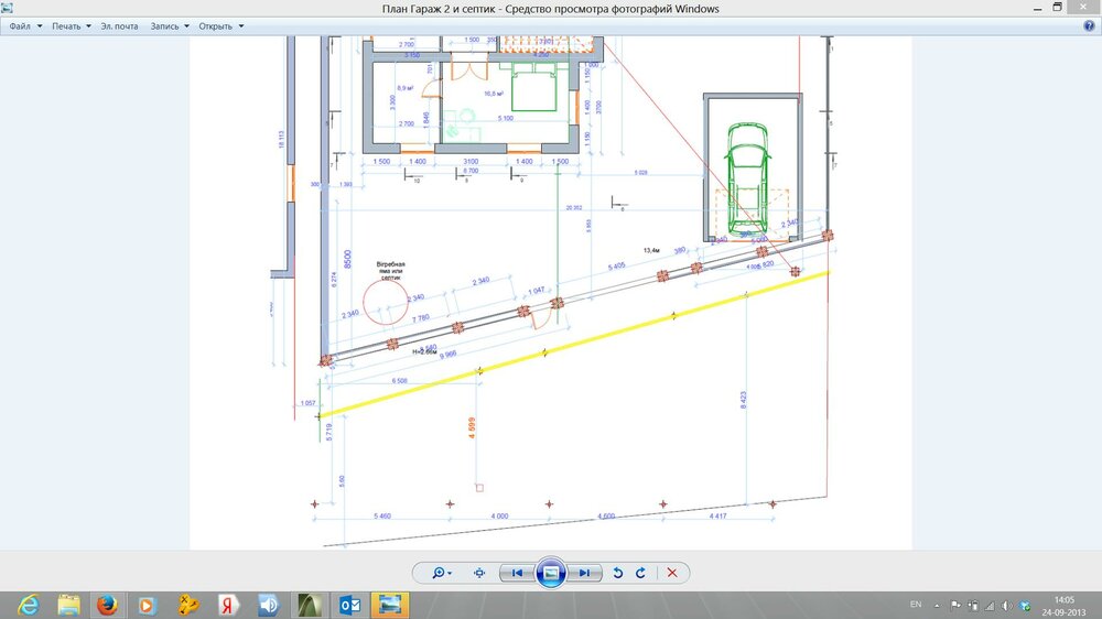
2- Не знаю где лучше гараж и септик поставить, нужен совет! ! - Главный Вопрос и срочный!

 

2- Совет по планировке и разводке сантехники! В 1н септик или фикалии отдельно?

Уклон участка виден на Плане посадки дома! Как понимаю рассасываться должно все хорошо! Грунтовых вод по близости нет!

Пока все вопросы! Заранее благодарен за советы и критику! Критику желательно обосновать, ибо сказать "кака" без дельного совета любой может!

1449457740_1.thumb.png.6ffd13dedd755271f5e12b882b7e5f73.png

345731595_2.thumb.png.3366ccea627513692c9349a80c51cc2a.png

Дача Проэкт РП 0-1 _ 1. 1-й эта.pdf

249587872_2.thumb.jpg.d6c0437eeb18ca5ed8b2f267a86b2820.jpg

354058328_Posadkadoma.thumb.jpg.26b1745872cdfdece9df0e895633147a.jpg

Посилання на коментар
Поділитися на інших сайтах

1- Советы и критика по планировке!

 

1. В кухні я зробив би вікно. Краще, коли воно там є. :D

 

2. Балкон на еркері завжди вважав розумним і логічним рішенням. Але ніколи не розумів конпцепції "один балкон на дві спальні".

 

3. Незрозуміло, чим викликані ламкі лінії у внутрішніх стінах цих двох спалень. Якщо це для купе, то чому у спальні 16 м2 ніша така маленька? І чому ніші глибиною лише 550 мм?

 

4. Чотири санвузли? Сходи в тамбурі? Ну, не знаю. :confused:

Посилання на коментар
Поділитися на інших сайтах

1- Советы и критика по планировке!

Тут детально все нужно расматривать счетать смотреть, одним часом неполучится так быстро дать ответ.

 

2- Не знаю где лучше гараж и септик поставить, нужен совет! ! - Главный Вопрос и срочный!

Опатьже... быстро нельзя дать совет, а порастыкивать так вы и сами сможете сделать.

Планировка участка как и анализ планировки дома это не занятие на один день, так как тут есть и тот фактор что непросто тыкнуть а учитывать еще и солнышко деревбя исли таковы имеются, вобщем хватает над чем поразмыслить, так что быстренько неполучится, уж поверте наславо. Дело вреде бы пустековое, но насамом деле есть над чем задуматся.

Посилання на коментар
Поділитися на інших сайтах

Решил уйти от эркера и балкона....практичней думаю веранда! Ваши мнения?

Дача Проэкт РП 0-4-1p _ 2.pdf

Дача Проэкт РП 0-4-1p _ 1.pdf

Посилання на коментар
Поділитися на інших сайтах

Створіть акаунт або увійдіть у нього для коментування

Ви маєте бути користувачем, щоб залишити коментар

Створити акаунт

Зареєструйтеся для отримання акаунта. Це просто!

Зареєструвати акаунт

Увійти

Вже зареєстровані? Увійдіть тут.

Увійти зараз
×
×
  • Створити...