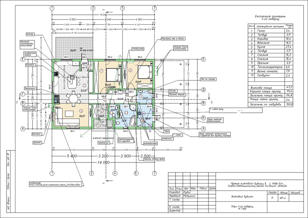
sv9190 Опубліковано: 8 січня 2014 Поділитись Опубліковано: 8 січня 2014 (змінено) Нужна компания имеющая опыт РАСЧЕТА и устройства отопления и ГВС в тепло сберегающем доме. Дом каркасно-щитовой, без подвала, площадь114 кв м, стены: фасадная плита Aquapanel Knauf 12,5 мм-минвата 150 мм- гипсокартон 12 мм. Потолок - гипсокартон 12 мм - минвата 200 мм. Фундамент - утепленная шведская плита. Есть котельная 2100х2500. Заложены трубы теплого пола, во ВСЕМ доме на полу будет плитка. Необходим расчёт необходимого оборудования и его установка. Планирую электрический котел, ступенчатый в первый год и твердотоплтвный (не менее 12 часов горения на одной закладке) на следующий год. ГВС - электро бойлер в котельной и на кухне. Интересует комплексный подход. Прошу предложения отправлять на email. Во вложении план дома. Расположение агрегатов в котельной было нанесено как прдедварительное, прошу не принимать его во внимание. Выход труб теплого пола под обозначением электрокотла в котельной. Трубы ГВС и ХВС заложены, дымоход в котельной не заложен Змінено 8 січня 2014 користувачем sv9190 + телефон Посилання на коментар Поділитися на інших сайтах More sharing options...
worl_d3 Опубліковано: 10 січня 2014 Поділитись Опубліковано: 10 січня 2014 Выполню проект отопления Вашего дома- теплотехнические расчеты, подбор отопительного и насосного оборудования, расчет контуров теплых полов, гидравлический расчет, чертежи 3D, спецификации (ссылка устарела) 096-465-60-40 Посилання на коментар Поділитися на інших сайтах More sharing options...
sv9190 Опубліковано: 10 січня 2014 Автор Поділитись Опубліковано: 10 січня 2014 Спасибо за Ваш ответ. Приглашаю к участию, при условии приобретения и установки просчитанного Вами оборудования. Посилання на коментар Поділитися на інших сайтах More sharing options...
Рекомендовані повідомлення
Створіть акаунт або увійдіть у нього для коментування
Ви маєте бути користувачем, щоб залишити коментар
Створити акаунт
Зареєструйтеся для отримання акаунта. Це просто!
Зареєструвати акаунтУвійти
Вже зареєстровані? Увійдіть тут.
Увійти зараз