МИРАЖИ Опубліковано: 21 січня 2014 Поділитись Опубліковано: 21 січня 2014 Всю жизнь я мечтала о своем доме , и вот моя мечта начала исполняться. Прикупили участок 15 соток, тут же на форуме я нашла проект, подделали под себя, заказали проект и вот что получилось) 3д фасадов не заказывали. воздержались от лишних расходов ,я и так все себе представляю. Посилання на коментар Поділитися на інших сайтах More sharing options...
МИРАЖИ Опубліковано: 21 січня 2014 Автор Поділитись Опубліковано: 21 січня 2014 свой проект переделали с этого, только мы отказались от столбов и у нас будет все под одой крышей 30 градусов. высота в коньке 7 м, если кому интересно будет я нарисую фасад или с проекта отсканирую Посилання на коментар Поділитися на інших сайтах More sharing options...
AНДРЮША Опубліковано: 21 січня 2014 Поділитись Опубліковано: 21 січня 2014 Удачи. А где в области? Посилання на коментар Поділитися на інших сайтах More sharing options...
Natalita Опубліковано: 21 січня 2014 Поділитись Опубліковано: 21 січня 2014 здесь на форуме есть ветка со стройкой этого домика www.stroimdom.com.ua/forum/showthread.php?t=67399 почитайте очень интересно Посилання на коментар Поділитися на інших сайтах More sharing options...
МИРАЖИ Опубліковано: 21 січня 2014 Автор Поділитись Опубліковано: 21 січня 2014 так получилось что начали мы только в ноябре 2013 и успели только вырыть фундамент, заливать в зиму не решились , хотя при такой зиме я думаю зря, но как говорится береженого Бог бережет. Посилання на коментар Поділитися на інших сайтах More sharing options...
МИРАЖИ Опубліковано: 21 січня 2014 Автор Поділитись Опубліковано: 21 січня 2014 Удачи. А где в области? Фрунзовка ) Добавлено через 2 минуты здесь на форуме есть ветка со стройкой этого домика www.stroimdom.com.ua/forum/showthread.php?t=67399 почитайте очень интересно Спасибо, я эту ветку еще год назад перечитала, именно этот дом меня вдохновил, просто с мужем мы отказались от плоской крыши. Добавлено через 22 минуты Дом основан не на несущих стенах , а на несущем каркасе,армирование ленточного фундамента из которого торчат 21 армированные столбы. Вместо железной арматуры , мы остановились на стеклопластиковой, по всем характеристикам она нам больше импонирует. И вот у меня назрел вопрос . Нужна ли под мой фундамент изоляционная пленка или хватит гидроизоляции на фундамент? Очень не хочу чтоб влага проникла в помещение и следствие вонь плесенью. Стены планировались из газобетона аерок ,но встает вопрос доставки (далековато). Нашли с мужем , абсолютно новый строительный материал, полностью натуральный , легкий, и абсолютно гидрофобный, теплопроводность при меньшей толщине стены такая же как и угазабетона 300 в Овидиопольском районе, но его должны только запустить в марте, если утресут вопрос с документами. Наверно пока все,заливать начнем когда погода не будет падать ниже +5ти градусов. Посилання на коментар Поділитися на інших сайтах More sharing options...
AНДРЮША Опубліковано: 21 січня 2014 Поділитись Опубліковано: 21 січня 2014 Что за материал такой, не секрет? Посилання на коментар Поділитися на інших сайтах More sharing options...
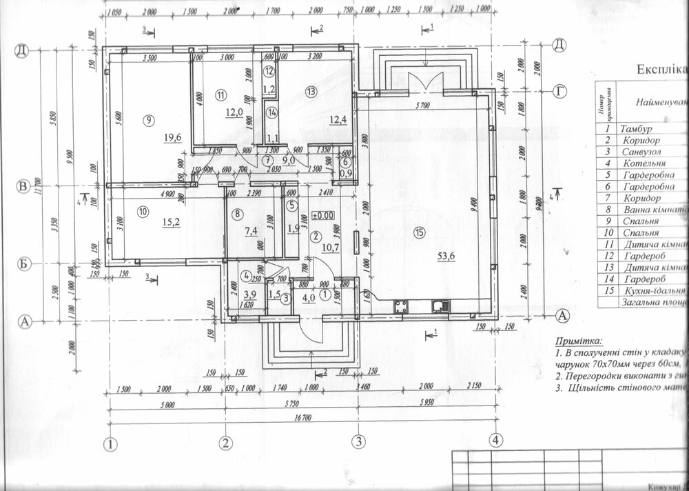
Шаркер Опубліковано: 21 січня 2014 Поділитись Опубліковано: 21 січня 2014 ПОЗДРАВЛЯЮ с началом! Удачи! Возник вопрос, а какая площадь котельной? Добавлено через 2 минуты воздержались от лишних расходов ,я и так все себе представляю. вопрос а почему на коридор у Вас 19,7 кв.м.???? Может архитектору что-то с этим сделать?! ) Посилання на коментар Поділитися на інших сайтах More sharing options...
МИРАЖИ Опубліковано: 21 січня 2014 Автор Поділитись Опубліковано: 21 січня 2014 Что за материал такой, не секрет? вот ссылка на видео о нем , предварительно назвали его "стройкерамика" Добавлено через 8 минут ПОЗДРАВЛЯЮ с началом! Удачи! Возник вопрос, а какая площадь котельной? вопрос а почему на коридор у Вас 19,7 кв.м.???? Может архитектору что-то с этим сделать?! ) площадь котельной 3.9, но я хочу убрать стенку между гостевым туалетом, получится помещение 5.4, хочу там и котел и постирочную и туалет и может душевую кабину вставить. А коридор у нас делится на 2 части предбанник так называемый 4 кв.м и сам холл 10.7 кв.м, и тут я тоже думаю перегородки убрать получится 14.7 кв.м, а где вы 19.7 увидели? Посилання на коментар Поділитися на інших сайтах More sharing options...
Шаркер Опубліковано: 21 січня 2014 Поділитись Опубліковано: 21 січня 2014 а где вы 19.7 увидели? ну как же п.7 = 9,0; п.2 = 10,7 это все с Вашего первого чертежа! Мой Вам совет - не отпускайте далеко архитектора! Про котельную - смотрите это круто унификация, однако при сдаче дома это может вызвать проблемы. Котельная= котельной, с/у= санузлу. И про стены здесь никак. Проверяйте, по нормам, и пять таки - сломайте что-нибудь архитектору - он сразу вспомнит, и т.п., мы ж в Od.ua не мне вас учить Посилання на коментар Поділитися на інших сайтах More sharing options...
МИРАЖИ Опубліковано: 21 січня 2014 Автор Поділитись Опубліковано: 21 січня 2014 ну как же п.7 = 9,0; п.2 = 10,7 это все с Вашего первого чертежа! Мой Вам совет - не отпускайте далеко архитектора! Про котельную - смотрите это круто унификация, однако при сдаче дома это может вызвать проблемы. Котельная= котельной, с/у= санузлу. И про стены здесь никак. Проверяйте, по нормам, и пять таки - сломайте что-нибудь архитектору - он сразу вспомнит, и т.п., мы ж в Od.ua не мне вас учить ааа вы все вместе пощитали , у меня там будет дверь , которая будет отделять спальную часть дома от так сказать основной. Извините но про котельную я Вас не поняла. Что значит -смотрите это круто унификация? Посилання на коментар Поділитися на інших сайтах More sharing options...
MACTEP JIOMACTEP Опубліковано: 22 січня 2014 Поділитись Опубліковано: 22 січня 2014 Нашли с мужем , абсолютно новый строительный материал, полностью натуральный , легкий, и абсолютно гидрофобный, теплопроводность при меньшей толщине стены такая же как и угазабетона 300 в Овидиопольском районе, но его должны только запустить в марте, если утресут вопрос с документами. Во жизнь пошла! В Харьков народ тянет ракушняк, а в Одессе-маме ищут новый, невиданный, строительный материал. И это когда ракушняк, буквально, под ногами. И да. Строитьcя вы собираетесь грамотно - с ж/б каркасом. Только и тут супер новинка - стеклоарматура! Это в стране, в которой железную руду (в 300 км. от вашей стройки) черпают как песок. И тут же плавят в гиганских мартенах. Я чего-то в этой жизни не понимаю. P.S. Разрешите угадать? Новый строительный материал - теплостен? ... Не угадал. Но тоже было такое поветрие... площадь котельной 3.9, но я хочу убрать стенку между гостевым туалетом, получится помещение 5.4, хочу там и котел и постирочную и туалет и может душевую кабину вставить. У вас в котельной котел будет газовый? Газовщики будут сильно против душевой и прочих туалетов. 1 Посилання на коментар Поділитися на інших сайтах More sharing options...
Игореха Опубліковано: 22 січня 2014 Поділитись Опубліковано: 22 січня 2014 Мой Вам имховый совет. Используйте классическую стальную арматуру. У композитки модуль упругости в 4 раза ниже. А это очень важно. Вы же не в кислотном тумане будете дом эксплуатировать ;) 1 Посилання на коментар Поділитися на інших сайтах More sharing options...
AНДРЮША Опубліковано: 22 січня 2014 Поділитись Опубліковано: 22 січня 2014 Извините но про котельную я Вас не поняла. Что значит -смотрите это круто унификация? Это значит, что вам запретят размещать газовый котел в с\у. Все новое конечно интересно, но как то стремно без испытания временем. Хотя на газобетон, лет восемь назад, то же гнали конкретно. Посилання на коментар Поділитися на інших сайтах More sharing options...
МИРАЖИ Опубліковано: 22 січня 2014 Автор Поділитись Опубліковано: 22 січня 2014 Это значит, что вам запретят размещать газовый котел в с\у. Все новое конечно интересно, но как то стремно без испытания временем. Хотя на газобетон, лет восемь назад, то же гнали конкретно. Не проблема , значит разделяющая стенка останется на месте Добавлено через 3 минуты P.S. Разрешите угадать? Новый строительный материал - теплостен? ... Не угадал. Но тоже было такое поветрие... . ссылку на этот материал я выше выложила , а ракушняк мне в принципе не нравится , он впитывает влагу усиленно и потом в доме воняет Добавлено через 9 минут Мой Вам имховый совет. Используйте классическую стальную арматуру. У композитки модуль упругости в 4 раза ниже. А это очень важно. Вы же не в кислотном тумане будете дом эксплуатировать ;) у нас одноэтажный дом, без перекрытий;) цитирую- Использование такой арматуры имеет огромные перспективы. Ее смело можно использовать в строительстве малоэтажных домов, в прокладке дороги, для фундаментов различного вида. Посилання на коментар Поділитися на інших сайтах More sharing options...
Игореха Опубліковано: 22 січня 2014 Поділитись Опубліковано: 22 січня 2014 у нас одноэтажный дом, без перекрытий;) цитирую- Использование такой арматуры имеет огромные перспективы. Ее смело можно использовать в строительстве малоэтажных домов, в прокладке дороги, для фундаментов различного вида. Когда вы начнете строиться, вы начнете меньше обращать внимание на маркетинговые материалы ;) В том источнике, который вы процитировали, есть упоминание о модуле упругости арматуры? Я тоже применял композитную арматуру... для привязки облицовочной стены. Но в монолиты использую стальную. Я всего-лишь указал на некоторый недостаток этой арматуры. А решение принимать вам Ну и еще один недостаток. Попробуйте согнуть эту арматуру. Например - выполнить из нее поперечные "хомуты" для армирования балки, или выполнить загиб с перехлестом рабочей арматуры на углах ж/б конструкции, связать большой пространственный каркас, чтобы он не развалился Посилання на коментар Поділитися на інших сайтах More sharing options...
vadim s Опубліковано: 22 січня 2014 Поділитись Опубліковано: 22 січня 2014 вот ссылка на видео о нем , предварительно назвали его "стройкерамика" Добавлено через 8 минут площадь котельной 3.9, но я хочу убрать стенку между гостевым туалетом, получится помещение 5.4, хочу там и котел и постирочную и туалет и может душевую кабину вставить. А коридор у нас делится на 2 части предбанник так называемый 4 кв.м и сам холл 10.7 кв.м, и тут я тоже думаю перегородки убрать получится 14.7 кв.м, а где вы 19.7 увидели? Доброго дня! Випадково зайшов на Вашу тему і дуже зацікавився матеріалом "стройкераміка". Буде велике прохання якщо у Вас є більше інформації скиньте будь-ласка. Завчасно дякую. Посилання на коментар Поділитися на інших сайтах More sharing options...
Vikctor Опубліковано: 22 січня 2014 Поділитись Опубліковано: 22 січня 2014 Пожалуй так весело ветки здесь ещё не начинались... Композитную арматуру в силовые конструкции - смело! Сцепляемость её с бетоном никакая, но это мелочи...Главное какие красивые рекламные слоганы от продаванов последней! Новая доселе невиданная технология производства керамических блоков от гиганта отечественного (да что там - Европейского!) строительного рынка. Куда там Паротермам с их десятками заводов в Европе, собственными лабораториями. Тут пацаны поколдовали и выдали (ну почти) нагора чудо блок с чудо свойствами! И занятно что сразу на это кто-то повёлся... Слушайте Вам прораб на стройку не нужен, ну или там личный маркетолог? Клондайк ведь пропадает... Столько же ещё материалов интересных вокруг. 2 Посилання на коментар Поділитися на інших сайтах More sharing options...
МИРАЖИ Опубліковано: 22 січня 2014 Автор Поділитись Опубліковано: 22 січня 2014 Ну и еще один недостаток. Попробуйте согнуть эту арматуру. Например - выполнить из нее поперечные "хомуты" для армирования балки, или выполнить загиб с перехлестом рабочей арматуры на углах ж/б конструкции, связать большой пространственный каркас, чтобы он не развалился Промышленный фен решает все проблемы с загибом. Уточните пожалуйста , что вы имеете в виду под большой пространственный каркас? Посилання на коментар Поділитися на інших сайтах More sharing options...
Игореха Опубліковано: 22 січня 2014 Поділитись Опубліковано: 22 січня 2014 Промышленный фен решает все проблемы с загибом. Уточните пожалуйста , что вы имеете в виду под большой пространственный каркас? Смотрю, вы уже абсолютно убеждены в правильности принятых решений, и верите всем маркетинговым заманухам. Правда, про модуль упругости, вопрос остался открытым. Но ведь эта характеристика вас совсем не интересует? Чтобы не портить впечатление от материала? ;) Большой пространственный - он и есть. Большой и пространственный. Т.е. не плоский и с большими линейными размерами. Длиной несколько метров, высотою 2-3 метра. Ладно. Не обращайте на меня внимания. Это я так злюсь, что сам дурак, не использовал у себя чудо-блоки и чудо-арматуру в монолитах. Это я все от зависти. :D Стройтесь на-здоровье. 2 Посилання на коментар Поділитися на інших сайтах More sharing options...
МИРАЖИ Опубліковано: 22 січня 2014 Автор Поділитись Опубліковано: 22 січня 2014 Пожалуй так весело ветки здесь ещё не начинались... Композитную арматуру в силовые конструкции - смело! Сцепляемость её с бетоном никакая, но это мелочи...Главное какие красивые рекламные слоганы от продаванов последней! Новая доселе невиданная технология производства керамических блоков от гиганта отечественного (да что там - Европейского!) строительного рынка. Куда там Паротермам с их десятками заводов в Европе, собственными лабораториями. Тут пацаны поколдовали и выдали (ну почти) нагора чудо блок с чудо свойствами! И занятно что сразу на это кто-то повёлся... Слушайте Вам прораб на стройку не нужен, ну или там личный маркетолог? Клондайк ведь пропадает... Столько же ещё материалов интересных вокруг. Я рада что у Вас поднялось настроение) положительные эмоции - это хорошо. Но впредь я попрошу не язвить в моей ветке. Я к Вам не хожу и не несу всякую чушь) Удачной Вам стройки Добавлено через 11 минут Смотрю, вы уже абсолютно убеждены в правильности принятых решений, и верите всем маркетинговым заманухам. Правда, про модуль упругости, вопрос остался открытым. Но ведь эта характеристика вас совсем не интересует? Чтобы не портить впечатление от материала? ;) Большой пространственный - он и есть. Большой и пространственный. Т.е. не плоский и с большими линейными размерами. Длиной несколько метров, высотою 2-3 метра. Ладно. Не обращайте на меня внимания. Это я так злюсь, что сам дурак, не использовал у себя чудо-блоки и чудо-арматуру в монолитах. Это я все от зависти. :D Стройтесь на-здоровье. Вас я смотрю беспокоит этот модуль упругости очень. Скажите как он влияет на армирование монолитного фундамента? Мне кажется мы друг друга недопонимаем. С чего вы взяли что в моей стройке будут вязаться большие пространственные каркасы?? Посилання на коментар Поділитися на інших сайтах More sharing options...
MACTEP JIOMACTEP Опубліковано: 22 січня 2014 Поділитись Опубліковано: 22 січня 2014 С чего вы взяли что в моей стройке будут вязаться большие пространственные каркасы?? Дом основан не на несущих стенах , а на несущем каркасе,армирование ленточного фундамента из которого торчат 21 армированные столбы. Не? Вы так не переживайте. Это же форум. Критики всегда больше, чем похвал. 1 Посилання на коментар Поділитися на інших сайтах More sharing options...
Шаркер Опубліковано: 22 січня 2014 Поділитись Опубліковано: 22 січня 2014 Уважаемая, Миражи! Постойте!!! НЕ спешите все сделать по-Одесски, поругаться, они "не достойные посмели...", а там посмотрим, может и все таки я их прощу?!". Все перечисленные гости, которых "не схарило" написать Вам все эти предыдущие посты, - эти люди на этом форуме (см. Дата регистрации, Кол-во сообщений, Кол-во благодарностей) видят, каждую неделю попытки молодых застройщиков как-то себя и для своей семьи увековечить. Чтобы эти попытки, не переросли в - Пытки, с очень "успешными продавцами новых технологий", новых и старых материалов, "супер прорабов", есть - люди, которые каждую неделю, изо дня в день (простите за пафос), стоят на страже "глупости" и "халатности", дабы она из теории не перерастала в быль! Форум - этот в данном случае, позволяет "прокритиковать идеи", найти технологии, посоветоваться, отдать на критику свое мнение - здесь нет борьбы за авторство, поскольку оно скрыто никами, здесь есть желание помочь! Поверьте мне, (как земляку), прислушайтесь! 5 Посилання на коментар Поділитися на інших сайтах More sharing options...
МИРАЖИ Опубліковано: 27 січня 2014 Автор Поділитись Опубліковано: 27 січня 2014 Уважаемая, Миражи! Постойте!!! НЕ спешите все сделать по-Одесски, поругаться, они "не достойные посмели...", а там посмотрим, может и все таки я их прощу?!". Все перечисленные гости, которых "не схарило" написать Вам все эти предыдущие посты, - эти люди на этом форуме (см. Дата регистрации, Кол-во сообщений, Кол-во благодарностей) видят, каждую неделю попытки молодых застройщиков как-то себя и для своей семьи увековечить. Чтобы эти попытки, не переросли в - Пытки, с очень "успешными продавцами новых технологий", новых и старых материалов, "супер прорабов", есть - люди, которые каждую неделю, изо дня в день (простите за пафос), стоят на страже "глупости" и "халатности", дабы она из теории не перерастала в быль! Форум - этот в данном случае, позволяет "прокритиковать идеи", найти технологии, посоветоваться, отдать на критику свое мнение - здесь нет борьбы за авторство, поскольку оно скрыто никами, здесь есть желание помочь! Поверьте мне, (как земляку), прислушайтесь! Уважаемый Шаркер! Я не с кем не хочу и не хотела ссорится. Все перечисленные гости, которых "не схарило" написать мне все эти предыдущие посты ,я так понимаю себе эту технологию не применяли, то-есть реально не один из них не построил даже стенку, гараж пристройку , да вообще ни чего , с использованием данной арматуры, и пытаются мне доказать какие мы дураки. Я строю одноэтажный дом , а не самолет или каркас под виноград, или многоэтажку. 100 лет назат дома армировали соломой , и строили из глины перемешанной с навозом, и стоял такой дом 100 лет. Не один из уважаемых гостей не сказал ,да был опыт у меня ,у брата, свата, друга , дом упал, прогнулся , не выдержал напряжения и т. д. А просто как многие не приемля ни чего нового , начали высмеивать и язвить. Я за дискуссию , культурную и аргументированную. А на конкретные вопросы которые которые я задавала, где действительно мне требуется совет , ни кто так и не ответил!! Посилання на коментар Поділитися на інших сайтах More sharing options...
Игореха Опубліковано: 27 січня 2014 Поділитись Опубліковано: 27 січня 2014 Не один из уважаемых гостей не сказал ,да был опыт у меня ,у брата, свата, друга , Никто тут не язвил, и не собирался, пока вы не "встали в позу" ;) Да. У меня был опыт работы с композитной арматурой. Но не в монолитах. Я ее держал в руках, работал с ней, пытался зацементировать ее в бетон, согнуть, склиеить, связать. А еще я знаю механические свойства этой арматуры. А еще я знаю цену этой арматуры, и с учетом той нелюбимой вами характеристики этой арматуры - экономии не выйдет. Или вы хотите, чтобы кто-то попробовал на себе какой-либо продукт "вопреки" своим убеждениям, чтобы потом сказать вам "у меня рухнуло, вам не советую"? :D Не рухнет ваш дом с большой долей вероятности, даже если вы вообще арматуру в фундамент не положите. Стройтесь на здоровье! Но вы зачем-то написали про технологические решения, которые вы собюираетесь использовать. Люди вам прокомментировали некоторые из них. Если вы не хотите обсуждения ваших решений, то в первом сообщении, первой строкой надо было написать "Буду строить из этого. Прошу не обсуждать в моей теме то, из чего я собираюсь строить". Поверьте - я бы и пол-слова тут не написал. ПС А чтобы ответить на ваш, пока единственный вопрос, который вас интересовал, необходимо видеть хотя бы план фундамента и стен, в разрезе. Потому как методов решения этой проблемы достаточно много. А пока это "сферический конь в вакууме". 1 Посилання на коментар Поділитися на інших сайтах More sharing options...
Рекомендовані повідомлення
Створіть акаунт або увійдіть у нього для коментування
Ви маєте бути користувачем, щоб залишити коментар
Створити акаунт
Зареєструйтеся для отримання акаунта. Це просто!
Зареєструвати акаунтУвійти
Вже зареєстровані? Увійдіть тут.
Увійти зараз