fiore22en8 Опубліковано: 3 лютого 2014 Поділитись Опубліковано: 3 лютого 2014 трещины в гипсовой штукатурке Посилання на коментар Поділитися на інших сайтах More sharing options...
сергей7-7 Опубліковано: 3 лютого 2014 Поділитись Опубліковано: 3 лютого 2014 Трещины бывают разные.Опешите их,а лучше выложете фото+укажите основание под штукатуркой. Посилання на коментар Поділитися на інших сайтах More sharing options...
Viks Опубліковано: 3 лютого 2014 Поділитись Опубліковано: 3 лютого 2014 трещины в гипсовой штукатурке помочите стену мокрым валиком - вообще прозреете... 3 Посилання на коментар Поділитися на інших сайтах More sharing options...
vavankutep Опубліковано: 4 лютого 2014 Поділитись Опубліковано: 4 лютого 2014 Трещины бывают разные.Опешите их,а лучше выложете фото+укажите основание под штукатуркой. приєднуюсь Посилання на коментар Поділитися на інших сайтах More sharing options...
qipru Опубліковано: 25 жовтня 2014 Поділитись Опубліковано: 25 жовтня 2014 приєднуюсь Не хочу начинать новую тему, попробую в этой. Может кто подскажет причину, самой интересно. Сегодня нашла непонятное. Трещина на стене и на штукатурке с двух сторон стены. Стена - обычная перегородка, в полкирпича. Сверху никуда не упирается. Что это может быть? Посилання на коментар Поділитися на інших сайтах More sharing options...
Гочик Опубліковано: 26 жовтня 2014 Поділитись Опубліковано: 26 жовтня 2014 1. якість кладки, тобто розчину 2. сильний механічний вплив, удар кувалди, лесніца, робота перфоратора і тд 3. штукатурка тут точно не причому Посилання на коментар Поділитися на інших сайтах More sharing options...
мастерок Опубліковано: 26 жовтня 2014 Поділитись Опубліковано: 26 жовтня 2014 Ну так невооружённым глазом видно просадку стены. Этаж скорее всего первый,а если второй,то некачественное перекрытие. Судя по проэкту таки первый-проблемы с фундаментом. Посилання на коментар Поділитися на інших сайтах More sharing options...
qipru Опубліковано: 26 жовтня 2014 Поділитись Опубліковано: 26 жовтня 2014 (змінено) 1. якість кладки, тобто розчину 2. сильний механічний вплив, удар кувалди, лесніца, робота перфоратора і тд 3. штукатурка тут точно не причому Про штукатурку понятно, механических воздействий не было. Дому 1,5 года. Ну так невооружённым глазом видно просадку стены. Этаж скорее всего первый,а если второй,то некачественное перекрытие. Судя по проэкту таки первый-проблемы с фундаментом. Этаж второй. Перекрытие монолитное по несъемной опалубке. А что может быть с перекрытием? Змінено 26 жовтня 2014 користувачем qipru Посилання на коментар Поділитися на інших сайтах More sharing options...
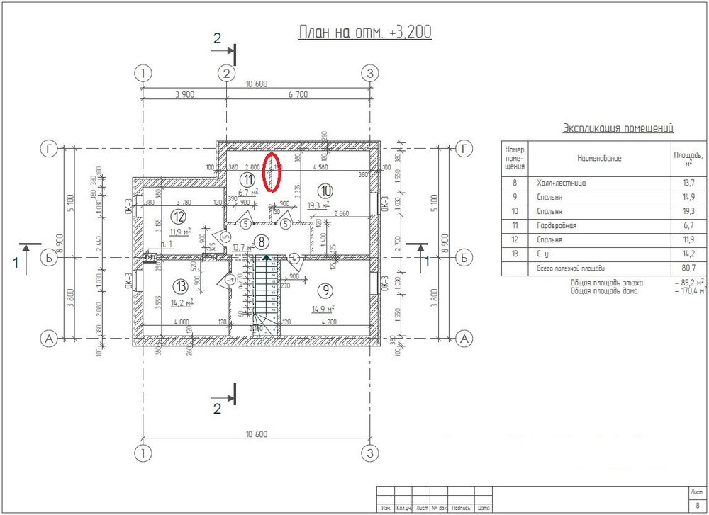
VoevoDA Опубліковано: 26 жовтня 2014 Поділитись Опубліковано: 26 жовтня 2014 Я так понимаю, что "стрельнуло" от дверного проема к скосу мансарды? А с другой стороны проема все нормально? Вообще странно, обычно если и начинает "стрелять" то слабым местом перегородок являются как раз верхушки дверных проемов. Это стенка где была проложена "трасса" оптики? Попробую поискать фотки того перестенка, может найду что-то необычное. 1 Посилання на коментар Поділитися на інших сайтах More sharing options...
qipru Опубліковано: 26 жовтня 2014 Поділитись Опубліковано: 26 жовтня 2014 Я так понимаю, что "стрельнуло" от дверного проема к скосу мансарды? А с другой стороны проема все нормально? Вообще странно, обычно если и начинает "стрелять" то слабым местом перегородок являются как раз верхушки дверных проемов. Это стенка где была проложена "трасса" оптики? Попробую поискать фотки того перестенка, может найду что-то необычное. Да, все верно. С другой стороны все нормально. Поеду, еще наверх посмотрю Посилання на коментар Поділитися на інших сайтах More sharing options...
мастерок Опубліковано: 26 жовтня 2014 Поділитись Опубліковано: 26 жовтня 2014 Про штукатурку понятно, механических воздействий не было. Дому 1,5 года. Этаж второй. Перекрытие монолитное по несъемной опалубке. А что может быть с перекрытием? Перекрытие может прогнутся,лопнуть,буквально в этом году такое было на одном из домов форумчан,именно монолит,я без конструктора отказался там работать,в итоге делали усиление на много денежек.Но там трещины были посерьёзней,поищу фотки. Посмотрите внимательней внизу у пола.На первом этаже перестенок под этой стеной не убирали? 1 Посилання на коментар Поділитися на інших сайтах More sharing options...
qipru Опубліковано: 26 жовтня 2014 Поділитись Опубліковано: 26 жовтня 2014 Перекрытие может прогнутся,лопнуть,буквально в этом году такое было на одном из домов форумчан,именно монолит,я без конструктора отказался там работать,в итоге делали усиление на много денежек.Но там трещины были посерьёзней,поищу фотки. Посмотрите внимательней внизу у пола.На первом этаже перестенок под этой стеной не убирали? Посмотрю. Перестенка под этой стеной на 1 этаже нет. Посилання на коментар Поділитися на інших сайтах More sharing options...
saschik Опубліковано: 26 жовтня 2014 Поділитись Опубліковано: 26 жовтня 2014 Не берусь утверждать в правильности своих суждений , но как вариант , могу предположить , что стена до трещины ( с низу ) не имела перевязки с сопрегающимися стенами , а выше трещины перевязка была : в результате усадки основания - нижняя часть пошла в низ , а верхняя - просто зависла между двух стен . Добавлено через 52 минуты Я так понимаю, что "стрельнуло" от дверного проема к скосу мансарды? А с другой стороны проема все нормально? Вообще странно, обычно если и начинает "стрелять" то слабым местом перегородок являются как раз верхушки дверных проемов. Это стенка где была проложена "трасса" оптики? Попробую поискать фотки того перестенка, может найду что-то необычное. __________________ Позвольте полюбопытсвовать - откуда такая осведомленность в тонкостях вопроса (Скос мансарды , трассы прокладки оптики )? Вы являлись исполнителем этих работ - или как ? Посилання на коментар Поділитися на інших сайтах More sharing options...
qipru Опубліковано: 27 жовтня 2014 Поділитись Опубліковано: 27 жовтня 2014 Перекрытие может прогнутся,лопнуть,буквально в этом году такое было на одном из домов форумчан,именно монолит,я без конструктора отказался там работать,в итоге делали усиление на много денежек.Но там трещины были посерьёзней,поищу фотки. Посмотрите внимательней внизу у пола.На первом этаже перестенок под этой стеной не убирали? Обсмотрела вчера весь дом. На стенах больше нигде ничего нет. На потолке тоже не видно, правда там же опалубка - видно и не будет. На финишной стяжке есть трещины, но они появились давно, после высыхания залитых полов, и есть на всех этажах во всех комнатах. Конкретно возле этой стены - особо никаких трещин на стяжке нет. Наклеить малярную ленту на трещину, посмотреть, не будет ли увеличиваться? мастерок, а не подскажете в личку координаты форумчанина или конструктора, которого он привлекал? Посилання на коментар Поділитися на інших сайтах More sharing options...
мастерок Опубліковано: 27 жовтня 2014 Поділитись Опубліковано: 27 жовтня 2014 Констуктор тот уже бюргерам расчёты делает,так что не подскажу.Да и не нужно Вам это-если нигде никаких изменений нет,то просто наклейте контрольку и спите спокойно,это-мелочь. 1 Посилання на коментар Поділитися на інших сайтах More sharing options...
Рекомендовані повідомлення
Створіть акаунт або увійдіть у нього для коментування
Ви маєте бути користувачем, щоб залишити коментар
Створити акаунт
Зареєструйтеся для отримання акаунта. Це просто!
Зареєструвати акаунтУвійти
Вже зареєстровані? Увійдіть тут.
Увійти зараз