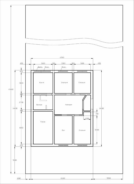
Feanor1985 Опубліковано: 29 квітня 2014 Поділитись Опубліковано: 29 квітня 2014 Здравствуйте форумчане. Собираюсь строиться, большинство работ буду выполнять сам и с помощью друзей и родственников, и надеюсь на ваши советы. В-общем дом будет строиться в Дон. обл., грунт- 30 см чернозем, потом глина, сосед брил скважину- воду достал на глубине 45 метров, немного полистав страницы интернета сделал сам планировку дома, фундамента и хотел бы, чтоб знвющие люди указали за ошибки, буду благодарен за критику. Во вложении план фундамента, фундамент в разрезе и его составные части Посилання на коментар Поділитися на інших сайтах More sharing options...
Технолог Опубліковано: 29 квітня 2014 Поділитись Опубліковано: 29 квітня 2014 Зачем ВАм шлакоблок в пироге стены? Посилання на коментар Поділитися на інших сайтах More sharing options...
Feanor1985 Опубліковано: 30 квітня 2014 Автор Поділитись Опубліковано: 30 квітня 2014 Зачем ВАм шлакоблок в пироге стены? Для несущей способности стены (к шлакоблоку доверия больше). Понимаю, что можно сделать все из газоблока и утеплить теми же 50 мм минваты, но читал, что газоблок дает трещины, плохо держит гвозди (полочку повесить например), легко прорубывается вход рядом с дверью... И еще где-то читал, что многослойная стена лучше, за счет теплоемкости внутренего слоя (летом забирает тепло, а зимой, в случае отключения системы отопления, отдает тепло). Посилання на коментар Поділитися на інших сайтах More sharing options...
MAESTRO DNEPR Опубліковано: 30 квітня 2014 Поділитись Опубліковано: 30 квітня 2014 ...и надеюсь на ваши советы. Хотел было Вам что-нибудь посоветовать, но посмотрев Ваши "первые наброски", не вижу в этом смысла, так как Вы ооочень далеки от понимания даже элементарных аспектов строительства... не советую, а настаиваю - к архитектору. ...немного полистав страницы интернета... ...классика жанра:D... а потом появляется очередная новая тема на форуме: "Хэлп ми !..." 1 Посилання на коментар Поділитися на інших сайтах More sharing options...
Feanor1985 Опубліковано: 1 травня 2014 Автор Поділитись Опубліковано: 1 травня 2014 так как Вы ооочень далеки от понимания даже элементарных аспектов строительства... не советую, а настаиваю - к архитектору. Ну за основу я взял 1 проект, немного переделав планировку, а конструкцию фундамента с 2х разных проектов. Хоть подскажите, например глубина фундамента слишком мала, подсыпать песка нужно больше, щебня меньше.. хоть в чем же ошибка? Насчет погреба- не факт, что будет, хотел построить его, чтоб стены погреба были фундаментом под гаражем, ванной и кухней- но посчитал, что слишком дорого обойдется ( Посилання на коментар Поділитися на інших сайтах More sharing options...
Рекомендовані повідомлення
Створіть акаунт або увійдіть у нього для коментування
Ви маєте бути користувачем, щоб залишити коментар
Створити акаунт
Зареєструйтеся для отримання акаунта. Це просто!
Зареєструвати акаунтУвійти
Вже зареєстровані? Увійдіть тут.
Увійти зараз