Feanor1985 Опубліковано: 18 травня 2014 Поділитись Опубліковано: 18 травня 2014 Здравствуйте. На одном сайте прочитал вариант устройства фундамента, понравилось решение (прикрепляю фото). И еще план дома. Строиться собираюсь в Краматорске, вода глубоко, почва- сначала чернозем, потом суглинок. Скажите, подойдет ли мне такое решение? Просто кажется большая подушка, сначала песок, потом щебень и потом бетон, или же лить бетон на подушку из песка? И еще вопрос, как посоветуете заливать фундамент поэтапно (т.е. не с миксера, а самому замешивать бетон), как стыковать, плостами или лесенкой иль еще какой вариант? Понимаю, что лучший вариант с миксера для целостности бетона, но во первых у нас цена 850 грн куб без привозки, а во вторых миксер не подъедет к фундаменту с 3х сторон, а забор разбирать не хочется.Уч-к3-Model.pdf Посилання на коментар Поділитися на інших сайтах More sharing options...
Магнит Опубліковано: 18 травня 2014 Поділитись Опубліковано: 18 травня 2014 Я с миксера заливал в землю 12 кубов, 60 см глубина и 40 ширина. Верз буду своими силами. Посилання на коментар Поділитися на інших сайтах More sharing options...
Feanor1985 Опубліковано: 18 травня 2014 Автор Поділитись Опубліковано: 18 травня 2014 Я с миксера заливал в землю 12 кубов, 60 см глубина и 40 ширина. Верз буду своими силами. А подушку делали под фундамент? Какой у вас район, глубина промерзания грунта? Посилання на коментар Поділитися на інших сайтах More sharing options...
prazdnikof Опубліковано: 18 травня 2014 Поділитись Опубліковано: 18 травня 2014 Залейте ленту из миксера, ширина по проекту, высоты 300-400 мм хватит, на неё можно или ФБС собрать или лить кусками аналогично ФБС лить в опалубку и переставлять (себе так делал, дешево и сердито, почти как монолит), связать арматурой, поверх творения обязательно армопояс. Если грунт действительно глина, то можно и без подушки- ленту на глину, только не рыхлить её. если с подушкой, то можно без щебня, но обязательно трамбовать и проливать, вообще вариантов много, главное знать что хотите получить на выходе - экономию, качество или скорость. Да и дождаться конца войны наверное, или в вашем районе тихо? 1 Посилання на коментар Поділитися на інших сайтах More sharing options...
YuV Опубліковано: 18 травня 2014 Поділитись Опубліковано: 18 травня 2014 Строиться собираюсь в Краматорске Ребята, мы живем в великой стране! Украину не победить! Слава Украине! Feanor1985, У Вас в любом случае все получится! Посилання на коментар Поділитися на інших сайтах More sharing options...
Магнит Опубліковано: 19 травня 2014 Поділитись Опубліковано: 19 травня 2014 А подушку делали под фундамент? Какой у вас район, глубина промерзания грунта? Подушка глина. Глубина промерзания 1.1 м. 1 Посилання на коментар Поділитися на інших сайтах More sharing options...
@nokhin Опубліковано: 19 травня 2014 Поділитись Опубліковано: 19 травня 2014 Здравствуйте. На одном сайте прочитал вариант устройства фундамента, понравилось решение (прикрепляю фото). А чем именно понравилось? Мелкозаглубленная лента идеальный вариант для легкого (например, каркасного дома) с деревянным полом на песчаном грунте. В других случаях она требует большего внимания чем, например, ленточный фундамент на глубину промерзания. В Вашем случае расчет армирования и параметров ленты лучше доверить конструктору. Ленту лучше лить в опалубку, пазухи фундамента засыпать тоже песком. Получиться должно примерно так: В подушке песок можно заменить пгс. А сколько бетономешалок можете мобилизовать? Если 3-4 бетономешалки литров по 150, то должно неплохо получиться. 1 Посилання на коментар Поділитися на інших сайтах More sharing options...
Feanor1985 Опубліковано: 25 травня 2014 Автор Поділитись Опубліковано: 25 травня 2014 Спасибо всем за информацию. Меня интересует следующее- что является фундаментом:бетон или подушка тоже в счет идет? Просто хочу вырыть яму глубиной 1,1 м, засыпать как на рисунке 20 см песка, 30 щебня, уложить гидроизоляцию, установит опалубку, заармировать и залить 60 см бетона м200 (получаем +10 над землей) и прогнать еще 4 ряда полнотелого кирпича, опять гидроизоляцию и погнал стены. Как такой вариант? это ленточный фундамент на глубину промерзания или же МЗФ? Посилання на коментар Поділитися на інших сайтах More sharing options...
@nokhin Опубліковано: 26 травня 2014 Поділитись Опубліковано: 26 травня 2014 Спасибо всем за информацию. Меня интересует следующее- что является фундаментом:бетон или подушка тоже в счет идет? Просто хочу вырыть яму глубиной 1,1 м, засыпать как на рисунке 20 см песка, 30 щебня, уложить гидроизоляцию, установит опалубку, заармировать и залить 60 см бетона м200 (получаем +10 над землей) и прогнать еще 4 ряда полнотелого кирпича, опять гидроизоляцию и погнал стены. Как такой вариант? это ленточный фундамент на глубину промерзания или же МЗФ? Это МЗФ, хотя и глубоковатый:D. Песок и щебень это непучистый грунт, но лучше все таки сделать просто песок или ПГС. В данном случае (без разделения грунта и щебня), со временем щебень заполняется суглинком ("заиливание") и теряет частично свои непучистые свойства. Лучше почитайте tsn_mf_97_mo.pdf - достаточно толково о мзф. 1 Посилання на коментар Поділитися на інших сайтах More sharing options...
Feanor1985 Опубліковано: 26 травня 2014 Автор Поділитись Опубліковано: 26 травня 2014 Это МЗФ, хотя и глубоковатый:D. Песок и щебень это непучистый грунт, но лучше все таки сделать просто песок или ПГС. В данном случае (без разделения грунта и щебня), со временем щебень заполняется суглинком ("заиливание") и теряет частично свои непучистые свойства. Лучше почитайте tsn_mf_97_mo.pdf - достаточно толково о мзф. А какой же глубины должен быть ленточный фундамент, что бы не быть МЗФ? Еще чуть-чуть и можно делать подвал под домом ) Посилання на коментар Поділитися на інших сайтах More sharing options...
@nokhin Опубліковано: 27 травня 2014 Поділитись Опубліковано: 27 травня 2014 А какой же глубины должен быть ленточный фундамент, что бы не быть МЗФ? Еще чуть-чуть и можно делать подвал под домом ) Ниже глубины замерзания грунта. Но даже заложение ниже глубины промерзания не всегда спасает от проблем с пучением грунтов - остаются касательные силы пучения (впрочем, они существенны для лент которые заливают в землю). МЗФ при правильном исполнении будет работать не хуже. Посилання на коментар Поділитися на інших сайтах More sharing options...
Feanor1985 Опубліковано: 27 травня 2014 Автор Поділитись Опубліковано: 27 травня 2014 А подскажите еще, нужно ли делать гидроизоляцию между фундаментом, который будит выведен +10 над землей и цоколем из 4х рядов кирпича? Посилання на коментар Поділитися на інших сайтах More sharing options...
@nokhin Опубліковано: 27 травня 2014 Поділитись Опубліковано: 27 травня 2014 А подскажите еще, нужно ли делать гидроизоляцию между фундаментом, который будит выведен +10 над землей и цоколем из 4х рядов кирпича? Лучше эти 30 см сделать из бетона монолитом с подземной частью. Если делать из кирпича, лучше сделать гидроизоляцию между бетоном и кирпичем + обработать кирпич гидрофобом - дольше простоит (но гидрофоб несколько уменьшит адгезию к кирпичу - если будете отделывать цоколь чем-нибудь ). Посилання на коментар Поділитися на інших сайтах More sharing options...
Алиша Опубліковано: 28 травня 2014 Поділитись Опубліковано: 28 травня 2014 Я с миксера заливал в землю 12 кубов, 60 см глубина и 40 ширина. Верз буду своими силами. а верх как будете делать? опалубка или фбс? Посилання на коментар Поділитися на інших сайтах More sharing options...
Feanor1985 Опубліковано: 29 травня 2014 Автор Поділитись Опубліковано: 29 травня 2014 Лучше эти 30 см сделать из бетона монолитом с подземной частью. Если делать из кирпича, лучше сделать гидроизоляцию между бетоном и кирпичем + обработать кирпич гидрофобом - дольше простоит (но гидрофоб несколько уменьшит адгезию к кирпичу - если будете отделывать цоколь чем-нибудь ). Дело в том, что где-то читал, что лучше кирпич, т.к. он не так тянет влагу из за своей неоднородной структуры со швами, а служит он не меньше, чем стены дома. Может конечно и буду лить, пока не решил, но все же, гидроизоляцию и м/у монолитом и цоколем и м/у цоколем и стеной? Посилання на коментар Поділитися на інших сайтах More sharing options...
@nokhin Опубліковано: 29 травня 2014 Поділитись Опубліковано: 29 травня 2014 Дело в том, что где-то читал, что лучше кирпич, т.к. он не так тянет влагу из за своей неоднородной структуры со швами, а служит он не меньше, чем стены дома. Может конечно и буду , пока не решил, но все же, гидроизоляцию и м/у монолитом и цоколем и м/у цоколем и стеной? Тут же тема была www.stroimdom.com.ua/forum/showthread.php?t=154355 Кирпич обладает более крупными капиллярами чем бетон, к тому же кирпичная кладка не является монолитом (капиллярная структура не едина), следовательно капиллярный подъем влаги в нем будет меньше, плюс еще, если швы между кирпичами выполнить раствором с гидрофобными добавками, то эффект будет еще выше. Но кирпичная кладка должна быть определенной высоты, что бы гидроизоляционный эффект стал заметен. Но в настоящее время при наличии достаточно долговечных, эффективных современных гидроизоляционных материалов кирпич, как единственная гидроизоляция практически не применяется. Имхо, лучше долить бетонный цоколь, гидроизоляцию сделать только между цоколем и стеной. Для перестраховки при заливке можно добавлять гидрофобизатор в бетон. Я лил coral MasterGidro, но может есть и получше. 1 Посилання на коментар Поділитися на інших сайтах More sharing options...
Feanor1985 Опубліковано: 30 травня 2014 Автор Поділитись Опубліковано: 30 травня 2014 Тут же тема была www.stroimdom.com.ua/forum/showthread.php?t=154355 Имхо, лучше долить бетонный цоколь, гидроизоляцию сделать только между цоколем и стеной. Для перестраховки при заливке можно добавлять гидрофобизатор в бетон. Я лил coral MasterGidro, но может есть и получше. Спасибо, убедили ). Хоть и придется добавлять 3й ряд арматуры ( Подскажите еще, по прикрепленной картинке, какой тип фундамента выбрать для одноэтажного дома, полы по грунту, деревянные перекрытия, стена- либо газоблок, либо керамзитблок, при условии, что возможно буду рыть погреб (последние события в городе показали преимущества домов с погребом)? Погреб будет с отступом от фундамента по 1-1,3 метра, общей шириной 3,5-4 метра. Если вариант №2 (с лентой под фундамент), то можно ли эту ленту залить за день, а остальной фундамент лить поэтапно, будет типа как блоки фундаментные, но с общей арматурой) Или может добавлять присадки, для затормаживания застывания? Посилання на коментар Поділитися на інших сайтах More sharing options...
prazdnikof Опубліковано: 30 травня 2014 Поділитись Опубліковано: 30 травня 2014 Спасибо, убедили ). Хоть и придется добавлять 3й ряд арматуры ( Подскажите еще, по прикрепленной картинке, какой тип фундамента выбрать для одноэтажного дома, полы по грунту, деревянные перекрытия, стена- либо газоблок, либо керамзитблок, при условии, что возможно буду рыть погреб (последние события в городе показали преимущества домов с погребом)? Погреб будет с отступом от фундамента по 1-1,3 метра, общей шириной 3,5-4 метра. Если вариант №2 (с лентой под фундамент), то можно ли эту ленту залить за день, а остальной фундамент лить поэтапно, будет типа как блоки фундаментные, но с общей арматурой) Или может добавлять присадки, для затормаживания застывания? Первый подойдёт, дом у Вас не тяжёлый. Дренажная труба не обязательна. Как там Бабай? Не злой? Если погреб будете рыть после изготовления фундамента, то отступайте не менее 1,5 от ленты во внутрь, а ещё лучше сразу под весь дом подвал, меньше сараев потом строить. Я дом пока не осиливаю достроить (война все планы поломала), но построенный подвал (цоколь выгнал, накрыл БУ шифером ) уже во всю используем, не знаю каким чутьём чувствовал когда начинал стройку, но решил лучше с подвалом, оно в жизни всё может случиться. 1 Посилання на коментар Поділитися на інших сайтах More sharing options...
Feanor1985 Опубліковано: 31 травня 2014 Автор Поділитись Опубліковано: 31 травня 2014 Первый подойдёт, дом у Вас не тяжёлый. Дренажная труба не обязательна. Как там Бабай? Не злой? Если погреб будете рыть после изготовления фундамента, то отступайте не менее 1,5 от ленты во внутрь, а ещё лучше сразу под весь дом подвал, меньше сараев потом строить. Я дом пока не осиливаю достроить (война все планы поломала), но построенный подвал (цоколь выгнал, накрыл БУ шифером ) уже во всю используем, не знаю каким чутьём чувствовал когда начинал стройку, но решил лучше с подвалом, оно в жизни всё может случиться. Бабай тут как достопримечательность города ) Люди ходят с ним фоткаться ))) А подвал под всем домом слишком дорого обойдется, дом 11х14 (с гаражом), сначала так и планировал, но объем бетона отпугнул ( а ФБС щас все на барикадах ) А вы откуда, что война тоже достала? Посилання на коментар Поділитися на інших сайтах More sharing options...
prazdnikof Опубліковано: 2 червня 2014 Поділитись Опубліковано: 2 червня 2014 Бабай тут как достопримечательность города ) Люди ходят с ним фоткаться ))) А подвал под всем домом слишком дорого обойдется, дом 11х14 (с гаражом), сначала так и планировал, но объем бетона отпугнул ( а ФБС щас все на барикадах ) А вы откуда, что война тоже достала? Вариант (себе так делал, кстати дом у меня будет 11*14) - армированная лента из бетона (миксер) шириной 800, высота 400, на неё отливать бетонные фрагменты размерами как ФБС или более, например ширина 400, высота до метра, длина 2,5-4 м. Весь вопрос в опалубке и производительности бригады с мешалкой. За день трое спокойно наколотят 2,5-3 куба, на следующий день отдых, потом перестановка опалубки, потом опять заливка и по кругу. Я так добивал свой цоколь, получилось не плохо, пожалел, что сразу так не начал делать, использовал ФБС, а потом уже поверх доливал. Получился монолитный + сборный. Поверх конечно армопояс. 1 Посилання на коментар Поділитися на інших сайтах More sharing options...
Feanor1985 Опубліковано: 2 червня 2014 Автор Поділитись Опубліковано: 2 червня 2014 Спаибо за совет! А какой пол у погреба? Ведь тоже бетона много пойдет на заливку+армирование, или же можно отсыпку + стяжка? Посилання на коментар Поділитися на інших сайтах More sharing options...
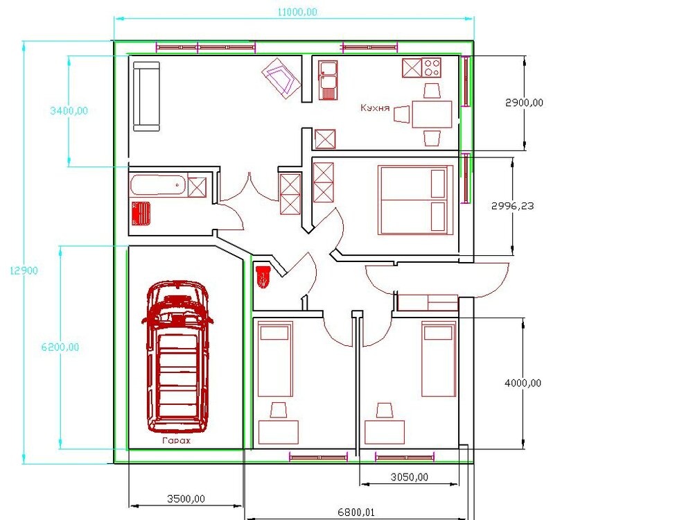
Feanor1985 Опубліковано: 19 жовтня 2014 Автор Поділитись Опубліковано: 19 жовтня 2014 Общался с водителем бетоновоза, так вот, заехать он ко мне во двор не сможет, предлагал возить самосвалом, 2 куба за раз+доставка, тягать ведрами...Может кто посоветует вариант заливки самому? Кстати, план дома поменялся, оцените: Посилання на коментар Поділитися на інших сайтах More sharing options...
Hordi Опубліковано: 20 жовтня 2014 Поділитись Опубліковано: 20 жовтня 2014 предлагал возить самосвалом, 2 куба за раз+доставка, тягать ведрами... Нормальный и рабочий вариант. Бетон лучше заказывать пожестче, но нужен вибратор. От места выгрузки возить можно в тачке (тачках), т.е. за раз литров 100. Или же на носилках вдвоем. В любом случае проще, чем ведрами. 1 Посилання на коментар Поділитися на інших сайтах More sharing options...
Feanor1985 Опубліковано: 24 жовтня 2014 Автор Поділитись Опубліковано: 24 жовтня 2014 А еще такой вопрос, почему лить фундамент обязательно монолитным, и нельзя лить блоками, как ФБС, при этом у всех блков будет связка арматурой общей, а из ФБС ложить можно? Посилання на коментар Поділитися на інших сайтах More sharing options...
sashkaa Опубліковано: 24 жовтня 2014 Поділитись Опубліковано: 24 жовтня 2014 А еще такой вопрос, почему лить фундамент обязательно монолитным, и нельзя лить блоками, как ФБС, при этом у всех блков будет связка арматурой общей, а из ФБС ложить можно? можна делать швы бетонирования, на таких объемах проще без них Посилання на коментар Поділитися на інших сайтах More sharing options...
Рекомендовані повідомлення
Створіть акаунт або увійдіть у нього для коментування
Ви маєте бути користувачем, щоб залишити коментар
Створити акаунт
Зареєструйтеся для отримання акаунта. Це просто!
Зареєструвати акаунтУвійти
Вже зареєстровані? Увійдіть тут.
Увійти зараз