sweden Опубліковано: 23 травня 2007 Поділитись Опубліковано: 23 травня 2007 Начали новую тему, ибо в предыдущей много всего уже. Если так нельзя, заранее извините. Проэкт индивидуальный участок 24 сотки 44 *55. Полноценный второй этаж, никаких мансард. Минимальный уклон крыши. Очень жду критику. Начало стройки - середина июня Посилання на коментар Поділитися на інших сайтах More sharing options...
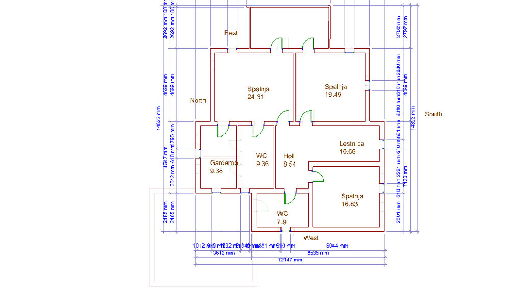
XamGelo Опубліковано: 23 травня 2007 Поділитись Опубліковано: 23 травня 2007 Так это ж две большие разницы Вот только размеров не видно Вы в чем это делали? (похоже на архикад ) Если да, попробуйте увеличить размер шрифта для размеров. И потом сначала сохранить как .tif, а затем уже в фотошопе или какой другой программе вырезать нужный кусок и сохранить как jpg И все равно похоже на американский, это я к тому что их подобные проекты как раз хорошо смотрятся с приличным углом уклона крыши Посилання на коментар Поділитися на інших сайтах More sharing options...
КиевлянинЪ Опубліковано: 24 травня 2007 Поділитись Опубліковано: 24 травня 2007 а кладовки подсобки котельные топочные и прочие хламники ? Посилання на коментар Поділитися на інших сайтах More sharing options...
XamGelo Опубліковано: 24 травня 2007 Поділитись Опубліковано: 24 травня 2007 Да, действительно, где кладлвки и котельная? И еще - окошки узенькие - это так задумано? Посилання на коментар Поділитися на інших сайтах More sharing options...
sweden Опубліковано: 24 травня 2007 Автор Поділитись Опубліковано: 24 травня 2007 Делали в 3D Home architekt.(щас попробую) Кладовки и ктельны в цоколе бдут. Цоколь метров 40-50 не больше. Там прачечная, котельня, кладовая, чтото типа тренажерного заала. Посилання на коментар Поділитися на інших сайтах More sharing options...
sweden Опубліковано: 24 травня 2007 Автор Поділитись Опубліковано: 24 травня 2007 окошки узенькие - это так задумано? Нет нет окошки это других размеров не получилось вставить просто, окна будут побольше Посилання на коментар Поділитися на інших сайтах More sharing options...
sweden Опубліковано: 24 травня 2007 Автор Поділитись Опубліковано: 24 травня 2007 Вот увеличила разсеры, но похоже все стало теперь наслаиваься Так лучше? Там нет формата *.tif Посилання на коментар Поділитися на інших сайтах More sharing options...
XamGelo Опубліковано: 24 травня 2007 Поділитись Опубліковано: 24 травня 2007 Главное что их теперь видно (размеры) А какие будут окна? А где все-таки будет котельная? И какая крыша? Мож вечером нарисую в архикаде и выложу с 3D... Посилання на коментар Поділитися на інших сайтах More sharing options...
sweden Опубліковано: 24 травня 2007 Автор Поділитись Опубліковано: 24 травня 2007 Если можете было бы супер. Пока что утверждаем планы потому ни фасадов ни крыши еще нет. Крышу хотим с минимальным уклоном, Окна большие хочу не овальные. Посилання на коментар Поділитися на інших сайтах More sharing options...
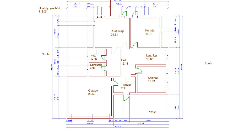
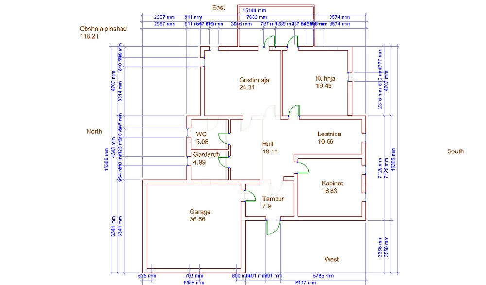
XamGelo Опубліковано: 24 травня 2007 Поділитись Опубліковано: 24 травня 2007 Вот что у меня получилось. Немного изменил размеры, теперь можно перекрыть стандартными ПК. Цоколь не делал, не хватает времени Посилання на коментар Поділитися на інших сайтах More sharing options...
sweden Опубліковано: 24 травня 2007 Автор Поділитись Опубліковано: 24 травня 2007 Огроное спасибо. Ваша програма не выдает сразу общю площадь ? Ну я и на калькуляторе посчитаю. Еще одно скажите пожалуйста лестница полуяается 90? На форуме гдето читала что мало? Лучше 120, что скажете? Посилання на коментар Поділитися на інших сайтах More sharing options...
XamGelo Опубліковано: 24 травня 2007 Поділитись Опубліковано: 24 травня 2007 3D картинки. Окна оставил пока неширокие. Уклон основной крыши 40%, гаражной 25%. Общая площадь 233 квм Посилання на коментар Поділитися на інших сайтах More sharing options...
Fuzik Опубліковано: 24 травня 2007 Поділитись Опубліковано: 24 травня 2007 120 однозначно лучше, я себе 140 буду делать. Но заметьте разницу в цене с 90 Посилання на коментар Поділитися на інших сайтах More sharing options...
XamGelo Опубліковано: 24 травня 2007 Поділитись Опубліковано: 24 травня 2007 Площадь общую кажись не считает, хотя можно сделать... Лестница шириной 135 см, хде вы взяли 90 :-D Размеры не ставил, много времени надо Посилання на коментар Поділитися на інших сайтах More sharing options...
sweden Опубліковано: 24 травня 2007 Автор Поділитись Опубліковано: 24 травня 2007 Да по цене конечно, но если строить то вопросы комфорта превыше всего, лучше комнат меньше сделать . Тоесть таки лестница надо делать 120 Посилання на коментар Поділитися на інших сайтах More sharing options...
sweden Опубліковано: 24 травня 2007 Автор Поділитись Опубліковано: 24 травня 2007 Площадь я калькулятором, а лестницу видать чегото спутала, то площадь 9.13, я поняла что ширина. 135 - это одного пролета? Посилання на коментар Поділитися на інших сайтах More sharing options...
sweden Опубліковано: 24 травня 2007 Автор Поділитись Опубліковано: 24 травня 2007 Ну что-то критики мало. Первый в хвост и гриву раскритиковали а этот так мальо.Неужели придраться не к чему ?? Посилання на коментар Поділитися на інших сайтах More sharing options...
XamGelo Опубліковано: 24 травня 2007 Поділитись Опубліковано: 24 травня 2007 Я ж писАл шо две большие разницы. Здесь и планировка и размер помещений рациональнее. Я бы поменял местами кухню с гостиной, передвинув конечно стенку между ними Посилання на коментар Поділитися на інших сайтах More sharing options...
sweden Опубліковано: 24 травня 2007 Автор Поділитись Опубліковано: 24 травня 2007 Я ж писАл шо две большие разницы. Здесь и планировка и размер помещений рациональнее. Я бы поменял местами кухню с гостиной, передвинув конечно стенку между ними Интересно, а почему так ? В чем суть? Посилання на коментар Поділитися на інших сайтах More sharing options...
XamGelo Опубліковано: 24 травня 2007 Поділитись Опубліковано: 24 травня 2007 Тянуть воду и канализацию через весь дом - оно вам надо? Когда можно перевернуть зеркально 2 помещения. + Окна кухни на север - хорошо, в кухне тепла и так достаточно Насколько я помню на этом участке фасад на юг, т.е. въеэд в гараж будет сбоку? Ну, на 24 сотках можно и так :-D Посилання на коментар Поділитися на інших сайтах More sharing options...
sweden Опубліковано: 24 травня 2007 Автор Поділитись Опубліковано: 24 травня 2007 Тянуть воду и канализацию через весь дом - оно вам надо? Когда можно перевернуть зеркально 2 помещения. + Окна кухни на север - хорошо, в кухне тепла и так достаточно Насколько я помню на этом участке фасад на юг, т.е. въеэд в гараж будет сбоку? Ну, на 24 сотках можно и так :-D Ага толково! Спасибо за идею. Въезд будет с запада. У нас дорога с запада и с юга полчится на 24 сотках. А если б на 12 тогда только с юга Посилання на коментар Поділитися на інших сайтах More sharing options...
XamGelo Опубліковано: 24 травня 2007 Поділитись Опубліковано: 24 травня 2007 Только не делайте котельную под санузлом, газ через санузлы тянуть нельзя Посилання на коментар Поділитися на інших сайтах More sharing options...
sweden Опубліковано: 26 травня 2007 Автор Поділитись Опубліковано: 26 травня 2007 XamGelo: В какой программе Вы делали проэкт, может можете мне скинуть файлы на tania#lviv.name Посилання на коментар Поділитися на інших сайтах More sharing options...
Дмитрий Викторович Опубліковано: 26 травня 2007 Поділитись Опубліковано: 26 травня 2007 Дом внутри неплохой, но снаружи не вызывает никаких эмоций. Мы сейчас стром аналогичный, так там снаружи просто сказка. Постараюсь на днях опубликовать. Посилання на коментар Поділитися на інших сайтах More sharing options...
sweden Опубліковано: 26 травня 2007 Автор Поділитись Опубліковано: 26 травня 2007 А внцтри, меня три двери в спальне смущают, вот переделали, что скажите? Посилання на коментар Поділитися на інших сайтах More sharing options...
Рекомендовані повідомлення
Створіть акаунт або увійдіть у нього для коментування
Ви маєте бути користувачем, щоб залишити коментар
Створити акаунт
Зареєструйтеся для отримання акаунта. Це просто!
Зареєструвати акаунтУвійти
Вже зареєстровані? Увійдіть тут.
Увійти зараз