Bogdan120608 Опубліковано: 17 червня 2014 Поділитись Опубліковано: 17 червня 2014 (змінено) Добрый день Наша стройка началась пол-года назад , скажу чесно особенно не вникала так как родился маленький ребенок и еще старшему 5. Теерь вижу что многое мы напартачили по незнанию . Пока выставлю то что есть , пожалуйста подскажите, а то мы с мужем разведемся пока построим Строим недавно , но вижу что многое сделано не так . Прошу подскажите может еще можно все исправить Змінено 17 червня 2014 користувачем Прохожий Посилання на коментар Поділитися на інших сайтах More sharing options...
ДОКС Опубліковано: 17 червня 2014 Поділитись Опубліковано: 17 червня 2014 оценил. а что подсказать? Посилання на коментар Поділитися на інших сайтах More sharing options...
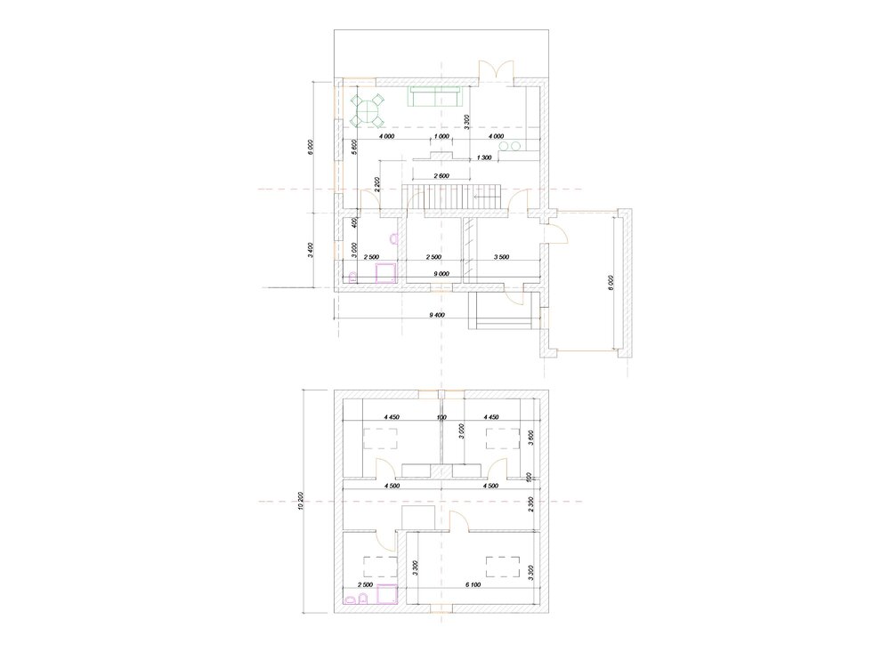
Andrei constructor Опубліковано: 18 червня 2014 Поділитись Опубліковано: 18 червня 2014 На втором этаже очень большой коридор, который еще и не освещается. Посилання на коментар Поділитися на інших сайтах More sharing options...
Kysil Опубліковано: 19 червня 2014 Поділитись Опубліковано: 19 червня 2014 ТС, а фасади у вас засекречені? Посилання на коментар Поділитися на інших сайтах More sharing options...
Просто Я Опубліковано: 21 червня 2014 Поділитись Опубліковано: 21 червня 2014 А что построено на данный момент? Что еще можно изменить? Вход в санузел из гостиной - плохо. Лестница крутая, центр дома получается какой-то бестолковой проходной зоной. Попробуйте перенести лестницу, сделайте ее двухмаршевой. Можно перенести ее на место комнаты рядом с санузлом, вход в санузел сделать под верхним маршем лестницы, а комнату перенести на место между санузлом и столовой зоной. Или же попробовать разместить лестницу в конце или в начале центрального "коридора". Посилання на коментар Поділитися на інших сайтах More sharing options...
Рекомендовані повідомлення
Створіть акаунт або увійдіть у нього для коментування
Ви маєте бути користувачем, щоб залишити коментар
Створити акаунт
Зареєструйтеся для отримання акаунта. Це просто!
Зареєструвати акаунтУвійти
Вже зареєстровані? Увійдіть тут.
Увійти зараз