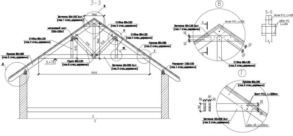
David77 Опубліковано: 18 червня 2014 Поділитись Опубліковано: 18 червня 2014 Уважаемые форумчане, нужен Ваш совет. Дом газоблок 375мм размером 8,6м на 8 м, мансардного типа. Плиты перекрытия ж/б. Внутренних несущих стен нет, только внешние. Нужен совет по стропильной системе. Планируется битумная черепица. Предлагают сделать следующим вариантом (на фото). Вопрос: - стропило 80*180мм можно ли заменить 50*200мм (утеплитель 200мм)? - стойки и подкосы 80*120мм поменять на 50*150мм? - нужны ли уголки соединения (стропил к мауэрлату) и металлические листы или можно просто обойтись гвоздями? - можно ли под битумку положить не подкладочный ковер, а например еврорубероид? Очень нужен совет. Посилання на коментар Поділитися на інших сайтах More sharing options...
David77 Опубліковано: 19 червня 2014 Автор Поділитись Опубліковано: 19 червня 2014 Немножко изменился план Посилання на коментар Поділитися на інших сайтах More sharing options...
#roofinspector Опубліковано: 20 червня 2014 Поділитись Опубліковано: 20 червня 2014 стропило 80*180мм можно ли заменить 50*200мм (утеплитель 200мм)? если брать примитивное сравнение двух сечений но 50*200 будет слабее. при 200й высоте и той ще прочности, понадобится ширина сечения не меньше 65 мм. Добавлено через 38 секунд - стойки и подкосы 80*120мм поменять на 50*150мм? это не так критично но исходя из предыдущего пункта - 150*65 Добавлено через 1 минуту нужны ли уголки соединения (стропил к мауэрлату) и металлические листы или можно просто обойтись гвоздями? ну, во первых, этот вопрос нужно задать автору проекта. правда, его ответ тчевиден и он отображен в чертежах. во вторых, просто напросто "заменить гвоздями" понятие абстрактное. что бы сравнить, нужно четко понимать где, сколько, как и какие гвозди вы хотите забивать. Добавлено через 54 секунды можно ли под битумку положить не подкладочный ковер, а например еврорубероид? этот вопрос нужно задавать не в этом подразделе и он уж точно, раз 200 раскрывался на форуме. полистайте Добавлено через 1 минуту Очень нужен совет. вам нужен толковый конструктор, имхо. ежели ваши аттиковые стены не имеют усиления колоннами из ж/б, имхо, если не к этой так к следующей зиме, следует ожидать проблемы "аллё! памагите! стены трескаюцца!" 1 Посилання на коментар Поділитися на інших сайтах More sharing options...
Dandik Опубліковано: 20 червня 2014 Поділитись Опубліковано: 20 червня 2014 (змінено) Вопрос: - стропило 80*180мм можно ли заменить 50*200мм (утеплитель 200мм)? - стойки и подкосы 80*120мм поменять на 50*150мм? - нужны ли уголки соединения (стропил к мауэрлату) и металлические листы или можно просто обойтись гвоздями? Очень нужен совет. Бросается в глаза, то что на разрезах нет осей, высотных отметок и некоторых размеров. Не критично, так как оси есть на плане, но эти вещи должны присутствовать. Мауэрлат я бы сдвинул от края на см 5. В предыдущем посте Вам все правильно сказали. По хорошему все вопросы которые Вы задали здесь надо задавать человеку, который делал проект. По сечениях небольшое пояснение, почему нельзя 50х200мм. Момент сопротивления сечения 8х18, W=8*18^2/6=432 cм^3, аналогичное 5х20, W=5*20^2/6=333,3 cм^3, а 6,5х20, W=6,5*20^2/6=433,3 cм^3. Стойки 5х15 не проходят по сечении в сравнении с 8х18. Уголки можно заменить на винт для деревянных конструкций(по сравнению с парой уголков должно быть дешевле) Просто пары гвоздей недостаточно. Змінено 20 червня 2014 користувачем Dandik 1 Посилання на коментар Поділитися на інших сайтах More sharing options...
aleksei2000 Опубліковано: 20 червня 2014 Поділитись Опубліковано: 20 червня 2014 ежели ваши аттиковые стены не имеют усиления колоннами из ж/б, имхо, если не к этой так к следующей зиме, следует ожидать проблемы "аллё! памагите! стены трескаюцца!" о проблеме читал, но можно подробнее? Какие-такие "колонны из ж/б" ? Армопоса под мауэрлатом (с заходом на фронтонную стену) разве не достаточно? И вопрос к автору - а почему нельзя опорные элементы "упереть в пол второго этажа" и разгрузить стены под мауерлатом? Или планировка не позволяет? Посилання на коментар Поділитися на інших сайтах More sharing options...
David77 Опубліковано: 20 червня 2014 Автор Поділитись Опубліковано: 20 червня 2014 ежели ваши аттиковые стены не имеют усиления колоннами из ж/б, если можно здесь немножко детальней ... Момент сопротивления сечения 8х18, W=8*18^2/6=432 cм^3, аналогичное 5х20, W=5*20^2/6=333,3 cм^3, а 6,5х20, W=6,5*20^2/6=433,3 cм^3. Стойки 5х15 не проходят по сечении в сравнении с 8х18. я так понял, что можно заменить 80*180 мм на 50*200 мм (хотя есть возможность и просто заказать 80*200 мм, но надо ли?), планируется битумка, а с таким сечением, говорят и ПЦ черепицу можно положить Посилання на коментар Поділитися на інших сайтах More sharing options...
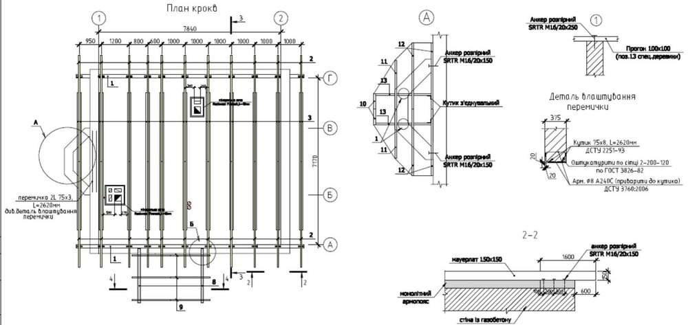
David77 Опубліковано: 20 червня 2014 Автор Поділитись Опубліковано: 20 червня 2014 И вопрос к автору - а почему нельзя опорные элементы "упереть в пол второго этажа" и разгрузить стены под мауерлатом? Или планировка не позволяет? вот план этажей, куда их поставить...??? Посилання на коментар Поділитися на інших сайтах More sharing options...
#roofinspector Опубліковано: 20 червня 2014 Поділитись Опубліковано: 20 червня 2014 если можно здесь немножко детальней ... www.stroimdom.com.ua/forum/showpost.php?p=249712&postcount=4 Добавлено через 1 час 5 минут Вот по теме вопроса: www.stroimdom.com.ua/forum/showthread.php?p=417737 www.stroimdom.com.ua/forum/showthread.php?p=249746 www.stroimdom.com.ua/forum/showthread.php?p=249712 Добавлено через 8 минут вот план этажей, куда их поставить...??? не имея разрезов и информации о типе перекрытия невозможно судить о том, куда опереть опоры. теоретически - спрятать в перегородки но при условии что перекрытие способно воспринять нагрузки. или... искать варианты после более детального анализа "коробки" Посилання на коментар Поділитися на інших сайтах More sharing options...
David77 Опубліковано: 20 червня 2014 Автор Поділитись Опубліковано: 20 червня 2014 Перекрытие - ж/б плиты между 1-ым и 2-ым этажом, на втором - деревянные балки Армопояс по всему периметру, не считая оконных проёмов шириной в области мауэрлата на всю стену (375мм) высотой 20 см, арматура 12. Газоблок был армирован (каждый 4 ряд двумя нитями арматурой 8). Армопояс тоже под плиты перекрытия и под мауэрлат соответственно Посилання на коментар Поділитися на інших сайтах More sharing options...
David77 Опубліковано: 29 червня 2014 Автор Поділитись Опубліковано: 29 червня 2014 (змінено) Посоветуйте, как сделать корольковый узел: две бригады, и каждая с них предлагает свой вариант. Какой из них будет более надежен в моём случае? Внутренних, несущих стен нет. Змінено 29 червня 2014 користувачем David77 Посилання на коментар Поділитися на інших сайтах More sharing options...
projectz Опубліковано: 1 липня 2014 Поділитись Опубліковано: 1 липня 2014 Посоветуйте, как сделать корольковый узел: две бригады, и каждая с них предлагает свой вариант. Какой из них будет более надежен в моём случае? Внутренних, несущих стен нет. Если у Вас будут внутренние стойки под коньковым прогоном, то второй вариант. Если нет, то первый. Это то же самое что и арочное соединение, только проще в монтаже, так как не нужно сводить каждую арку, а отдельно на временных подпорках выводить каждый скат. 1 Посилання на коментар Поділитися на інших сайтах More sharing options...
Игореха Опубліковано: 3 липня 2014 Поділитись Опубліковано: 3 липня 2014 (змінено) А кто-то уже задавал вопрос по поводу того, где строится автор? Или я пропустил? И какие нафиг разъезжающиеся стены?? Кто-то вообще видит, что конструктор предлагает безраспорную стропилку, или у меня монитор плохо показывает? )) Змінено 3 липня 2014 користувачем Игореха Посилання на коментар Поділитися на інших сайтах More sharing options...
David77 Опубліковано: 3 липня 2014 Автор Поділитись Опубліковано: 3 липня 2014 А кто-то уже задавал вопрос по поводу того, где строится автор? Хмельницкая область И какие нафиг разъезжающиеся стены?? Кто-то вообще видит, что конструктор предлагает безраспорную стропилку, или у меня монитор плохо показывает? )) Не совсем понял ???? Посилання на коментар Поділитися на інших сайтах More sharing options...
Игореха Опубліковано: 3 липня 2014 Поділитись Опубліковано: 3 липня 2014 Не совсем понял ???? Вам и не обязательно Вы же не конструируете свою кровлю, хоть и хотите внести изменения, в которых пока не очень разбираетесь Тут просто была реплика про "караул, трескаются стены". Очевидно, имелась ввиду классическая проблема воздействия распора на стены, которые не способны его воспринимать. Но у вас стропилка безраспорная. А если быть точным, ее распор ограничен прочностью крепежа - того, чем вы будете крепить уголки к мауэрлату. Посилання на коментар Поділитися на інших сайтах More sharing options...
projectz Опубліковано: 3 липня 2014 Поділитись Опубліковано: 3 липня 2014 А если быть точным, ее распор ограничен прочностью крепежа - того, чем вы будете крепить уголки к мауэрлату. А причем здесь, извините, прочность крепежа, если у него внизу затяжка стоит? Ну и насколько я знаю распор зависит от схемы стропилки, а выдерживание стен от обвязки (армопояс или мауэрлат) ну и соответственно крепления самого мауэрлата. Поправьте пжлста Посилання на коментар Поділитися на інших сайтах More sharing options...
Игореха Опубліковано: 3 липня 2014 Поділитись Опубліковано: 3 липня 2014 А причем здесь, извините, прочность крепежа, если у него внизу затяжка стоит? Ну если затяжка у него стоит внизу, тогда приношу свои извинения. Я думал, что там приподнятая затяжка. А если затяжка внизу, то тем более, распора на стены вообще не будет. Тогда можно и двумя двухсотками стропилку к мауэрлату крепить. И армопояс не нужен Посилання на коментар Поділитися на інших сайтах More sharing options...
projectz Опубліковано: 4 липня 2014 Поділитись Опубліковано: 4 липня 2014 Ну если затяжка у него стоит внизу, тогда приношу свои извинения. Я думал, что там приподнятая затяжка. А если затяжка внизу, то тем более, распора на стены вообще не будет. Тогда можно и двумя двухсотками стропилку к мауэрлату крепить. И армопояс не нужен Вернее некуда! Посилання на коментар Поділитися на інших сайтах More sharing options...
Рекомендовані повідомлення
Створіть акаунт або увійдіть у нього для коментування
Ви маєте бути користувачем, щоб залишити коментар
Створити акаунт
Зареєструйтеся для отримання акаунта. Це просто!
Зареєструвати акаунтУвійти
Вже зареєстровані? Увійдіть тут.
Увійти зараз