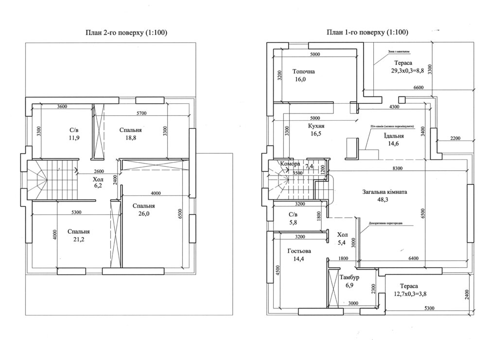
Наз2014 Опубліковано: 20 червня 2014 Поділитись Опубліковано: 20 червня 2014 Уважаемые форумчане, покритикуйте пожалуйста проект . Спасибо. Буду благодарен за любые комментарии. Посилання на коментар Поділитися на інших сайтах More sharing options...
Andrei constructor Опубліковано: 21 червня 2014 Поділитись Опубліковано: 21 червня 2014 1. Если в котельной будет газовый котел, то вход в котельную должен быть из коридора или тамбура или с улицы. 2. Сделайте лестницу без забежных ступеней. 3. Нет вентканалов и дымоходов. 4. Имхо перебор с угловыми окнами. Посилання на коментар Поділитися на інших сайтах More sharing options...
abelor Опубліковано: 21 червня 2014 Поділитись Опубліковано: 21 червня 2014 На первом этаже: 1. Вместо гостевой и с/у - кухня. 2. Вместо террасы - веранда. 3. Вместо тамбура и части общей комнаты - столовая. 4. Вместо кухни - с/у. 5. Вместо столовой - общая комната. 6. Вместо топочной - гостевая. Это первый "прикид". А вообще, уважаемые застройщики, пожалуйста примите за правило первоначально рассматривать УЧАСТОК ЗАСТРОЙКИ и ЕГО ХАРАКТЕРИСТИКИ(ориентация по странам света, геология, рельеф, разрывы по пожарным и санитарным нормам и т.д.и т.п.) и только ИСХОДЯ из ЭТИХ ХАРАКТЕРИСТИК ПРИСТУПАТЬ К ОБЪЕМНО-ПЛАНИРОВОЧНЫМ РЕШЕНИЯМ БУДУЩЕЙ НЕДВИЖИМОСТИ. Уважаемые форумчане, покритикуйте пожалуйста проект . Спасибо. Буду благодарен за любые комментарии. Посилання на коментар Поділитися на інших сайтах More sharing options...
Рекомендовані повідомлення
Створіть акаунт або увійдіть у нього для коментування
Ви маєте бути користувачем, щоб залишити коментар
Створити акаунт
Зареєструйтеся для отримання акаунта. Це просто!
Зареєструвати акаунтУвійти
Вже зареєстровані? Увійдіть тут.
Увійти зараз