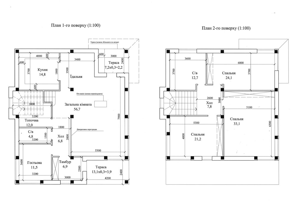
Наз2014 Опубліковано: 30 червня 2014 Поділитись Опубліковано: 30 червня 2014 Подскажите, можно ли расположить топочную под бетонной лестницей, нужен ли второй выход из топочной, котлы хотим ставить стационарные. проект топочной под лестницей прилагаю. Хотелось бы услышать мнение професианалов, на сколько этот вариант возможен? Спасибо за совет. Посилання на коментар Поділитися на інших сайтах More sharing options...
Антон сам строю дом Опубліковано: 30 червня 2014 Поділитись Опубліковано: 30 червня 2014 Подскажите, можно ли расположить топочную под бетонной лестницей, нужен ли второй выход из топочной, котлы хотим ставить стационарные. проект топочной под лестницей прилагаю. Хотелось бы услышать мнение професианалов, на сколько этот вариант возможен? Спасибо за совет. Если котел до 30 кВт то: -объем помещения - 7,5 м3 -высота не менее 2,2м. -Ограждающие конструкции (стены, перекрытия) котельной должны иметь предел огнестойкости не менее 0,75 ч. При этом предел распространения огня по всей площади конструкции должен быть равен нулю. Такие перегородки делают на всю высоту котла, при этом высота помещения должна быть не менее 2,5 м, стены выполнить парогазонепроницаемыми. - окно с форточкой, естественное освещение из расчета остекления 0,03 м2 на 1 м3 объема помещения - дымоход 1 Посилання на коментар Поділитися на інших сайтах More sharing options...
ketrin-n Опубліковано: 18 січня 2021 Поділитись Опубліковано: 18 січня 2021 а если помещение частично высотой 2,9 м, и часть помещения - пространство под лестницей 1,4 и выше по ходу лестницы. это не противоречит нормам? Посилання на коментар Поділитися на інших сайтах More sharing options...
ПГС-Проект Опубліковано: 18 січня 2021 Поділитись Опубліковано: 18 січня 2021 Какие планируете ставить котлы? Посилання на коментар Поділитися на інших сайтах More sharing options...
ketrin-n Опубліковано: 24 січня 2021 Поділитись Опубліковано: 24 січня 2021 спасибо) уже разрулила Посилання на коментар Поділитися на інших сайтах More sharing options...
Рекомендовані повідомлення
Створіть акаунт або увійдіть у нього для коментування
Ви маєте бути користувачем, щоб залишити коментар
Створити акаунт
Зареєструйтеся для отримання акаунта. Це просто!
Зареєструвати акаунтУвійти
Вже зареєстровані? Увійдіть тут.
Увійти зараз