Перейти до публікації
Пошук в
  • Додатково...
Шукати результати, які містять...
Шукати результати в...

Ремонт за 60 дней в новострое на 105 м2 от IGOR_73 и К*

IGOR_73

Рекомендовані повідомлення

ЧТо-то затихла тема, а бодрое начало было :(

 

Продолжение следует-прошло в нашем ремонте еще три недели.Ребята отдохнули и я успел перед последним рывком неделю побывать на море-было хорошо! В ремонте всегда самое интересное в начале и конце.В середине ремонта практически нечего рассказывать и фоткать-белые стены. За эти три недели мы с оштукатуренных стен и потолков подготовили полностью под покраску, а именно 350 м2 стен и потолков оклеили стеклохолстом, отшпаклевали холст и все это перешкурили-у нас на сегодняшний день полностью готовы стены и потолки к покраске-фотать белые стены не интересно! Но да этого уложили все плитку по санузлам,затерли ее,подготовили потолка в санузлах под покраску,поклеели багеты в санузлах ,покрасили там же потолки и установили бойлер,полотенцосушитель,душевую кабину RAVAK и унитазы . Положили плитку на рабочей зоне на кухне.Сейчас занимаемся по клейкой багета и подготовкой полов к укладки ламината и штучного линолеума.Всем до встречи!

IMG956.thumb.jpg.972a51ee760764e7cedb18e301a8f300.jpg

IMG954.thumb.jpg.5319cc60ecce0e5234c10156e04cecd0.jpg

IMG952.thumb.jpg.633d9634e0fb520ae7cf4498e4251ea3.jpg

IMG951.thumb.jpg.6a55f3b23ce1ac189c43ef958a5f9f63.jpg

IMG950.thumb.jpg.4b575436d051b4ff8da809545e4ed2ab.jpg

IMG898.thumb.jpg.ff766d66cf50fde3ade2cac906ed1074.jpg

Посилання на коментар
Поділитися на інших сайтах

а что за симпатичная плиточка, можете подсказать?
Подсказать могу -смотрите фото упаковки с названием.

IMG894.thumb.jpg.a2b038d3476a112523f85c0846ff6c22.jpg

IMG893.thumb.jpg.17bbbcbb3d84f671be21c7fa8c022c15.jpg

  • Лайк 1
Посилання на коментар
Поділитися на інших сайтах

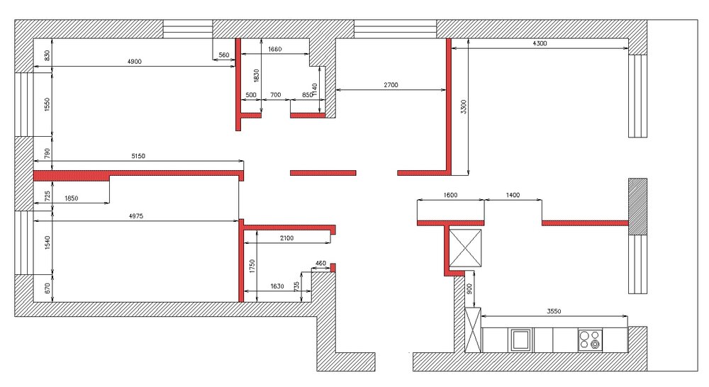
1. А где проект собсно? Можно выложить? План квартиры до/после демонтажа?
По Вашей просьбе план квартиры до и после!

Plan.pdf

2072183352_22-.thumb.jpg.0e005c97b019614b1959190883259541.jpg

Посилання на коментар
Поділитися на інших сайтах

Стоимость работ (электрика, общестрой, плитка) ? Если комплекс - то какая разбивка этапов и смета.
по стоимости работ в личку,а по по воду этапов-все это один этап в 60 дней-разделять на подэтапы не времени и возможности -это потеря времени.
Посилання на коментар
Поділитися на інших сайтах

что с водоснабжением - как обустроен ввод/фильтры?

Пока по фильтрации ничего не ставили,потому что ввод в квартиру находиться в общем холле и этот вопрос еще не обсуждался фото ввода выкладываю.

IMG899.thumb.jpg.a31d03aa084623178cb74c4cd69b761a.jpg

Посилання на коментар
Поділитися на інших сайтах

Самое интересное нас ждет впереди-ведь до окончания ремонта осталось 12 дней,а еще очень много надо сделать.Успеем мы или ....
Посилання на коментар
Поділитися на інших сайтах

По Вашей просьбе план квартиры до и после!

 

спасибо! планировка и начальная и конечная достаточно интересные. что редкость на сегодня для бюжетных вариантов.

 

а что будет в нише шириной 2700 напротив входа?

 

с водой все понятно, максимум это колбы под мойку поставить для питья.

Посилання на коментар
Поділитися на інших сайтах

а что будет в нише шириной 2700 напротив входа?

Это не ниша это полноценная комната-кабинет называется.

Посилання на коментар
Поділитися на інших сайтах

Прошло еще 5 дней в нашем ремонте-все по плану-плинтус потолочный поклеен во всех комнатах около 100мп и выготовлен под покраску.На следующий день выкрашенны все потолка -красили триорой тройкой и еще два дня понадобилось на покраску стен и устройство декоративной штукатурки на балконе крошки акриловой 1мм -краска и декоративка были у на KABE.Подготовлены все полы -очищены от наплывов,грязи,вскрыты бетоноконтактом и пролита самовыравнивающая стяжка Томзит ДД.

IMG964.thumb.jpg.ef2e5aa0beebb51b2e5d769d7ca0e067.jpg

IMG990.thumb.jpg.a72690e2ac335b23e794eebb818fa1c8.jpg

IMG998.thumb.jpg.35de7c0046e807315a2a6b4267e3aaff.jpg

IMG1007.thumb.jpg.19ac09ed6b35722c880b40c70960660e.jpg

IMG1012.thumb.jpg.4d127f2a3ff54a4534c64d78527f8574.jpg

IMG1018.thumb.jpg.9f9c6443f4687dd15bc1adc67927129b.jpg

IMG989.thumb.jpg.74bb16bbff327db8863d17092901e9ce.jpg

IMG992.thumb.jpg.c0256278465318da14971d529e8dc1aa.jpg

IMG996.thumb.jpg.5b72ae4adc1133772f56f26d6f19f428.jpg

IMG1000.thumb.jpg.a143ec21455bc1686e26b023c74a2b9b.jpg

IMG1005.thumb.jpg.20a19428ee4c7a96137cab252e95d27a.jpg

Посилання на коментар
Поділитися на інших сайтах

В этот день к нам приехал ламинат из норвегии с прокленной подложкой и с аллюминевами замками как на фото и уже начала стягиваться техника.До окончания ремонта у нас осталось одна неделя.Спасибо!

IMG993.thumb.jpg.1dbf9347d0dc3333763a634dbd36fb7f.jpg

IMG999.thumb.jpg.d1cc6ef966a5d956dee361782578b4dd.jpg

IMG979.thumb.jpg.3db1ede6f7ae0cfb72402bf5db3f5130.jpg

IMG981.thumb.jpg.792bb69ff7374015dc88cc8328b48a54.jpg

IMG983.thumb.jpg.1ffa6044d3f1a52444a5329ba1f689f7.jpg

Посилання на коментар
Поділитися на інших сайтах

За эти четверо дне уложено 90 м2 ламината без единной переходной планки по всей квартире и начали устанавливать розетки и светильники.На завтра у нас монтаж мебели,установка дверей и кондиционеров и укладка полу-коммерческого линолеума на балконе.

IMG1024.thumb.jpg.ec11d22cd38c1daed366826226d3ec77.jpg

IMG1025.thumb.jpg.272d38b0ae0cea7847ac0e6bd7bb6ab0.jpg

IMG1026.thumb.jpg.41dbf72b389361754ad8a902453d0a96.jpg

IMG1028.thumb.jpg.fa168d1dcca1ef22d1c60d58f00d0aea.jpg

IMG1031.thumb.jpg.12d1d2900b9153b7535f8383ed915cbf.jpg

IMG1032.thumb.jpg.2d16adac9b6e60e04282385b2ffd18a8.jpg

IMG1033.thumb.jpg.3e3c77587e6cfe0010e3be99e759e873.jpg

IMG1037.thumb.jpg.911aa2b15a5eda8be265e5d6b616703e.jpg

Посилання на коментар
Поділитися на інших сайтах

Установлена кухня с приборами-но без каменной столешницы -она будет немного позже,смонтированы все розетки,выключатели,светильники,сантехприборы,зеркала,радиаторы отопления.Также поклеен линолеум +плинтус на балконе.Начали устанавливать двери которые были заказаны на заказ в стиле кухни.У нас сегодня остался последний день.Завтра мой заказчик заезжает с вещами!!!

IMG1055.thumb.jpg.6a902cbd3eb1eb324b041b918e2f390d.jpg

IMG1054.thumb.jpg.85662473a15309da6927341d5674c7aa.jpg

IMG1053.thumb.jpg.99c58f3c7b802f5311d815606ba774cb.jpg

IMG1052.thumb.jpg.794728ec189c5ec9a46dc36b1f36a19c.jpg

IMG1049.thumb.jpg.02dc814406b19e98623a58a3f539a610.jpg

IMG1047.thumb.jpg.a6a7901cb00bcbab84b91197401ace74.jpg

IMG1043.thumb.jpg.8e33797e3bc955446dbc69faa1d750af.jpg

IMG1039.thumb.jpg.3b5daa8ec8ac679eedc2ba4fe422f218.jpg

Посилання на коментар
Поділитися на інших сайтах

Ремонт окончен.Всем спасибо кому была интересна эта тема.Было не легко организовать этот ремонт и вложиться в 60 дней.Спасибо всем ребятам-никто не подвел.Фото окончательного ремонта уже с мебелью выложу позже после расстановки.Готов ответить на различные вопросы по ремонту здесь и в личке

IMG1090.thumb.jpg.781cf290b2ca8b2794a768412591a821.jpg

  • Лайк 3
Посилання на коментар
Поділитися на інших сайтах

Ремонт окончен.Всем спасибо кому была интересна эта тема.Было не легко организовать этот ремонт и вложиться в 60 дней.Спасибо всем ребятам-никто не подвел.Фото окончательного ремонта уже с мебелью выложу позже после расстановки.Готов ответить на различные вопросы по ремонту здесь и в личке

 

Ну, и главный вопрос: такие сроки того стоят?

То есть - делали бы Вы себе так же быстро ремонт за такие же деньги или все же есть смысл не гнать, а с расстановочкой, но за 3-4 месяца?

  • Лайк 1
Посилання на коментар
Поділитися на інших сайтах

Ну, и главный вопрос: такие сроки того стоят?

Стоит! И главное на качестве не отразилось!

 

Добавлено через 33 секунды

Где брали межкомнатные двери и по чем?

На заказ частное лицо!

  • Лайк 1
Посилання на коментар
Поділитися на інших сайтах

  • 2 тижні потому...

Игорь, здравствуйте!

Впечатлена вашим ремонтом в новострое за 60 дней. мне предстоит тоже 108 квадратов отремонтировать в новострое, надеюсь, что достаточно скоро. Скажите, вы не могли бы поделиться сметой. хотя бы на работы, чтобы понимать, могу ли я к вам начинать обращаться)

  • Лайк 1
Посилання на коментар
Поділитися на інших сайтах

  • 2 місяці потому...
Игорь, здравствуйте!

Впечатлена вашим ремонтом в новострое за 60 дней. мне предстоит тоже 108 квадратов отремонтировать в новострое, надеюсь, что достаточно скоро. Скажите, вы не могли бы поделиться сметой. хотя бы на работы, чтобы понимать, могу ли я к вам начинать обращаться)

Давно я не заходил в свою темку.Если есть вопросы пишите в личку.

Посилання на коментар
Поділитися на інших сайтах

Створіть акаунт або увійдіть у нього для коментування

Ви маєте бути користувачем, щоб залишити коментар

Створити акаунт

Зареєструйтеся для отримання акаунта. Це просто!

Зареєструвати акаунт

Увійти

Вже зареєстровані? Увійдіть тут.

Увійти зараз
×
×
  • Створити...