Перейти до публікації
Пошук в
  • Додатково...
Шукати результати, які містять...
Шукати результати в...

Покритикуйте проект дома

Cunard

Рекомендовані повідомлення

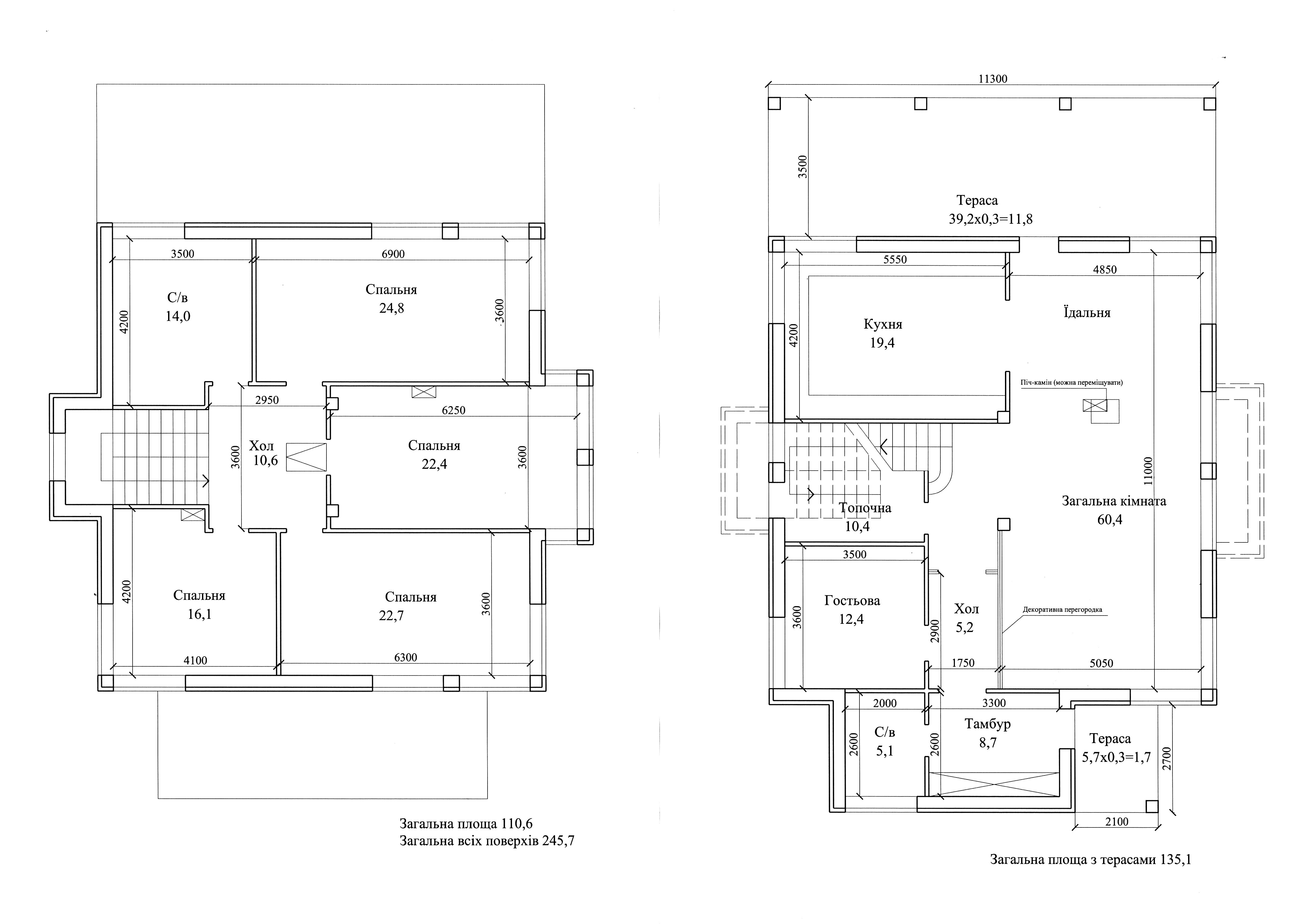
Добрый день всем! Нарисовали с архитектором эскизный проект, хотелось бы услышать еще какое то мнение.

Заранее спасибо!

10848078_1--.thumb.jpg.46d7120bdb95c6fb3824154c2d5c869e.jpg

2061503331_-2(1).thumb.jpg.b4a833eb45e79af5198473483cfd8224.jpg

679353369_-(1).thumb.jpg.9af036c5773346660d92ba01ea2c3441.jpg

Посилання на коментар
Поділитися на інших сайтах

1. Кухню ближе ко входу.

2. На втором этаже плохое соотношение сторон комнат в спальнях (большая длина помещений). Расставьте там мебель.

Посилання на коментар
Поділитися на інших сайтах

Створіть акаунт або увійдіть у нього для коментування

Ви маєте бути користувачем, щоб залишити коментар

Створити акаунт

Зареєструйтеся для отримання акаунта. Це просто!

Зареєструвати акаунт

Увійти

Вже зареєстровані? Увійдіть тут.

Увійти зараз
×
×
  • Створити...