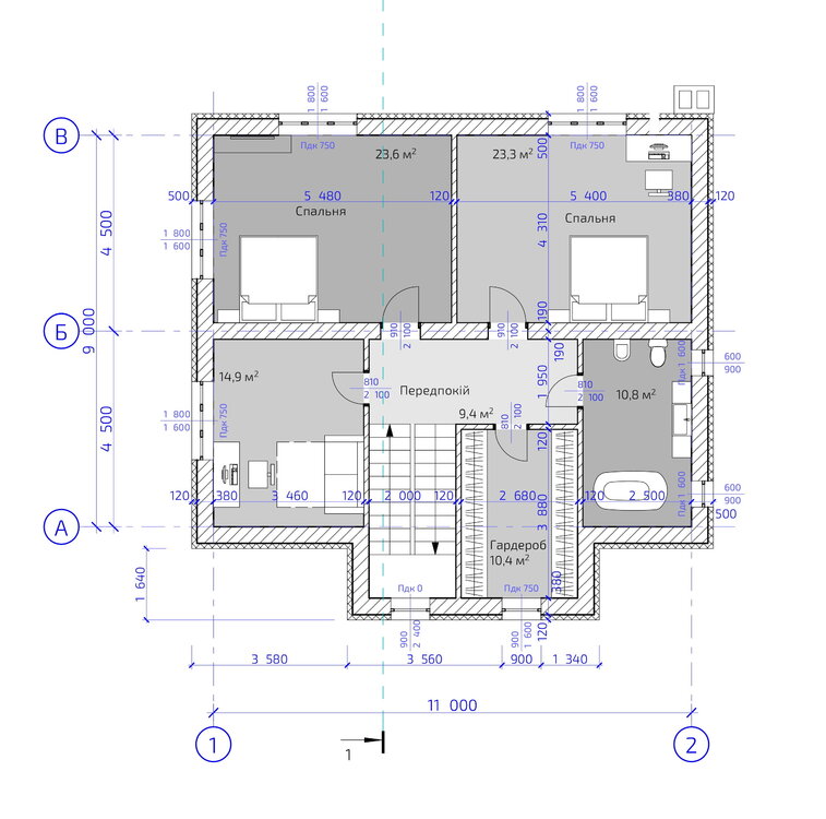
Sergiy.Sereda Опубліковано: 8 серпня 2014 Поділитись Опубліковано: 8 серпня 2014 покритикуйте пожалуйста черновик проекта 2 эт дома на 6 сот. Посилання на коментар Поділитися на інших сайтах More sharing options...
D2012 Опубліковано: 8 серпня 2014 Поділитись Опубліковано: 8 серпня 2014 По первому этажу. Сделайте нормальный небольшой глубиной 1,5м тамбур. В тамбуре все равно не рекомендуется хранить вещи, так зачем его делать таким большим? Оставшееся пространство соедините с холлом без простенка со стороны гардеробной. Не видно топочной, может в коморе котел задумывался. Я бы гостинную побольше сделал, например за счет выступающего эркера. Традиционная любовь половины форумчан к неполноценным лестницам с забежными ступенями))). По второму эт. вроде все ок. Посилання на коментар Поділитися на інших сайтах More sharing options...
Sergiy.Sereda Опубліковано: 8 серпня 2014 Автор Поділитись Опубліковано: 8 серпня 2014 котельную планирую в "каморе", там же мето для всякого хоз инвентаря и т. п. по лестнице - переведите пож для любителя. Посилання на коментар Поділитися на інших сайтах More sharing options...
D2012 Опубліковано: 8 серпня 2014 Поділитись Опубліковано: 8 серпня 2014 У Вас вырисовывается добротный дом, без комнат-кладовок, достаточно просторный. Думаю имеет смысл сделать полноценую лестницу (два марша + плоская площадка). Под котельную по нормам надо отгородить отдельное помещение от коморы 1 Посилання на коментар Поділитися на інших сайтах More sharing options...
Andrei constructor Опубліковано: 9 серпня 2014 Поділитись Опубліковано: 9 серпня 2014 Установите вентканалы и дымоход. Тамбур действительно съел прихожую (посмотрите в прихожей нет необходимой мебели). Сделайте кладовку под лестницей. Посилання на коментар Поділитися на інших сайтах More sharing options...
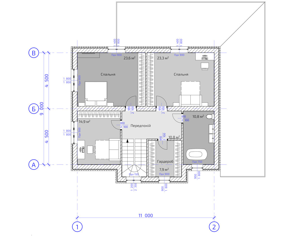
Sergiy.Sereda Опубліковано: 16 серпня 2014 Автор Поділитись Опубліковано: 16 серпня 2014 доработанный вариант Посилання на коментар Поділитися на інших сайтах More sharing options...
D2012 Опубліковано: 18 серпня 2014 Поділитись Опубліковано: 18 серпня 2014 1. С лестницей все ок. 2. Не понятно, почему вы так настойчиво хотите сделать гардероб составной частью тамбура, а не холла??? Тамбур в новом варианте должен был быть как раз, где сейчас крыльцо. 3. Если кровля будет вальмовая, пирамидоподобная, то выступающий блок (лестница + гардер.) желательно отцентровать относитьльно вершины крыши. Потому как сейчас он смещен вправо Посилання на коментар Поділитися на інших сайтах More sharing options...
Рекомендовані повідомлення
Створіть акаунт або увійдіть у нього для коментування
Ви маєте бути користувачем, щоб залишити коментар
Створити акаунт
Зареєструйтеся для отримання акаунта. Це просто!
Зареєструвати акаунтУвійти
Вже зареєстровані? Увійдіть тут.
Увійти зараз