tom80 Опубліковано: 27 вересня 2014 Поділитись Опубліковано: 27 вересня 2014 день добрый на днях надо начинать крыть кровлю хотел бы найти правильное решение. одни говорят что надо делать по варианту 1 а вторые что по 2, какой вариант будет теплее и надежнее? вводные данные: второй этаж перекрыт плитами перекрытия. чердак холодный проветриваемый. Вариант 1 1. битумка. 2. рубероид аквоизол ПЭ 2,5. 3. osb 10mm 4. доска обрешетка 30*150 5. стропильная система с шагом 800мм крепиться на мауэрлат. 6. деревянные доски ходового настила 40мм. 7. супер диффузионная мембрана 8. утеплитель 250мм минеральная вата термолайт ТЛ пол125. 9. пароизоляция. 10. заливка бетона 25мм по плитам перекрытия. Вариант 2 1. битумка катепал. 2. подкладочный ковер delta roof. 3. osb 12mm 4. доска обрешетка 30*150 5. мембрана супердиффузионная ventia iron. 6. стропильная система с шагом 800мм крепиться на мауэрлат. 7. деревянные доски ходового настила 40мм. 8. утеплитель 250 . 9. заливка бетона 30мм по плитам перекрытия. для чего нужен ендовый ковер? он есть в варианте 2. З.ы. в этом варианте мог что то перепутать местами. Посилання на коментар Поділитися на інших сайтах More sharing options...
#roofinspector Опубліковано: 27 вересня 2014 Поділитись Опубліковано: 27 вересня 2014 крыша: 1. битумка катепал. 2. подкладочный ковер delta roof. 3. osb 12mm 4. доска обрешетка 30*150 (шагом не более 400мм) 5. мембрана супердиффузионная ventia iron. 6. стропильная система с шагом 800мм крепиться на мауэрлат. перекрытие: 7. деревянные доски ходового настила 40мм. 7.1. лаги из досок 40*250 шагом 600 8. утеплитель 250 .(важно утеплитель довести до наружного контура утепления фасада (если будет) или до края стены. если будут коренниковые стены - обязательно их тоже утеплить) 8.1. пароизоляция 9. заливка бетона выравнивающая стяжка из Ц/П раствора 30мм по плитам перекрытия. ИМХО вот так правильно при холодном чердаке и жб перекрытии. для чего нужен ендовый ковер? он есть в варианте 2. для устройства ендов. он нужен в любом варианте, если у вас есть ендовы 1 Посилання на коментар Поділитися на інших сайтах More sharing options...
tom80 Опубліковано: 27 вересня 2014 Автор Поділитись Опубліковано: 27 вересня 2014 5. мембрана супердиффузионная ventia iron. а почему ее вычеркнули? в холодных чердаках в ней нет смысла? Добавлено через 9 минут заливка бетона выравнивающая стяжка из Ц/П раствора 30мм по плитам перекрытия. а можно это залить после того как крыша будет уже готова? не будит ли проблем для кровли, влага выделяемая при сушке бетона? Посилання на коментар Поділитися на інших сайтах More sharing options...
#roofinspector Опубліковано: 27 вересня 2014 Поділитись Опубліковано: 27 вересня 2014 а почему ее вычеркнули? в холодных чердаках в ней нет смысла? в "холодных" чердаках мембрана играет роль продкровельной гидроизоляции (у вас эту роль будет играть подкладочный ковёр) в мансардных этажах мембрана дополнительно выполняет роль ветроизоляции утеплителя. у вас его не будет. так что и мембрана не нужна Добавлено через 1 минуту а можно это залить после того как крыша будет уже готова? не будит ли проблем для кровли, влага выделяемая при сушке бетона? не будет. если обеспечите надлежащую вентиляцию чердака то вреда особого не возникнет. хотя, удобнее стяжку выполнить до стропил. чисто с позиции физического комфорта выполнения работ. ИМХО. 1 Посилання на коментар Поділитися на інших сайтах More sharing options...
tom80 Опубліковано: 27 вересня 2014 Автор Поділитись Опубліковано: 27 вересня 2014 удобнее стяжку выполнить до стропил. скажите а зачем вообще делать стяжку по плитам перекрытиям, если швы мы и так зальем. интуитивно понимаю что нужна стяжка но научного объяснения не нашел. Посилання на коментар Поділитися на інших сайтах More sharing options...
#roofinspector Опубліковано: 27 вересня 2014 Поділитись Опубліковано: 27 вересня 2014 скажите а зачем вообще делать стяжку по плитам перекрытиям, если швы мы и так зальем. интуитивно понимаю что нужна стяжка но научного объяснения не нашел. ну вы сами её придумали. я просто подкорректировал. много что значит качество поверхности: если не будет резких перепадов и острых участков, которые смогут повредить пароизоляцию, то и не нужна стяжка. Посилання на коментар Поділитися на інших сайтах More sharing options...
tom80 Опубліковано: 27 вересня 2014 Автор Поділитись Опубліковано: 27 вересня 2014 скажите а вы случайно не знает сколько должно быть установлено вентиляционных элементов фирмы vilpe как на фото для вентиляции кровли в 250-300 квадратов, и где эти элементы должны быть установлены? крыша 4-скатная. заранее спасибо. Посилання на коментар Поділитися на інших сайтах More sharing options...
Vitaliy_Goy Опубліковано: 29 вересня 2014 Поділитись Опубліковано: 29 вересня 2014 скажите а вы случайно не знает сколько должно быть установлено вентиляционных элементов фирмы vilpe как на фото для вентиляции кровли в 250-300 квадратов, и где эти элементы должны быть установлены? крыша 4-скатная. заранее спасибо. Добрый день. Дайте картинку, плана кровли со всеми трубами, шахтами и т.д. Посчитаем. Посилання на коментар Поділитися на інших сайтах More sharing options...
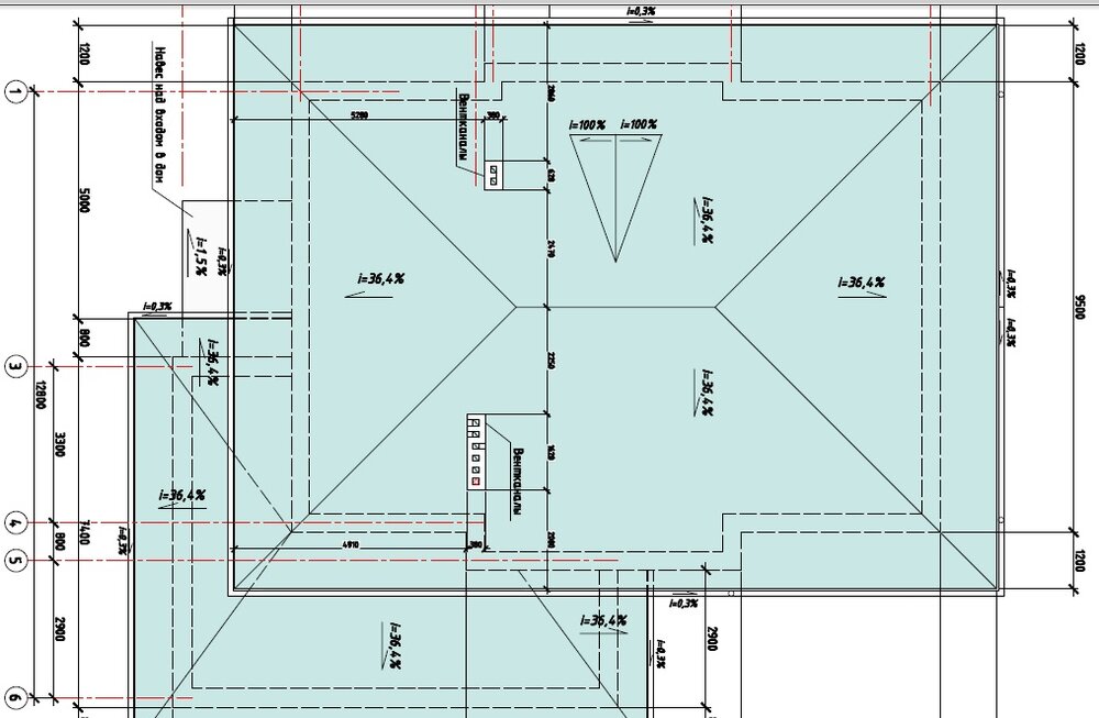
tom80 Опубліковано: 29 вересня 2014 Автор Поділитись Опубліковано: 29 вересня 2014 Добрый день. Дайте картинку, плана кровли со всеми трубами, шахтами и т.д. Посчитаем. это моя кровля. только решили делать один отсек для вентиляционных труб. длина 16.5метров. Посилання на коментар Поділитися на інших сайтах More sharing options...
Татьяна5 Опубліковано: 29 вересня 2014 Поділитись Опубліковано: 29 вересня 2014 скажите а вы случайно не знает сколько должно быть установлено вентиляционных элементов фирмы vilpe как на фото для вентиляции кровли в 250-300 квадратов, и где эти элементы должны быть установлены? крыша 4-скатная. заранее спасибо. 1 шт на 50 м2 в среднем Посилання на коментар Поділитися на інших сайтах More sharing options...
Vitaliy_Goy Опубліковано: 30 вересня 2014 Поділитись Опубліковано: 30 вересня 2014 Вариант №1 [ATTACH]387276[/ATTACH] Вариант №2 [ATTACH]387277[/ATTACH] (ссылка устарела) (ссылка устарела) Посилання на коментар Поділитися на інших сайтах More sharing options...
tom80 Опубліковано: 30 вересня 2014 Автор Поділитись Опубліковано: 30 вересня 2014 1 шт на 50 м2 в среднем и отверстие делается не насквозь до чердака а только в osb и в ковре. получается вентиляция самой кровли а не чердака. Посилання на коментар Поділитися на інших сайтах More sharing options...
Vitaliy_Goy Опубліковано: 30 вересня 2014 Поділитись Опубліковано: 30 вересня 2014 и отверстие делается не насквозь до чердака а только в osb и в ковре. получается вентиляция самой кровли а не чердака. Совершенно верно. Посилання на коментар Поділитися на інших сайтах More sharing options...
#roofinspector Опубліковано: 30 вересня 2014 Поділитись Опубліковано: 30 вересня 2014 скажите а вы случайно не знает сколько должно быть установлено вентиляционных элементов фирмы vilpe как на фото для вентиляции кровли в 250-300 квадратов, и где эти элементы должны быть установлены? крыша 4-скатная. заранее спасибо. суммарная площадь сечения вентвыхода должна быть 1/500 от площади крыши. например, при вашей площади в 300 м/кв необходимо обеспечить отток воздуха в 0,6 м.кв. Насколько мне понятно из описания Huopa - KTV - вентиляционный выход имеет сечение 0,15х0,15=0,0225 0,6/0,0225=27 вентвыходов или 1 слуховое окно с размерами 0,7*0,8м с жалюзями. Посилання на коментар Поділитися на інших сайтах More sharing options...
Vitaliy_Goy Опубліковано: 30 вересня 2014 Поділитись Опубліковано: 30 вересня 2014 суммарная площадь сечения вентвыхода должна быть 1/500 от площади крыши. например, при вашей площади в 300 м/кв необходимо обеспечить отток воздуха в 0,6 м.кв. Насколько мне понятно из описания Huopa - KTV - вентиляционный выход имеет сечение 0,15х0,15=0,0225 0,6/0,0225=27 вентвыходов или 1 слуховое окно с размерами 0,7*0,8м с жалюзями. Не совсем так. У КТВ 149 мм. диаметр отверстия, что равно около 0,165 м.кв. Диаметр 0,25 м.кв. вентилирует 100м.кв., а это значит 0,165 * 100/0,25 = 66 м.кв. вентилирует одна КТВ. Посилання на коментар Поділитися на інших сайтах More sharing options...
#roofinspector Опубліковано: 30 вересня 2014 Поділитись Опубліковано: 30 вересня 2014 диаметр отверстия, что равно около 0,165 м.кв. вы что то путаете? как это понять "диаметр равен ____ м.кв.?" что бы получить 0,165 м.кв. нам нужно иметь квадрат со сторонами 40см*40см (сорок сантиметров на сорок сантиметров) если у нас диаметр равен 0,149 м то площадь круга составляет 0,07 м.кв. Посилання на коментар Поділитися на інших сайтах More sharing options...
Vitaliy_Goy Опубліковано: 30 вересня 2014 Поділитись Опубліковано: 30 вересня 2014 вы что то путаете? как это понять "диаметр равен ____ м.кв.?" что бы получить 0,165 м.кв. нам нужно иметь квадрат со сторонами 40см*40см (сорок сантиметров на сорок сантиметров) если у нас диаметр равен 0,149 м то площадь круга составляет 0,07 м.кв. "Математика це просто!" Посилання на коментар Поділитися на інших сайтах More sharing options...
#roofinspector Опубліковано: 30 вересня 2014 Поділитись Опубліковано: 30 вересня 2014 "Математика це просто!" Ну и вот результат: Оберіть відому величину Введіть довжину діаметра круга: d = 0,149 (м) Розв'язок: S = ***** ≈ 0.017436620998 (м.кв.) 0,6/0,01744=34 аэратора. И особо удивительного тут ничего нет. Вот, например, не битумка, но пример показательный: Посилання на коментар Поділитися на інших сайтах More sharing options...
Vitaliy_Goy Опубліковано: 30 вересня 2014 Поділитись Опубліковано: 30 вересня 2014 Ну и вот результат: 0,6/0,01744=34 аэратора. И особо удивительного тут ничего нет. Вот, например, не битумка, но пример показательный: Я не настаиваю на своих 7шт. Ставьте 34шт. ;) Посилання на коментар Поділитися на інших сайтах More sharing options...
Игореха Опубліковано: 30 вересня 2014 Поділитись Опубліковано: 30 вересня 2014 Я не настаиваю на своих 7шт. Ставьте 34шт. ;) Больше интересует вопрос, согласно каким математическим формулам вы получили.... У КТВ 149 мм. диаметр отверстия, что равно около 0,165 м.кв. )))) 1 Посилання на коментар Поділитися на інших сайтах More sharing options...
#roofinspector Опубліковано: 30 вересня 2014 Поділитись Опубліковано: 30 вересня 2014 Больше интересует вопрос, согласно каким математическим формулам вы получили.... или нолик после запятой один упустил или просто верил написанному на бумаге. Посилання на коментар Поділитися на інших сайтах More sharing options...
Vitaliy_Goy Опубліковано: 1 жовтня 2014 Поділитись Опубліковано: 1 жовтня 2014 или нолик после запятой один упустил или просто верил написанному на бумаге. Ошибся м и см. Посилання на коментар Поділитися на інших сайтах More sharing options...
Рекомендовані повідомлення
Створіть акаунт або увійдіть у нього для коментування
Ви маєте бути користувачем, щоб залишити коментар
Створити акаунт
Зареєструйтеся для отримання акаунта. Це просто!
Зареєструвати акаунтУвійти
Вже зареєстровані? Увійдіть тут.
Увійти зараз