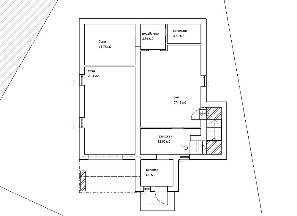
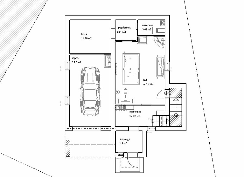
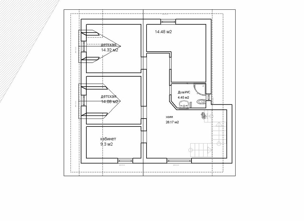
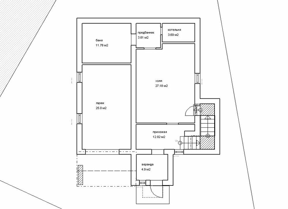
oleg_ Опубліковано: 4 червня 2007 Поділитись Опубліковано: 4 червня 2007 Добрый день. Хотел бы услышать критику, отзывы по моему проекту. Кратко о проекте. 1 (0) этаж: Высота 2.40 Армированный пояс 30*50см. Материал - блоки фундаментные. Северная сторона будет на 3/4 в земле, западная от 3/4 почти до 0 с уклоном в земле. Практичность: Гараж, прихожая-гардероб для верхней одежды и обуви, залл под камин, бильярд/тренажер/дом. кинотеатр, сауна, котельня. Будет использоваться относительно редко. 1 этаж: Высота 2,6 кирпич рядовой+кирп облицовочный шириной 6,5см (желтый). Хотелось бы утеплить пенопластом (Вопрос: как это сделать?) Зона основной активности. Кухня, Зал, Ванная, туалет, спальня, кладовка с выходом на балкон. Мансарда. Высота 2.4 Рядовой кирпич (или пенобетон)+облиц. 6,5см. Детские, кабинет, душ/туалет. Крыша металлочерепица (коричневая скорей всего ). Вот так в кратце. Посилання на коментар Поділитися на інших сайтах More sharing options...
oleg_ Опубліковано: 4 червня 2007 Автор Поділитись Опубліковано: 4 червня 2007 продолжу... Посилання на коментар Поділитися на інших сайтах More sharing options...
Fuzik Опубліковано: 4 червня 2007 Поділитись Опубліковано: 4 червня 2007 ТОлько ты не в ту тему попал Посилання на коментар Поділитися на інших сайтах More sharing options...
oleg_ Опубліковано: 5 червня 2007 Автор Поділитись Опубліковано: 5 червня 2007 ТОлько ты не в ту тему попал ??? а в какую тогда надо? Посилання на коментар Поділитися на інших сайтах More sharing options...
Solon Опубліковано: 5 червня 2007 Поділитись Опубліковано: 5 червня 2007 Чета я не понял, где у тебя вход, через подвал что-ли? А где первый этаж? Я так понял, ты просто забыл его прикрепил. Сан узел полюбому увеличь, за счет близлежащей комнаты, 4.5 метров это мало для совмещенного узла. Посилання на коментар Поділитися на інших сайтах More sharing options...
Pe_Na Опубліковано: 5 червня 2007 Поділитись Опубліковано: 5 червня 2007 Я наверное чего-то не понимаю... Если 1 (0) этаж низкий, в земле и используется редко, то зачем там веранда? И зачем санузлу на первом этаже выходить за границы дома? Неужели недостаточно площади внутри? Ну и еще смущает высота этажа... Я не сторонник 4х метровых потолков на маленьких площадях, но и 2,6 - это как по мне перебор (скорее, недобор). Не надоели нависающие потолки в квартирах? У меня в прошлой было 3м, сейчас 2,65. Единственное удобство - не надо высоко лезть лампочку поменять. А иначе тесно, имхо Посилання на коментар Поділитися на інших сайтах More sharing options...
Pe_Na Опубліковано: 5 червня 2007 Поділитись Опубліковано: 5 червня 2007 А, звыняйте, действительно не поняла. Это не веранда, а вход, оказывается. А зачем тогда такой холл на 0 уровне? И где выход из гаража? И что за помещение 14,5 в мансарде? Посилання на коментар Поділитися на інших сайтах More sharing options...
oleg_ Опубліковано: 5 червня 2007 Автор Поділитись Опубліковано: 5 червня 2007 Спасибо за отзывы и критику. (давайте еще). щас все объясню. 1 этаж (по сути не жилой) - находится на земле. Поясню по этажам. 1 (0 - цокольный, хотя фактически он не в земле, а на ней, и, по сути первый). Потом идет жилой этаж (там где кухня, зал, спальня) пусть будет 2-м. и мансарда 3-й. Ну, пусть будет не веранда, а вход. Потом через него поднимаешся на верх на жилой этаж. на 3 D модели все ясно нарисовано. Я планировал сперва закопать цокольный этаж сантиметров на 60 в землю, сделать лестницу на улице и вход через веранду на 1 этаж. батя отговорил, потому как высокая лестница получалась, навес нужен, снег там, лед и т.д. И решили не закапываться. вход делать с земли. Потому такая конфигурация. На счет санузла 4,5 - не спорю, там есть резерв стену сдвинуть и увеличить. Но, это ж 2й санузел, на мансарде. 1й на первом этаже. Помещение 14,5 на мансарде - хм... ну так на будущее, резерв для расширения (библиотека, спортзал, кладовая, гардероб, и т.д.) какая разница? По высоте, ну я считаю что для гоража, и для зала на том же этаже 2,4 хватит. там мало времени проводить собираюсь (относительно), ну в принципе можно поднять на 10-15 см за счет арм. пояса под панели - но смысла не вижу. Потолки не надоели (так как в квартирах не жил), дома у бати вроди бы под 3, но по его и по моему мнению этого излишек. В принципе резонный совет увеличить на 2 м этаже высоту. По мансарде то же самое. будет нотносительно низким. По холлу на 1 этаже. Ну а что там предлагаете? Выход их гаража - через ворота (можно на секционные раскошелиться со временем). В крайнем случае можно сделать вход через прихожую, но особо смысла не вижу. Дом, конечно не блещет красотой и дизайном (ввиду ограниченности фин. ресурсов Планирую сделать коробку, накрыть, окна и отделать 2 этаж. 1 и мансарду заморозить до лучших времен (детей пока нет). Вот так. Спрашивайте. Посилання на коментар Поділитися на інших сайтах More sharing options...
Pe_Na Опубліковано: 5 червня 2007 Поділитись Опубліковано: 5 червня 2007 Как по мне, то не очень удобно каждый раз для того чтобы выйти на улицу, бегать через 0 этаж. Это как минимум лишняя лестница, что не добавляет комфорта. Если, например, традиционный первый этаж немного приподнят над землей, то в него без проблем войдет и человек с больной ногой (ну я знаю, что вечно рассматриваю какие-то болезненные случаи, но что делать - это же жизнь и бывает всякое), и в таком случае организовывается жилая комната на первом этаже и человек не испытывает неудобств. Тем более, что это не квартира, необходимость, да и желание выйти на улицу гораздо чаще появляется. В спальных помещениях высоту можно и не увеличивать, но в так называемой репрезентативной зоне 2,6 ну маловато... Санузел на втором увеличивайте. Потому что он не "второй", а основной, т.к. находится возле спален. Вы же не будете мыться на первом этаже и идти на второй? Еще по гаражу - оно понятно, что выйти можно через ворота, потом зайти в тамбур, холл и т.д. Но если уж гараж делаете в доме, то логично выходить из него сразу в холл или тамбур Посилання на коментар Поділитися на інших сайтах More sharing options...
alexa Опубліковано: 5 червня 2007 Поділитись Опубліковано: 5 червня 2007 Если финансы не позволяют, зачем строить дом в три уровня? Может лучше построить небольшой красивый домик и жить а не заниматься строительством всю жизнь? Посчитали, сколько обойдется отопление такого дома при постоянно дорожающих энергоресурсах? Сколько будет стоить отделка, меблирование, обстановка? Зачем цоколь полностью на земле? Ведь все равно будете делать фундамент глубиной не менее 1,2 м. Лучше углубить цоколь на половину в землю до уровня фундамента. Посилання на коментар Поділитися на інших сайтах More sharing options...
oleg_ Опубліковано: 5 червня 2007 Автор Поділитись Опубліковано: 5 червня 2007 Как по мне, то не очень удобно каждый раз для того чтобы выйти на улицу, бегать через 0 этаж. Это как минимум лишняя лестница, что не добавляет комфорта. Если, например, традиционный первый этаж немного приподнят над землей, то в него без проблем войдет и человек с больной ногой (ну я знаю, что вечно рассматриваю какие-то болезненные случаи, но что делать - это же жизнь и бывает всякое), и в таком случае организовывается жилая комната на первом этаже и человек не испытывает неудобств. Тем более, что это не квартира, необходимость, да и желание выйти на улицу гораздо чаще появляется. Согласен, что не очень удобно. Объясню почему так. Условия такие просто, участок очень маленький, вокруг дома от 1,5 м до 5 до забора, причем форма непонятной фигуры. Вообще, у бати во дворе в Ирпене щас участки по 20 000 сотка. Выхода другого не было. Сперва думал делать 2 этажа, гараж сбоку, над ним большая комната, получалось дом, большой черепахой ложился чуть ли не на весь участок. Потом пришла идея уйти немного в землю, сделать нижний этаж полностью из блоков (сэкономив при этом), но, тогда автоматически вход в дом поднимался вверх. Можно было за счет неровности участка (насыпать земли, да и так там подъем есть) решить проблему+ лестница на улице, но в итоге решили лестницу спрятать от атм. осадков ))) да и действительно, чище будет на 2 этаже. вот так, и участок при этом посвободнее получается. Конечно, меня смущает 3 этажа... потому и высотой играюсь. По санузлу. Основной на 2 м этаже, там где ванная, там будет спальня. На мансарде будет душ и туалет вместе. мансарда для детей по идее. Но расширить думаю следует. по гаражу. Да согласен я, сам так хотел, что б из дома в гараж был ход. но батя меня запугал выхлопами в доме... да и блоки там ложаться так, что... ну помучаться придется. я подумаю еще, в принципе, это уже не жилая зона, а так.. проходная. что еще? Посилання на коментар Поділитися на інших сайтах More sharing options...
Pe_Na Опубліковано: 5 червня 2007 Поділитись Опубліковано: 5 червня 2007 А какая ширина участка и планируемая ширина дома? Гараж ведь можно сделать примыкающим к дому торцом, если нет места в ширину, но и не хочется делать в доме. Потому что, ИМХО, строить дом, чтобы потом постоянно что-то в нем вызывало неудобство - не есть правильным. Конечно, все равно не получится учесть все минусы, но чем больше их удастся "выловить" до строительства, тем лучше Посилання на коментар Поділитися на інших сайтах More sharing options...
oleg_ Опубліковано: 5 червня 2007 Автор Поділитись Опубліковано: 5 червня 2007 12*14*23*25 немного похож на паралеллограм но основы не параллельны ) Дом - 9,6(11,10)*10,6. гараж никак по другому не становиться. сбоку можно, но минусы я описывал выше, да и не много это сэкономит, а вот внизу - экономия участка, этаж относительно не дорого, но... вход не очень.... ничего не поделаешь. по поводу входить неудобно, подниматься по лестнице - согласен не супер вариант, но иначе больше минусов вылазит. да и если б лестница шла на улице - подниматься все равно пришлось бы. это меня не сильно смущает (пока, надеюсь и не смутит дальше )) Скажите лучше, как между рядовым и лицевым кирпичем пенопласт забабахать... Посилання на коментар Поділитися на інших сайтах More sharing options...
XamGelo Опубліковано: 5 червня 2007 Поділитись Опубліковано: 5 червня 2007 А как конкретно идет уклон? Не пробовал поиграться с несколькими уровнями? Т.е. Скажем /Мансарда Спальни\ Кухня+гостиная Гараж/ Посилання на коментар Поділитися на інших сайтах More sharing options...
oleg_ Опубліковано: 6 червня 2007 Автор Поділитись Опубліковано: 6 червня 2007 А как конкретно идет уклон? Не пробовал поиграться с несколькими уровнями? Т.е. Скажем /Мансарда Спальни\ Кухня+гостиная Гараж/ Уклон идет на уровень 1,5 м с северной стороны (там где вання, туалеты) и с западной (котельня, спальня) а с южной все ровно, восточная почти нет. Главная проблема - участок маленький, поэтому лезу вверх. Посилання на коментар Поділитися на інших сайтах More sharing options...
XamGelo Опубліковано: 6 червня 2007 Поділитись Опубліковано: 6 червня 2007 ТЕ на планах север справа? И там выше на 1.5 м? Ну так как раз можно поиграться с разноуровнемы помещениями Посилання на коментар Поділитися на інших сайтах More sharing options...
Рекомендовані повідомлення
Створіть акаунт або увійдіть у нього для коментування
Ви маєте бути користувачем, щоб залишити коментар
Створити акаунт
Зареєструйтеся для отримання акаунта. Це просто!
Зареєструвати акаунтУвійти
Вже зареєстровані? Увійдіть тут.
Увійти зараз