Перейти до публікації
Пошук в
  • Додатково...
Шукати результати, які містять...
Шукати результати в...

Покритикуйте проэкт SIP-дома з односкатной крышей и террасой

Karpatia.biz

Рекомендовані повідомлення

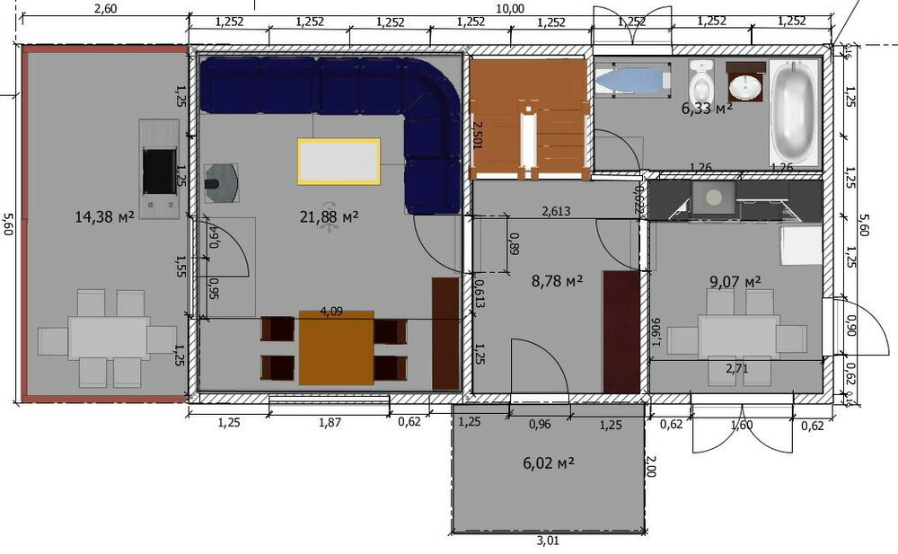
Много уже перебирал вариантов для дома, остановился на этом.

Из ограничений:

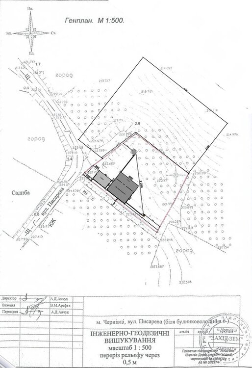
Дом на склоне горы, поэтому макимально узкий

Дом к улице (заезд авто) расположен правым боком (Северо-Запад), а главный фасад с входом решил вывести на сам участок (Север, но красивый вид на соседнюю гору). Терраса выходит на Восток под углом на Юг.

Задняя стена Юг, но закрыта горой и садом соседа, поэтому максимально закрытая.

 

Первоначально террасу планировал сделать в сторону склона, но потом решил переиграть.

 

На карте М:500 укзан ещё вариант с террсой спереди, справа колодец, слева вверху - вигребная яма.

1poverh_1.thumb.jpg.f07a1068837823b95db0228c9c6bf816.jpg

2poverh_1.jpg.4df691760802457f52e251fb9197ff72.jpg

3d_1.jpg.09589f556a522bb7572267367bba4f16.jpg

3d_9.jpg.0299a505833527ea7509987f2238f666.jpg

3d_8.jpg.6be47f40d08561ceb03f8a7d8dc53b56.jpg

3d_7.jpg.fc93e7fb8a03910dec3ccc936838ffff.jpg

3d_4.jpg.766ad29aa643c4c3ea46710063bb389e.jpg

1211179687_4_1.thumb.JPG.c3c759c3d12ce051883d8bfad46ad033.JPG

Посилання на коментар
Поділитися на інших сайтах

Какая неудачная "остановка" (в смысле :"остановился на этом проекте"...). И вот такие скворечники строят на Буковине!? Печалька...

Участок - не подарок: жаль, что уклон на С-В, а не на Юг. И это единственный минус участка (солнце - оно и в Африке - солнце). Но, как писал один английский архитектор (очень давно): "Следуй гению места во всём...". Если бы Вы дали фото видов вокруг, то тогда уверенно можно было бы сказать, стоит ли использовать рельеф и превратить его в плюс из кажущегося минуса.

  • Лайк 2
Посилання на коментар
Поділитися на інших сайтах

Створіть акаунт або увійдіть у нього для коментування

Ви маєте бути користувачем, щоб залишити коментар

Створити акаунт

Зареєструйтеся для отримання акаунта. Це просто!

Зареєструвати акаунт

Увійти

Вже зареєстровані? Увійдіть тут.

Увійти зараз
×
×
  • Створити...