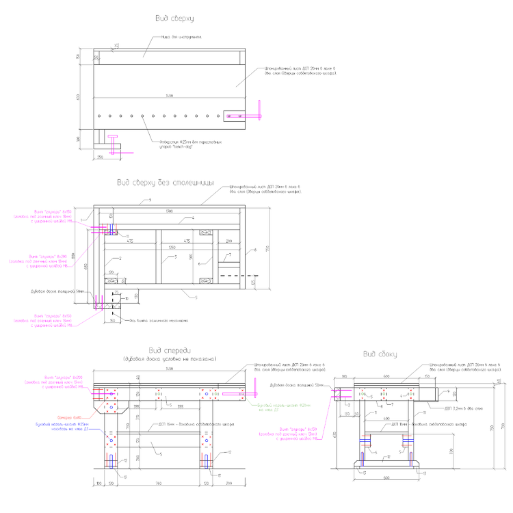
alexandrius Опубліковано: 15 січня 2015 Поділитись Опубліковано: 15 січня 2015 Хочу собрать верстак для любительской столярки. Порыскал по сети, адаптировал в своём варианте ряд решений под свои запросы/возможности. Прилагаю чертежи на суд общественности. Собирать планирую в эти выходные. Основной материал - сосновый брус 120х50. Так как успеть собрать (разве что без зажимных устройств) нужно за 1,5 дня, вынужденным образом отказываюсь от пазовых соединений, компенсируя из буковыми шкантами-нагелями. Все примыкающие грани в соединениях будут промазываться клеем Д3. Остальное должно быть понятно из чертежей. Защитное покрытие - старая загустевшая советская олифа, разбавленная ски***ом (?). Из нюансов эксплуатации - регулярное применение фуганка №7, для отстрожки клеенных щитов (рейсмуса нет). Буду рад советам/комментариям. Посилання на коментар Поділитися на інших сайтах More sharing options...
pasonsd Опубліковано: 16 січня 2015 Поділитись Опубліковано: 16 січня 2015 Судя по всему Вы планируете работать в основном ручным инструментом? Если так, то должен получится неплохой верстак. Вопрос у меня по нише для инструмента. У вас там получится хороший сборник стружки и пыли, а не ниша для инструмента. И почему выбрали такую конструкцию передних тисков? Они ведь будут постоянно мешать Вам. Поставьте лучше покупные или самодельные верстачные столярные тиски, которые занимают немного места в прижатом состоянии. Посилання на коментар Поділитися на інших сайтах More sharing options...
alexandrius Опубліковано: 16 січня 2015 Автор Поділитись Опубліковано: 16 січня 2015 (змінено) планируете работать в основном ручным инструментом?Не только. В хозяйстве окромя ручных рубанков-фуганков есть ещё два электро (включая "зверя" ИЭ-5708А), дисковая пила и фрезер (из "столярного", шуруповерты-дрели-перфораторы не в счёт). Но основные нагрузки в горизонтальном направлении, разумеется, будут от Stanley Bailey №7. Вопрос у меня по нише для инструмента. У вас там получится хороший сборник стружки и пыли, а не ниша для инструмента.Верно, но это проблема будет нивелироваться строительным пылесосом и самодельным циклоном. Кроме того, постоянного хранения инструмента там не предполагается. Лежать там будет только тот, который нужен для данного этапа работ (рубанок-стамеска-угольник-рулетка). После его выполнения инструмент по местам (прямо над нынешним подобием верстака у меня навесной шкафчик) и шланг пылесоса в нишу. Рассматривал так же вариант выполнения дна ниши мелкой металлической сеткой - что бы хотя бы опилки падали вниз. почему выбрали такую конструкцию передних тисков?Бюджет. Приобрел весьма недорого подходящий зажимной винт с гайкой, имеющей базу для крепления. Покупные столярные тиски сейчас стоят столько же, сколько весь получающийся бюджет на верстак. Самодельные у меня сейчас на нынешнем подобие верстака стоят - не доволен я ими. Я так понял, в случае самодельных тисков мы говорим о варианте двух винтового исполнения? Не нравится он мне - долго крутить, причём оба винта (у меня на обычных метрических шпильках). Вот такого плана хлипко слишком, мебельный щит для зарезки ласточкиного хвоста не зажмёшь. Вот такие покрепче, но недостаток тот же, плюс с металлом не очень-то дружу. не факт что смогу сделать ровно и точно. Тиски слева будут как тут: Плюс сделаю вот такую вертикальную доску перфорированную под тот же размер bench-dog'а: Ну а в целом конструкция передних тисков весьма классическая. Хоть и не самая удобная. Бюджет-с, елки-палки. Увы. ЗЫ. На чертеже ошибка есть, уже исправил. Соберу - выложу фото и исправленные чертежи. Кроме того, отказался от одиночного нагеля Ф25мм в пользу двух по Ф20мм. Змінено 16 січня 2015 користувачем alexandrius Посилання на коментар Поділитися на інших сайтах More sharing options...
pasonsd Опубліковано: 16 січня 2015 Поділитись Опубліковано: 16 січня 2015 Я себе в прошлом году делал верстак. Столярка у меня тоже идет как хобби. Долго думал и рыл инет в поисках лучшего для себя варианта. Но потом решил сделать для начала из того, что есть под рукой бюджетный вариант, поработать на нем и со временем выйти на удобную для себя конструкцию. В основном похож на Ваш, основа из бруса 50*100. А настил я сделал из доски 32мм (осталась после настила полов) и сверху слой ламинированного двп (осталось от изготовления кухни). Тиски сделал только передние. Купил на барахолке винт подходящий с ленточной резьбой и из уголков и трубок сделал тиски с одним винтом и двумя направляющими. Пока работают нормально. Но я сразу ориентировался на работу с электроинструментом. Поэтому по центру верстака вырезана квадратная ниша для установки фрезера/циркулярки/лобзика/шлифмашинки/рубанка. Вдоль ниши врезал алюминиевые направляющие для каретки/упора. Получилось весьма функционально. Один минус - долго переставлять/настраивать точность под разные операции. Так как верстак у меня стоит возле стены, над ним прикрепил к стене несколько кусков фанеры, в которую набил гвоздиков, на которых развешаны все инструменты. Очень удобно, все всегда под рукой и не надо долго искать. Добавлено через 18 минут И еще немного добавлю. Хоть Вы уже какое-то время занимаетесь столяркой, и наверняка знаете основные ресурсы, но вдруг полезным будет. На вот этом форуме довольно много полезной инфы, в том числе и по верстакам. forum.woodtools.ru/ Посилання на коментар Поділитися на інших сайтах More sharing options...
alexandrius Опубліковано: 16 січня 2015 Автор Поділитись Опубліковано: 16 січня 2015 решил сделать для начала из того, что есть под рукой Ну вот у меня как раз такой "из фуфла" собранный с циркуляркой по середине просел по центру и сильно расшатался... том числе и по верстакам. forum.woodtools.ru/ forum.woodtools.ru/index.php?topic=23762.msg1223112#new Там с активностью как-то не очень... Посилання на коментар Поділитися на інших сайтах More sharing options...
alexandrius Опубліковано: 16 січня 2015 Автор Поділитись Опубліковано: 16 січня 2015 Процесс пошел... Посилання на коментар Поділитися на інших сайтах More sharing options...
alexandrius Опубліковано: 17 січня 2015 Автор Поділитись Опубліковано: 17 січня 2015 Процесс идёт... Полный бардак развёл Посилання на коментар Поділитися на інших сайтах More sharing options...
Paul Lukashov Опубліковано: 17 січня 2015 Поділитись Опубліковано: 17 січня 2015 Так как стол предполагает в основном работу с деревом я бы основное внимание обратил на то, чтобы стол в процессе работы не расшатывался. Посилання на коментар Поділитися на інших сайтах More sharing options...
alexandrius Опубліковано: 18 січня 2015 Автор Поділитись Опубліковано: 18 січня 2015 Логично, но совсем не конкретно. О чем именно речь? Узлы что ли слабые? Не думаю. Да и всегда можно раскосы добавить. Посилання на коментар Поділитися на інших сайтах More sharing options...
Sass Опубліковано: 22 січня 2015 Поділитись Опубліковано: 22 січня 2015 Логично, но совсем не конкретно. О чем именно речь? Узлы что ли слабые? Не думаю. Да и всегда можно раскосы добавить. Вероятно, имелось в виду, что надежнее было бы соединения делать не внахлёст, а с врезкой элементов друг в друга. Это куда геморройней, но действительно гораздо жёстче. Впрочем,хозяину всегда виднее, что ему лучше... Посилання на коментар Поділитися на інших сайтах More sharing options...
Painter Опубліковано: 3 квітня 2015 Поділитись Опубліковано: 3 квітня 2015 Как ваш верстак? можно посмотреть на законченый вариант? Посилання на коментар Поділитися на інших сайтах More sharing options...
Raha Опубліковано: 4 квітня 2015 Поділитись Опубліковано: 4 квітня 2015 Знайшов хорошу статтю про станок для шлакоблоків своїми руками порадьте чи нормально там все описано Ні, там все погано описано. Та чого ще можна очікувати від помийного сайту, що рекламується шляхом спаму? Помийка вона і є помийка, такі сайті навіть відкривати гидотно. Посилання на коментар Поділитися на інших сайтах More sharing options...
alexandrius Опубліковано: 20 квітня 2015 Автор Поділитись Опубліковано: 20 квітня 2015 Как ваш верстак? можно посмотреть на законченый вариант? Так и не сделал нишу для инструмента. По жесткости пока всё нормально - держит. Ну и хочу по низу кинуть лист ДСП - будет полка. 1 Посилання на коментар Поділитися на інших сайтах More sharing options...
bumerang Опубліковано: 20 квітня 2015 Поділитись Опубліковано: 20 квітня 2015 Так и не сделал нишу для инструмента. По жесткости пока всё нормально - держит. Ну и хочу по низу кинуть лист ДСП - будет полка. выглядит добротно. поздравляю 1 Посилання на коментар Поділитися на інших сайтах More sharing options...
Рекомендовані повідомлення
Створіть акаунт або увійдіть у нього для коментування
Ви маєте бути користувачем, щоб залишити коментар
Створити акаунт
Зареєструйтеся для отримання акаунта. Це просто!
Зареєструвати акаунтУвійти
Вже зареєстровані? Увійдіть тут.
Увійти зараз