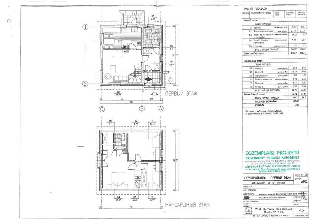
Ktulxy Опубліковано: 19 січня 2015 Поділитись Опубліковано: 19 січня 2015 (змінено) Собственно начало положено. Имеем участок под Киевом 5 соток, электричество, скважину и газовую трубу за забором:D На прошлой неделе завез первую партию ГБ 400тки 38.4 куба на 30- тку наших деревянных. Проект, а вернее его копию куплено у нашего форумчанина. www.proekty-muratordom.com/proekt_vorobei,304,0,0.htm Немного подрисовали проект под свои хотелки, в общем критикуйте. Советы ой как нужны. Перекрытие планирую выполнить из плит ПК. К заливке фундамента планирую приступить с весны, как только упадет вода, ибо УГВ у нас очень висок, порядка 1.5-2 метра. Бюджет, как говорил наш форумчанин opium - Бюджет бюджетный. Собственно после его темы и нескольких иных и решился на эту затею. За этот год в планах выгнать и закрыть коробку, ну а дальше будет видно. Года за 3 хотелось бы и въехать. Змінено 19 січня 2015 користувачем Ktulxy 1 Посилання на коментар Поділитися на інших сайтах More sharing options...
pan-ua Опубліковано: 19 січня 2015 Поділитись Опубліковано: 19 січня 2015 Я бы поменял местами санузел и котельную (4 и 5). У Вас получается вход в санузел из тамбура, а вход в котельную, куда возможно придется тягать какие-нибудь мешки с пеллетами - из жилых помещений. Удачной стройки! Добавлено через 3 минуты Извините, смотрел оригинал проекта. Вижу, у Вас уже перпланировано все. Теперь топочная в тамбуре? Какой вообще котел планируется? Добавлено через 1 минуту Я сейчас как раз на стадии котельной, остановился на пеллетах. Так отопители заняли всю мою котельную, 17 кв.м. своими баками, бункерами и трубами Добавлено через 1 минуту А где именно у Вас участок? Добавлено через 4 минуты Советовал бы по центру сделать небольшой тамбур, из него налево помещение котельной (там, где сейчас тамбур), а направо санузел. Прямо - вход в дом. Хотя вход из тамбура в с/у - спорное решение. Посилання на коментар Поділитися на інших сайтах More sharing options...
Ktulxy Опубліковано: 19 січня 2015 Автор Поділитись Опубліковано: 19 січня 2015 Я бы поменял местами санузел и котельную (4 и 5). У Вас получается вход в санузел из тамбура, а вход в котельную, куда возможно придется тягать какие-нибудь мешки с пеллетами - из жилых помещений. Удачной стройки! Добавлено через 3 минуты Извините, смотрел оригинал проекта. Вижу, у Вас уже перпланировано все. Теперь топочная в тамбуре? Какой вообще котел планируется? Добавлено через 1 минуту Я сейчас как раз на стадии котельной, остановился на пеллетах. Так отопители заняли всю мою котельную, 17 кв.м. своими баками, бункерами и трубами Добавлено через 1 минуту А где именно у Вас участок? По отоплению пока вижу так: Газовый котел на кухню, где он будет на прямую и обогревать помещение. А резервное отопление, это камин. А из топочной сделать большую ванную/с.у. Броварской район - Зазимье Посилання на коментар Поділитися на інших сайтах More sharing options...
pan-ua Опубліковано: 19 січня 2015 Поділитись Опубліковано: 19 січня 2015 А на втором этаже после переделки с/у доступен только в спальне родителей? У Вас есть дети? ) Добавлено через 1 минуту По отоплению пока вижу так: Газовый котел на кухню, где он будет на прямую и обогревать помещение. А резервное отопление, это камин. А из топочной сделать большую ванную/с.у. Ага, а зачем тогда двойной тамбур? Посилання на коментар Поділитися на інших сайтах More sharing options...
Ktulxy Опубліковано: 19 січня 2015 Автор Поділитись Опубліковано: 19 січня 2015 Верно с.у только для себя любимого. Сейчас живем в доме почти на 300 квадратов и одним с.у на первом этаже, дискомфорта абсолютно не чувствую. Потому детки побегают Посилання на коментар Поділитися на інших сайтах More sharing options...
pan-ua Опубліковано: 19 січня 2015 Поділитись Опубліковано: 19 січня 2015 По отоплению пока вижу так: Газовый котел на кухню. Это Вы видите так, пока газ еще пару раз не подорожал )) А оставив место под котел на кухню, Вы уже не поставите там другой котел, типа пеллетного или угольного. Или кухня у Вас превратится в котельную ) Советовал бы подумать об отоплении сразу, потом может не получиться поменять планы Посилання на коментар Поділитися на інших сайтах More sharing options...
Ktulxy Опубліковано: 19 січня 2015 Автор Поділитись Опубліковано: 19 січня 2015 Ага, а зачем тогда двойной тамбур? Что бы лишнее тепло не выпускать Посилання на коментар Поділитися на інших сайтах More sharing options...
pan-ua Опубліковано: 19 січня 2015 Поділитись Опубліковано: 19 січня 2015 Верно с.у только для себя любимого. Потому детки побегают Да Вы, я смотрю, эгоист :) Посилання на коментар Поділитися на інших сайтах More sharing options...
Ktulxy Опубліковано: 19 січня 2015 Автор Поділитись Опубліковано: 19 січня 2015 Это Вы видите так, пока газ еще пару раз не подорожал )) А оставив место под котел на кухню, Вы уже не поставите там другой котел, типа пеллетного или угольного. Или кухня у Вас превратится в котельную ) Советовал бы подумать об отоплении сразу, потом может не получиться поменять планы Вполне вероятно, что на этапе возведения внутренних стен, все же выделю место под кладовку-котельню. Дрова тоже не бесплатны. Стоимость хорошего котла -это стоимость подключение к газу. А стоимость дров на данный момент даже дороже нежели топить газом, при условии попадания в первую категорию. Добавлено через 2 минуты Да Вы, я смотрю, эгоист :) Вообще с.у на втором этаже, это желание моей супруги. Как на меня, это лишнее. За годы проживания в доме, единственное чего не хватает так, это "парашы" на улице. Посилання на коментар Поділитися на інших сайтах More sharing options...
pan-ua Опубліковано: 19 січня 2015 Поділитись Опубліковано: 19 січня 2015 Вообще с.у на втором этаже, это желание моей супруги. Как на меня, это лишнее. За годы проживания в доме, единственное чего не хватает так, это "парашы" на улице. Тогда Вы не эгоист, а аскет ) Добавлено через 34 секунды Цены на природный газ для населения могут вырасти в 3−5 раз. Как сообщил председатель правления НАК «Нафтогаза Украины», в правительстве в данный момент идет обсуждение возможности такого повышения. Посилання на коментар Поділитися на інших сайтах More sharing options...
Ktulxy Опубліковано: 19 січня 2015 Автор Поділитись Опубліковано: 19 січня 2015 Тогда Вы не эгоист, а аскет ) Не поленился прогуглить *человек, избравший путь воздержания и строгий образ жизни, предполагающий ограничения в получении удовольствий и использовании материальных благ 1 Посилання на коментар Поділитися на інших сайтах More sharing options...
pan-ua Опубліковано: 19 січня 2015 Поділитись Опубліковано: 19 січня 2015 К заливке фундамента планирую приступить с весны, как только упадет вода, ибо УГВ у нас очень висок, порядка 1.5-2 метра. А какая почва, какой фундамент планируете? Добавлено через 1 минуту Сейчас самое время подать декларацию о начале строительства. Назначение земли - под жилищное строительство? Посилання на коментар Поділитися на інших сайтах More sharing options...
Ktulxy Опубліковано: 19 січня 2015 Автор Поділитись Опубліковано: 19 січня 2015 А какая почва, какой фундамент планируете? Добавлено через 1 минуту Сейчас самое время подать декларацию о начале строительства. Назначение земли - под жилищное строительство? Речной песок. Планирую влить метр под землю на ширину 40см. Садоводство. Да, пора приступить у оформлению. Но пока не знаю с чего начать. Посилання на коментар Поділитися на інших сайтах More sharing options...
pan-ua Опубліковано: 19 січня 2015 Поділитись Опубліковано: 19 січня 2015 Речной песок. Планирую влить метр под землю на ширину 40см. То есть ленточный? Мне в похожих условиях - УГВ 1 метр и песчаный грунт, прописали плиту на ленточном фундаменте. Добавлено через 2 минуты Садоводство. Да, пора приступить у оформлению. Но пока не знаю с чего начать. Там несложно вроде, нужно дать копию проекта с эскизами фасадов, план застройки и саму декларацию заполнить. Мне посредник помогал, легко все прошло. Правда, я после этого радикально поменял проект дома ) 1 Посилання на коментар Поділитися на інших сайтах More sharing options...
Ktulxy Опубліковано: 19 січня 2015 Автор Поділитись Опубліковано: 19 січня 2015 То есть ленточный? Мне в похожих условиях - УГВ 1 метр и песчаный грунт, прописали плиту на ленточном фундаменте. Да ленту. А подробней, это как? Посилання на коментар Поділитися на інших сайтах More sharing options...
pan-ua Опубліковано: 19 січня 2015 Поділитись Опубліковано: 19 січня 2015 Да ленту. А подробней, это как? Заливается ленточный фундамент под всеми несущими стенами, на него заливается монолитная плита. Вся конструкция связывается армированием. Вот что инет выдает: Жесткое пространственное армирование по всей несущей плоскости обеспечивает устойчивость таких фундаментов даже на сильно и неравномерно сжимаемых грунтах, к которым относятся пучинистые грунты. Снижение давления на грунт достигается тем, что монолитная плита всей своей площадью лежит на нем. А использование перекрестных ребер жесткости сохраняет устойчивость конструкции к знакопеременным нагрузкам при просадке, замораживании или оттаивании грунта. И картинка: (ссылка на изображение устарела) Посилання на коментар Поділитися на інших сайтах More sharing options...
Ktulxy Опубліковано: 19 січня 2015 Автор Поділитись Опубліковано: 19 січня 2015 Заливается ленточный фундамент под всеми несущими стенами, на него заливается монолитная плита. Вся конструкция связывается армированием. В общем, я так и планировал. Только думал плиту заливать отдельно. А выходит, что желательно залить одним махом усе. Я думал разделить на 3 этапа: 1. Залить в землю. 2. Сделать опалубку залить над землей. 3. Залить плиту, возможно даже самостоятельно. Посилання на коментар Поділитися на інших сайтах More sharing options...
pan-ua Опубліковано: 19 січня 2015 Поділитись Опубліковано: 19 січня 2015 Вообще Вам лучше поговорить с конструкторами, ибо я не специалист совсем. Я делал геологию, и на ее основании мне выдали такие рекомендации по фундаменту. Добавлено через 1 минуту В общем, я так и планировал. Только думал плиту заливать отдельно. А выходит, что желательно залить одним махом усе. Вы правильно думаете в три этапа. Так и делается. В итоге получается монолитная конструкция Добавлено через 1 минуту Извините, отлучусь. Пора поехать на стройку, строители ждут Посилання на коментар Поділитися на інших сайтах More sharing options...
Ktulxy Опубліковано: 19 січня 2015 Автор Поділитись Опубліковано: 19 січня 2015 Добавлено через 1 минуту Извините, отлучусь. Пора поехать на стройку, строители ждут Я так понял, это святое Посилання на коментар Поділитися на інших сайтах More sharing options...
pan-ua Опубліковано: 19 січня 2015 Поділитись Опубліковано: 19 січня 2015 По отоплению пока вижу так: Газовый котел на кухню, где он будет на прямую и обогревать помещение. А резервное отопление, это камин. А из топочной сделать большую ванную Возвращаясь к теме отопления. Если вдруг решите поставить твердотопливный котел, то на кухне Вам придется разместить такое Посилання на коментар Поділитися на інших сайтах More sharing options...
Ktulxy Опубліковано: 19 січня 2015 Автор Поділитись Опубліковано: 19 січня 2015 И сколько квадратов это занимает? Посилання на коментар Поділитися на інших сайтах More sharing options...
pan-ua Опубліковано: 19 січня 2015 Поділитись Опубліковано: 19 січня 2015 И сколько квадратов это занимает? У меня это занимает всю котельную, 17 квадратов. Но у меня и площадь дома 300. Кроме того, в котельной находится электрощит и фильтр очистки воды с гидроаккумулятором Посилання на коментар Поділитися на інших сайтах More sharing options...
pan-ua Опубліковано: 20 січня 2015 Поділитись Опубліковано: 20 січня 2015 Выложите фото для оживления темы Посилання на коментар Поділитися на інших сайтах More sharing options...
Ktulxy Опубліковано: 11 березня 2015 Автор Поділитись Опубліковано: 11 березня 2015 Прошу помощи в оценке сметы на постройку дома. Подрядчик предлагает такие расценки, кто хорошо в теме посмотрите плизз..Смета Жилой дом с. Зазимье.xls Посилання на коментар Поділитися на інших сайтах More sharing options...
S1LENCE Опубліковано: 11 березня 2015 Поділитись Опубліковано: 11 березня 2015 (змінено) погрузка-розгрузка клею буде окремо від ГБ? за що 300грн? зазвичай клей з ГБ привозять на палеті і за раз розвантажують влаштування перемичок - це що конкретно? Бетон майже по 1000грн - можливо трохи дорого, хоча сьогоднішніх цін не знаю, але минулої осені було б дорого скільки кубів дерева для даху не ясно Бітумка черепиця + комплектуючі по 411грн/м2 напевно таки перебір (хоча тут все ж від марки залежить...) Доставка арматури за 800грн - це ж скільки км цікаво... А от арматура 1.3т за 10830 з доставкою якось дешево... Вязальня провола кг десь 19грн. Думаю 29кг проволи на 550грн перебір Електродів теж багато буде Пісок вчора взяв по 80грн/т. У Вас на 12000 - Вам потрібно 150т ? Щебінь десь по 130-150грн/т зараз У Вас є доставка для кожного матеріалу і є окремо транспортні витрати 11000 - як так? Змінено 11 березня 2015 користувачем S1LENCE 1 Посилання на коментар Поділитися на інших сайтах More sharing options...
Рекомендовані повідомлення
Створіть акаунт або увійдіть у нього для коментування
Ви маєте бути користувачем, щоб залишити коментар
Створити акаунт
Зареєструйтеся для отримання акаунта. Це просто!
Зареєструвати акаунтУвійти
Вже зареєстровані? Увійдіть тут.
Увійти зараз