lim Опубліковано: 21 січня 2015 Поділитись Опубліковано: 21 січня 2015 итак начинаем планировать свою систему отопления, само собой она самая лучшая в мире, самая оптимальная, дешёвая и надежная и т д но у меня все не как у людей, у меня через жо.... реконструкция - по деньгам дешевле новый дом построить ... был 1 этаж 30 летнего дома, была снесена крыша, армпояс 2 этаж построен и т. д. реконструкция глобальная что есть сейчас из инженерных сетей (всему 10 лет эксплуатации): 1. скважина с насосом - все работает 2. септик, трубы и т д - пока работает, но наверное надо чуточку увеличить поле фильтрации 3. котел феролли двухконтурный 23, пока живой. Оставляем если вдруг что пробуем ремонтировать, если совсем плох будет меняем на новый. Если новый наверное конденсационник, так что новая система отопления должна быть адаптирована под это. 4. разводка воды на 1 этаже ППР, места подключения устраивают, но думаю все сносить и делать однотипно, тем более на 2 этаже никакой разводки 5. отопление смесь бывшей гравитационки и 3 стальных радиатора на ППР, сносим все По новой системе если все изучать голова лопнет, так что останавливаюсь на рехау. Даже несмотря на то, что как доказали окна двери рехау, все новое полное гавно, особенно в кривых руках. Отоплением надо доказать обратное, поэтому монтаж планирую делать сам, тем более учитывая мои реалии сначала 1 потом спустя время 2 этаж. Радиаторы керми или пурмо вот даже тему создал www.stroimdom.com.ua/forum/showthread.php?t=171445 наверное выбор будет за керми, они чуточку дороже, но тут это не главное далі буде ... 1 Посилання на коментар Поділитися на інших сайтах More sharing options...
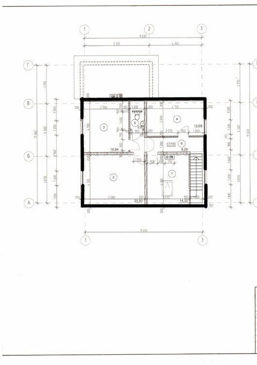
lim Опубліковано: 21 січня 2015 Автор Поділитись Опубліковано: 21 січня 2015 (змінено) итак 1 этаж везде ТП, покрытие плитка везде (кроме части 1B) от батарей отказываемcя совсем, почти ... по пирогу пола по грунту думаю потом будут вопросы, а так стандартный вариант 150 ЭППС (душу жабу еще раз, надо докупить еще 3 куба) или хватит 100 сложный вопрос. Стены 150-200 перлита, окна рехау. согласно плану: 1. кухня-зал 37.91 части 1А и 1В одно помещения без стенки 1А зона кухни покрытие плитка 1В покрытие дерево, какое вопрос, но точно дерево вот тема www.stroimdom.com.ua/forum/showthread.php?t=171030 ТП в этой зоне тоже есть скорее всего для отопления надо доставить радиатор, под окно под лестницу правый угол допустим 22 600х1200 2А. гардероб 2В. кладовка площадь общая 12.85, стены между 2А и 2В пока нет 3. комната 17.13 4. ванна 4.65 тут думаю необходимо доставить как минимум одну батарею для быстрого прогрева 22 500х500 будет достаточно? или нет полотенцесушитель по воде выходы на смеситель для ванной, бачок унитаза, стиралка рукомойник не ставлю, или места мало или я ленивый или странный сложно сказать 5. котельная 2.95 6. тамбур 6.25 7. коридор 7.44 результат - везде теплый пол + 2 батареи + 1 полотенчик по воде 2 ГВ 4 ХВ на ТП берем трубу rautherm s 17х2.0 на батареи, ХВ, ГВ rautitan flex хотя а чем flex от stabil реально отличается? я так понимаю мне замарачиваться отдельно с his и pink не стоит у меня не конвеер и оптимальнее брать универсальную трубу на радиаторы (скорее всего керми) узел нижнего подключения угловой и трубки из нержавейки в стену терморегуляторы данфосс Змінено 21 січня 2015 користувачем lim Посилання на коментар Поділитися на інших сайтах More sharing options...
yriy1 Опубліковано: 21 січня 2015 Поділитись Опубліковано: 21 січня 2015 150 ЭППС 150мм? не много Посилання на коментар Поділитися на інших сайтах More sharing options...
lim Опубліковано: 21 січня 2015 Автор Поділитись Опубліковано: 21 січня 2015 150мм? не много а сколько рекомендуете Вы? на каких расчетах основываетесь? если есть реальные данные сколько тепла реально уйдет через 100, а сколько через 150 буду очень рад Посилання на коментар Поділитися на інших сайтах More sharing options...
lim Опубліковано: 21 січня 2015 Автор Поділитись Опубліковано: 21 січня 2015 2 этаж перекрытие дерево, значит везде батареи грубо говоря 4 комнаты, в каждой комнате 1 окно и 1 мансардное я так понимаю под окном мансардным батарея очень желательна я прав? значит в каждой комнате по 2 радиатора в коридоре, туалете батарей на 2 этаже не надо? 1 - 14.32 2 - 20.93 3 - 15.84 4 - 13.68 обычные окна у меня на высоте 55 см - значит оптимально радиатор 300 допустим 22 300х1200 согласно характетистик производителя (ссылка устарела) на стр 23 мощность 1226 Вт при 75/65/20 если воспользоваться файлом Керми.xls и параметрами 70/50/20 мощность уже 846 Вт и на какие параметры считать? а какие теплопотери забивать? допустим пальцем в небо 100 Вт на метр и тогда брать под мансардное окно 22 600х900 и при 70/50/20 1098 Вт в сумме 1098+846=1944 на самую большую комнату 2 хватит? на остальные 1,3,4 должно точно хватить по воде 3 ХВ горшок, умывальник, душевая кабина 2 ГВ умывальник, душевая кабина Посилання на коментар Поділитися на інших сайтах More sharing options...
Korni Опубліковано: 21 січня 2015 Поділитись Опубліковано: 21 січня 2015 ....если есть реальные данные сколько тепла реально уйдет через 100, а сколько через 150 буду очень рад Посилання на коментар Поділитися на інших сайтах More sharing options...
S_Vladimir_79 Опубліковано: 21 січня 2015 Поділитись Опубліковано: 21 січня 2015 Таблица сделана для какой дельты температур? Градусов 20? По расчетам при 25С потери будут 6 и 9 Вт. Посилання на коментар Поділитися на інших сайтах More sharing options...
Korni Опубліковано: 21 січня 2015 Поділитись Опубліковано: 21 січня 2015 Таблица сделана для какой дельты температур? Градусов 20? По расчетам при 25С потери будут 6 и 9 Вт. Не уверен, что корректно сформулирован расчёт Дельта температур чего? А надо: температура стяжки температура грунта свойства ограждающей конструкции (утеплитель) Посилання на коментар Поділитися на інших сайтах More sharing options...
lim Опубліковано: 21 січня 2015 Автор Поділитись Опубліковано: 21 січня 2015 Korni эта таблица с инструкции упонора? вот на страничку выше цитата В случае паркетного пола толщиной 14 мм на бетонной плите с напольным отоплением толщина теплоизоляции должна быть увеличена с 70 мм до 160 мм. Увеличение толщины теплоизоляции зависит от температуры напольного отопления, которая в свою очередь зависит от материала покрытия пола. Например, в случае пола с керамической плиткой, где кафель имеет теплопроводность λ = 1,2 Вт/м К, требуемое увеличение толщины теплоизоляции с 70 мм до 130 мм. Посилання на коментар Поділитися на інших сайтах More sharing options...
Korni Опубліковано: 21 січня 2015 Поділитись Опубліковано: 21 січня 2015 Да, упонор. ...Увеличение толщины теплоизоляции зависит от температуры напольного отопления, которая в свою очередь зависит от материала покрытия пола.... Я это и сказал. В вопросе идёт пока речь о толщине утеплителя. Ответ: делать больше 100мм (ППС) мало смысла. 2 Посилання на коментар Поділитися на інших сайтах More sharing options...
S_Vladimir_79 Опубліковано: 21 січня 2015 Поділитись Опубліковано: 21 січня 2015 Дельта температур чего? А надо: температура стяжки температура грунта Риторический вопрос получился... Посилання на коментар Поділитися на інших сайтах More sharing options...
otoplenie.es Опубліковано: 21 січня 2015 Поділитись Опубліковано: 21 січня 2015 если есть реальные данные сколько тепла реально уйдет через 100, а сколько через 150 буду очень рад вот в этой программе Упонора можно посчитать теплопотери вниз: Rydberg II - определение температуры на поверхности(Программа).zip а для расчета трубопроводов есть незаменимый простой калькулятор Упонор не требующий установки, сам часто пользуюсь, возможно Вам пригодится в дальнейшем: Upoquick - программа-калькулятор по гидравлическому расчёту(Программа).zip 1 Посилання на коментар Поділитися на інших сайтах More sharing options...
lim Опубліковано: 21 січня 2015 Автор Поділитись Опубліковано: 21 січня 2015 1. по каким параметрас считать батареи? мой выбор по размерам подойдет? 2. по поводу трубы флекс или стабил? и какая там потребительская разница? 3. какие есть замечания к моему плану? может кто из форумских сантехников, в фоновом режиме, окажет помощь/содействие/проверку в проектировании с меня по запросу - большое человеческое спасибо, пиво, водка, денюшка Посилання на коментар Поділитися на інших сайтах More sharing options...
murava Опубліковано: 21 січня 2015 Поділитись Опубліковано: 21 січня 2015 Начните с 70/55/20 - а там война план покажет. Стабилом легче делать конечные подводки - хорошо держит форму. 1 Посилання на коментар Поділитися на інших сайтах More sharing options...
lim Опубліковано: 22 січня 2015 Автор Поділитись Опубліковано: 22 січня 2015 для 70/55/20 по файлу Керми.xls 22 300х1200 = 846 22 600х900 = 1098 в сумме 1098+846=1944 на самую большую комнату 2 та что 20.93 хватит? Добавлено через 4 минуты вот в этой программе Упонора можно посчитать теплопотери вниз: Rydberg II - определение температуры на поверхности(Программа).zip у вас есть пример пирога пола с эппс? в этой програме Посилання на коментар Поділитися на інших сайтах More sharing options...
otoplenie.es Опубліковано: 22 січня 2015 Поділитись Опубліковано: 22 січня 2015 у вас есть пример пирога пола с эппс? в этой програме нет, нужно считать, но сразу могу сказать результат: делать больше 100мм (ППС) мало смысла. ___________________________________ 2. по поводу трубы флекс или стабил? и какая там потребительская разница? Стабилом легче делать конечные подводки - хорошо держит форму. с целью уменьшения отходов (обрезков труб) можете взять флекс для теплого пола, магистралей радиаторного отопления, водоснабжения, а для конечных подводок - штабил 1 Посилання на коментар Поділитися на інших сайтах More sharing options...
lim Опубліковано: 22 січня 2015 Автор Поділитись Опубліковано: 22 січня 2015 нет, нужно считать, но сразу могу сказать результат: научите как в этой программе считать, думаю многим будет интересно а для конечных подводок - штабил растолкуйте на пальцах чем именно штабил лучше для конечных подводок и какой именно участок подразумевается под этой конечной подводкой Посилання на коментар Поділитися на інших сайтах More sharing options...
otoplenie.es Опубліковано: 22 січня 2015 Поділитись Опубліковано: 22 січня 2015 растолкуйте на пальцах чем именно штабил лучше для конечных подводок штабил - металлопластиковая труба со слоем алюминия, за счет которого труба держит свою форму при изгибе, в отличие от флекса - трубы из сшитого полиэтилена без алюминия. За счет этого штабил удобнее. В принципе с флексом тоже особых проблем нет, но на некоторых поворотах дополнительно нужно использовать фиксаторы поворота или уголки. и какой именно участок подразумевается под этой конечной подводкой подразумевается участок к которому подключается отопительный прибор или настенный угольник водоснабжения или другое оборудование и на этом участке есть один или более поворотов трубы. Если участок прямой, тогда "по удобности" без разницы какой трубой монтировать. Посилання на коментар Поділитися на інших сайтах More sharing options...
lim Опубліковано: 22 січня 2015 Автор Поділитись Опубліковано: 22 січня 2015 штабил - металлопластиковая труба со слоем алюминия само собой этой инфой я владею и даже характеристики читал и сферы использования принципе с флексом тоже особых проблем нет, но на некоторых поворотах дополнительно нужно использовать фиксаторы поворота или уголки Вы ж меня поймите, я реально трубу в руках не держал и не пробовал её гнуть и для меня как раз трудно понять при каких поворотах надо именно уголки а при каких просто зафиксировать необходимо подразумевается участок к которому подключается отопительный прибор или настенный угольник водоснабжения иными словами Вы предлагаете вести трассу флексом а за метр до батареи делать соединение и переход на стабил? Посилання на коментар Поділитися на інших сайтах More sharing options...
otoplenie.es Опубліковано: 23 січня 2015 Поділитись Опубліковано: 23 січня 2015 при каких поворотах надо именно уголки а при каких просто зафиксировать необходимо - поворот в плоскости пола или в плоскости стены можно закрепить крюками без фиксаторов поворота и уголков - при выходе труб из пола в вертикальную плоскость - фиксатор поворота - при необходимости уменьшить радиус поворота - фиксатор поворота или уголок, (уголок в случае если необходим красивый монтаж, открытый, например, или радиус изгиба с фиксатором поворота больше необходимого) иными словами Вы предлагаете вести трассу флексом а за метр до батареи делать соединение и переход на стабил? лишнее соединение не нужно: штабил от тройника до конечной точки. Или не заморачиваться и делать все одной трубой: или флексом или штабилем. Посилання на коментар Поділитися на інших сайтах More sharing options...
lim Опубліковано: 5 лютого 2015 Автор Поділитись Опубліковано: 5 лютого 2015 за прошедшее время удалось закупить некоторые материалы: 1. сетка 3х100х100, нашел у местного производителя почти в два раза дешевле чем на металлобазе 2. радиаторы Керми 10 штук 22 тип нижнее подключение 3. узел нижнего подключение и головки Данфосс 4. теплый пол Devi - это не мне, коллеге в квартиру 5. бухта 500 метров рехау раутерм ещё в дороге, куплена в ромстале цену выбил почти нормальную но тут самое главное условие доступ бесплатный к инструменту очень надеюсь он там нормальный и не убитый за пункты 2, 3, 4 особая благодарность Андрею Murave Посилання на коментар Поділитися на інших сайтах More sharing options...
lim Опубліковано: 5 лютого 2015 Автор Поділитись Опубліковано: 5 лютого 2015 ждем новых денюшков и продолжаем закупать материалы ну а теперь вопросы: 1. в какой проге проще всего раскинуть, нарисовать контуры ТП? чтоб был автоматический подсчет длины. Я то заказал 500 метров, оно точно уйдет, а может там лучше оптимальнее на 600 раскрутить. Надобно посчитать. 2. какой посоветуете смесительный узел в реалиях наших цен и интересных курсов? хотя а сколько контуров? думаю по первому пункту 7-8. Но тут опять мой мозг мучит идея а может еще добавить теплых стен, а туда трубу надо меньшего диаметра 14 (или 10) а у рехау она стоит дороже за 17 я прав? Может есть смысл взять на стены шось подешевле и в случае чего заглушить контур? 3. по поводу выбора между флехсом и стабилом, в нете кучу роликов как трубу сто раз поломали туда сюда, феном нагрели и опа чудо она как новая. А в реальной эксплуатации это свойство ей надо? А стабил тоже так можна насиловать? думаю что нет.... А как учитывается температурное расширение флехса если им делать обвязку котельной? 4. и тут очередная гениальная мысль а что если обвязку котельной делать медью? а на радиаторы и ГВС ХВС уже флехс Посилання на коментар Поділитися на інших сайтах More sharing options...
StNick Опубліковано: 5 лютого 2015 Поділитись Опубліковано: 5 лютого 2015 3. по поводу выбора между флехсом и стабилом, в нете кучу роликов как трубу сто раз поломали туда сюда, феном нагрели и опа чудо она как новая. А в реальной эксплуатации это свойство ей надо? А стабил тоже так можна насиловать? Насколько я понял ключевой момент это то что трубу надо тестировать под давлением, дайте в нее 70 градусов и увеличивайте давление, вот там ее и может порвать. Посилання на коментар Поділитися на інших сайтах More sharing options...
murava Опубліковано: 5 лютого 2015 Поділитись Опубліковано: 5 лютого 2015 Насколько я понял ключевой момент это то что трубу надо тестировать под давлением, дайте в нее 70 градусов и увеличивайте давление, вот там ее и может порвать. При 70 грд примерно на 25 атм. Стабил - на 37ми. Уже пробовали На холодную держит 47-52 атм и громко лопается. Добавлено через 4 минуты 1. в какой проге проще всего раскинуть, нарисовать контуры ТП? чтоб был автоматический подсчет длины. Я то заказал 500 метров, оно точно уйдет, а может там лучше оптимальнее на 600 раскрутить. Надобно посчитать. Фактическая раскладка от теоретической будет отличаться все равно. Не имеет смысла. 2. какой посоветуете смесительный узел в реалиях наших цен и интересных курсов? хотя а сколько контуров? думаю по первому пункту 7-8. Но тут опять мой мозг мучит идея а может еще добавить теплых стен, а туда трубу надо меньшего диаметра 14 (или 10) а у рехау она стоит дороже за 17 я прав? Может есть смысл взять на стены шось подешевле и в случае чего заглушить контур? Если что-то родное и готовое, то данфосс - курс стоит, цена пока в грн. 3. по поводу выбора между флехсом и стабилом, в нете кучу роликов как трубу сто раз поломали туда сюда, феном нагрели и опа чудо она как новая. А в реальной эксплуатации это свойство ей надо? А стабил тоже так можна насиловать? думаю что нет.... А как учитывается температурное расширение флехса если им делать обвязку котельной? Инога надо. Со стабилом такой фокус не проходит. На обвязку пользовать рехау дорого - цена фиттингов остановит. 4. и тут очередная гениальная мысль а что если обвязку котельной делать медью? а на радиаторы и ГВС ХВС уже флехс Вполне разумная идея 2 Посилання на коментар Поділитися на інших сайтах More sharing options...
Korni Опубліковано: 5 лютого 2015 Поділитись Опубліковано: 5 лютого 2015 Насколько я понял ключевой момент это то что трубу надо тестировать под давлением, дайте в нее 70 градусов и увеличивайте давление, вот там ее и может порвать. Напаркуя????? В остальном тоже согласен с Андреем. Посилання на коментар Поділитися на інших сайтах More sharing options...
Рекомендовані повідомлення
Створіть акаунт або увійдіть у нього для коментування
Ви маєте бути користувачем, щоб залишити коментар
Створити акаунт
Зареєструйтеся для отримання акаунта. Це просто!
Зареєструвати акаунтУвійти
Вже зареєстровані? Увійдіть тут.
Увійти зараз