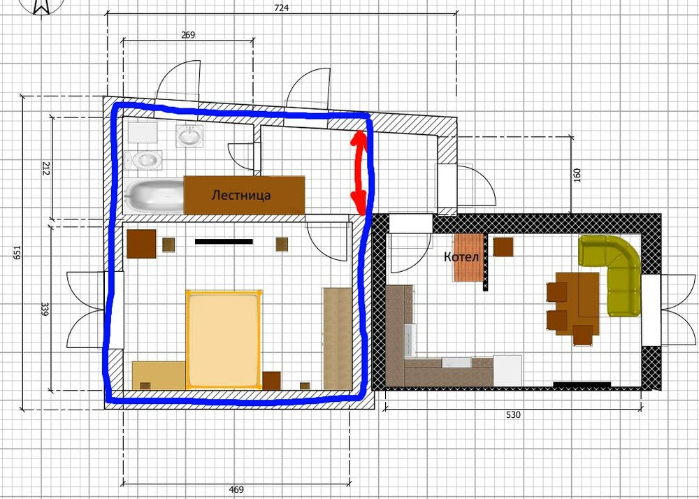
serg450453 Опубліковано: 6 березня 2015 Поділитись Опубліковано: 6 березня 2015 Всем доброго, планируется строительство пристройки. На аматорском плане ниже (в моем исполнении) функционирующий жилой дом с газом, светом и водой отмечен черной рамкой, все остальное необходимо достроить. Места во дворе нет, то что нарисовано, это по максимуму. Вопрос следующий. Как видно 1-й этаж не квадратный, а имеет выпуклость в виде пристройки, она необходима что бы попасть в кухню. Как в таком случае заливать фундамент? по стене, или заливать квадратом по форме второго этажа и отдельно делать Г-образный для небольшой пристройки. Так же интересует вопрос по поводу кладки газоблока на втором этаже. Достаточно ли будет стандартного арм-пояса, что бы он выдержал расстояние, которое показано на рисунке красным. Не знаю, понятно ли выразился, но уж как есть За ранее благодарен за рекомендации. Посилання на коментар Поділитися на інших сайтах More sharing options...
trianom Опубліковано: 7 березня 2015 Поділитись Опубліковано: 7 березня 2015 Фундаментные ленты нужно лить под стенами. По поводу опирания стены второго этажа - под ней над помещением нужна балка (ж.б. (сечением минимум 0.3Х0.3м) или стальная). Какое армирование ж.б. балки (или какое сечение стальной) нужно проверять расчетом. Посилання на коментар Поділитися на інших сайтах More sharing options...
serg450453 Опубліковано: 7 березня 2015 Автор Поділитись Опубліковано: 7 березня 2015 Какое армирование ж.б. балки (или какое сечение стальной) нужно проверять расчетом. А заказывая проект это рассчитают? или тем расчетам грош цена? Посилання на коментар Поділитися на інших сайтах More sharing options...
biz-kiev Опубліковано: 7 березня 2015 Поділитись Опубліковано: 7 березня 2015 А заказывая проект это рассчитают? или тем расчетам грош цена? смотря где закажите. Посилання на коментар Поділитися на інших сайтах More sharing options...
Рекомендовані повідомлення
Створіть акаунт або увійдіть у нього для коментування
Ви маєте бути користувачем, щоб залишити коментар
Створити акаунт
Зареєструйтеся для отримання акаунта. Це просто!
Зареєструвати акаунтУвійти
Вже зареєстровані? Увійдіть тут.
Увійти зараз