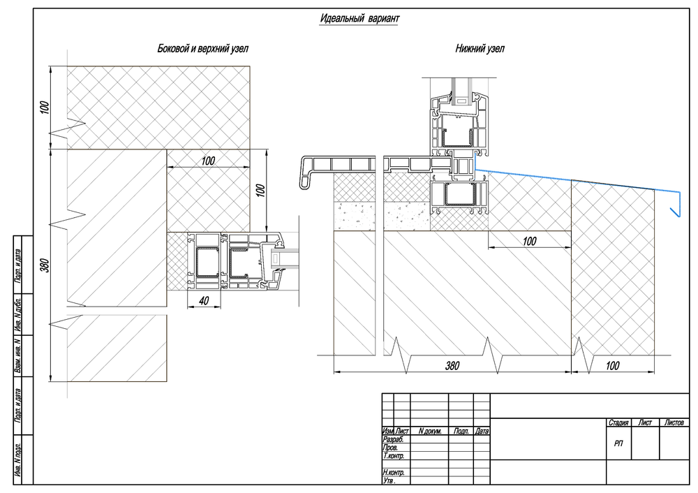
Ruslan R Опубліковано: 14 квітня 2015 Поділитись Опубліковано: 14 квітня 2015 Идеальный вариант - использование доборников. Посилання на коментар Поділитися на інших сайтах More sharing options...
Ruslan R Опубліковано: 14 квітня 2015 Поділитись Опубліковано: 14 квітня 2015 можно поподробнее про ниши под радиаторы - предлагаете мне штробить ниши? а общая толщина стенки как - не пострадает от етого? вентрешетки в подоконники зачем? чтоб окна не запотевали? можно тоже поподробнее? Для тех у кого нишы есть, делаем так: Для тех у кого нишы отсутствуют, делаем так: см. посты 194 и 195. Посилання на коментар Поділитися на інших сайтах More sharing options...
FTR Опубліковано: 16 травня 2015 Поділитись Опубліковано: 16 травня 2015 итак, FTR советует утопить окно на 80 мм в проем, а Ruslan R советует ставить ровно с внешней стеной. что сказать, единогласно пришли к выводу что окна ставить - как всегда, бабка надвое гадала .... Добавлено через 1 минуту можно поподробнее про ниши под радиаторы - предлагаете мне штробить ниши? а общая толщина стенки как - не пострадает от етого? вентрешетки в подоконники зачем? чтоб окна не запотевали? можно тоже поподробнее? Ниши штробить не нужно. Подоконник не должен перекрывать радиатор больше чем на половину, тепло от радиатора должно свободно подниматься вверх и обогреватель окно. По поводу позиционирования окна в проеме - есть такое понятие точка росы. Для каждой стены можно сделать просчет и вычислить место установки, где окну будет более комфортно ( отсутствие запотевания и грибка на откосах). Рекомендации выше. Добавлено через 1 минуту Идеальный вариант - использование доборников. Идеальный - если не учитывать расходы на доборные профили Посилання на коментар Поділитися на інших сайтах More sharing options...
Zetlex Опубліковано: 17 лютого 2021 Поділитись Опубліковано: 17 лютого 2021 Похожая ситуация. Дом в полтора кирпича силикатного.белый снаружи, красный внутри. Ширина стены примерно 38-40 см( незнаю насколько широкая прослойка. Куплены окна veka proline 70. Старые окна засунуты в глубь на 8 см(ширина окна старого 15см) . Территориально нахожусь в Славянске , Дон. Обл. На какую глубину ставить окно? Утепления не придвидится, ограничен длинной отливов уже купленных. Старые отливы 17см, новые 22см. Хотелось бы оставить их утопленные на 8-10см примерно как они и находятся Посилання на коментар Поділитися на інших сайтах More sharing options...
Алік Опубліковано: 17 лютого 2021 Поділитись Опубліковано: 17 лютого 2021 Я бы рекомендовал ставить примерно посередине стены или на сколько получится при максимальном смещении отливов вовнутрь. Посилання на коментар Поділитися на інших сайтах More sharing options...
ViknaStar Опубліковано: 17 лютого 2021 Поділитись Опубліковано: 17 лютого 2021 Розташовувати вікон по товщині стінової конструкції залежить від конструкції й матеріалу стіни. Типові рекомендації прописані в ДСТУ-Н Б В.2.6-146:2010 мал. 2.1 та 2.2. 1 Посилання на коментар Поділитися на інших сайтах More sharing options...
volkoff Опубліковано: 21 лютого 2021 Поділитись Опубліковано: 21 лютого 2021 Как правильно монтировать/устанавливать окна,.. на фото-комплексное решение мостиков холода,утепления проема окон. Посилання на коментар Поділитися на інших сайтах More sharing options...
Рекомендовані повідомлення
Створіть акаунт або увійдіть у нього для коментування
Ви маєте бути користувачем, щоб залишити коментар
Створити акаунт
Зареєструйтеся для отримання акаунта. Це просто!
Зареєструвати акаунтУвійти
Вже зареєстровані? Увійдіть тут.
Увійти зараз