Irika Опубліковано: 15 травня 2010 Автор Поділитись Опубліковано: 15 травня 2010 я, наверное, просто не нашел на плане помещение для топочной/котельной. где оно есть-то? и что с подвалом/цоколем? или это я на сайте не все страницы плана просмотрел? Топочная при входе. В планах нет подвала/цокольного этажа Посилання на коментар Поділитися на інших сайтах More sharing options...
Andrey Melnick Опубліковано: 15 травня 2010 Поділитись Опубліковано: 15 травня 2010 Ирина, так на каком варианте проекта вы остановились? Посилання на коментар Поділитися на інших сайтах More sharing options...
руки_из_попы Опубліковано: 16 травня 2010 Поділитись Опубліковано: 16 травня 2010 я бы на первом этаже вместо кабинета сделал бы спальню, а кабинет перенес на второй... и на втором этаже вход в санузел через гардероб просто рассмешил меня.... Посилання на коментар Поділитися на інших сайтах More sharing options...
Irika Опубліковано: 18 травня 2010 Автор Поділитись Опубліковано: 18 травня 2010 Ирина, так на каком варианте проекта вы остановились? на варианте, который в посте 39 Посилання на коментар Поділитися на інших сайтах More sharing options...
Irika Опубліковано: 18 травня 2010 Автор Поділитись Опубліковано: 18 травня 2010 я бы на первом этаже вместо кабинета сделал бы спальню, На 1м этаже спальня для родителей Посилання на коментар Поділитися на інших сайтах More sharing options...
вторик Опубліковано: 18 травня 2010 Поділитись Опубліковано: 18 травня 2010 (змінено) я не вижу возможности организовать сборное перекрытие (балки там, плиты всякие) только монолит. выход из гаража не делайте под лесницу всеравно потом замуруете. а на геометрии лесницы вы уже сильно проигрываете. я бы рекомендовал объеденить гараж с входом крытой террасой, нужен же козырек?? и внешность дома отработать в этом контексте. Змінено 18 травня 2010 користувачем вторик Посилання на коментар Поділитися на інших сайтах More sharing options...
Irika Опубліковано: 26 травня 2010 Автор Поділитись Опубліковано: 26 травня 2010 1. я не вижу возможности организовать сборное перекрытие (балки там, плиты всякие) только монолит. 2. выход из гаража не делайте под лесницу всеравно потом замуруете. 3. а на геометрии лесницы вы уже сильно проигрываете. я бы рекомендовал объеденить гараж с входом крытой террасой, нужен же козырек?? и внешность дома отработать в этом контексте. 1 Из-за ширины комнат? или хола? 2 Неужели так непрактично? 3 В чем проиграш, кроме площади? Посилання на коментар Поділитися на інших сайтах More sharing options...
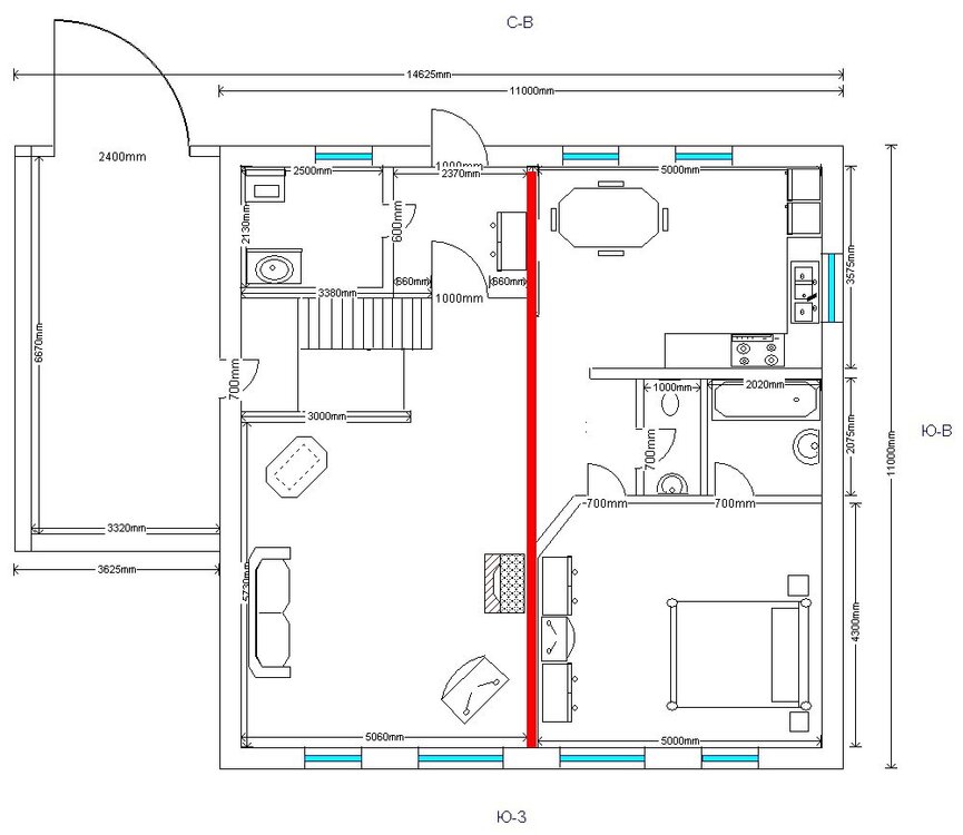
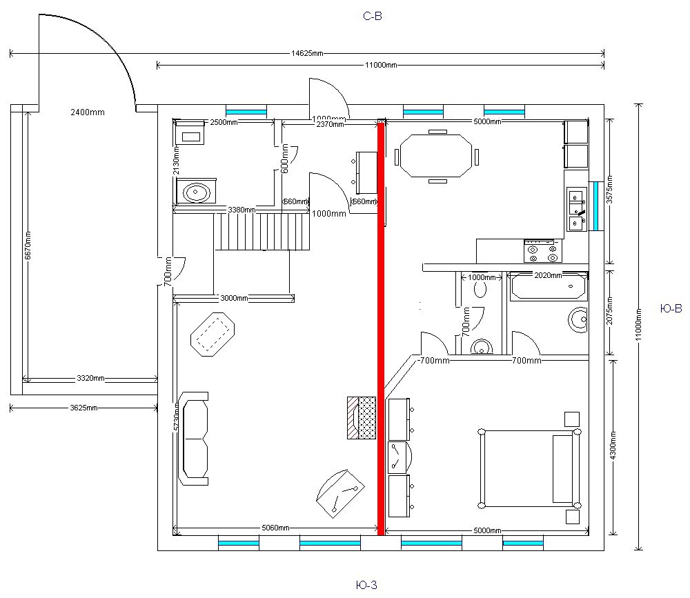
вторик Опубліковано: 27 травня 2010 Поділитись Опубліковано: 27 травня 2010 1 из за отсутствия несущих элементов. 2 см 3. 3 чтобы пройти под лестницей она должна быть крутой, неудобно по такой по несколько раз в день перемещаться. но если гараж ниже пола дома организовать, и сделать с гаража подъем в доме, ступенек 5 то можно. и под промежуточной площадкой лестницы тамбурок с вытяжкой. красным стенка несущая возможно 380 из кирпича, в ней можно сделать арку до 3м Посилання на коментар Поділитися на інших сайтах More sharing options...
Irika Опубліковано: 27 травня 2010 Автор Поділитись Опубліковано: 27 травня 2010 1 из за отсутствия несущих элементов. 2 см 3. красным стенка несущая возможно 380 из кирпича, в ней можно сделать арку до 3м Можно ли совместить панели и монолит или попробовать скомпоновать панели различной длинны? фактически любую стену можно предусмотреть как несущую. (может это совсем делетанство, но хочется понять) заранее спасибо. с дверью под лестницей согласна, лучше кладовку разместить, буду думать куда дверь переместить Посилання на коментар Поділитися на інших сайтах More sharing options...
Gitan Опубліковано: 27 травня 2010 Поділитись Опубліковано: 27 травня 2010 Что-то напомнило мне мой проект. www.mukhin.ru/catalogpr/p/j-208-1p.html www.stroimdom.com.ua/forum/showpost.php?p=179575&postcount=21 может поможет. 1 Посилання на коментар Поділитися на інших сайтах More sharing options...
chief39 Опубліковано: 28 травня 2010 Поділитись Опубліковано: 28 травня 2010 Да, совсем забыл о главном (но, это сугубо моё отношение к вопросу) - гараж как единое целое с домом. Лично я против подобных объединений: 1-й и самый главный аргумент - машине (особенно современной, с нержавеющим кузовом) гараж не нужен совершенно. ... Когда машина переехала в теплый паркинг, изменилось вот что: 1) Можно спокойно мыть машину зимой, гнать её в паркинг и забыть о том что зима. 2) Если замерз омыватель - не обязательно ждать весны. Утром все будет тип-топ 3) Я не знаю чем и как надо прыскать в замок, чтоб открыть машину. 4) Лед на машине и обледенелости в арках колес теперь тоже не проблема. 5) Аккумулятор. Вопросы "как завелся сегодня?" у меня вызывают легкое.. "а? что?" Конкретно по гаражу: 1) Там удобно держать сменную резину, и всякие полезные мелочи для машины. 2) Это потенциальная минимастерская 3) Это место для грязных и габаритных предметов, которые не попрешь в дом. Посилання на коментар Поділитися на інших сайтах More sharing options...
Dmitry_Kaliningrad Опубліковано: 29 травня 2010 Поділитись Опубліковано: 29 травня 2010 Когда машина переехала в теплый паркинг, изменилось вот что: 1) Можно спокойно мыть машину зимой, гнать её в паркинг и забыть о том что зима. Какого размера должен быть гараж, чтобы спокойно помыть машину? Моется на норм. мойке с вытиранием всей влаги, обрызгиванием силиконом уплотнителей. Можно постоять 5 минут с открытыми дверями сразу после мойки. Ваще проблем не было с этим. 2) Если замерз омыватель - не обязательно ждать весны. Утром все будет тип-топ Ваще то льют незамерзайку для этого. Если жалко денег, то после 2 часов стоянки возле работы (или у вас там тоже теплый гараж?) придет капец вашей водичке. 3) Я не знаю чем и как надо прыскать в замок, чтоб открыть машину. И я не знаю... Хотя я на жигулях всяких не ездил... 4) Лед на машине и обледенелости в арках колес теперь тоже не проблема. Я планирую делать навес возле дома для машины. Льда не жду. 5) Аккумулятор. Вопросы "как завелся сегодня?" у меня вызывают легкое.. "а? что?" Ну может у вас там -50. При -20, -25 заводился легко. Правда слышно было, что тяжеленько провернуть двигло, хотя оно и понятно, залито то 10w40 1) Там удобно держать сменную резину, и всякие полезные мелочи для машины. Резина валяется на работе, благо есть где... Полезный мелочи- половина в машине, половина тож на работе. 2) Это потенциальная минимастерская Согласен, но опять-таки упираемся в размеры... 3) Это место для грязных и габаритных предметов, которые не попрешь в дом. Короче для хлама всякого, у меня запланирована кладовка под это дело... Посилання на коментар Поділитися на інших сайтах More sharing options...
Korni Опубліковано: 30 травня 2010 Поділитись Опубліковано: 30 травня 2010 ......у меня запланирована кладовка под это дело... Сообщение как неудачный фильм - первая половина фильма вроде интересна и правильна, а во второй половине - деньги кончились.... Посилання на коментар Поділитися на інших сайтах More sharing options...
Dmitry_Kaliningrad Опубліковано: 31 травня 2010 Поділитись Опубліковано: 31 травня 2010 а во второй половине - деньги кончились.... Неее, не кончились. Погода кончилась и так не начиналась. Незнаю, как в Украине, а нас даже весна не началась... То дождь, то холодно... Щас, например, опять ливень. 3 дня опять не заехать на поле... а мне фуру блока надо загнать... Посилання на коментар Поділитися на інших сайтах More sharing options...
chief39 Опубліковано: 31 травня 2010 Поділитись Опубліковано: 31 травня 2010 Какого размера должен быть гараж, чтобы спокойно помыть машину? Моется на норм. мойке с вытиранием всей влаги, обрызгиванием силиконом уплотнителей. Можно постоять 5 минут с открытыми дверями сразу после мойки. Ваще проблем не было с этим. Ваще то льют незамерзайку для этого. Если жалко денег, то после 2 часов стоянки возле работы (или у вас там тоже теплый гараж?) придет капец вашей водичке. И я не знаю... Хотя я на жигулях всяких не ездил... Я планирую делать навес возле дома для машины. Льда не жду. Ну может у вас там -50. При -20, -25 заводился легко. Правда слышно было, что тяжеленько провернуть двигло, хотя оно и понятно, залито то 10w40 Резина валяется на работе, благо есть где... Полезный мелочи- половина в машине, половина тож на работе. Согласен, но опять-таки упираемся в размеры... Короче для хлама всякого, у меня запланирована кладовка под это дело... 1) Я не говорил о том, чтоб МЫТЬ в гараже. Я говорил о том что ПОСЛЕ мойки, непросушенные углубления могут промерзнуть. В гараже это исключено. Там они подсохнут. Я ничего не знаю о 5 минутах и силиконах. ;) Сел и поехал. 2) Иногда незамерзайка банально забывается. Этой осенью просто забыл на утро залить и к вечеру после работы уже примерзло. Паркинг решил вопрос. Второе: можно банально нарваться на паленый омыватель "-20", который замерзнет уже при -10. Было такое. 3) Вода везде одинаково замерзает. Но последние две жалобы на подмерзание слышал от аудиста и форестеровода. Остроумно, канеш, но не по теме. 4) 5) Чуть подсевший аккум - и может не завестись. При -25. У меня такого не было. А вот "улочники" через раз попадаются. Не на жигулях ;) У этих же "улочников" панаслоники умирали за 1-2 года. У меня прожил 3 года и поменял только на всякий случай перед дальней ночной поездкой при -27. 6) А у топикстартера есть работа с личной кладовкой под резину, диски, запчасть? Кто-то уточнял? ;) Если кладовку расширить на 10-15 метров - получится большая кладовка с функциями, перечисленными выше. Я привел плюсы этого варианта. Топикстартер в состоянии, думаю, разобраться. Холиварить не хочу. Свою машину - хоть под открытым небом. Каждому свое. Посилання на коментар Поділитися на інших сайтах More sharing options...
Dmitry_Kaliningrad Опубліковано: 31 травня 2010 Поділитись Опубліковано: 31 травня 2010 1) Я привел плюсы этого варианта. А я - минусы. Все-таки дом, считаю, надо строить для людей, а не для машины... Хотя, конечно, каждому свое. Я то жилищную проблему решаю, а кто-то,типа, дачу строит и т.п. Посилання на коментар Поділитися на інших сайтах More sharing options...
Irika Опубліковано: 3 червня 2010 Автор Поділитись Опубліковано: 3 червня 2010 Конкретно по гаражу: 1) Там удобно держать сменную резину, и всякие полезные мелочи для машины. 2) Это потенциальная минимастерская 3) Это место для грязных и габаритных предметов, которые не попрешь в дом. Согласна! ребята, спор о нужности гаража совмещённого с домом ведется давно на форуме, просто хочется сесть в чистую машину в чистой обуви/одежде, когда с неба что-то падает (читай дождь/снег), нормально выгрузить сумки и т.д. Посилання на коментар Поділитися на інших сайтах More sharing options...
Dmitry_Kaliningrad Опубліковано: 4 червня 2010 Поділитись Опубліковано: 4 червня 2010 Лично я, планирую нечто подобное (без гаража) с живой изгородью. Посилання на коментар Поділитися на інших сайтах More sharing options...
Рекомендовані повідомлення
Створіть акаунт або увійдіть у нього для коментування
Ви маєте бути користувачем, щоб залишити коментар
Створити акаунт
Зареєструйтеся для отримання акаунта. Це просто!
Зареєструвати акаунтУвійти
Вже зареєстровані? Увійдіть тут.
Увійти зараз