oam Опубліковано: 18 березня 2015 Поділитись Опубліковано: 18 березня 2015 Будет строиться фасадный забор, будут откатные ворота и калитка. Ближайшие работы - заливка ленты под забор. Итак, вопрос: что надо предусмотреть и заложить сразу в бетон? Подразумевается - может сразу по углам ворот и калитки залить в ленту квадратную трубу? или анкертные болты какие-то замуровать? или еще что-то? Не хочется потом долбить бетон для крепежа или доливать что-то дополнительно... Посилання на коментар Поділитися на інших сайтах More sharing options...
muvic Опубліковано: 18 березня 2015 Поділитись Опубліковано: 18 березня 2015 тут на форумі вже не раз розміщували схеми підготовки фундаменту для відкотних воріт, та схеми розводки електродротів у отворі. є чудова функція - пошук. пошук можна робити по ключовим словам. Посилання на коментар Поділитися на інших сайтах More sharing options...
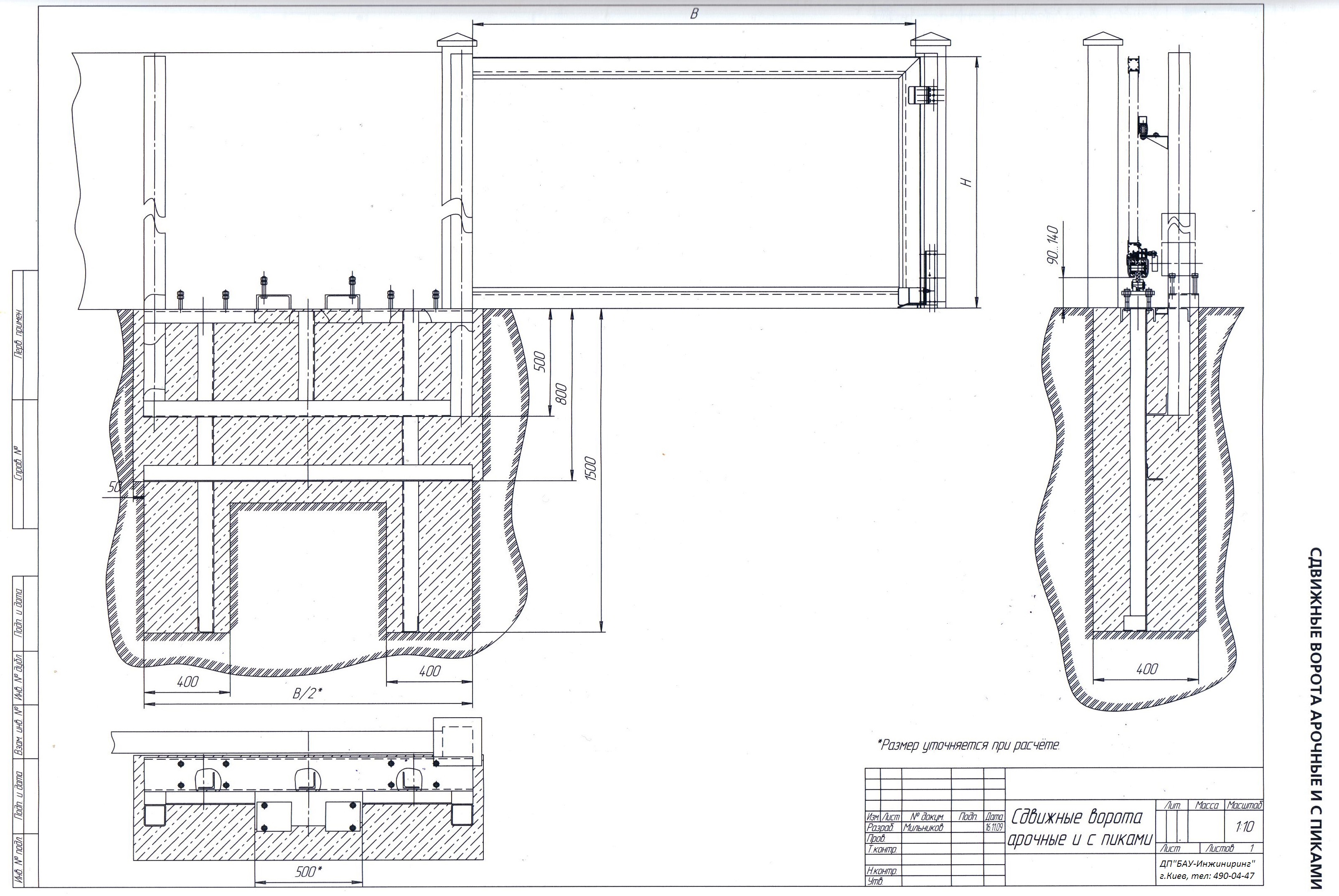
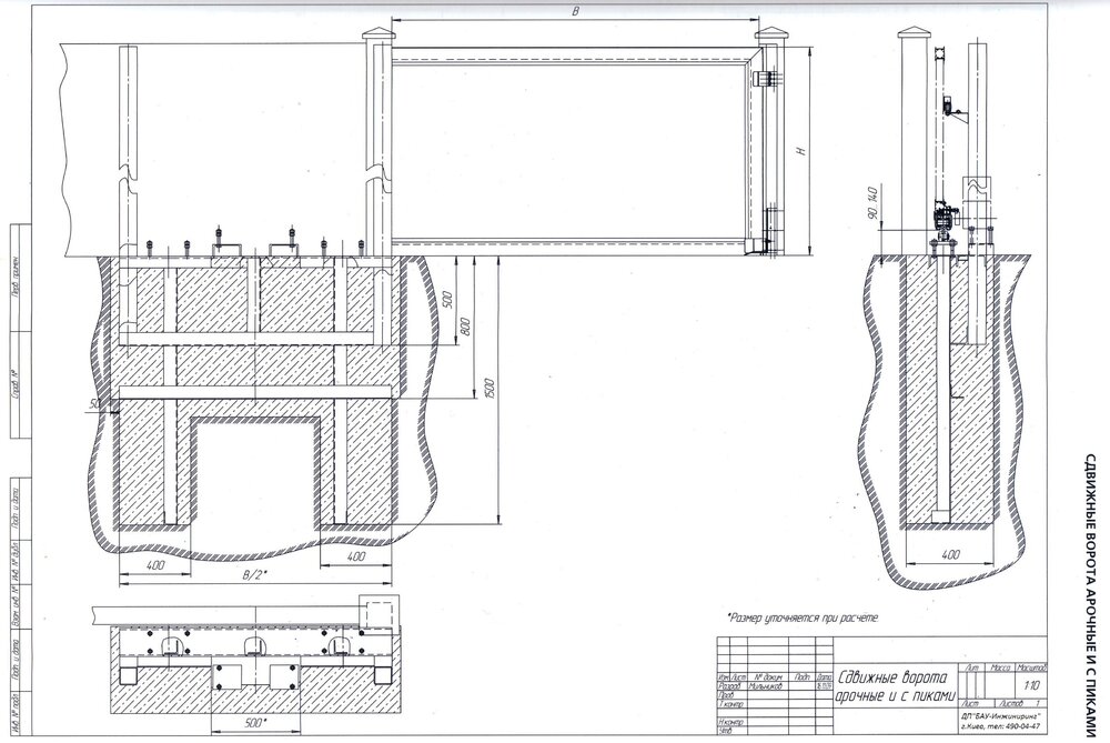
langervictor Опубліковано: 18 березня 2015 Поділитись Опубліковано: 18 березня 2015 Если для монтажа ворот и калитки будете привлекать кого-то, то доведите ленточный фундамент до проема. Все остальное сделают те, кто будет делать монтаж ворот. А в целом вот такая схема размещения закладных: Посилання на коментар Поділитися на інших сайтах More sharing options...
muvic Опубліковано: 18 березня 2015 Поділитись Опубліковано: 18 березня 2015 Насправді, не самий гарний варіант. Багато запитань. І по конструктиву у тому числі. Посилання на коментар Поділитися на інших сайтах More sharing options...
oam Опубліковано: 18 березня 2015 Автор Поділитись Опубліковано: 18 березня 2015 Насправді, не самий гарний варіант поделитесь вашим видением правильного варианта, либо ссылкой.. Посилання на коментар Поділитися на інших сайтах More sharing options...
muvic Опубліковано: 18 березня 2015 Поділитись Опубліковано: 18 березня 2015 поделитесь вашим видением правильного варианта, либо ссылкой.. будь ласка. ось тема, тут вже жували-жували, жували-жували, жували-жували... Посилання на коментар Поділитися на інших сайтах More sharing options...
langervictor Опубліковано: 18 березня 2015 Поділитись Опубліковано: 18 березня 2015 Насправді, не самий гарний варіант. Багато запитань. І по конструктиву у тому числі. Це як то кажуть, як книжка пише. 1 Посилання на коментар Поділитися на інших сайтах More sharing options...
muvic Опубліковано: 18 березня 2015 Поділитись Опубліковано: 18 березня 2015 та я ж не проти. книжка нехай пише. а досвід - трохи коригує. Посилання на коментар Поділитися на інших сайтах More sharing options...
VOROTOK Опубліковано: 18 березня 2015 Поділитись Опубліковано: 18 березня 2015 Будет строиться фасадный забор, будут откатные ворота и калитка. Размер фундамента под откатные ворота зависит от размера проема и зашивки полотна. Посилання на коментар Поділитися на інших сайтах More sharing options...
oam Опубліковано: 21 березня 2015 Автор Поділитись Опубліковано: 21 березня 2015 всем спасибо.. конструктив понятен. Посилання на коментар Поділитися на інших сайтах More sharing options...
Maxmetal Опубліковано: 30 березня 2015 Поділитись Опубліковано: 30 березня 2015 предлагаю упростить задачу, обратившись к нам maxmetal.com.ua ,обслужим профессионально! звоните мне, если будут вопросы 093 2091333 Максим. Посилання на коментар Поділитися на інших сайтах More sharing options...
muvic Опубліковано: 30 березня 2015 Поділитись Опубліковано: 30 березня 2015 предлагаю упростить задачу, обратившись к нам нахметалл.ком ,обслужим профессионально! звоните мне, если будут вопросы 01 02 03 112 9111 Максим. А професіоналки теж є? Чи тільки професіонали? Хочу, щоб обслужили "професіАналки" 1 Посилання на коментар Поділитися на інших сайтах More sharing options...
Рекомендовані повідомлення
Створіть акаунт або увійдіть у нього для коментування
Ви маєте бути користувачем, щоб залишити коментар
Створити акаунт
Зареєструйтеся для отримання акаунта. Це просто!
Зареєструвати акаунтУвійти
Вже зареєстровані? Увійдіть тут.
Увійти зараз