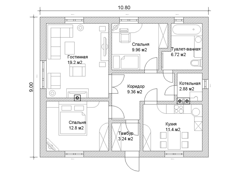
ivinn Опубліковано: 13 липня 2009 Автор Поділитись Опубліковано: 13 липня 2009 АлексВладимирович . Последний Ваш вариант, я бы немного изменил. В Вашем варианте у меня две спальни имеют северную сторону, и одну из них (12,16 м2) можно перепроектировать под кухню. Нужно соединить санузлы. Посилання на коментар Поділитися на інших сайтах More sharing options...
АлексВладимирович Опубліковано: 13 липня 2009 Поділитись Опубліковано: 13 липня 2009 АлексВладимирович . Последний Ваш вариант, я бы немного изменил. В Вашем варианте у меня две спальни имеют северную сторону, и одну из них (12,16 м2) можно перепроектировать под кухню. Нужно соединить санузлы. Ivinn., в этом-то и суть данного варианта., именно так и надо будет переоборудовать., но потом, когда появятся две мансардные жилые комнаты. Или (уже) мансардный этаж Вы будете осваивать сразу.? Хотя.., если вам достаточно только двух спален - дом можно сделать ещё более микроскопичным..... Посилання на коментар Поділитися на інших сайтах More sharing options...
ivinn Опубліковано: 13 липня 2009 Автор Поділитись Опубліковано: 13 липня 2009 (змінено) 1. Проект под бюджетное строительство. Предпочтение отдаю газобетону AEROC 375 мм 400-ой плотности, так-как есть возможность самим поставить кладку. Теорию выучим, практику пройдем в бою. 2. Фасад: дышащая штукатурка для газобетона или отделка сайдингом. Сайдинг можно смонтировать самим. 4. Фундамент, как один из вариантов в два этапа. Первый - заливка бутобетонного фундамента до уровня земли (при наличии невостребованного бута) на глубину промерзания ~1-1,2м. со щебневой подушкой и гидроизоляцией по обеим сторонам рубероидом или плёнкой своими силами, естественно при соблюдении процентовки приготовления цемента, а вторым этапом - опалубка, ленточный армированный фундамент нужной высоты, миксер (промышленный бетон). Думаю так делать. Просьба подкорректируйте, нужен совет в данном варианте. 5. Перекрытие TERIVA или деревянные с утеплением. Монтаж TERIVы не сложная штука. 6. Крыша двускатная: металочерепица или крашеный шифер. Тут без вариантов – мастера. 7. Коммуникации (вода, канализация) на одной прямой по направлению к септику (сливной яме). 8. Отопление два котла: один газовый (основной), другой дополнительный (электрический) будут находиться в топочной, помещение между кухнею и санузлом. В дополнение отоплению (автономности) хочу использовать камин-печку для обогрева гостиной и спальни .На форуме есть данные варианты этих дивайсов. 9. С северной стороны только одно маленькое окошко топочной Першочергове завдання стоїть зробити будівництво бюджетним енергозберігаючим. Тому деякі пункти з мого першого посту випали. "микроскопичный дом" - не практичный. Змінено 13 липня 2009 користувачем ivinn Посилання на коментар Поділитися на інших сайтах More sharing options...
LaRsoN Опубліковано: 13 липня 2009 Поділитись Опубліковано: 13 липня 2009 Не знаю что Вы за спальни придумываете по 9 м2. У меня сейчас такая в квартире шириной 2.5, так вот кровать 2 метра и обойти её сложно, а изголовье кровати под окно не поставишь- сквозняк получается. Ноги постоянно в синяках... Посилання на коментар Поділитися на інших сайтах More sharing options...
Сергей 1975 Опубліковано: 13 липня 2009 Поділитись Опубліковано: 13 липня 2009 Не знаю что Вы за спальни придумываете по 9 м2. У меня сейчас такая в квартире шириной 2.5, так вот кровать 2 метра и обойти её сложно, а изголовье кровати под окно не поставишь- сквозняк получается. Ноги постоянно в синяках... Планирую использовать ее как детскую комнату.Рядом спальня родителей,удбно рядом можно зайти проверить как там малышка и теплая будет т.к. всего одна стена уличная.А вот за котельную переживаю ,для твердотопливного +электрический котел не маловата ли? Посилання на коментар Поділитися на інших сайтах More sharing options...
ivinn Опубліковано: 13 липня 2009 Автор Поділитись Опубліковано: 13 липня 2009 Tugarin нужна Ваша помочь. Посилання на коментар Поділитися на інших сайтах More sharing options...
LaRsoN Опубліковано: 13 липня 2009 Поділитись Опубліковано: 13 липня 2009 Сергей 1975 выделите ребёнку ещё пару квадратов... В такой комнатушке дышать нечем при закрытых дверях... Дитё Ваше жалко Посилання на коментар Поділитися на інших сайтах More sharing options...
Tugarin Опубліковано: 14 липня 2009 Поділитись Опубліковано: 14 липня 2009 Tugarin нужна Ваша помочь. О.К. Занимаюсь. Посилання на коментар Поділитися на інших сайтах More sharing options...
АлексВладимирович Опубліковано: 14 липня 2009 Поділитись Опубліковано: 14 липня 2009 ...но изюминка во внутренней автономной лестнице. Лестница пригодится в светлом завтрашнем будущем для мансардного чердака. Светлое будущее рано или поздно наступает всегда.. Вот ещё вариантик с учетом будущей мансарды : (ссылка на изображение устарела) (ссылка на изображение устарела) (ссылка на изображение устарела) Посилання на коментар Поділитися на інших сайтах More sharing options...
Tugarin Опубліковано: 14 липня 2009 Поділитись Опубліковано: 14 липня 2009 Tugarin нужна Ваша помочь. Ловите следующий вариант. Не слишком уменьшен в габаритах, но компоновка иная. Если что-то понравится из предложенного, образмерю и вышлю подробные чертежи. P.S. Нет предела совершенству, так что вместе искать вариант, который Вас удовлетворит. Посилання на коментар Поділитися на інших сайтах More sharing options...
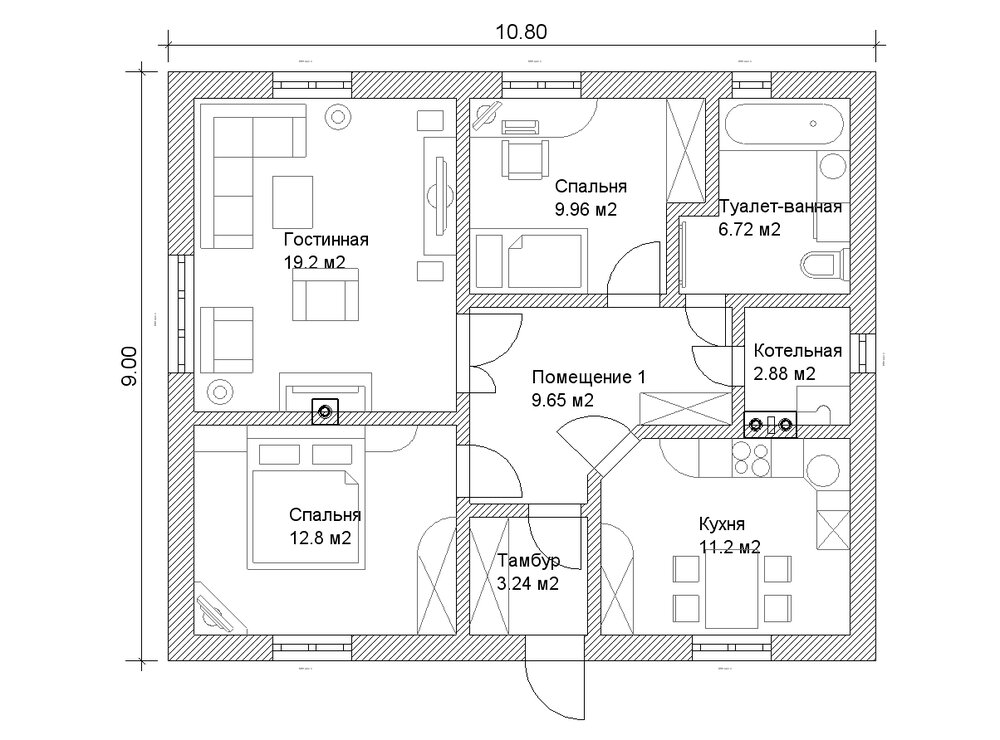
LaRsoN Опубліковано: 14 липня 2009 Поділитись Опубліковано: 14 липня 2009 У АлексВладимирович три комнаты! ;) Посилання на коментар Поділитися на інших сайтах More sharing options...
ivinn Опубліковано: 14 липня 2009 Автор Поділитись Опубліковано: 14 липня 2009 Tugarin Если разбить план дома на три части: левая (южная солнечная), центральная и правая (северная). То левая семе то. P.S. Очень загружен на работе. Ночью сяду, покумекаю. Посилання на коментар Поділитися на інших сайтах More sharing options...
Tugarin Опубліковано: 14 липня 2009 Поділитись Опубліковано: 14 липня 2009 У АлексВладимирович три комнаты! ;) Согласен, но связка кухня- гостинная- столовая на 19,2 кв.м. маловато, да и по нормам может не пройти. Посилання на коментар Поділитися на інших сайтах More sharing options...
Tugarin Опубліковано: 14 липня 2009 Поділитись Опубліковано: 14 липня 2009 Еще вариации. 1 Посилання на коментар Поділитися на інших сайтах More sharing options...
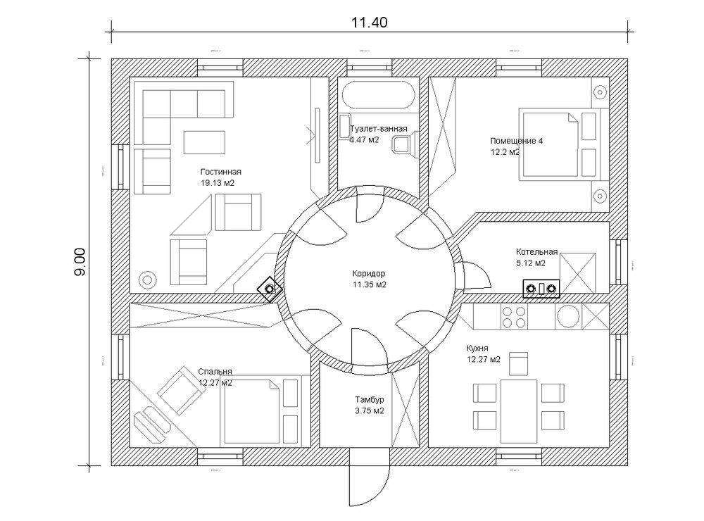
Tugarin Опубліковано: 14 липня 2009 Поділитись Опубліковано: 14 липня 2009 Круглый тамбур может быть? 1 Посилання на коментар Поділитися на інших сайтах More sharing options...
ivinn Опубліковано: 14 липня 2009 Автор Поділитись Опубліковано: 14 липня 2009 Tugarin. Нуууу.... Вы молодец. Первый вариант своеобразный, но семь дверей в коридоре. Перебор. Я Вас попрошу «образумьте» мое творчество, подгоните под стандарты (топочная) не меняя функционального расположение помещений. Если понадобится изменить размеры – можно, но только немного. Посилання на коментар Поділитися на інших сайтах More sharing options...
LaRsoN Опубліковано: 14 липня 2009 Поділитись Опубліковано: 14 липня 2009 Tugarin Вы гений!!!!!!!!!!! Этот круглый коридор- просто прелесть!!! ivinn Вы помните нашу полукруглую гостинную? Это Вам намёк... По-моему очень хорошенький последний вариант- я его уже вижу! Соглашайтесь! Посилання на коментар Поділитися на інших сайтах More sharing options...
Tugarin Опубліковано: 14 липня 2009 Поділитись Опубліковано: 14 липня 2009 Tugarin Вы гений!!!!!!!!!!! Этот круглый коридор- просто прелесть!!! ivinn Вы помните нашу полукруглую гостинную? Это Вам намёк... По-моему очень хорошенький последний вариант- я его уже вижу! Соглашайтесь! Спасибо, но Ivinn, прав семь дверей многовато. Посилання на коментар Поділитися на інших сайтах More sharing options...
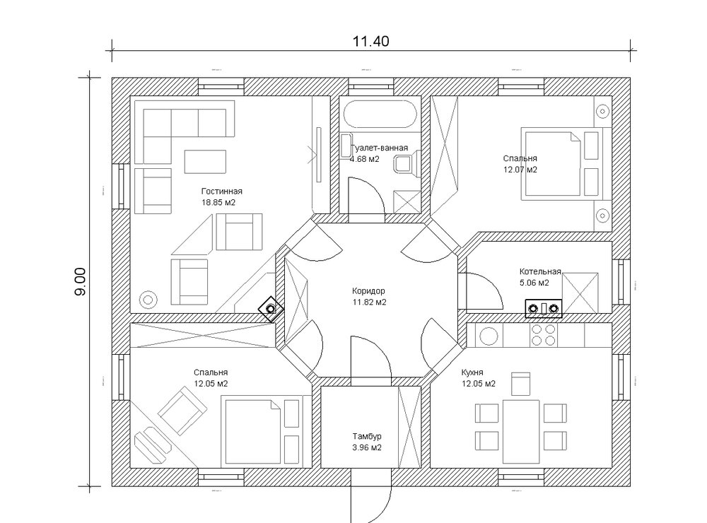
Tugarin Опубліковано: 15 липня 2009 Поділитись Опубліковано: 15 липня 2009 Рассмотрите этот вариант. Посилання на коментар Поділитися на інших сайтах More sharing options...
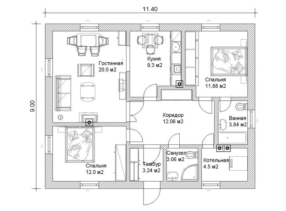
Tugarin Опубліковано: 15 липня 2009 Поділитись Опубліковано: 15 липня 2009 Не давал мне покоя плательный шкаф в коридоре, к тому же перемещение из гостинной в кухню и обратно будет куда комфортнее: 1 Посилання на коментар Поділитися на інших сайтах More sharing options...
LaRsoN Опубліковано: 15 липня 2009 Поділитись Опубліковано: 15 липня 2009 Как ни крути, а всё равно 7 дверей получается... Посилання на коментар Поділитися на інших сайтах More sharing options...
ivinn Опубліковано: 15 липня 2009 Автор Поділитись Опубліковано: 15 липня 2009 Как ни крути, а всё равно 7 дверей получается... А таки да. Но зато разнесены. Визуальный «обман» на лицо. Планировка хорошая, будем обсуждать на семейном совете. Посилання на коментар Поділитися на інших сайтах More sharing options...
ivinn Опубліковано: 15 липня 2009 Автор Поділитись Опубліковано: 15 липня 2009 Tugarin . «Малый» семейный совет прошел на ура. Серёжа моей супруге очень понравились Ваши работы. Я имел ввиду не только планировки в теме, а и www.stroimdom.com.ua/forum/album.php?albumid=256 Посилання на коментар Поділитися на інших сайтах More sharing options...
АлексВладимирович Опубліковано: 16 липня 2009 Поділитись Опубліковано: 16 липня 2009 Не давал мне покоя плательный шкаф в коридоре, к тому же перемещение из гостинной в кухню и обратно будет куда комфортнее: (ссылка на изображение устарела) Вариант Tugarina, безусловно, хороший (молодец)., но.. учитывая эконом аспект данного "предприятия" - всё же жаль терять перспективу будущей мансарды с двумя (как минимум) мансардными жилыми комнатами. Всё же желательна Внутренняя лестница : (ссылка на изображение устарела) Посилання на коментар Поділитися на інших сайтах More sharing options...
ivinn Опубліковано: 16 липня 2009 Автор Поділитись Опубліковано: 16 липня 2009 (змінено) АлексВладимирович. Идея на перспективу, хорошая. Но я считаю, что и в варианте Tugarin можно сделать (или предусмотреть) выход на будущий холодный мансардный этаж. Вход в топочную сделать с ванны (не так часто мы ходим в топочную), а в помещении1 на месте шафы сделать «L»-образную лестницу. И дверей в коридоре, на одни станет меньше. В моём варианте, я хотел на этом месте спроектировать внутренний выход на чердак типа что-то www.stroimdom.com.ua/forum/attachment.php?attachmentid=22729&d=1247647405, www.stroimdom.com.ua/forum/showthread.php?t=1817&highlight=%EB%E5%F1%F2%ED%E8%F6%E0. Теперь будет возможность поупражняться. Хотя надо всё считать, неизвестно, как это отразится на бюджетности. Посмотрите, какой красивый, практичный вариантик вырисовывается. Змінено 16 липня 2009 користувачем ivinn Посилання на коментар Поділитися на інших сайтах More sharing options...
Рекомендовані повідомлення
Створіть акаунт або увійдіть у нього для коментування
Ви маєте бути користувачем, щоб залишити коментар
Створити акаунт
Зареєструйтеся для отримання акаунта. Це просто!
Зареєструвати акаунтУвійти
Вже зареєстровані? Увійдіть тут.
Увійти зараз