ketrin-n Опубліковано: 27 серпня 2015 Поділитись Опубліковано: 27 серпня 2015 Доброго времени суток всем посетителям темы Досталась мне на растерзание разработку проекта маленькие квартирка в новострое. Хозяева близкие мне люди, еще пока сами не знают будут ли там жить. И не знают какой стиль хотят. Предложили сделать все на свое усмотрение. Мне это предложение очень понравилось, не часто предоставляется такая возможность - делать как захочешь, еще и не известно для кого (кто будет жить). Бюджет очень ограничен, должно быть дешево и сердито. Поэтому буду включать фантазию по полной. В моем представлении квартира должна быть универсальной, чтобы там комфортно было жить как одному человеку, так и семье. возможно с ребенком. Дом обещают сдать через пол года, поэтому времени для поиска планировки и идей достаточно. На сегодняшний день сделали только обмеры. Посилання на коментар Поділитися на інших сайтах More sharing options...
ketrin-n Опубліковано: 27 серпня 2015 Автор Поділитись Опубліковано: 27 серпня 2015 Обмерочный кирпичный дом самые толстые стены - несущие кружечек в правом верхнем углу верхнего сан узла - канализационный стояк. В этом же санузле выход воды. вверху север, внизу юг. Два санузла в такой маленькой квартире однозначно не нужны, это моё субъективное ))) во первых и удорожание значительное - плитка, сантехника, смесители. нужно оставлять один, вопрос только какой? Буду пробовать варианты)) Посилання на коментар Поділитися на інших сайтах More sharing options...
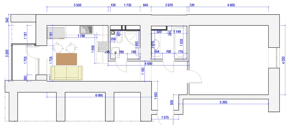
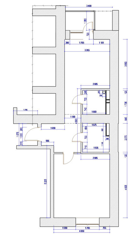
ketrin-n Опубліковано: 30 серпня 2015 Автор Поділитись Опубліковано: 30 серпня 2015 это планировка от застройщика, если не делать никакой перепланировки, то получается так. Прорисовала чтобы еще раз убедиться, что все же нужно перепланировать Посилання на коментар Поділитися на інших сайтах More sharing options...
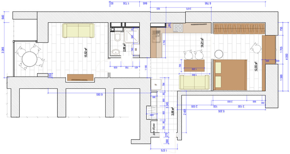
ketrin-n Опубліковано: 30 серпня 2015 Автор Поділитись Опубліковано: 30 серпня 2015 Помещение, предназначенное под кухню с балконом, одна часть балкона остекленная, вторая открытая. Из балкона очень красивый вид на парк, 6 этаж. В то же время это направление на север. В этих вариантах планировки я хотела бы предложить сделать это помещение кухней студио, присоединив санузел и часть коридора. И убрать окно, часть стены под окном и балконную дверь, таки образом будет эркер, остекленный от пола до потолка. Предусмотреть низкие радиаторы, минимум 2. ну и маленький балкончик сохранится. Ключевая фишка - остекленная стена с видом на парк, и помещение будет светлее за счет большей площади остекления. Это варианты с кухней возле окна. Посилання на коментар Поділитися на інших сайтах More sharing options...
ketrin-n Опубліковано: 30 серпня 2015 Автор Поділитись Опубліковано: 30 серпня 2015 Здесь кухня у входа, эта планировка мне интуитивно больше нравится, потому что сидеть на диване в дальнем темном углу не очень комфортно, стоять у кухни не так уж и долго, и всегда можно включить подсветку. И здесь я увеличила коридор, такая возможность есть. ПЕренесла входную дверь в общий коридор, так поместиться не глубокий, но хотя бы вместительный шкаф. Посилання на коментар Поділитися на інших сайтах More sharing options...
jokes Опубліковано: 5 вересня 2015 Поділитись Опубліковано: 5 вересня 2015 С кухней в углу самый удобный вариант. Только готовить на плите, стоя жопой к окну и уткнувшись в стену - мало вам будет удовольствия. Плюс вытяжку тянуть придется. Я бы пробовал закрутить кухню либо так: либо так: С размещением плиты вдоль стены с вытяжкой. Кстати, у вас по планировке застройщика (как обычно откровенно бестолоковой) два санузла, избыточно большая спальня, зато никакого места для хранения вещей: пылесос, швабры, лыжи, дорожные чемоданы итд. Я бы на вашем месте сразу отрезал от спальни кусок квадрата 2,5-4 под эти цели. Посилання на коментар Поділитися на інших сайтах More sharing options...
jokes Опубліковано: 6 вересня 2015 Поділитись Опубліковано: 6 вересня 2015 И здесь я увеличила коридор, такая возможность есть. ПЕренесла входную дверь в общий коридор Кстати, а как это вы так планируете поступить? Коридор - это общая частная собственность всех жильцов, как вы собираетесь получать у них разрешение? Посилання на коментар Поділитися на інших сайтах More sharing options...
Yarikys Опубліковано: 6 вересня 2015 Поділитись Опубліковано: 6 вересня 2015 А вы не планировали на месте второго сан узла (тот что ближе к жилой комнате) Встроить гардеробную комнату. И тем самым - избавиться от громоздких шкафов? А вместо распашной двери. Установить дверь как в шкафе-купе. Со стороны комнаты. Так у вас будет и гардеробная. И отпадает вариант. Какдый раз бегать в коридор к гардеробной для переодевания. Или вам так не подходит? Посилання на коментар Поділитися на інших сайтах More sharing options...
ketrin-n Опубліковано: 7 вересня 2015 Автор Поділитись Опубліковано: 7 вересня 2015 jokes, полностью с Вами согласна: Только готовить на плите, стоя жопой к окну и уткнувшись в стену - мало вам будет удовольствия. Плюс вытяжку тянуть придется. Я бы пробовал закрутить кухню либо так: еще было бы здорово создать опрос, кто как долго обычно стоит у плиты? Дорогие посетители темы, напиши те плиз, для опыта и для статистики очень нужно. Потому что я такая лентяйка, забросила курочку вариться - и за комп работать, пенку с мяса снимать только встаю с дивана, положила картошечку в суп и опять за комп. вот такая у меня готовка еды. я не стою, поэтому мне по себе судить сложно )))) а где тогда диван поставить? Помещение не такое уж маленькое, хотелось бы в нем уместить кухню и гостиную Кстати, а как это вы так планируете поступить? Коридор - это общая частная собственность всех жильцов, как вы собираетесь получать у них разрешение? я не раз видела на этажах, как соседи с двух квартир отгораживали себе часть общего коридора. У моих родителей советский дом 96 серия, они с соседями отгородились по коридору, поставили дверь и замок, ключи и у тех и у тех от общей двери. Некоторый заказчики выгораживали себе часть коридора там где доступ только к их квартире. а чем это чревато? какие могут быть последствия? А вы не планировали на месте второго сан узла (тот что ближе к жилой комнате) Встроить гардеробную комнату. И тем самым - избавиться от громоздких шкафов? А вместо распашной двери. Установить дверь как в шкафе-купе. Со стороны комнаты. Так у вас будет и гардеробная. И отпадает вариант. Какдый раз бегать в коридор к гардеробной для переодевания. Или вам так не подходит? Yarikys, я думала об этом, но поскольку в квартире только одна комната меня смущает слишком большая гардеробная как для такой квартиры. Возможно она будет для аренды. Много ли вещей у людей которые постоянно переезжают? Для велика подойдет и открытый балкон. а делать еще одно помещение для вещей? не знаю.. как показывает мой собственный опыт, чем больше кладовка тем быстрее она заполняется всяким хламом который лежит годами Посилання на коментар Поділитися на інших сайтах More sharing options...
ketrin-n Опубліковано: 7 вересня 2015 Автор Поділитись Опубліковано: 7 вересня 2015 меня еще очень смущает стояк, я его там выше не на всех планах нарисовала. конечно, его можно задекорировать, но все равно он все портит. да и сам факт что над местом приготовления еды стоит чей-то унитаз :bad: Посилання на коментар Поділитися на інших сайтах More sharing options...
ketrin-n Опубліковано: 9 вересня 2015 Автор Поділитись Опубліковано: 9 вересня 2015 Пересмотрела мировые аналоги, есть много аналогичных планировок, вот одна из них. Здесь даже с колонной, которая видимо жильцов совсем и не смутила при чем нигде не видела удачных или понравившихся вариантов с кухней с полуостровом. Мне бы не хотелось перегораживать и без того маленькое пространство Посилання на коментар Поділитися на інших сайтах More sharing options...
ketrin-n Опубліковано: 9 вересня 2015 Автор Поділитись Опубліковано: 9 вересня 2015 вариант угловой кухни. Мало места для техники, чтобы все нужное вместить нужно ставить пеналы. С пеналами смотрится не плохо. Но заказчики предпочитают отдельно стоящий холодильник, а одинарный пенал не смотрится Посилання на коментар Поділитися на інших сайтах More sharing options...
ketrin-n Опубліковано: 9 вересня 2015 Автор Поділитись Опубліковано: 9 вересня 2015 это кухня 1800х1780 мм + отдельностоящий холодильник. для зоны гостиной: дивана, ТВ, стола, тумбочек и др. шкафчиков остается 13,8 м2 Посилання на коментар Поділитися на інших сайтах More sharing options...
jokes Опубліковано: 14 вересня 2015 Поділитись Опубліковано: 14 вересня 2015 я не раз видела на этажах, как соседи с двух квартир отгораживали себе часть общего коридора. У моих родителей советский дом 96 серия, они с соседями отгородились по коридору, поставили дверь и замок, ключи и у тех и у тех от общей двери. Некоторый заказчики выгораживали себе часть коридора там где доступ только к их квартире. а чем это чревато? какие могут быть последствия? Вот она знаменитая советско-украинская ментальность - "А что мне за это будет плохого? А кто мне вообще что скажет?!" А то что вы вообще-то нарушаете закон вас не смущает? Все эти загородочки-загончики противозаконные самозахваты, этим активно занимались в смутные нищие 90е. А оказывается и до сих пор кто-то считает это нормальным... Посилання на коментар Поділитися на інших сайтах More sharing options...
ketrin-n Опубліковано: 14 вересня 2015 Автор Поділитись Опубліковано: 14 вересня 2015 А то что вы вообще-то нарушаете закон вас не смущает? так я же Вас и спросила: какие могут быть последствия в таком нарушении? Посилання на коментар Поділитися на інших сайтах More sharing options...
jokes Опубліковано: 14 вересня 2015 Поділитись Опубліковано: 14 вересня 2015 так я же Вас и спросила: какие могут быть последствия в таком нарушении? Так и я поинтересовался: а сам факт нарушения закона не является достаточным? Обязательно должны быть карательные последствия, только тогда его стоит чтить? В любом случае, цитата из статьи: "Пользование коридорами, чердаками, лестничными клетками и другими помещениями регламентируется законом Украины от 29.11.2001. Согласно документу, такие помещения считаются вспомогательными. В соответствии с решением Конституционного Суда Украины № 4-рп / 2004 от 02.03.2004 вспомогательные помещения находятся в общей собственности владельцев квартир или комнат после приватизации жилья. Следовательно, захватив общее помещение в личное пользование, владелец жилья нарушает права других жильцов. Последние могут самостоятельно организовать снос «самостроя». Также они могут подать иск в суд о защите своих прав как совладельцев вспомогательных помещений. Получить право на такую пристройку невозможно и при продаже могут возникнуть проблемы." 1 Посилання на коментар Поділитися на інших сайтах More sharing options...
ketrin-n Опубліковано: 14 вересня 2015 Автор Поділитись Опубліковано: 14 вересня 2015 Так и я поинтересовался: а сам факт нарушения закона не является достаточным? Обязательно должны быть карательные последствия, только тогда его стоит чтить? В любом случае, цитата из статьи: "Пользование коридорами, чердаками, лестничными клетками и другими помещениями регламентируется законом Украины от 29.11.2001. Согласно документу, такие помещения считаются вспомогательными. В соответствии с решением Конституционного Суда Украины № 4-рп / 2004 от 02.03.2004 вспомогательные помещения находятся в общей собственности владельцев квартир или комнат после приватизации жилья. Следовательно, захватив общее помещение в личное пользование, владелец жилья нарушает права других жильцов. Последние могут самостоятельно организовать снос «самостроя». Также они могут подать иск в суд о защите своих прав как совладельцев вспомогательных помещений. Получить право на такую пристройку невозможно и при продаже могут возникнуть проблемы." с жильцами этажа должна быть договоренность, это больше человеческий фактор. узаконить можно, но очень дорого и не целесообразно а "нарушать закон" так громко сказано как для присоединения коридора 90% жильцов присоединяют балконы и лоджии, с ваших слов они нарушают закон ))) а кому от этого плохо? Добавлено через 20 минут по закону все реально, только ооочень трудоемко, хоть и есть много друзей сертифицированных архитекторов которые могут сделать за минимальные деньги )) Коммуникаций никаких в этой части коридора нет Любое присоединение помещений в доме — это реконструкция. А значит, и разрешения надо получать как для реконструкции. 1. Техническое обследование здания Прежде всего, необходимо выяснить, выдержит ли строение реконструкцию. Для этого нужно провести его техническое обследование. Особенно это актуально для старых дореволюционных домов. Если здание не в аварийном состоянии, и в стенах нет трещин, скорее всего, оно достаточно крепкое для проведения строительных работ. 2. Получение разрешений соседей Поскольку все помещения общего пользования находятся в совместной собственности всех жильцов дома или ОСМД, необходимо заручиться письменным согласием каждого из них. Для многих желающих присоединить чердак этот этап становится последним на пути к мечте о расширении жилплощади: даже если всего один сосед против, разрешения на реконструкцию уже не дадут. В ответ на свое согласие соседи могут потребовать отремонтировать подъезд, перекрыть крышу или еще какую-нибудь выгодную всем услугу. Главное, чтобы стоимость ее выполнения не была выше покупки отдельной квартиры соответствующей площади. 3. Заказать проект реконструкции Проект должен разрабатывать архитектор, имеющий лицензию Министерства регионального развития, строительства и архитектуры на проведения такого рода работ. Стоит учитывать, что любые перепланировки в домах-памятниках архитектуры, объектах культурного наследия, зданиях 4-й категории сложности, требуют выполнения комплексной экспертизы, разработки научно-технической документации на весь проект и разрешения органов охраны культурного наследия. 4. Утверждение в мэрии После разработки проекта эскиз вместе с заявкой подается в городскую госадминистрацию — только там могут утвердить ваш проект и дать добро на проведение строительных работ. Или не утвердить — никаких гарантий нет. 5. Получение технических условий на реконструкцию После получения разрешения городских властей следует обратиться в соответствующий отдел городской администрации (в Киеве это — Департамент градостроительства и архитектуры КГГА) для получения архитектурно-планировочных требований на реконструкцию. После этого нужно будет получить технические условия в «Киевэнерго», «Киевводоканале» и «Киевгазе». Понадобятся также заключения о пожаробезопасности проекта, а в случае присоединения чердачного помещения, еще и заключение Санэпидемстанции о его пригодности для жизни. 6. Новый паспорт БТИ и ввод в эксплуатацию После окончания строительных работ и подключения всех коммуникаций сотрудниками БТИ производятся новые обмеры помещения для выдачи нового паспорта. После этого обновленная квартира должна быть введена в эксплуатацию. 7. Регистрация права собственности После введения помещения в эксплуатацию, в ней можно заново прописываться. Не помешает и зарегистрировать право собственности на квартиру с увеличившимся метражом. Присоединение к квартире второго этажа, мансарды или всего нескольких квадратных метров «под шкаф» показалось непростой задачей. А бюрократизация государственных структур в нашей стране усложняет ее еще больше. И, тем не менее, обзавестись собственной мансардой даже в старенькой «сталинке» или «хрущевке» - задача вполне выполнимая. взято отсюда forum.domik.ua/kak-prisoedinit-k-kvartire-cherdak-ili-tambur-t26015.html Посилання на коментар Поділитися на інших сайтах More sharing options...
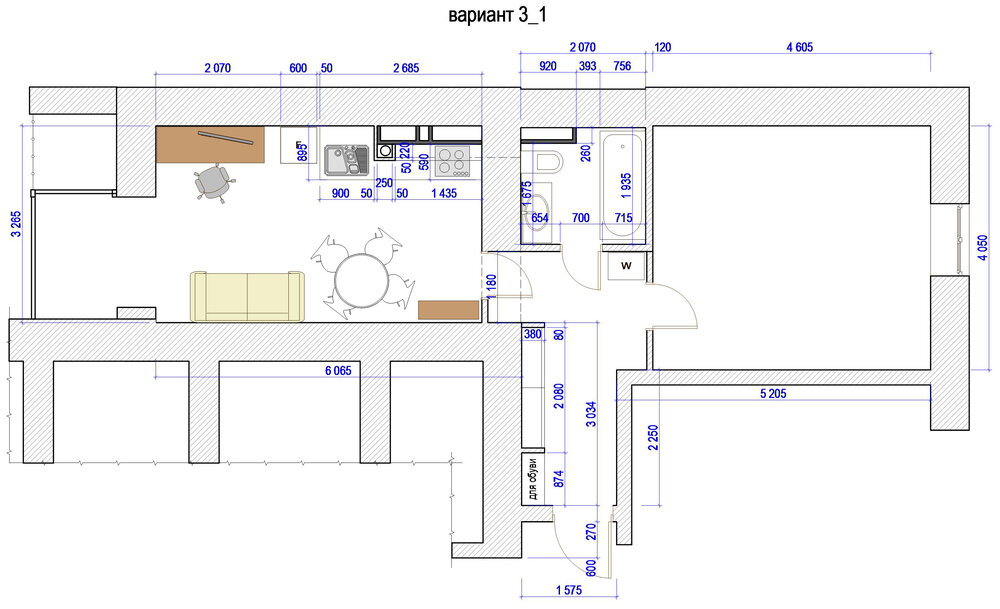
ketrin-n Опубліковано: 21 вересня 2015 Автор Поділитись Опубліковано: 21 вересня 2015 еще одна планировка после долгих раздумий Посилання на коментар Поділитися на інших сайтах More sharing options...
jokes Опубліковано: 24 вересня 2015 Поділитись Опубліковано: 24 вересня 2015 90% жильцов присоединяют балконы и лоджии, с ваших слов они нарушают закон ))) а кому от этого плохо? Да, нарушают. И я надеюсь дожить до того времени, когда людей заставят эти нарушения устранять, за свой счет, как это было в Польше, Чехии, Литве итд. а кому от этого плохо? Ну, всем от этого плохо. Из-за такого рагульства украинские города уже давно стали индийскими трущобами, причем одинаково что Позняки, что исторические центры. Никому в мире из-за этого уже давно не интересны ни наши города, ни наша архитектура. Потому что уже давно не видно ни городов, ни архитектуры, ни культуры. Сюда едут либо искатели "особых ощущений", либо искатели дешевых девушек, либо посмотреть на огромный заповедник пост-совка. И в этом виноваты только сами горожане, а не Янукович или Путин. 1 Посилання на коментар Поділитися на інших сайтах More sharing options...
ketrin-n Опубліковано: 25 вересня 2015 Автор Поділитись Опубліковано: 25 вересня 2015 в нашем случае мы скорее всего будем присоединять остекленную часть лоджии и часть коридора. на лоджии остекление останется то что было от застройщика. В перспективе может заменят стеклопакеты с 1камерных на 2камерные. Замена стеклопакетов на внешний вид здания не повлияет. Таким образом фасад никак не измениться Что касается коридора, то будем действовать по плану написанному выше, единственное начнем с п. 2 разрешение соседей, сначала на нашем этаже. а после ремонта будет видно, захотят ли хозяева оформлять на перепланировку документы Никому в мире из-за этого уже давно не интересны ни наши города, для меня намного важнее что МНЕ интересны другие города в мире ;) а не то что не интересно КОМУ-ТО ДРУГОМУ )) Посилання на коментар Поділитися на інших сайтах More sharing options...
MaryAr Опубліковано: 26 вересня 2015 Поділитись Опубліковано: 26 вересня 2015 Перепланировки интересные, но очень «стрёмные». Я понимаю Ваше желание создать комфортное пространство для жизни, но кухня под зоной санузла – это нарушение действующих норм: ДБН В.2.2-15-2005 «2.28 Не допускається розміщення вбиральні та ванної (або душової) над житловими кім-натами і кухнями...» Можно сан/узел возле кухни упразднить, но не расширять за счёт этого зону кухни, а устроить кладовую - постирочную (благо вентиляция и доступ к стоякам имеется). С диванчиком скорее всего придётся попрощаться, как это ни печально… и планировка кухни останется типовой 1 Посилання на коментар Поділитися на інших сайтах More sharing options...
ketrin-n Опубліковано: 28 вересня 2015 Автор Поділитись Опубліковано: 28 вересня 2015 Перепланировки интересные, но очень «стрёмные». Я понимаю Ваше желание создать комфортное пространство для жизни, но кухня под зоной санузла – это нарушение действующих норм: ДБН В.2.2-15-2005 «2.28 Не допускається розміщення вбиральні та ванної (або душової) над житловими кім-натами і кухнями...» Можно сан/узел возле кухни упразднить, но не расширять за счёт этого зону кухни, а устроить кладовую - постирочную (благо вентиляция и доступ к стоякам имеется). С диванчиком скорее всего придётся попрощаться, как это ни печально… и планировка кухни останется типовой я планирую узнать, что с этими помещениями будут делать соседи сверху. на форуме застройщика читала что в этой планировке многие будут оставлять только один санузел. Посилання на коментар Поділитися на інших сайтах More sharing options...
MaryAr Опубліковано: 28 вересня 2015 Поділитись Опубліковано: 28 вересня 2015 на форуме застройщика читала что в этой планировке многие будут оставлять только один санузел. Тогда нужно по всему стояку отказываться от санузла, иначе соседи сверху (даже, если упразднят свой санузел) окажутся в аналогичной ситуации по отношению к своим соседям сверху. А сколько этажей ещё над квартирой? Если 1-2, и получится договориться с хозяевами, то ура. Но лучше перепланировки во всех квартирах согласовать с архитектором проекта до сдачи дома, иначе потом всё равно будут приключения. Удачи! Посилання на коментар Поділитися на інших сайтах More sharing options...
ketrin-n Опубліковано: 1 жовтня 2015 Автор Поділитись Опубліковано: 1 жовтня 2015 Что касается ДБНов , постараюсь одним постом ответить на все комментарии и критику: нарушение строительных норм для себя я разделяю не несколько категогий, основные их них 1. наносят существенный вред зданию (снос несущих стен и колонн, вырезание отверстий в перекрытии, когда присоединяют тех этаж например и т.п.) 2. наносят вред для соседей (замуровывание чужих стояков, сооружение «холодных» помещений, террас, где тонкие стены граничат с соседями, вынос балкона вплотную к их окнам и т.п. 3. не причиняют дискомфорт жильцам и их соседям, не меняют внешний вид и конструктив здания, но создают определенные сложности при продаже квартиры, невозможность узаконить такую планировку. 1. и 2. я не беру на себя такую ответственность хотя однажды п. 1. приходилось делать на практике, но это был коттедж. При соблюдении всех техн. правил и расчетов реализуемо., но это уже другая тема…)) п. 3. как правило взвешивают сами хозяева, насколько комфортна планировка и что они при этом выигрывают, что теряют если оставлять планировку строго по ДБН как предлагает застройщик. Моя практика показывает, что люди выбирают в первую очередь комфорт для себя, если это безопасно и не причиняют дискомфорт другим. ИМХО на истину конечно же не претендую 1 Посилання на коментар Поділитися на інших сайтах More sharing options...
ketrin-n Опубліковано: 12 березня 2016 Автор Поділитись Опубліковано: 12 березня 2016 пока я писала в этой ветке, знакомилась с руководством застройщика и соседями, к проекту "присоседилась" еще одна квартира по стояку выше. Так что теперь их будет две. Есть такая тенденция, что планировки будут разные: одна квартира для семьи и одна для мужчины который будет жить один. так что прод. следует. будет интересно) Посилання на коментар Поділитися на інших сайтах More sharing options...
Рекомендовані повідомлення
Створіть акаунт або увійдіть у нього для коментування
Ви маєте бути користувачем, щоб залишити коментар
Створити акаунт
Зареєструйтеся для отримання акаунта. Це просто!
Зареєструвати акаунтУвійти
Вже зареєстровані? Увійдіть тут.
Увійти зараз