helen3075 Опубліковано: 14 вересня 2015 Поділитись Опубліковано: 14 вересня 2015 Прошу дизайнеров о помощи!!!Данна:1 комнатная квартира.38 м кв.Стены -газоблок.Проект....и в голове каша-малаша.Ориентировочно знаю,чего хочу,а что ,как и куда не могу расставить по полочкам. Желания мои....кухня-убрать балконную перегородку.увеличить размер до 12 м кв.А вот с комнатой намного сложнее.Хотелось бы выделить зону спальни (спальное место 140)отделить раздвижной стеклянной перегородкой.Отщипнув место гардеробной.Может быть вход в комнату с кухни(не знаю насколько это удобно)Из мебели желаемо поместить шкаф-купе,мягкую мебель. Сча попробую план квартиры скинуть.Стены ,те,которые не несущие можно передвигать куда хочь. Посилання на коментар Поділитися на інших сайтах More sharing options...
helen3075 Опубліковано: 14 вересня 2015 Автор Поділитись Опубліковано: 14 вересня 2015 забыла....в ванной будет душевая кабина,и стиралку хочу туда впихнуть. Муж грозится с октября загнать туда рабочих,поштукатурить, поклеить и дать мне еще годик на размышления....я от того,в повышенной панике,мысли перепутались ,голова кружится....помоооогите!!!! Посилання на коментар Поділитися на інших сайтах More sharing options...
ketrin-n Опубліковано: 14 вересня 2015 Поділитись Опубліковано: 14 вересня 2015 загнать туда рабочих,поштукатурить, поклеить и дать мне еще годик на размышления.... чтобы потом штробить стены для дополнительных розеток, и вообще перепланировывать уже оштукатуренные стены у Вас очень распространенная планировка, поищите в нете, похожих много 1 Посилання на коментар Поділитися на інших сайтах More sharing options...
karya Опубліковано: 14 вересня 2015 Поділитись Опубліковано: 14 вересня 2015 Если захотите, могу полностью проект разработать, чтобы потом не пришлось после оштукатуривания снова ничего переделывать. Сразу будете понимать что, где и как у вас будет. Посилання на коментар Поділитися на інших сайтах More sharing options...
helen3075 Опубліковано: 14 вересня 2015 Автор Поділитись Опубліковано: 14 вересня 2015 Напишите в личку,попробуем найти что нить интересного для квартиры типа БПС... Добавлено через 2 минуты Меня смущает кусок несущей стенки,тот который между кухней и комнатой.Вот,не могу его обиграть,что б слева, разделив шкафом-купе ,прихожку,сделать небольшую спальню с стекляной дверью с комнаты.... Посилання на коментар Поділитися на інших сайтах More sharing options...
Tatiana Gal Опубліковано: 14 вересня 2015 Поділитись Опубліковано: 14 вересня 2015 Мне этот проект понравился. Я уже на него давала ссылку realty.rbc.ru/articles/18/02/2015/562949994040115.shtml 1 Посилання на коментар Поділитися на інших сайтах More sharing options...
helen3075 Опубліковано: 14 вересня 2015 Автор Поділитись Опубліковано: 14 вересня 2015 со мной так не получается....в моем случае,несущие стены на перегородке меж комнатой и кухней....можно только дверь,или арочный проем... Уважаемые гуру,как расположить шкаф -купе в прихожей,который и будет служить стенкой для будущей спальни...Сча вот такой огромный знак вопроса вселился в мое воображение никак не придуманной прихожки))) Посилання на коментар Поділитися на інших сайтах More sharing options...
ketrin-n Опубліковано: 15 вересня 2015 Поділитись Опубліковано: 15 вересня 2015 Уважаемые гуру,как расположить шкаф -купе в прихожей,который и будет служить стенкой для будущей спальни...Сча вот такой огромный знак вопроса вселился в мое воображение никак не придуманной прихожки))) смотря где делать вход в комнату. можно или слева или напротив входа. Но нужно видеть размеры Посилання на коментар Поділитися на інших сайтах More sharing options...
helen3075 Опубліковано: 16 вересня 2015 Автор Поділитись Опубліковано: 16 вересня 2015 ....вход в комнату ,вижу с кухни.там точно нету несущей... Посилання на коментар Поділитися на інших сайтах More sharing options...
ketrin-n Опубліковано: 16 вересня 2015 Поділитись Опубліковано: 16 вересня 2015 удобный шкаф должен быть глубиной 60 см. Слева от входа. Но нужны размеры чтобы не быть голословной Посилання на коментар Поділитися на інших сайтах More sharing options...
Agayran Опубліковано: 17 вересня 2015 Поділитись Опубліковано: 17 вересня 2015 А что подразумевается под словами "убрать балконную перегородку"? Посилання на коментар Поділитися на інших сайтах More sharing options...
helen3075 Опубліковано: 17 вересня 2015 Автор Поділитись Опубліковано: 17 вересня 2015 Стенка в кухне на лоджию не несущая..и особой потребности в лоджии нету,оттого и хочу убрать весь балконный блок и демонтировать стену,что б соеденить все вместе.К кухне добавиться 3 квадрата.Вот.Вы уж простите,меня,за неграмотный строительный лексикон. Посилання на коментар Поділитися на інших сайтах More sharing options...
Lana_CK Опубліковано: 19 вересня 2015 Поділитись Опубліковано: 19 вересня 2015 ну, если еще и потолки стандартные, то делить небольшую комнату перегородкой - будут две коробочки) я на счет своей 1к говорила - не надо делать с однокомнатной все, что хотелось бы сделать с полноценной двушкой или трешкой)))) Посилання на коментар Поділитися на інших сайтах More sharing options...
helen3075 Опубліковано: 23 вересня 2015 Автор Поділитись Опубліковано: 23 вересня 2015 ....а так не хочется каждый день складывать-раскладывать диван(((Еще и про матрас ортопедический мысли проскакивают;) Посилання на коментар Поділитися на інших сайтах More sharing options...
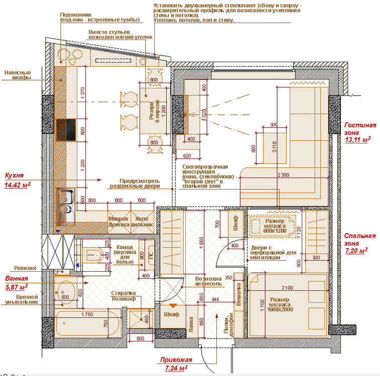
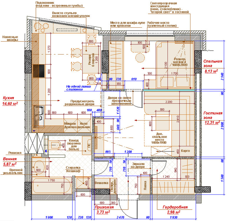
MaryAr Опубліковано: 24 вересня 2015 Поділитись Опубліковано: 24 вересня 2015 С Ланой согласна, но в реальной жизни каждый второй обладатель однушки хочет сделать из неё двушку или даже трёшку Была недавно у меня одна заказчица – тоже хотела спальню в однушку впихнуть (ещё и с детской кроваткой) . Обсуждались 2 основных варианта (во вложении), может как-то помогут. Вариант 2, где кровать возле окна, ушёл в работу, т.к. хозяйка выходные дни любила проводить в постели, и естественный свет в спальне был обязателен Гостиную решено было оставить со вторым светом. Так что образ жизни тоже имеет значение... 2 Посилання на коментар Поділитися на інших сайтах More sharing options...
MaryAr Опубліковано: 27 вересня 2015 Поділитись Опубліковано: 27 вересня 2015 а есть фото- или видео-отчёт? Дом ещё не сдан, поэтому ремонт не начинали. Выдали только привязки перегородок, чтобы застройщик внёс изменения в проект. Т.е. техническая инвентаризация квартиры будет осуществляться уже с перепланировкой. Посилання на коментар Поділитися на інших сайтах More sharing options...
Рекомендовані повідомлення
Створіть акаунт або увійдіть у нього для коментування
Ви маєте бути користувачем, щоб залишити коментар
Створити акаунт
Зареєструйтеся для отримання акаунта. Це просто!
Зареєструвати акаунтУвійти
Вже зареєстровані? Увійдіть тут.
Увійти зараз