Перейти до публікації
Пошук в
  • Додатково...
Шукати результати, які містять...
Шукати результати в...

Покритикуйте мой проект (рисовал сам)

a_kolesnikov

Рекомендовані повідомлення

Здравствуйте!

 

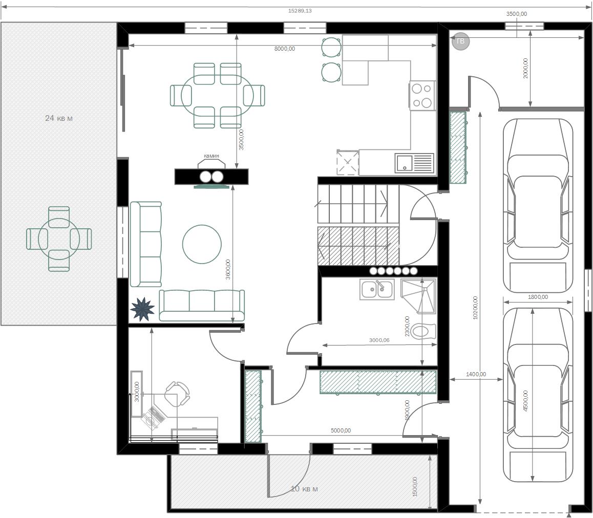
Давно читаю форум, так как готовился к строительству дома.

И вот наконец-то дело доходит до проектирования.

Для начала решил самостоятельно нарисовать предварительную планировку. Она во вложении.

Буду очень рад и очень признателен за любую критику, любой совет, да и вообще за любой комментарий.

На данный момент у нас маленькая семья, я и жена, планируем ребенка, по этому решили, что 3 спальни будет достаточно. Также очень хочу гараж, сначала думал сделать его для одной машины, а потом покрутил, подумал, что можно и удлинить на 2 машины. Возможно решение и спорное, но сейчас машина только одна, да и жена не сильно любит ездить, но лучше предусмотреть место.

На первом этаже внизу заштрихованное - это козырек балкона. Слева - терраса.

На втором этаже в спальнях слева предусмотрены гардеробные почти по 4 м2.

 

Пока смущает асимметрия окон на этажах, сейчас качаю скатчап, попробую покрутить все в 3d.

 

Буду очень рад вашему вниманию и общению.

1011985515_1-6.thumb.jpg.f8292488283c9f252ed524620545013a.jpg

1167858353_2-5.thumb.jpg.aff48f304babbdda96f356224e2f8c77.jpg

Посилання на коментар
Поділитися на інших сайтах

Если на участке планируется двор, то советовал бы сделать отдельный выход из гаража, что-бы не ходить в обуви через зал или центральный вход.
  • Лайк 1
Посилання на коментар
Поділитися на інших сайтах

Буду очень рад вашему вниманию и общению.

 

Судя по вашей схеме проблемно будет пройти из гаража под лестницей.

Постройте через лестницу разрез и увидите.

 

Имхо нелишним будет в котельную сделать наружную дверь.

Посилання на коментар
Поділитися на інших сайтах

Створіть акаунт або увійдіть у нього для коментування

Ви маєте бути користувачем, щоб залишити коментар

Створити акаунт

Зареєструйтеся для отримання акаунта. Це просто!

Зареєструвати акаунт

Увійти

Вже зареєстровані? Увійдіть тут.

Увійти зараз
×
×
  • Створити...