Перейти до публікації
Пошук в
  • Додатково...
Шукати результати, які містять...
Шукати результати в...

Ищу бригаду для строительства дома

akul-a

Рекомендовані повідомлення

Ищу бригаду для строительства дома.

 

Общая информация:

Место - пригород Боярки (р-н техникума)

Планируемое время начала работ - 2ая половина марта 2016

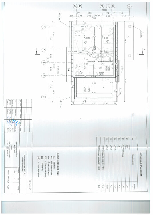
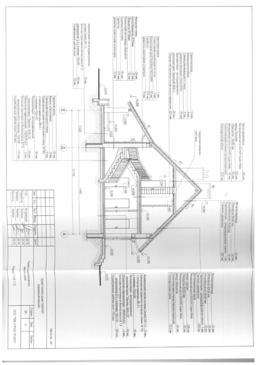
Дом- одноэтажный с мансардным этажом

Фундамент-ленточный

Стены-газоблок

Крыша-металлочерепица

Электричесво- в процессе подключения

Вода- скважина тоже в проекте

 

Основные требования к подрядчику:

  • опыт работы
  • умение работать с проектом
  • ответственность и добросовестность
  • положительные отзывы, контакты довольных заказчиков
  • наличие собственных инструментов и стройвагончиков (при необходимости)

 

Условия оплаты:

  • заключение договора оказания услуг с указанием стоимости и сроков
  • оплата работ по факту их выполнения (возможно с разбивкой на этапы)

 

 

Жду предложения по стоимости работ и срокам (с детализацией).

Предложения можно отправлять в личку или на e-mail.

1170949105_.thumb.jpg.9d3e42938acebeeef477e3cd62ff588c.jpg

111933592__1.thumb.jpg.1f16296ffb388b76cdd0f14799dacec8.jpg

1544058310__2.thumb.jpg.abe2e064b42286a16bcd55bdcf096023.jpg

Посилання на коментар
Поділитися на інших сайтах

заключение договора оказания услуг с указанием стоимости и сроков

оплата работ по факту их выполнения (возможно с разбивкой на этапы)

Фасад какой планируете?

Посилання на коментар
Поділитися на інших сайтах

Створіть акаунт або увійдіть у нього для коментування

Ви маєте бути користувачем, щоб залишити коментар

Створити акаунт

Зареєструйтеся для отримання акаунта. Це просто!

Зареєструвати акаунт

Увійти

Вже зареєстровані? Увійдіть тут.

Увійти зараз
×
×
  • Створити...