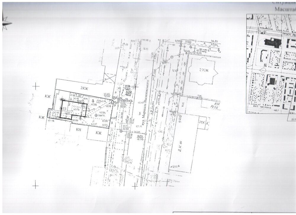
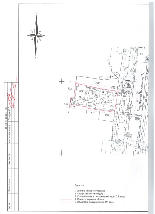
Sergey 7754 Опубліковано: 11 травня 2016 Поділитись Опубліковано: 11 травня 2016 Здравствуйте уважаемые форумчане. Купил небольшой участок в центре города Николаева, площадь 4.35 сотки, размеры 14 ширина, 33 длина. Планирую строить компактный дом 120-140 кв.м. Очень нужна помощь по проекту дома и расположении на участке. Прикладываю примерную планировку с расположением на участке и топографический план. Посилання на коментар Поділитися на інших сайтах More sharing options...
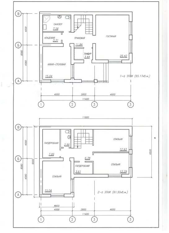
vadimv Опубліковано: 11 травня 2016 Поділитись Опубліковано: 11 травня 2016 Прикладываю примерную планировкуНа втором этаже в санузле нет ни ванны, ни душевой кабины. Посилання на коментар Поділитися на інших сайтах More sharing options...
Sergey 7754 Опубліковано: 12 травня 2016 Автор Поділитись Опубліковано: 12 травня 2016 По поводу второго санузла тоже есть сомнения...может на первом этаже сделать его небольшим, а на втором наоборот сделать основным? 1 Посилання на коментар Поділитися на інших сайтах More sharing options...
vadimv Опубліковано: 12 травня 2016 Поділитись Опубліковано: 12 травня 2016 (змінено) может на первом этаже сделать его небольшим, а на втором наоборот сделать основным?Именно так обычно и делают. Меня еще смущает отсутствие окон на двух стенах. Но если так задумано, то может и сойдет. Змінено 12 травня 2016 користувачем vadimv Посилання на коментар Поділитися на інших сайтах More sharing options...
Ter Опубліковано: 12 травня 2016 Поділитись Опубліковано: 12 травня 2016 Спаленку бы на первый этаж... Количество проживающих планируемое напишите еще. Посилання на коментар Поділитися на інших сайтах More sharing options...
Sergey 7754 Опубліковано: 12 травня 2016 Автор Поділитись Опубліковано: 12 травня 2016 Именно так обычно и делают. Меня еще смущает отсутствие окон на двух стенах. Но если так задумано, то может и сойдет. Дело в том, что окна не получается на двух стенах вставить, потому что по границе моего участка построено здание и пожарный разрыв необходим... да и смотреть из окон не особо хочется в кирпичную стену. Если есть у кого-то возможность, посмотрите топографический план, может как-то по-другому получиться дом запроектировать. Добавлено через 1 минуту Спаленку бы на первый этаж... Количество проживающих планируемое напишите еще. Еще одну спальню на первый этаж не хочу, потому что тогда не будет нормального зала... Планируемое количество проживающих четверо(я, жена и двое детей ). 1 Посилання на коментар Поділитися на інших сайтах More sharing options...
katso_98 Опубліковано: 12 травня 2016 Поділитись Опубліковано: 12 травня 2016 Дело в том, что окна не получается на двух стенах вставить, потому что по границе моего участка построено здание и пожарный разрыв необходим... да и смотреть из окон не особо хочется в кирпичную стену. Если есть у кого-то возможность, посмотрите топографический план, может как-то по-другому получиться дом запроектировать. Добавлено через 1 минуту почему бы его не развернуть зеркально к северо-восточному углу участка? тогда двор был бы уютнее, мне кажется и тогда можно было бы добавить окон на одной из сторон, которая "раскроется" Посилання на коментар Поділитися на інших сайтах More sharing options...
Рекомендовані повідомлення
Створіть акаунт або увійдіть у нього для коментування
Ви маєте бути користувачем, щоб залишити коментар
Створити акаунт
Зареєструйтеся для отримання акаунта. Це просто!
Зареєструвати акаунтУвійти
Вже зареєстровані? Увійдіть тут.
Увійти зараз