Перейти до публікації
Пошук в
  • Додатково...
Шукати результати, які містять...
Шукати результати в...

Надежность старого фундамента(25лет)

Anton_MV

Рекомендовані повідомлення

Доброго времени суток!

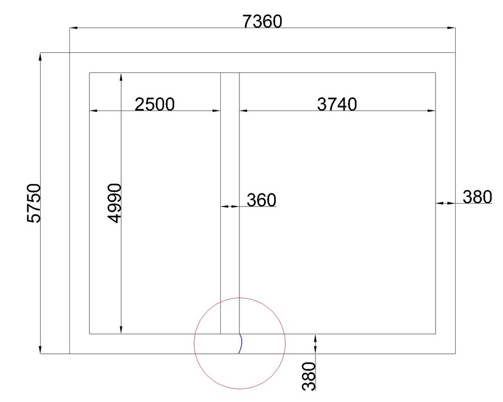
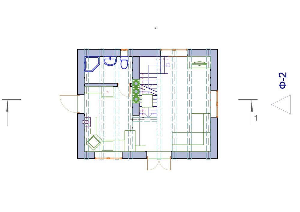
Имеется старый фундамент(без стен)который простоял около 25 лет. Есть желание построить на нем небольшой дачный дом 1 этаж + мансарда. Эскиз фундамента и его фото, а также предполагаемого дома прилагаю. Фундамент заглублен на 1.2м, армирование выполнено, но как и чем нет информации, уровень грунтовых вод 1.5-2 м. Высота до конька крыши дома – 6.5 м, стены – газоблок 360 мм плотностью D400, перекрытие – дерево, крыша металочерепица или шифер. При обследовании фундамента обнаружил трещину в месте примыкания перемычки(на рисунке изображена синим) фото прилагаю.

Вопросов два, можно ли вообще его использовать(фундамент) и если можно, то нужно ли укреплять? например армопояс по фундаменту высотой 200 мм?

812483469__.thumb.jpg.29343e90dcee8ab492526f6dd60ce166.jpg

1.jpg.92d29250020a00ffca0fdd4d7358be2d.jpg

2.jpg.e45ffc3bd2d320641dae325eabbd54d2.jpg

5.jpg.a26c8f9b80807ddae943bcf53c3138f7.jpg

6.thumb.jpg.8127069f56f93cc4f8ebf57c84a579d3.jpg

8.thumb.jpg.784cfc82512d8942f095c633b273f54f.jpg

823582021_1.thumb.jpg.dfa1bf8a11a13dd5c76c41936f1417ff.jpg

1382070261_1-2_.thumb.jpg.f82e01185cec7a9930daee5233d7ea8c.jpg

118802959_-_.thumb.jpg.5e84c18b3dc1913b196c3366841419bb.jpg

Посилання на коментар
Поділитися на інших сайтах

Дійсно ризикована справа. Враховуючи що є тріщини. Якщо справа варта того, то зверніться в Київський Національний Університет Будівництва і Архітектури. У них є будівельна лабораторія. Вони дадуть вам чітку інформацію.

Телефон десь у мене був, якщо знайду то поділюсь.

Посилання на коментар
Поділитися на інших сайтах

Дійсно ризикована справа. Враховуючи що є тріщини. Якщо справа варта того, то зверніться в Київський Національний Університет Будівництва і Архітектури. У них є будівельна лабораторія. Вони дадуть вам чітку інформацію.

Телефон десь у мене був, якщо знайду то поділюсь.

 

Буду вдячний за телефон!

 

Добавлено через 6 минут

А если дом вместо газоблока построить по каркасной технологи, на сколько критично для каркасника такое состояние фундамента?

Посилання на коментар
Поділитися на інших сайтах

Створіть акаунт або увійдіть у нього для коментування

Ви маєте бути користувачем, щоб залишити коментар

Створити акаунт

Зареєструйтеся для отримання акаунта. Це просто!

Зареєструвати акаунт

Увійти

Вже зареєстровані? Увійдіть тут.

Увійти зараз
×
×
  • Створити...