Перейти до публікації
Пошук в
  • Додатково...
Шукати результати, які містять...
Шукати результати в...

Разводка канализации по дому + септик

JohnnyD

Рекомендовані повідомлення

Дом на этапе строительства, заложен фундамент.

Территориально: Вышгородский р-н, с.Новоселки (в черте села).

Необходимо развести канализацию по дому. Также обсуждается устройство септика 2-х камерного из бетонных колец, заодно.

Работы необходимо на 30-31.05.2016. Разумные сроки для сдвига также обсуждаются.

На участке есть свет и вода для потребностей. И душ с туалетом.

 

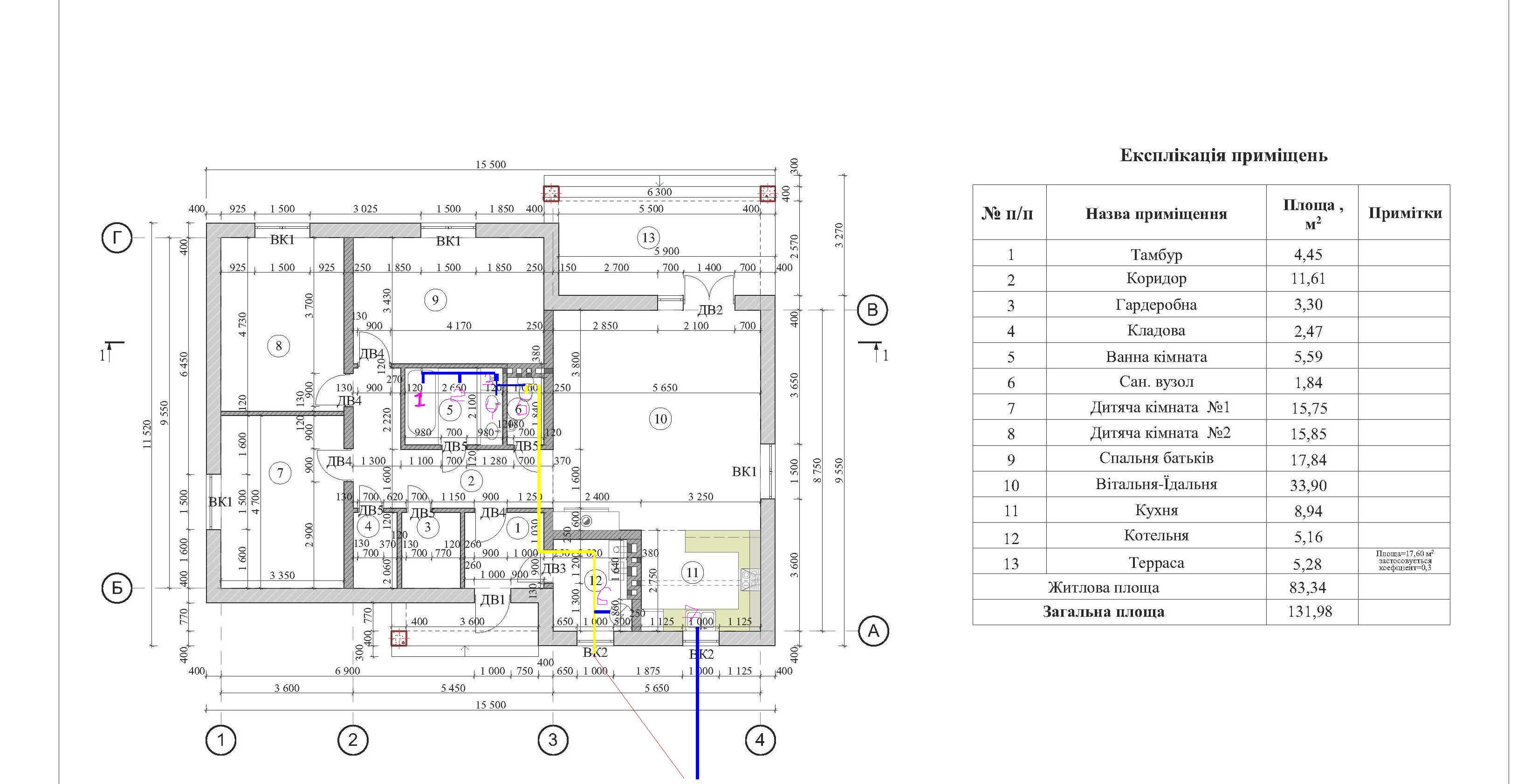
Во вложении на схеме обозначил для общего понимания:

 

Синяя линия - 40-50 труба. Желтая линия 110 труба.

1 - выход на ванну

2 - выход на раковину

3 - выход под трап душа

4 - дополнительный выход

5 - выход унитаз

6 - выход под трап в топочной

7 - выход для кухонной раковины, посудомоечной и стиральной машины.

Снаружи - приблизительной направление в септик. В местах прохода через фундамент заложены гильзы.

 

Прошу предложения отправлять на почту johnny_1@ukr.net или в личные сообщения, или в теме. При положительном или отрицательном результате отвечу каждому.

 

Надеюсь этой информации достаточно. Для каких-либо уточнений лучше писать на почту.

Еще есть огромная просьба не писать типа "звоните договоримся".

1661450306_4_1.thumb.JPG.a98aae01fd5ad867e5e535bd3d40d93b.JPG

Посилання на коментар
Поділитися на інших сайтах

Створіть акаунт або увійдіть у нього для коментування

Ви маєте бути користувачем, щоб залишити коментар

Створити акаунт

Зареєструйтеся для отримання акаунта. Це просто!

Зареєструвати акаунт

Увійти

Вже зареєстровані? Увійдіть тут.

Увійти зараз
×
×
  • Створити...