Перейти до публікації
Пошук в
  • Додатково...
Шукати результати, які містять...
Шукати результати в...

Два шкафа в школу

Katerina_

Рекомендовані повідомлення

Здравствуйте.

 

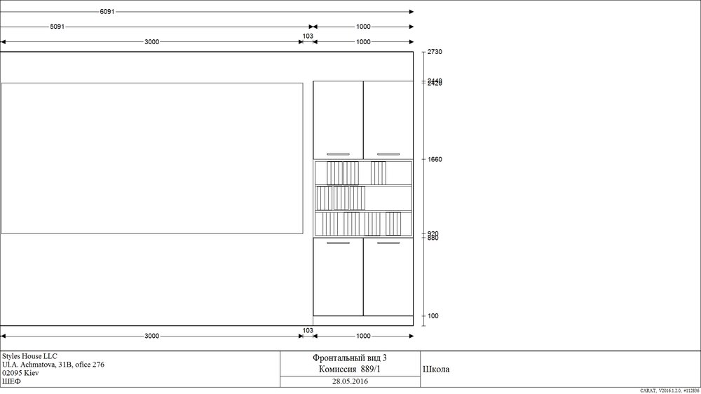
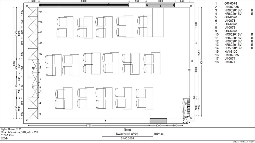
Нужно сделать 2 шкафа в школу.

Бюджет минимальный, цвета тоже можно обсуждать.

 

Предложите, пожалуйста, стоимость. Территориально - Киев, Оболонь.

1.thumb.JPG.49a4595e67f55100b1db97123c9379d7.JPG

889-1_1GND.thumb.JPG.da08dd83b73d19b0d6b1c65e1a5e0fd2.JPG

889-1_F01.thumb.JPG.ab0a0e370214dada0903e702f0991c8d.JPG

889-1_F03.thumb.JPG.63c00bf6c1e6c73a47702eace3db6dbf.JPG

889-1_GND.thumb.JPG.fa4a4188a40d3550069dad80e6e4c420.JPG

889-1_PSV.thumb.JPG.e9612b7e3ee5fc505bf59af6e40aaa80.JPG

Посилання на коментар
Поділитися на інших сайтах

Здравствуйте.

 

Нужно сделать 2 шкафа в школу.

Бюджет минимальный, цвета тоже можно обсуждать.

 

Предложите, пожалуйста, стоимость. Территориально - Киев, Оболонь.

 

С метровыми полками будет грустно.

Вам вияр не выйдет бюджетно, нужно в эпицентр и их конторы, кто делают подобное на половину из обрезков серийных изделий

Посилання на коментар
Поділитися на інших сайтах

С метровыми полками будет грустно.

Вам вияр не выйдет бюджетно, нужно в эпицентр и их конторы, кто делают подобное на половину из обрезков серийных изделий

Чтоб не было грустно, это все должен конструктор толковый обработать.

Какие еще обрезки от серийных изделий, что за анекдот?)) Серийные изделия стремятся кроить так чтоб с листа остатки в виде кучки пыли оставались.

Посилання на коментар
Поділитися на інших сайтах

Чтоб не было грустно, это все должен конструктор толковый обработать.

Какие еще обрезки от серийных изделий, что за анекдот?)) Серийные изделия стремятся кроить так чтоб с листа остатки в виде кучки пыли оставались.

 

Добро пожаловать в эпицентр, там бюджет минимальный, дешевле чем на вияр и заодно посмотрите как там из чего клеено

 

ЗЫ. Автор темой ошибся, ВИЯР ему точно не поможет

Посилання на коментар
Поділитися на інших сайтах

Здравствуйте.

 

Нужно сделать 2 шкафа в школу.

Бюджет минимальный, цвета тоже можно обсуждать.

 

Предложите, пожалуйста, стоимость. Территориально - Киев, Оболонь.

 

Около 14000 грн.

Посилання на коментар
Поділитися на інших сайтах

Створіть акаунт або увійдіть у нього для коментування

Ви маєте бути користувачем, щоб залишити коментар

Створити акаунт

Зареєструйтеся для отримання акаунта. Це просто!

Зареєструвати акаунт

Увійти

Вже зареєстровані? Увійдіть тут.

Увійти зараз
×
×
  • Створити...