yakim Опубліковано: 12 липня 2007 Поділитись Опубліковано: 12 липня 2007 Предлагаю создать, собственно сабж. Давайте обсудим варианты. Например у меня есть (в бумажном варианте) 4 проекта, но нужен другой. www.plans.ru/prj/52 - один из имеющихся более новых (АР). Есть еще два небольших домика (один по-проще и по-сложней - полный комплект чертежей) и еще один (АР, КР) большой (12*17 в три этажа + цоколь). Завтра отсканю фасады и выложу. Посилання на коментар Поділитися на інших сайтах More sharing options...
Amazonka Опубліковано: 13 липня 2007 Поділитись Опубліковано: 13 липня 2007 У меня есть эскизный проект (несколько видоизмененный) вот этого проекта (канадский проект) (ссылка устарела) На сайте он без цокольного этажа и по ширине 14,4м. У меня есть готовые чертежи цокольного, 1-го, 2-го этажей + фасады. Без одного гаража, т.е. по ширине 11м. Посилання на коментар Поділитися на інших сайтах More sharing options...
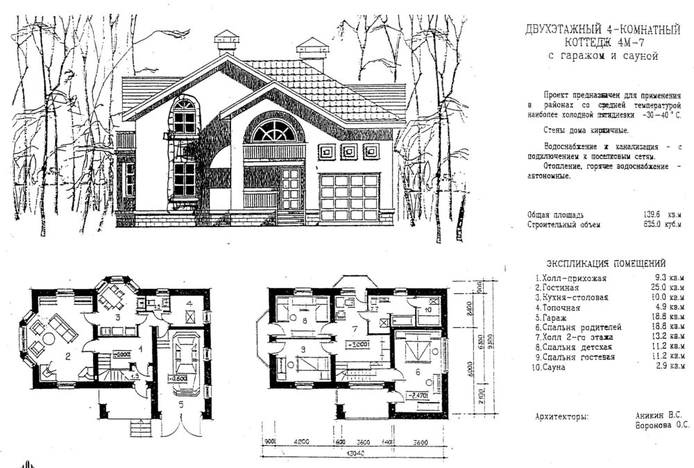
yakim Опубліковано: 13 липня 2007 Автор Поділитись Опубліковано: 13 липня 2007 Как договаривались Проект небольшого дома 1996 г/в, с пробегом по "Русановским садам" Копия из А3 в А4. Полный комплект. Посилання на коментар Поділитися на інших сайтах More sharing options...
yakim Опубліковано: 13 липня 2007 Автор Поділитись Опубліковано: 13 липня 2007 Бооольшой, площадь застройки - 235,2 м2 Общая - 612,7 Жилая - 291,3 Строительный объем - 2340 м3 Посилання на коментар Поділитися на інших сайтах More sharing options...
yakim Опубліковано: 13 липня 2007 Автор Поділитись Опубліковано: 13 липня 2007 то Amazonka, а что включает в себя эскизный проект?? Посилання на коментар Поділитися на інших сайтах More sharing options...
Рекомендовані повідомлення
Створіть акаунт або увійдіть у нього для коментування
Ви маєте бути користувачем, щоб залишити коментар
Створити акаунт
Зареєструйтеся для отримання акаунта. Це просто!
Зареєструвати акаунтУвійти
Вже зареєстровані? Увійдіть тут.
Увійти зараз